Рейтинг@Mail.ru
Переверните экран
Новостройки Квартиры Ипотека Новостройки Москвы Новостройки Подмосковья Новостройки Новой Москвы Готовые новостройки Новостройки на карте Акции от застройщиков Коммерческие помещения Продавцы и застройщики Панорамы новостроек Видеообзор новостроек Экспертиза новостроек Экология Москвы и Подмосковья Студии 1-комнатные 2-комнатные 3-комнатные Квартиры на карте Ипотечный калькулятор Семейная ипотека Военная ипотека Банки и программы Медиа Новости недвижимости Мнение эксперта Аналитика рынка Покупателю Экспертиза новостроек Эксперты и авторы О проекте Контакты Реклама на сайте Vk Youtube Telegram Дзен Машиноместа Апартаменты #траншевая ипотека #рассрочка ИТ-ипотека Квартиры со скидками до 40% Видео 360° новостроек Субсидированная застройщиком Rutube Поиск дома в Москве Программа реновации в Москве Новостройки премиум-класса Новостройки бизнес-класса Рассрочка Траншевая ипотека Дома и коттеджи Коттеджные поселки в Новой Москве Готовые коттеджные поселки Строящиеся коттеджные поселки Коттеджные поселки в лесу Коттеджные поселки у водоема Коттеджные поселки в ипотеку Бизнес-центры Коттеджи Ипотека со ставкой 0,1%

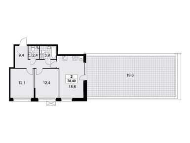
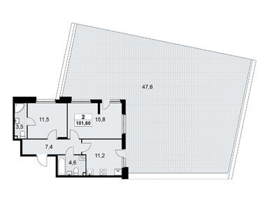
Планировки в ЖК «Бунинские кварталы»

Москва, ТиНАО, Новомосковский АО, Сосенское С/П
от 8.2 до 34.9 млн
 
Цены за квартиры от 13 мая
по данным официального сайта
Звоните, мы ещё работаем!
Акции в мае
ООО «А101»
ООО «А101»
09:00 — 21:00
Заказать обратный звонок
Задать вопрос
Посмотреть все спецпредложения

Скидки и спецпредложения от застройщиков

Выгодные предложения на новостройки

Квартиры от застройщиков с акциями

Специальные предложения на новостройки

Отзывы о ЖК «Бунинские кварталы»

Самый полезный отзыв
П
Павел
12 октября 2022
Оценка
Достоинства
Экология
Планировки
Внешний вид фасада
Монолитные дома разной этажности, с большой площадью остекления. Мне такие вообще нравятся, они и смотрятся стильно и света в квартирах много за счет больших окон. Расположен в поселении Сосенское, до МКАД около 9 км, до ближайшего метро пока что 5 мин на машине, но скоро откроют еще одну станцию, гораздо ближе.
Ответить
Самый новый отзыв
В
Вениамин
11 мая
Оценка
Стал владельцем квадратных метров в этом ЖК. Пока доволен, понравилось, что минут в 15 хотьбы Ивановский пруд, теперь мой главный план на выходные - кормить уток. А если серьезно, то возможность за 15 минут сбежать в лесопарк перевесила все другие варианты.
Ответить

Оставить отзыв

Добавьте отзыв, заполнив личные данные, или сначала войдите на сайт, тогда информация будет автоматически взята из личного профиля.

Оценка*