Рейтинг@Mail.ru
Переверните экран
Новостройки Квартиры Ипотека Новостройки Москвы Новостройки Подмосковья Новостройки Новой Москвы Готовые новостройки Новостройки на карте Акции от застройщиков Коммерческие помещения Продавцы и застройщики Панорамы новостроек Видеообзор новостроек Экспертиза новостроек Экология Москвы и Подмосковья Студии 1-комнатные 2-комнатные 3-комнатные Квартиры на карте Ипотечный калькулятор Семейная ипотека Военная ипотека Банки и программы Медиа Новости недвижимости Мнение эксперта Аналитика рынка Покупателю Экспертиза новостроек Эксперты и авторы О проекте Контакты Реклама на сайте Vk Youtube Telegram Дзен Машиноместа Апартаменты #траншевая ипотека #рассрочка IT-ипотека Квартиры со скидками до 40% Видео 360° новостроек Субсидированная застройщиком Rutube Поиск дома в Москве Программа реновации в Москве Новостройки премиум-класса Новостройки бизнес-класса Рассрочка Траншевая ипотека Дома и коттеджи Бизнес-центры Бизнес-центры в Москве Бизнес-центры рядом с метро Строящиеся бизнес-центры Бизнес-центры класса A Бизнес-центры класса B
Данная квартира является лидером продаж среди однокомнатных квартир в ЖК «Пехра» по данным Росреестра
1-комн. квартира, 36.29 м2, 2 этаж
Срок сдачи 3 квартал 2026 года
8 911 885 
10 274 879
245 574 2
обновлено 1 февраля

Описание 1-комн. квартиры

Новостройка
Застройщик
Срок ГК
3 квартал 2026 года
Стадия строительства
Тип проекта
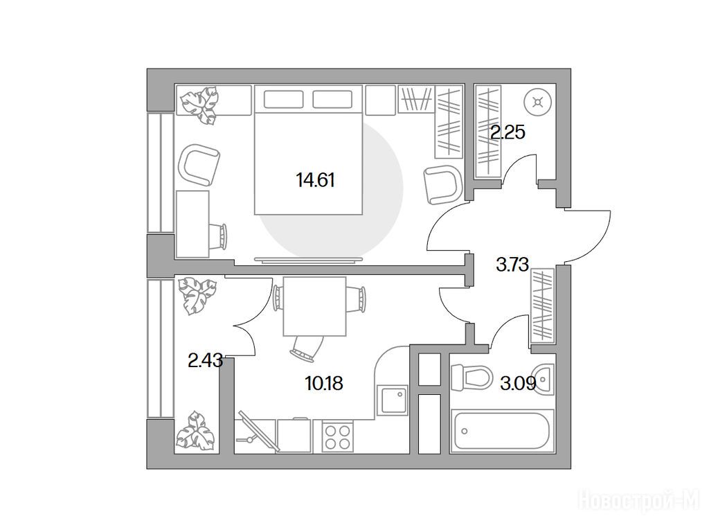
Общая площадь
36.29 м2
Жилая площадь
14.61 м2
Площадь кухни
10.18 м2
Этаж
2 / 17
Балкон
лоджия
Отделка
чистовая

Расположение 1-комн. квартиры

Метро
Ж/Д-станция
Дом
8
Адрес
ул. Трубецкая, мкр.39, влад.2Б, корп. 8, секция 3

Способы покупки

Особенности

Продается однокомнатная квартира в новостройке ЖК «Пехра» по адресу Московская область, Балашиха городской округ, Балашиха, ул. Трубецкая, мкр.39, влад.2Б, корп. 8. Общая площадь квартиры - 36.29 кв. м. Тип проекта, по которому построен дом — Монолит, компания-застройщик — ГК «Гранель». Стоимость квартиры — 8 911 885 руб. Способы оплаты можно уточнить у продавца. Срок сдачи — 3 квартал 2026. Более подробная информация по телефону.

Правовые документы

ГК «Гранель»
ГК «Гранель»
Сданных 16
|
Строящихся 16
Время работы 09:00 — 21:00
Онлайн-сделка
Выбирайте квартиру в ЖК «Пехра» по ценам от застройщика

Похожие квартиры в ЖК «Пехра»

14 этаж
из 17 3 квартал 2026
Московская область, Балашиха городской округ
Щелковская
29 мин.
8
Корпус
чистовая
Отделка
2.57 м
Потолки
ЖК «Пехра»
8 911 885 10 274 879
Альфа-Банк, СберБанк, Всероссийский банк развития регионов, Азиатско-Тихоокеанский Банк, Совкомбанк, Банк Санкт-Петербург, Металлинвестбанк, Россельхозбанк, Примсоцбанк, Абсолют Банк, ДОМ.РФ, Банк Россия, Уралсиб, Севергазбанк, Московский Кредитный Банк, МТС Банк, Сургутнефтегазбанк, ВТБ
6.00%
Ставка
30.10%
Первый взнос
от 53 431 /мес.
Все варианты
17 этаж
из 17 3 квартал 2026
Московская область, Балашиха городской округ
Щелковская
29 мин.
8
Корпус
чистовая
Отделка
2.57 м
Потолки
ЖК «Пехра»
8 911 885 10 274 879
Альфа-Банк, СберБанк, Всероссийский банк развития регионов, Азиатско-Тихоокеанский Банк, Совкомбанк, Банк Санкт-Петербург, Металлинвестбанк, Россельхозбанк, Примсоцбанк, Абсолют Банк, ДОМ.РФ, Банк Россия, Уралсиб, Севергазбанк, Московский Кредитный Банк, МТС Банк, Сургутнефтегазбанк, ВТБ
6.00%
Ставка
30.10%
Первый взнос
от 53 431 /мес.
Все варианты
Посмотреть все спецпредложения
Этаж 8/15
МО, ЖК «Пехра»
Щелковская
29 мин.
Строится
студия 23,40 м2 6 357 758
Этаж 6/25
МО, ЖК «Пехра»
Щелковская
29 мин.
Строится
студия 23,61 м2 5 798 005
Этаж 2/15
МО, ЖК «Пехра»
Щелковская
29 мин.
Строится
студия 23,80 м2 6 797 978
Этаж 14/14 лоджия
МО, ЖК «Пехра»
Щелковская
29 мин.
Сдан
Посмотреть 103 квартиры в ЖК «Пехра»
Этаж 3/15 лоджия
МО, ЖК «Пехра»
Щелковская
29 мин.
Строится
1-комн. квартира 36,19 м2 8 351 995
Этаж 2/9 лоджия
МО, ЖК «Пехра»
Щелковская
29 мин.
Строится
1-комн. квартира 36,29 м2 8 911 885
Этаж 14/17 лоджия
МО, ЖК «Пехра»
Щелковская
29 мин.
Строится
1-комн. квартира 36,64 м2 8 455 847
Этаж 4/9 лоджия
МО, ЖК «Пехра»
Щелковская
29 мин.
Строится
Посмотреть 29 квартир в ЖК «Пехра»
2-комн. квартира 51,67 м2 12 418 840
Этаж 17/17 лоджия
МО, ЖК «Пехра»
Щелковская
29 мин.
Строится
2-комн. квартира 52,40 м2 11 054 755
Этаж 22/25 лоджия
МО, ЖК «Пехра»
Щелковская
29 мин.
Сдан
2-комн. квартира 52,73 м2 12 673 610
Этаж 2/17 лоджия
МО, ЖК «Пехра»
Щелковская
29 мин.
Строится
2-комн. квартира 53,10 м2 10 963 945
Этаж 16/16 лоджия
МО, ЖК «Пехра»
Щелковская
29 мин.
Сдан
Посмотреть 71 квартира в ЖК «Пехра»
3-комн. квартира 66,30 м2 13 685 507
Этаж 13/14 лоджия
МО, ЖК «Пехра»
Щелковская
29 мин.
Сдан
3-комн. квартира 69,55 м2 15 777 672
Этаж 2/9 лоджия
МО, ЖК «Пехра»
Щелковская
29 мин.
Строится
3-комн. квартира 71,60 м2 15 396 296
Этаж 5/14 лоджия
МО, ЖК «Пехра»
Щелковская
29 мин.
Сдан
3-комн. квартира 72,75 м2 14 140 368
Этаж 15/15 лоджия
МО, ЖК «Пехра»
Щелковская
29 мин.
Строится
Посмотреть 8 квартир в ЖК «Пехра»

Скидки и спецпредложения от застройщиков

ЖК «Пехра» на карте

Выгодные предложения на новостройки

Отзывы о ЖК «Пехра»

Самый полезный отзыв
ТГ
04 июня 2018
Оценка:
Транспортная доступность
Расположение
Готовность
Документы по объекту уже выложили. Значит, уже можно всерьез эту стройку воспринимать. Студии тут есть махонькие совсем, но и цена за них всего 1, 53 млн. Кажется, это самая низкая цены на студии в заявленном классе комфорт в ближнем Подмосковье. Я ниже не нашел.
Показать все комментарии
Ответить
Полезный отзыв?
Самый новый отзыв
ЕВ
09 августа 2025
Оценка:
Планировки
Способы покупки
Внешний вид фасада
Двор, окружение
Расположение
Балашиха - мой родной район, привыкла к нему, поэтому новую квартиру только тут и смотрела, из всех вариантов Пехра понравился больше всего, плюс застройщик надежный, в офисе встретили приветливо, помогли подобрать подходящий вариант, скидочку сделали, помогли оформить все запросы в банк и так на все вопросы дали пояснения, мне кажется, что я не пожалею
Ответить
Полезный отзыв?
Добавьте отзыв, заполнив личные данные, или сначала войдите на сайт, тогда информация будет автоматически взята из личного профиля.
Оценка*