Рейтинг@Mail.ru
Переверните экран
Новостройки Квартиры Ипотека Новостройки Москвы Новостройки Подмосковья Новостройки Новой Москвы Готовые новостройки Новостройки на карте Акции от застройщиков Коммерческие помещения Продавцы и застройщики Панорамы новостроек Видеообзор новостроек Экспертиза новостроек Экология Москвы и Подмосковья Студии 1-комнатные 2-комнатные 3-комнатные Квартиры на карте Ипотечный калькулятор Семейная ипотека Военная ипотека Банки и программы Медиа Новости недвижимости Мнение эксперта Аналитика рынка Покупателю Экспертиза новостроек Эксперты и авторы О проекте Контакты Реклама на сайте Vk Youtube Telegram Дзен Машиноместа Апартаменты #траншевая ипотека #рассрочка ИТ-ипотека Квартиры со скидками до 40% Видео 360° новостроек Субсидированная застройщиком Rutube Поиск дома в Москве Программа реновации в Москве Новостройки премиум-класса Новостройки бизнес-класса Рассрочка Траншевая ипотека Дома и коттеджи Коттеджные поселки в Новой Москве Готовые коттеджные поселки Строящиеся коттеджные поселки Коттеджные поселки в лесу Коттеджные поселки у водоема Коттеджные поселки в ипотеку Бизнес-центры Коттеджи Ипотека со ставкой 0,1%
Данная квартира является лидером продаж среди двухкомнатных квартир в ЖК «Пехра» по данным Росреестра
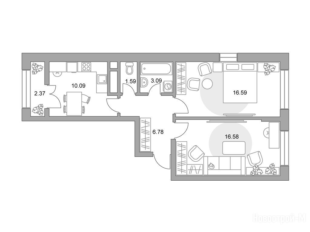
2-комн. квартира, 57.09 м2, 6 этаж
Срок сдачи 3 квартал 2026 года
10 917 568 
12 587 313
191 234 2
обновлено 13 мая

Описание 2-комн. квартиры

Новостройка
Застройщик
Срок ГК
3 квартал 2026 года
Стадия строительства
Тип проекта
Общая площадь
57.09 м2
Жилая площадь
33.17 м2
Площадь кухни
10.09 м2
Этаж
6 / 16
Балкон
лоджия
Отделка
нет

Расположение 2-комн. квартиры

Метро
Ж/Д-станция
Дом
8
Адрес
ул. Трубецкая, мкр.39, влад.2Б, корп. 8, секция 1

Способы покупки

Особенности

Продается двухкомнатная квартира в новостройке ЖК «Пехра» по адресу Московская область, Балашиха городской округ, Балашиха, ул. Трубецкая, мкр.39, влад.2Б, корп. 8. Общая площадь квартиры - 57.09 кв. м. Тип проекта, по которому построен дом — Монолит, компания-застройщик — ГК «Гранель». Стоимость квартиры — 10 917 568 руб. Способы оплаты можно уточнить у продавца. Срок сдачи — 3 квартал 2026. Более подробная информация по телефону.

Правовые документы

ГК «Гранель»
ГК «Гранель»
Сданных 16
|
Строящихся 17
Время работы 09:00 — 21:00
Заказать обратный звонок
Онлайн-сделка
Выбирайте квартиру в ЖК «Пехра» по ценам от застройщика

Похожие квартиры в ЖК «Пехра»

10 этаж
из 16 3 квартал 2026
Московская область, Балашиха городской округ
Щелковская
29 мин.
8
Корпус
нет
Отделка
2.57 м
Потолки
ЖК «Пехра»
10 917 568 12 587 313
Альфа-Банк, Азиатско-Тихоокеанский Банк, Всероссийский банк развития регионов, СберБанк, Совкомбанк, Металлинвестбанк, Банк Санкт-Петербург, Абсолют Банк, Банк Россия, ДОМ.РФ, Россельхозбанк, Уралсиб, Севергазбанк, Сургутнефтегазбанк, ВТБ, Московский Кредитный Банк, МТС Банк
6.00%
Ставка
30.10%
Первый взнос
от 65 456 /мес.
Все варианты
13 этаж
из 16 3 квартал 2026
Московская область, Балашиха городской округ
Щелковская
29 мин.
8
Корпус
нет
Отделка
2.57 м
Потолки
ЖК «Пехра»
10 917 568 12 587 313
Альфа-Банк, Азиатско-Тихоокеанский Банк, Всероссийский банк развития регионов, СберБанк, Совкомбанк, Металлинвестбанк, Банк Санкт-Петербург, Абсолют Банк, Банк Россия, ДОМ.РФ, Россельхозбанк, Уралсиб, Севергазбанк, Сургутнефтегазбанк, ВТБ, Московский Кредитный Банк, МТС Банк
6.00%
Ставка
30.10%
Первый взнос
от 65 456 /мес.
Все варианты
16 этаж
из 16 3 квартал 2026
Московская область, Балашиха городской округ
Щелковская
29 мин.
8
Корпус
нет
Отделка
2.57 м
Потолки
ЖК «Пехра»
10 917 568 12 587 313
Альфа-Банк, Азиатско-Тихоокеанский Банк, Всероссийский банк развития регионов, СберБанк, Совкомбанк, Металлинвестбанк, Банк Санкт-Петербург, Абсолют Банк, Банк Россия, ДОМ.РФ, Россельхозбанк, Уралсиб, Севергазбанк, Сургутнефтегазбанк, ВТБ, Московский Кредитный Банк, МТС Банк
6.00%
Ставка
30.10%
Первый взнос
от 65 456 /мес.
Все варианты
4 этаж
из 16 3 квартал 2026
Московская область, Балашиха городской округ
Щелковская
29 мин.
8
Корпус
нет
Отделка
2.57 м
Потолки
ЖК «Пехра»
10 917 568 12 587 313
Альфа-Банк, Азиатско-Тихоокеанский Банк, Всероссийский банк развития регионов, СберБанк, Совкомбанк, Металлинвестбанк, Банк Санкт-Петербург, Абсолют Банк, Банк Россия, ДОМ.РФ, Россельхозбанк, Уралсиб, Севергазбанк, Сургутнефтегазбанк, ВТБ, Московский Кредитный Банк, МТС Банк
6.00%
Ставка
30.10%
Первый взнос
от 65 456 /мес.
Все варианты
2 этаж
из 16 3 квартал 2026
Московская область, Балашиха городской округ
Щелковская
29 мин.
8
Корпус
нет
Отделка
2.57 м
Потолки
ЖК «Пехра»
10 917 568 12 587 313
Альфа-Банк, Азиатско-Тихоокеанский Банк, Всероссийский банк развития регионов, СберБанк, Совкомбанк, Металлинвестбанк, Банк Санкт-Петербург, Абсолют Банк, Банк Россия, ДОМ.РФ, Россельхозбанк, Уралсиб, Севергазбанк, Сургутнефтегазбанк, ВТБ, Московский Кредитный Банк, МТС Банк
6.00%
Ставка
30.10%
Первый взнос
от 65 456 /мес.
Все варианты
8 этаж
из 16 3 квартал 2026
Московская область, Балашиха городской округ
Щелковская
29 мин.
8
Корпус
нет
Отделка
2.57 м
Потолки
ЖК «Пехра»
11 945 103 12 587 313
Альфа-Банк, Азиатско-Тихоокеанский Банк, Всероссийский банк развития регионов, СберБанк, Совкомбанк, Металлинвестбанк, Банк Санкт-Петербург, Абсолют Банк, Банк Россия, ДОМ.РФ, Россельхозбанк, Уралсиб, Севергазбанк, Сургутнефтегазбанк, ВТБ, Московский Кредитный Банк, МТС Банк
6.00%
Ставка
30.10%
Первый взнос
от 71 617 /мес.
Все варианты
студия 21,30 м2 4 794 301
Этаж 4/9
МО, ЖК «Пехра»
Щелковская
29 мин.
Сдан
Этаж 19/25
МО, ЖК «Пехра»
Щелковская
29 мин.
Строится
Этаж 11/15
МО, ЖК «Пехра»
Щелковская
29 мин.
Строится
студия 23,61 м2 5 572 181
Этаж 2/15
МО, ЖК «Пехра»
Щелковская
29 мин.
Строится
Посмотреть 112 квартир в ЖК «Пехра»
1-комн. квартира 30,80 м2 6 232 429
Этаж 2/14 лоджия
МО, ЖК «Пехра»
Щелковская
29 мин.
Сдан
1-комн. квартира 32,80 м2 6 571 541
Этаж 3/9
МО, ЖК «Пехра»
Щелковская
29 мин.
Сдан
1-комн. квартира 33,30 м2 6 687 922
Этаж 13/16 лоджия
МО, ЖК «Пехра»
Щелковская
29 мин.
Сдан
1-комн. квартира 33,50 м2 6 707 988
Этаж 12/16 лоджия
МО, ЖК «Пехра»
Щелковская
29 мин.
Сдан
Посмотреть 68 квартир в ЖК «Пехра»
2-комн. квартира 51,67 м2 11 692 767
Этаж 17/17 лоджия
МО, ЖК «Пехра»
Щелковская
29 мин.
Строится
2-комн. квартира 52,40 м2 10 534 531
Этаж 22/25 лоджия
МО, ЖК «Пехра»
Щелковская
29 мин.
Сдан
2-комн. квартира 54,25 м2 10 374 462
Этаж 14/25 лоджия
МО, ЖК «Пехра»
Щелковская
29 мин.
Строится
2-комн. квартира 54,43 м2 10 408 884
Этаж 15/25 лоджия
МО, ЖК «Пехра»
Щелковская
29 мин.
Строится
Посмотреть 71 квартира в ЖК «Пехра»
3-комн. квартира 66,30 м2 13 041 483
Этаж 13/14 лоджия
МО, ЖК «Пехра»
Щелковская
29 мин.
Сдан
3-комн. квартира 69,55 м2 15 267 824
Этаж 2/9 лоджия
МО, ЖК «Пехра»
Щелковская
29 мин.
Строится
3-комн. квартира 69,60 м2 15 429 398
Этаж 14/16 лоджия
МО, ЖК «Пехра»
Щелковская
29 мин.
Строится
3-комн. квартира 71,60 м2 14 671 765
Этаж 12/14 лоджия
МО, ЖК «Пехра»
Щелковская
29 мин.
Сдан
Посмотреть 9 квартир в ЖК «Пехра»

Скидки и спецпредложения от застройщиков

ЖК «Пехра» на карте

Выгодные предложения на новостройки

Отзывы о ЖК «Пехра»

Самый полезный отзыв
ТГ
04 июня 2018
Оценка:
Достоинства
Транспортная доступность
Расположение
Недостатки
Готовность
Документы по объекту уже выложили. Значит, уже можно всерьез эту стройку воспринимать. Студии тут есть махонькие совсем, но и цена за них всего 1, 53 млн. Кажется, это самая низкая цены на студии в заявленном классе комфорт в ближнем Подмосковье. Я ниже не нашел.
Показать все комментарии
Ответить
Самый новый отзыв
МН
17 марта
Оценка:
Достоинства
Двор, окружение
Расположение
Очень нравится, что есть прогулочные маршруты вдоль рек. Это создаёт отличные условия для отдыха и прогулок. Это большой плюс для жизни в этом комплексе.
Ответить

Оставить отзыв

Добавьте отзыв, заполнив личные данные, или сначала войдите на сайт, тогда информация будет автоматически взята из личного профиля.
Оценка*