«Притяжение Сити» – проект комфорт-класса от застройщика ГК «Гранель» в подмосковном городе Одинцово. Рядом с ЖК, который будет возведен в несколько очередей, расположен лесной массив. Каким будет комплекс, что нужно знать о месте, где он строится, если вы присматриваете здесь квартиру, расскажет Новострой-М.
Примечание
В статье перечислены только факты о проекте, собранные из открытых источников. В рубрике «Экспертиза проекта» Новострой-М решил отказаться от оценок и оценочных суждений: право делать выводы из описанных фактов мы предоставляем нашим читателям.
Строительством ЖК «Притяжение Сити» занимается ГК «Гранель». Это девелоперская компания, которая работает на рынке с 1992 года. Портфель проектов ГК «Гранель» составляет 6,5 млн кв. м жилья и более 600 тыс. кв. м коммерческой недвижимости.
В Московском регионе девелопер сдал более 3 млн кв. м жилой недвижимости и более 100 тыс. кв. м социальной инфраструктуры.
Согласно данным Единого ресурса застройщиков (на 1 февраля 2026 года) ГК «Гранель» занимает 18 место в России по объему текущего строительства с 807,5 тыс. кв. м жилья. Со всеми актуальными проектами компании вы можете ознакомиться на сайте Нововстрой-М.
«Притяжение Сити» – жилой комплекс комфорт-класса, который возводят в Одинцовском городском округе. ЖК расположится на территории площадью более 32 га. Он будет построен в несколько очередей, включающих в себя жилые дома высотой от 9 до 14 этажей, паркинги, детский сад и школу.
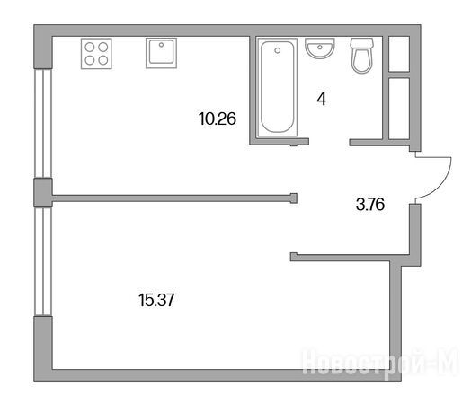
Сейчас идет строительство первого дома ЖК – это корпус №8.
ЖК «Притяжение Сити» в цифрах (корпус №8):
Проект представлен монолитными домами переменной этажности от 9 до 14 этажей. Фасады выполнены в природных оттенках с использованием бетонной плитки, металлических кассет и керамогранита. Для кондиционеров предусмотрены декоративные корзины.
Дизайнерское лобби будет оформлено в неоклассическом стиле: фактурные панели и керамогранит, деликатные палитра и освещение, стильные почтовые ящики. Здесь предусмотрены зона ожидания зона ожидания с мягкой мебелью, колясочные и помещения для мойки лап домашним питомцам.





Девелопер на своем сайте обещает авторское благоустройство с цветущими садами, хвойными и лиственными деревьями, цветниками и ухоженными газонами. Также в проекте благоустройства есть различные игровые комплексы в формате Playhub, детские и спортивные площадки.




На официальном сайте проекта нет информации о системах умный дом, видеонаблюдении или защищенном доступе во дворы ЖК. Девелопер сообщает, что в «Притяжение Сити» используется новейшее инженерное оборудование, обеспечивающее высокий уровень сервиса для жителей. А лифты повышенного класса со стильной отделкой кабин продолжают дизайн интерьеров вестибюлей.
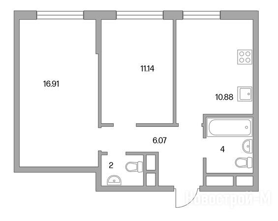
В ЖК запроектированы одно-, двух- и трехкомнатные лоты, в том числе евроформата – с объединенной кухней-гостиной. Площади квартир начинаются от 28 кв. м, высота потолков – 2,8 м.
Площади квартир в имеющемся предложении:
Все квартиры сдаются без отделки.




ЖК расположен недалеко от МКАД, но пока выезд на автодорогу «Северный обход Одинцово» не построен, придется делать крюк. Путь на машине до кольцевой займет около 20 минут. До Сколково можно доехать за полчаса, примерно столько же до ТТК. Минут 40 займет дорога до аэропорта Внуково или до Садового кольца.
Итоговое время в пути будет сильно зависеть от пробок. Особенно загружены выезды на МКАД и перекрестки с крупными магистралями.
Примерно на одном расстоянии от ЖК расположены две станции МДЦ-1: Сколково и Немчиновка. Но дойти пешком до первой можно лишь за 34 минуты, до второй – за 38.
Путь до станции метро «Новопеределкино» на машине займет около получаса, чуть меньше – до станций «Кунцевская» или «Славянский бульвар».
В целом экологическую обстановку в этой локации можно назвать удовлетворительной: вокруг ЖК находится много зеленых зон. С другой стороны, новостройка расположена рядом с дорогой «Северный обход Одинцово».
За полчаса от ЖК можно дойти до Большого Немчиновского пруда, чуть больше займет дорога пешком до Ромашкового пруда. За час можно дойти до парка Малевича, за полтора – до парка Раздолье.
Проект «Притяжения Сити» предполагает строительство детского сада на 850 мест и школу для 1760 учащихся.
На первых этажах жилых домов разместятся разнообразные коммерческие помещения: супермаркеты, кафе, салоны услуг и сервисы для повседневных задач.
Ближайший детский сад находится менее чем в километре по прямой от жилого комплекса. Это частный детский сад «Планета карапузия» в селе Ромашково (Рублевский проезд, 40 к7). Несмотря на близость, сервисы навигации показывают, что дорога до него займет около получаса на машине или почти час пешком.
Рядом расположен еще один частный детский сад – «Филиппок» – (Никольская улица, 12). В противоположной стороне есть еще с десяток детских садов, клубов и развивающих центров. Ближайший – Бублик (Одинцово, Кутузовская улица, 33). Путь до него пешком займет около 30 минут, на машине – 17 минут.
Недалеко от жилого комплекса расположены несколько корпусов образовательного центра с углубленным изучением отдельных предметов «Флагман» (Одинцово, Кутузовская улица, 11; улица Чистяковой, 54; улица Сколковская, 5в; улица Чистяковой, 10). Добраться до них на автомобиле можно минут за 10-13.
Примерно на таком же расстоянии от ЖК находится школа-клуб «Русское слово» (Кутузовская улица, 31). Путь пешком до Немчиновского лицея займет около получаса (село Немчиновка, Московская улица, 5).
Если супермаркетов в самом жилом комплексе будет недостаточно, они есть в соседних Немчиновке и Никонорово. Есть «Пятерочки», «Магниты», «ВкусВилл», «Чижик», «Дикси» и другие. Время в пути на машине – 10-20 минут.
Ближайшая взрослая поликлиника расположена в Кутузовском микрорайоне Одинцово по улице Чистяковой, 22. Путь до нее на машине сейчас займет около 13 минут.
Детская поликлиника расположена чуть дальше – на улице Чистяковой, 10а. Однако, как следует из открытых источников, этот филиал временно не работает. До филиала №1 детской городской поликлиники №30 (Москва, Беловежская улица, 43) можно добраться минут за 20. Чуть меньше займет путь до поликлиники в четвертом микрорайоне Одинцово (улица Говорова, 10).
Чтобы увидеть объекты, нажмите на соответствующую кнопку внизу карты.
За полчаса можно дойти до нескольких фитнес-центров. Например: «Для своих» (Одинцово, Кутузовская улица, 35), студии женских тренировок «Territoriя» (улица Чистяковой, 42), Sky Fitness (Родниковая улица, 22а), Papa Smith fitness (улица Чистяковой, 26в).
Безопасность
В СМИ Одинцовский называют одним из самых криминогенных округов Московской области. Как следует из отчета руководителя местного УМВД, за 2024 год здесь было зарегистрировано почти 114 тысяч заявлений и сообщений граждан о происшествиях.
Ближайший участковый пункт полиции расположен по адресу Одинцово, Кутузовская улица, 21. От него до ЖК можно дойти за 35 минут.
Девелопер объявил старт бронирования квартир в декабре 2025 года. Тогда цены в проекте начинались от 7 млн рублей. Сейчас самый доступный вариант – студия на третьем этаже площадью 28,59 кв. м – стоит столько же. Согласно информации на сайте застройщика – это цена с 20%-й скидкой. Без нее этот же лот стоит 8,8 млн рублей.
Актуальные цены в ЖК «Притяжение Сити»:
|
Тип жилья |
Метраж, кв. м |
Цена, руб. |
Цена за кв. м, тыс. руб. |
|
студии |
28.10 — 30.63 |
6 761 388 — 8 517 373 |
226.5 — 286.3 |
|
1-комнатные |
32.26 — 38.93 |
7 650 678 — 10 164 803 |
208.6 — 271.9 |
|
2-комнатные |
48.41 — 55.40 |
10 473 975 — 12 714 411 |
208.6 — 242 |
|
3-комнатные |
66.40 — 69.79 |
14 086 313 — 15 108 980 |
208.6 — 227.5 |
Приобрести квартиру в ЖК можно с помощью:
Также девелопер указывает возможность покупки с помощью IT-ипотеки, военной ипотеки и с использованием материнского капитала.
Данные об условиях кредитования действительны на момент публикации статьи. Актуальную информацию вы всегда можете найти в карточке проекта.
Сейчас в этой локации строится еще несколько жилых проектов. Один из них – ЖК Stellar City. Его возводит в Можайском районе ГК «Ташир». Жилой квартал класса «бизнес» разместится на 16 га и будет состоять из семи домов, школы на 792 ученика и детского сада на 330 мест. Один из корпусов уже сдан, еще один застройщик планирует сдать в IV кв. 2026 года. Цены в проекте стартуют от 10 млн рублей за студию без отделки площадью 29,10 кв. м.
Актуальные цены в ЖК Stellar City:
|
Тип жилья |
Метраж, кв. м |
Цена, руб. |
Цена за кв. м, тыс. руб. |
|
студии |
29.10 — 31.60 |
9 900 000 — 13 651 200 |
339.5 — 432 |
|
2-комнатные |
39.50 — 62.30 |
16 985 000 — 24 421 600 |
329.5 — 437 |
|
3-комнатные |
71.70 — 100.50 |
21 868 500 — 39 584 600 |
300 — 425 |
|
4-комнатные |
114.00 — 114.70 |
35 449 946 — 49 148 950 |
309.1 — 428.5 |
ЖК «UNO. Горбунова» – еще один проект бизнес-класса в Можайском районе. Он состоит из двух корпусов переменной этажности (19-35). Первый застройщик планирует сдать в I кв. 2028 года. Самый бюджетный вариант здесь – студия площадью 28,57 кв. м. Она стоит 12,5 млн рублей.
Актуальные цены в ЖК «UNO. Горбунова»:
|
Тип жилья |
Метраж, кв. м |
Цена, руб. |
Цена за кв. м, тыс. руб. |
|
1-комнатные |
28.57 — 48.92 |
12 450 060 — 25 031 256 |
398 — 514.2 |
|
2-комнатные |
53.12 — 61.57 |
21 373 300 — 26 489 736 |
397 — 435.4 |
|
3-комнатные |
82.32 — 95.03 |
34 343 904 — 39 532 480 |
416 — 417.3 |
«Аметист» – проект комфорт-класса от одноименного застройщика. Возводится также в Одинцово, недалеко от Можайского шоссе.
Актуальные цены в комплексе «Аметист»:
|
Тип жилья |
Метраж, кв. м |
Цена, руб. |
Цена за кв. м, тыс. руб. |
|
студии |
22.58 — 40.00 |
6 400 000 — 19 900 000 |
268 — 497.5 |
Это 16-этажная высотка на 405 юнитов площадью 22 до 25,7 кв. м. Сдаются они как в чистовой, так и черновой отделке. Срок сдачи – III кв. 2026 года. Цены начинаются от 6,9 млн рублей за студию площадью 22,58 кв.м.
Резюме
Плюсы ЖК «Притяжение Сити»:
Минусы:
Жилой комплекс подойдет в первую очередь молодым семьям без детей и одиноким покупателям. Пока социальная инфраструктура находится на серьезном удалении от ЖК. Проблему частично решит запланированное строительство школы и детского садика, однако при строительстве новых очередей комплекса мест на всех может не хватить.
Не в пользу семейных покупателей говорит и большое количество малогабаритных лотов – студий и однокомнатных квартир.
Проект может быть интересен в инвестиционных целях. Продажи стартовали совсем недавно и цены пока серьезно не выросли. Они точно будут увеличиваться по мере строительства дома, развития самого квартала, строительства дорог и инфраструктуры вокруг.
Дата публикации 24 февраля