Nametkin Tower строится в 15 минутах от центра столицы и предлагает будущим резидентам круглосуточный сервис и возможность отдыхать в видовой лаундж-зоне на высоте 25-го этажа. Необычное по своей архитектуре и функциональности здание возводят в районе Черемушки, в шаговой доступности от четырех станций метро. Чем ещё интересен новый проект бизнес-класса от ГК «Основа», узнал Новострой-М.
Примечание
В статье перечислены только факты о проекте, собранные из открытых источников. В рубрике «Экспертиза проекта» Новострой-М решил отказаться от оценок и оценочных суждений: право делать выводы из описанных фактов мы предоставляем нашим читателям.
Кто строит?
С 2016 года ГК «Основа» работает в сфере девелопмента и инвестиций. Основными направлениями её деятельности являются: девелопмент в формате «умный дом», управление объектами коммерческой недвижимости, инвестиции в развитие семейной досуговой инфраструктуры, инвестиции в высокотехнологичные проекты и инновации.
Компания одновременно реализует 15 проектов в Москве и Московской области суммарной площадью более 1,5 млн кв. м. Также в портфель компании входит один реализованный проект в Чехии. Все объекты ГК «Основа» отличаются авторской архитектурой, высоким уровнем комфорта и вниманием к потребностям будущих жителей.
Что строят?
Nametkin Tower — это монолитно-кирпичное здание из 4 разновысотных секций и с двухуровневым благоустройством. Общественные пространства здесь занимают не только территорию двора и лобби, но и размещаются на высоте 25 этажа на специально оборудованной площадке – Sky Area. В проекте запланировано 2314 лотов, оснащенных системой «умный дом», подземная парковка, кладовые, ресторан, супермаркет, медицинский и spa-центр.
Nametkin Tower в цифрах:
|
№ |
Лоты |
Энергоэффект. |
Машино-места |
Класс |
Срок ввода |
|
1 |
2314 |
Не нормируется |
670 |
Бизнес |
IV кв. 2025 |
Архитектура и дизайн
Nametkin Tower имеет узнаваемую архитектуру в современном стиле, разработанную международным бюро Mecanoo. Здание состоит из 4 секций высотой от 24 до 29 этажей. Соединяясь друг с другом, секции образуют внутренний двор, а часть второй секции выступает в сторону ул. Наметкина. Фасады зданий отделаны металлическими панелями. Площадь остекления увеличена, чтобы обеспечить максимальную освещенность помещений.








В каждой секции будет просторное лобби, обустроенное по дизайн-проекту Mecanoo. В помещениях площадью до 320 кв. м с высокими потолками и панорамными окнами разместятся зоны для отдыха, встречи гостей с авторской мебелью и декором, комнаты матери и ребенка, колясочные и гостевые санузлы. В лобби будет работать круглосуточный консьерж-сервис.
Благоустройство
Внутренняя территория будет организована по принципу «двор без машин». Здесь появятся зоны для тихого отдыха с лавочками и прогулочными дорожками, а также рампы для экстремальных видов спорта.





Интересной архитектурной особенностью является досуговая зона на открытом воздухе – комьюнити, расположенное на уровне 25 этажа — Sky Area. На площади более 2500 кв. м разместятся несколько функциональных зон: для спорта, отдыха, общественных мероприятий, хобби и детских игр. Также для жителей будут доступны коворкинг, общественные гостиные, Sky Bar, теннисные и бильярдные столы.
Безопасность и технологии
Главной инженерной особенностью новостройки является система «умный дом». Она позволяет контролировать состояние внутренних систем и коммуникаций, автоматизировать передачу показаний приборов учета расхода ресурсов и оплату счетов.
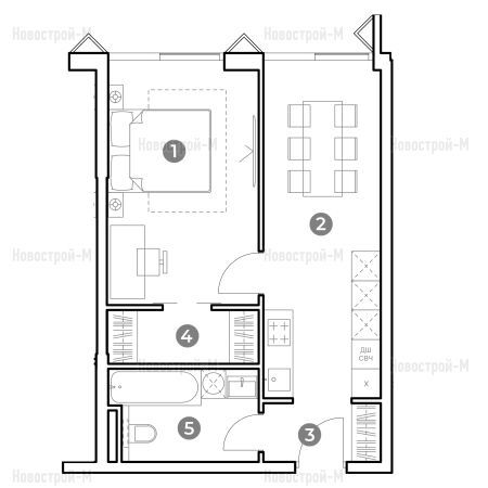
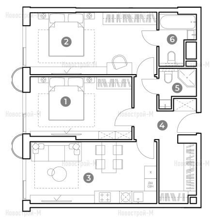
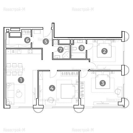
Планировки
В Nametkin Tower можно выбрать варианты различной площади и конфигурации: от студий площадью 21 кв. м до 4-комнатных лотов площадью 111 кв. м. Предложения с несколькими спальнями представлены в классическом и евроформате, во многих из них предусмотрен дополнительный санузел. Есть варианты с гардеробными комнатами, балконами.
Также застройщик предлагает вариант покупки нескольких лотов под объединение: например, два 1-спальных можно перепланировать в 3-спальный.





Высота потолков на типовых этажах составляет 3,1 м. На этаже может размещаться от 16 до 29 лотов.
Квадратные метры можно приобрести как без ремонта, так и с отделкой white box: выполнены черновые работы, разводка электричества и коммуникаций, выровнены стены.
Где строят?
Nametkin Tower возводится на юго-западе Москвы, в районе Черёмушки. Локация привлекательна своей отличной транспортной доступностью: отсюда 8 км до ТТК и 9,5 км – до Садового кольца. Доехать до центра на машине можно за 15–20 минут без учета пробок по улицам Наметкина и Профсоюзной. Меньше 10 минут потребуется, чтобы выехать на Ленинский проспект (4 км).
При неблагоприятной дорожной обстановке выручит метро. В шаговой доступности от новостройки находятся сразу 4 станции подземки:
Остановка наземного транспорта находится прямо у входа на территорию.
Экология
Даже в отсутствие опасных производств и других предприятий, район Черемушки не может похвастаться идеальным состоянием экологии. В этой локации высокая плотность населения, соответственно, много автомобилей. Дороги перегружены, а зеленых насаждений недостаточно, чтобы справляться с гигиеническими задачами. Специалисты EcoStandard оценивают степень негативного влияния на экологию в Черемушках на 6 баллов из 10 возможных и признает обстановку здесь приемлемой для жизни.
В то же время в соседнем Обручевском районе, от которого Nametkin Tower отделяет 300 метров, экология уже практически идеальна и оценена на 2 балла.
Вблизи строящегося объекта есть несколько парков, ближайший из которых Воронцовский (как раз в Обручевском районе), расположенный на расстоянии 800 м. Дойти до него пешком по прямой можно за 10 минут. За полчаса можно дойти до Битцевского леса или за 12 минут доехать на самокате — расстояние составляет 2,4 км. На машине дорога займет не более 8 минут (без пробок). Столько же времени потребуется, чтобы доехать до ландшафтного заказника «Лес на реке Смородинке». Чуть дольше придется ехать до ландшафтного заказника «Теплый стан» — 10 минут на машине или 1 час пешком. Дорога на автомобиле до Тропаревского лесопарка займет около 13 минут.
Инфраструктура
Внутренняя инфраструктура Nametkin Tower включает в себя ресторан, супермаркет и спортивный зал. На его территории появится медицинский центр, где можно будет пройти обследования, а также SPA с большим выбором программ для релакса.
Локация, в которой ведется строительство, отличается хорошо развитой социальной и торговой инфраструктурой.
Ближайший частный детский сад и центр развития ребенка находится в соседнем здании, в 3 минутах ходьбы от новостройки. Ещё один центр развивающей направленности «У Лукоморья» есть через дорогу, на расстоянии 500 метров. Сразу 2 частных детских сада находятся на ул. Профсоюзной, 68 к.1 — «Горница-Узорница» и Discovery English Preschool — 700 метров.
Ближайшие муниципальные учреждения для дошкольников: школа № 1948 «Лингвист-М», школа-детский сад № 1 при управлении делами президента. До любого из них можно дойти за 7–8 минут, расстояние от новостройки 600–700 метров.
В радиусе 2 км есть ещё около десятка частных и муниципальных детских садов, в том числе с логопедическими группами и углубленным изучением иностранных языков.
До ближайшей общеобразовательной школы № 1948 «Лингвист-М» около 9 минут ходьбы. Дошкольный и общеобразовательный корпуса школы №15 расположены на расстоянии 1,5 км, дойти до них можно за 17 – 20 минут. Также в 13 минутах ходьбы расположена частная школа «Газпром».
Вокруг новостройки много сетевых супермаркетов. До ближайшего «Дикси» меньше 500 метров (5 минут ходьбы). До «Азбуки вкуса» – 7 минут пешком. Дойти до «Пятерочки» и «ВкусВилла» на Новочеремушкинской улице можно за 10 минут.
До ближайшего частного диагностического центра «Газпром» можно дойти пешком за 10 минут. Примерно столько же займет дорога до частной клиники «СМ-клиника».
Муниципальная поликлиника №22 для взрослых расположена на расстоянии 1,4 км, в 17 минутах ходьбы. За полчаса можно дойти до диагностического центра №1 на ул. Каховка, 12а. Доехать до него на прямом автобусе (4 остановки) можно за 15 минут.
В шаговой доступности (до 15 минут) есть несколько частных стоматологических кабинетов, Центр дерматовенерологии и косметологии, лаборатория Invitro и «Гемотест».
До частной детской поликлиники «Лор» можно дойти за 19 минут (1,6 км), до частного медцентра «Фэнтази» — 1,3 км (16 минут пешком). Дорога до детской городской поликлиники № 69 (филиал №1) займет около 20 минут. Столько же времени придется идти до муниципальной детской поликлиники №10 на ул. Профсоюзной.
Заниматься спортом жители смогут в фитнес-клубе World Class, до которого можно дойти пешком меньше чем за 5 минут. За 9 минут можно дойти до фитнес-клуба «Зебра». В шаговой доступности есть несколько танцевальных студий для детей и взрослых, а также СК «Самбо» с большим выбором спортивных кружков для детей.
Безопасность
Черемушки — относительно спокойный и безопасный район. Как видно из отчета начальника местного МВД, количество преступлений здесь за последний год существенно сократилось — на целых 18%. Показатели по тяжким и особо тяжким преступлениям улучшились на 29%. За прошедший 2022 год в районе не было ни одного убийства.
Ближайший к Nametkin Tower участковый пункт полиции №6 расположен в 10 минутах ходьбы (около 900 м) по адресу Новочерёмушкинская ул., 64, корп. 1.
Цены и способы покупки
Старт продаж в Nametkin Tower состоялся в марте 2022 года, тогда минимальная стоимость студии составляла 7,5 млн руб. Сегодня порог входа в проект начинается от 7,8 млн руб. В такую сумму обойдется студия площадью 24 кв. м.
Цены в Nametkin Tower:
|
Тип жилья |
Метраж, кв. м |
Цена, руб. |
Цена за кв. м, тыс. руб. |
|
студии |
23.20 — 41.30 |
10 500 000 — 17 537 170 |
327.8 — 548.4 |
|
1-комнатные |
29.90 — 52.70 |
14 932 060 — 21 765 100 |
350.5 — 525.2 |
|
2-комнатные |
42.60 — 78.60 |
14 904 342 — 29 020 950 |
300.1 — 488.9 |
|
3-комнатные |
56.70 — 99.20 |
18 313 590 — 44 700 640 |
303.7 — 455.2 |
|
4-комнатные |
84.50 — 110.10 |
38 212 080 — 47 331 990 |
422.7 — 455 |
Купить недвижимость можно по 100% предоплате, в рассрочку или ипотеку от банков-партнеров. Ставки по ипотечным программам начинаются от 10,4 % годовых, есть вариант получить специальные условия с субсидированной ставкой на первый год — под 0,11%. Минимальный первоначальный взнос для большинства программ составляет 15%, а срок кредитования до 30 лет.
Беспроцентную рассрочку застройщик предоставляет до конца строительства, с первоначальным взносом от 15%.
О дополнительных акциях можно узнать подробнее в офисе продаж.
Данные об условиях кредитования действительны на момент публикации статьи. Актуальную информацию вы всегда можете найти в карточке проекта.
Конкуренты
Юго-запад Москвы активно застраивается новыми домами, поэтому у покупателей новостроек довольно большой выбор. Те, кто ищут жилье для себя, могут рассмотреть вариант покупки в одном из новых проектов поблизости: ЖК EVER, ЖК «Обручева 30», квартал «AFI Park Воронцовский».
Те, кого интересует прежде всего сдача недвижимости в аренду, могут обратить внимание на Lunar или Nakhimov.
Lunar — проект застройщика «Меджиком» в Гагаринском районе. Он объединяет 3 корпуса высотой от 8 до 17 этажей. В корпусе В разместится бизнес-центр, в двух других будут лоты премиум-класса. На выбор покупателей представлены варианты площадью от 31 до 223 кв. м с отделкой white box или с дизайнерским ремонтом. На верхних этажах будут эксклюзивные помещения с каминами и террасами, в торцевых лотах предусмотрены лоджии. Здания планируют ввести в эксплуатацию до конца 2023 года.
Цены в Lunar:
|
Тип жилья |
Метраж, кв. м |
Цена, руб. |
Цена за кв. м, тыс. руб. |
|
студии |
31.60 — 33.90 |
23 500 000 — 28 224 000 |
743.7 — 840 |
|
1-комнатные |
41.70 — 51.10 |
31 191 600 — 47 500 000 |
733.9 — 973 |
|
2-комнатные |
82.70 — 112.60 |
68 000 000 — 101 555 000 |
711 — 1197.1 |
|
3-комнатные |
137.00 — 163.90 |
104 727 700 — 198 319 000 |
737 — 1247 |
|
4-комнатные |
231.40 |
312 390 000 |
1350 |
Nakhimov по адресу: Нахимовский пр-т, вл. 31 уже введен в эксплуатацию, но в продаже еще остается более 50 лотов площадью от 42 до 113 кв. м. Здесь построено 3 корпуса высотой от 19 до 24 этажей . Здания имеют необычную форму, поэтому и конфигурация помещений нестандартная: полукруглые стены, отсутствие прямых углов. Высокие потолки более 3 метров и большая площадь остекления делают помещения ещё более футуристичными.
Цены в Nakhimov:
|
Тип жилья |
Метраж, кв. м |
Цена, руб. |
Цена за кв. м, тыс. руб. |
|
1-комнатные |
46.90 |
14 070 000 |
300 |
Резюме
Nametkin Tower имеет множество преимуществ, в числе которых удачное расположение относительно транспортных артерий и объектов инфраструктуры: детских садиков, школ, поликлиник, супермаркетов. До метро можно дойти пешком, дорога в центр займет около 20 минут на машине или общественном транспорте. Всё это делает данный проект интересным вариантом для личного проживания.
Однако стоит обратить внимание на поэтажные планы этой новостройки — на каждом этаже размещается от 16 до 29 лотов (в зависимости от секции). Назвать этот проект семейным довольно сложно. Удобное расположение, круглосуточный сервис, собственная инфраструктура, включающая ресторан, магазин и spa-центр делает Nametkin Tower интересным прежде всего для инвесторов и молодой аудитории без детей.
Дата публикации 05 сентября 2023