Многофункциональный комплекс бизнес-класса «Наметкин Тауэр» возводят на юго-западе Москвы и планируют ввести в эксплуатацию уже в конце 2026 года. Почему этот проект может быть интересен инвесторам, каким он будет, в чем его плюсы и минусы – подробно расскажем в экспертизе Новострой-М.
Примечание
В статье перечислены только факты о проекте, собранные из открытых источников. В рубрике «Экспертиза проекта» Новострой-М решил отказаться от оценок и оценочных суждений: право делать выводы из описанных фактов мы предоставляем нашим читателям.
Возведением «Наметкин Тауэр» занимается cпециализированный застройщик «Гартея», который входит в группу компаний «Основа». Холдинг был основан в 2016 году и занимается не только девелопментом, но и инвестициями. В девелоперском портфеле компании на разных стадиях реализации сегодня находятся 20 жилых проектов в столичном регионе площадью около 2 млн кв. м, а также один реализованный проект в Чехии.
Согласно данным Единого ресурса застройщиков ГК «Основа» занимает 35 место в России по объему текущего строительства с 394,8 тыс. кв. м (данные на 1 апреля 2026 года). Практически весь объем (369,5 тыс. кв. м) – находится в Москве. В столице девелопер занимает 11 место в этом рейтинге. Со всеми актуальными проектами ГК «Основа» вы можете ознакомиться на сайте Новострой-М.
«Наметкин Тауэр» – это многофункциональный комплекс в районе Черемушки, который будет состоять из четырех разновысотных секций с подземным паркингом на 670 машин. В нем будет различная инфраструктура: включающая в себя медицинский центр, ресторан, а также зоны для отдыха и спорта, доступные только резидентам.
МФК «Наметкин Тауэр» в цифрах:
Проект «Наметкин Тауэр» разработало международное архитектурное бюро «Мекано́». По задумке авторов проекта легкие силуэты фасада с отделкой из разноцветного металла и увеличенная поверхность остекления должны придавать зданию современный и стильный архитектурный образ.





В каждой из четырех секций будут просторные дизайнерские лобби площадью до 320 кв. м. Там будут высокие потолки и панорамное остекление, а цветовая гамма интерьера будет повторять оттенки благородных металлов. В лобби предусмотрены мягкие рекреационные зоны, колясочные, комнаты для матери и ребенка и гостевые санузлы. Также резидентам будет доступен консьерж-сервис 24/7.



Двухуровневое благоустройство двора и локации на 25-ом этаже здания также разработало бюро «Мекано». Закрытый двор украсят разнообразные деревья и растения. Он будет сочетать в себе места для спокойного и активного отдыха. Здесь будут дорожки для бега и пеших прогулок, рампы для экстремальных видов спорта, отдельные маршруты для мам с колясками и места для тихого отдыха, где можно почитать книжку на свежем воздухе, пока ваш ребенок спит в коляске.



На 25 этаже будет приватная досуговая зона для резидентов общей площадью более 2,5 тыс. кв. м: лаунж-зона, зона для спорта и проведения мероприятий, а также пространство для игр детей и хобби-комната. Резидентам также будет доступна общественная гостиная с функциями коворкинга и бара, зал для проведения мероприятий и многоцелевой спортивный зал, теннисные и бильярдные столы.






Застройщик планирует установить в комплексе системы обеззараживания воздуха и умного дома. Попасть в помещение, как и управлять всеми настройками, можно будет с помощью мобильного приложения. Там же можно будет заказать услуги консьерж-сервиса, связаться с управляющей компанией, следить за показаниями счетчиков или оплатить квитанции за коммунальные услуги.
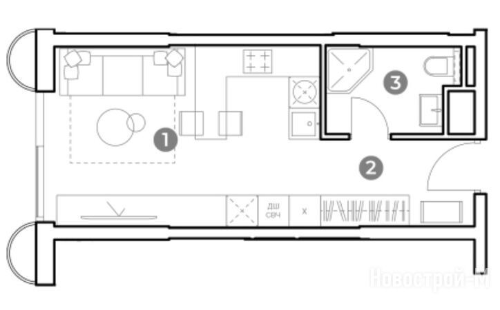
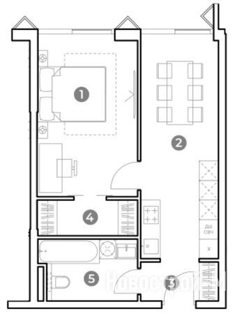
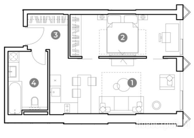
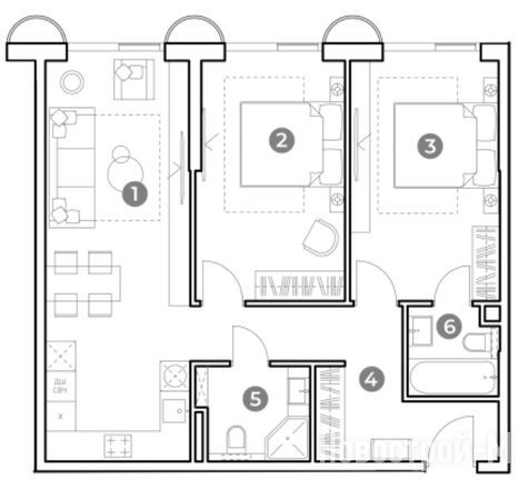
Покупателям доступны различные планировки в этом проекте: студии, одно-, двух-, трех- и четырехкомнатные варианты. Есть лоты с классическими или европланировками. Сейчас на официальном сайте проекта доступны 472 варианта (все данные в экспертизе актуальны на конец апреля 2026 года).
Площади в имеющемся предложении:
Высота потолков в лотах – 3,1 м. По умолчанию они сдаются без отделки, но есть возможность выбрать предчистовую.





«Наметкин Тауэр» расположен на юго-западе Москвы в районе Черемушки. Вокруг комплекса находятся четыре станции метро («Новые Черемушки», «Воронцовская», «Калужская» и «Зюзино») добраться до которых пешком можно от 14 до 20 минут.
Расстояние от МФК «Наметкин Тауэр» до станций метро:
Расстояние от комплекса до МКАД составляет около 10 км. Путь на машине займет около 25 минут. Примерно столько же займет дорога до Садового кольца. Время в пути может сильно измениться в час пик.
Экологическую ситуацию в Черемушках нельзя назвать идеальной. В рейтинге специалистов «Экостандарт» район получил оценку «удовлетворительно» и девять баллов, где 10 баллов – худший результат. Главным негативным фактором эксперты называют загруженные дороги. На низкий результат также повлияли высокая плотность населения и низкая площадь зеленых насаждений.
До ближайшего парка – Воронцовского – можно дойти за 11 минут, путь пешком до Битцевского лесопарка займет около 26 минут. На машине можно доехать за 6.
Из инфраструктуры в «Наметкин Тауэр» будет ресторан, супермаркет, спортивный и медицинский центры и СПА.
В районе много социальной инфраструктуры. Рядом с комплексом есть несколько государственных и частных школ. Например, два корпуса школы № 1948 «Лингвист-М» (Новочеремушкинская улица, 62 к2). Дойти до них можно за 8-9 минут. За 18 минут можно добраться до корпуса школы №15 (Херсонская улица, 30 к3).
Рядом расположено общеобразовательное частное учреждение «Школа Газпромбанка». Путь до нее пешком займет около 10 минут. Примерно столько же займет дорога до частной школы «Академия Топ» (Новочеремушкинская улица, 60 к1). В 7 минутах от «Наметкин Тауэр» находится частная школа «Бэксли» (Профсоюзная улица, 68 к4).
С детскими садами тоже нет проблем. Минут 10 займет путь до двух корпусов школы-детского сада №1 (Новочеремушкинская улица, 62 к3 и Профсоюзная улица, 45 к2). Путь пешком до дошкольного корпуса №3 школы №15 (Херсонская улица, 36) займет около 17 минут.
Неподалеку от комплекса также расположены несколько частных садов: «Лингвист М» (улица Наметкина, 11 к1), билингвальный детский сад «Дискавери» (Профсоюзная улица, 68 к1), частный детский сад «Бэксли» (Профсоюзная улица, 68 к4) и «Легаси кидс» (Херсонская улица, 43 к4). Путь пешком до них займет от 7 до 17 минут.
Продуктовые магазины в этой локации в основном представлены сетевыми супермаркетами «Дикси» (Улица Наметкина, 9), «ВкусВилл» (Профсоюзная улица, 68 к2), «Перекресток» (Улица Наметкина, 3), «Азбука вкуса» (Профсоюзная улица, 64/66). Но есть и другие: например, круглосуточный гастроном по адресу: улица Наметкина, 13Б. Все они находятся в шаговой доступности от комплекса.
Ближайшая детская поликлиника находится в 1,5 км от «Наметкин Тауэр». Это филиал №4 детской поликлиники №10. Дойти пешком до него можно за 17 минут, на машине – за 9. Для взрослых доступен филиал №1 поликлиники №22 (улица Цюрупы, 30/63). Дорога до него займет 15 минут пешком или 8 – на автомобиле.
Чтобы увидеть объекты, нажмите на соответствующую кнопку внизу карты.
В 350 метрах от комплекса находится фитнес-клуб World Class (улица Наметкина, 6 ст1). Дойти до него можно за 4 минуты. Чуть дальше (10 минут пешком) расположена студия растяжки, пилатеса и функциональных тренировок «Стронг Боди» (улица Архитектора Власова, 55). Рядом также расположен «Центр спорта и образования Самбо-70» Москомспорта (Новочеремушкинская улица, 64 к3). Путь пешком до него займет около 8 минут.
Безопасность
Как говорится в отчете отдела МВД России по району Черемушки, раскрываемость преступлений за 2025 год в локации выросла на 30,2%.
Ближайший участковый пункт полиции расположен по адресу: Новочеремушкинская улица, 64 к1. Путь от него до комплекса займет около 10 минут пешком или 5 минут – на машине.
Самый доступный лот в «Наметкин Тауэр» сейчас – студия площадью 23,20 кв. м за 12,1 млн рублей. Самый дорогой вариант – 4-комнатный лот общей площадью 110,10 кв. м. за 48 млн рублей.
Актуальные цены в МФК «Наметкин Тауэр»:
|
Тип жилья |
Метраж, кв. м |
Цена, руб. |
Цена за кв. м, тыс. руб. |
|
студии |
23.10 — 41.30 |
12 084 700 — 17 752 350 |
365 — 630 |
|
1-комнатные |
29.90 — 52.70 |
15 407 470 — 22 318 450 |
372.2 — 533.7 |
|
2-комнатные |
41.90 — 78.60 |
17 566 090 — 29 788 000 |
327.5 — 500 |
|
3-комнатные |
56.70 — 99.20 |
19 028 000 — 44 995 240 |
332.1 — 458.2 |
|
4-комнатные |
84.50 — 110.10 |
38 212 800 — 47 992 590 |
419 — 488 |
Девелопер предлагает различные варианты приобретения недвижимости:
Данные об условиях кредитования действительны на момент публикации статьи. Актуальную информацию вы всегда можете найти в карточке проекта.
Сейчас рядом с «Наметкин Тауэр» возводится еще три новостройки: ЖК «Стоун Грэйн», ЖК «Татум» и ЖК «Обручева 30».
ЖК «Стоун Грэйн» – проект класса «бизнес+» от застройщика «Стоун», который включает в себя две башни высотой 20-45 этажей. Всего в проекте будет 618 квартир. Сдача комплекса запланирована на 2029 год. Цены в проекте начинаются от 22 млн рублей. За эти деньги можно приобрести студию площадью 32 кв. м.
Актуальные цены в ЖК «Стоун Грэйн»:
|
Тип жилья |
Метраж, кв. м |
Цена, руб. |
Цена за кв. м, тыс. руб. |
|
студии |
32.00 — 35.80 |
22 527 261 — 24 345 545 |
640.3 — 713.6 |
|
1-комнатные |
41.70 — 47.40 |
27 173 910 — 31 893 134 |
606 — 705.1 |
|
2-комнатные |
60.80 — 118.90 |
36 625 056 — 98 494 382 |
527.2 — 828.4 |
|
3-комнатные |
85.50 — 179.40 |
51 759 734 — 130 513 500 |
557 — 729.9 |
|
4-комнатные |
117.20 — 161.10 |
71 416 289 — 133 608 285 |
574.7 — 829.4 |
ЖК «Татум» возводит застройщик Forma. Это проект бизнес-класса недалеко от станции метро «Калужская». В комплексе будет пять корпусов высотой от 16 до 35 этажей., ближайший срок сдачи – III квартал 2029 года. Самый бюджетный вариант в имеющемся предложении – студия площадью 29,3 кв. м. Она стоит 20,1 млн рублей.
Актуальные цены в ЖК «Татум»:
|
Тип жилья |
Метраж, кв. м |
Цена, руб. |
Цена за кв. м, тыс. руб. |
|
студии |
29.30 — 31.90 |
20 173 050 — 20 982 000 |
656.3 — 699.4 |
|
1-комнатные |
33.40 — 51.90 |
23 884 350 — 34 145 010 |
621.9 — 749.9 |
|
2-комнатные |
55.20 — 74.30 |
33 782 400 — 45 352 720 |
533.6 — 612 |
|
3-комнатные |
74.20 — 110.00 |
46 634 700 — 60 938 760 |
519.1 — 628.5 |
|
4-комнатные |
119.70 |
80 510 220 |
672.6 |
Недалеко от «Калужской» также строится дом бизнес-класса «Обручева 30». Это проект группы ЛСР. ЖК будет состоять из двух корпусов высотой 7-57 этажей. Сдать их застройщик планирует в IV квартале 2026 года.
Актуальные цены в ЖК «Обручева 30»:
|
Тип жилья |
Метраж, кв. м |
Цена, руб. |
Цена за кв. м, тыс. руб. |
|
студии |
23.60 — 25.70 |
16 515 034 — 28 750 461 |
679.9 — 1154.6 |
|
1-комнатные |
34.00 — 43.80 |
20 358 974 — 36 857 774 |
549.3 — 1039 |
|
2-комнатные |
52.60 — 85.50 |
27 356 713 — 63 147 735 |
488.9 — 869 |
|
3-комнатные |
79.70 — 107.30 |
56 360 173 — 81 405 398 |
707.2 — 848.8 |
Цены в ЖК стартуют от 20,1 млн рублей. За эти деньги продается студия без отделки площадью 23,60 кв. м.
Резюме
Плюсы «Наметкин Тауэр»:
Минусы:
Главный минус заключается в том, что «Наметкин Тауэр» – многофункциональный комплекс. Приобретая недвижимость в нем, нужно понимать, что она будет нежилой. Это имеет некоторые последствия: например, там нельзя прописаться, а налоги и тарифы за коммунальные услуги будут выше.
Бесспорным плюсом комплекса является его расположение – близость метро, развитая инфраструктура. Многое появится и в самом комплексе.
К проекту в первую очередь стоит присмотреться тем, кто рассматривает варианты для инвестиций. Близость метро, развитая инфраструктура и внутренний сервис МФК делают его привлекательным для потенциальных арендаторов. К тому же цены на лоты в «Наметкин Тауэр» в перспективе будут только расти.
Дата публикации 28 апреля