Emotion – новинка от ГК «Основа» на северо-западе Москвы, в локации «Большого Сити». Смелая архитектура, открытый бассейн и spa, бионические элементы дизайна в холлах: чем ещё привлекает покупателей этот проект, выяснял Новострой-М.
Примечание
В статье перечислены только факты о проекте, собранные из открытых источников. В рубрике «Экспертиза проекта» Новострой-М решил отказаться от оценок и оценочных суждений: право делать выводы из описанных фактов мы предоставляем нашим читателям.
Кто строит?
Девелопером проекта выступает ГК «Основа», которая работает на московском рынке недвижимости с 2016 года. Компания развивает жилые проекты в формате «умный дом», управляет объектами коммерческой недвижимости, инвестирует в развитие семейной досуговой инфраструктуры и инновации.
Реализация Emotion осуществляется в партнерстве с девелоперской компанией «Стилобат» (специализируется на недвижимости класса «делюкс»), архитектурным бюро Kamen и ПАО «Сбербанк».
Что строят?
Emotion возводится в «Большом Сити» и отличается футуристической архитектурой. Он объединяет 4 здания (максимальная высота — 28 этажей) и представляет собой городскую скульптуру в форме стереометрического оригами. Здания с одной стороны выглядят как единая пластина, но стоит взглянуть на них под другим углом, как можно будет увидеть сложную объемную фигуру.
Emotion — это 551 лот, современный офисный центр с конференц-залом и амфитеатром, торговые залы, удобный подземный паркинг с зоной хранения, общественные пространства и spa-центр с открытым бассейном и панорамными видами на столицу. Помимо 380 машино-мест на подземном уровне, подразумевается столько же мест на наземной стоянке возле здания.
Emotion в цифрах:
|
№ дома |
Лоты |
Энергоэфф. |
Машино-места |
Класс |
Срок ввода |
|
1 |
551 |
В |
380 |
Бизнес |
II кв. 2027 |
Архитектура и дизайн
Архитектурная концепция Emotion была разработана известным бюро Kamen Architects. Это настоящая городская скульптура, которая меняется в зависимости от того, с какой стороны ее рассматривать. Основной объем создают три башни. Их дополняет малоэтажный корпус, в котором будет сосредоточена почти вся инфраструктура, включая общественные пространства и spa-центр с открытым бассейном.









Чтобы сделать облик объекта запоминающимся, архитекторы применили целый ряд нестандартных решений:
Футуристический стиль продолжается и во внутреннем оформлении. Авторам проекта хотелось подчеркнуть дерзость своих идей и в то же время сделать уютное и теплое пространство «для своих».
Команда дизайнеров, вдохновленная природными цветами, формами и фактурами, разработала интерьер лобби и общественных пространств с круглыми арками, бионической мебелью и декором, металлическими поверхностями. Высота потолков в лобби будет достигать 4,7 метра.
Благоустройство






Для резидентов Emotion будет создано приватное пространство с зонами для отдыха, прогулок занятий спортом на свежем воздухе. На территории появятся встроенные фонтаны, детские игровые площадки с качелями и батутами, чилаут-зона, площадка для игры в петанк. Особую атмосферу создаст стильная подсветка. Во внутреннем дворе также организуют сад скульптур и места для занятий фитнесом.
Планировки
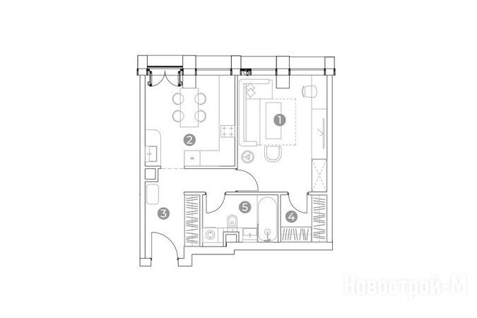
В Emotion представлено более 50 вариантов планировочных решений, среди которых компактные студии от 18 кв. м, популярный евроформат, а также просторные 4-комнатные предложения. Есть варианты с террасами, балконами, окнами в ванных, мастер-спальнями, гардеробными, а также двухуровневые лоты со вторым светом.





Площадь помещений:
Во всех помещениях предусмотрено панорамные остекление, которое позволяет наполнить пространство светом и открывает прекрасные виды на зелень парков и городские массивы.
Где строят?
Объект возводится в районе Хорошево-Мневники, на северо-западе Москвы. Основной магистралью в этой локации является Звенигородское шоссе, по которому можно быстро добраться в центр столицы. Ближайший от новостройки выезд на Звенигородскую эстакаду находится в 700 метрах, время в пути — 2-3 минуты.
Расстояние до ТТК менее 2 км, преодолеть его можно за 9 минут. До Садового кольца 7 км, без пробок это 15 минут езды, но в час пик дорога может занимать 35–40 минут. Расстояние до МКАД — 9,6 км, в зависимости от дорожной ситуации выехать на кольцевую можно за 15–18 минут.
Ситуация с общественным транспортом на данный момент сложная. Ближайшая станция МЦК «Хорошево» находится на расстоянии 1,8 км. Идти до нее пешком порядка 20 минут. Столько же времени займет прогулка до станции метро «Хорошёвская». В радиусе 2 км также находятся станции метро «Шелепиха», «Народное ополчение», «Полежаевская» — до любой из них можно дойти за 25 минут.
В перспективе рядом появится станция «Звенигородская» (проектное название – «Пресня») новой – перспективной – Рублево-Архангельской линии метро. Станция будет находиться возле пересечения улицы Шеногина, Шелепихинского шоссе и 1-го Силикатного проезда, то есть буквально в 5 минутах ходьбы от строящегося проекта. Для пассажиров станция может открыться в 2026–2027 годах. К этому времени новостройка также должна будет получить разрешение на ввод в эксплуатацию.
В 460 метрах от строительной площадки есть автобусная остановка, через которую проходят 4 маршрута, соединяющие Хорошево-Мневники с соседними районами и центром Москвы. Дорога до остановки займет около 5 минут.
За 22 минуты можно дойти до причала «Сердце столицы», откуда отправляются речные электрические трамваи — новый вид регулярного городского транспорта.
Экология
Экологическая обстановка в районе Хорошево-Мневники, где ведется строительство Emotion, оценивается экспертами EcoStandart как «Приемлемая». Здесь мало ощущается влияние производств, невысокая плотность населения и не слишком загруженные дороги. К тому же вокруг много парков:
В 600 метрах Москва-река, и в скором времени здесь должна появиться благоустроенная набережная, по которой также можно будет совершать прогулки.
Инфраструктура
В Emotion будет собственная торговая и развлекательная инфраструктура: магазины, салоны красоты, спортивные залы и большой spa-центр с открытым бассейном. Проектом предусмотрены также хобби-комната, зал для йоги, комната матери и ребенка и помещение для приходящего персонала, ресепшен-служба с круглосуточным режимом работы.
Объекты социальной инфраструктуры также работают в ближайших кварталах.
Ближайшие частные образовательные учреждения для детей — Sun School и AltAstra — находятся в 15 минутах ходьбы от новостройки (1,2 км). Столько же времени займет дорога до детсада Smile Fish на Шелепихинской набережной. До ближайшего муниципального детского сада — в школе № 1560, дошкольные корпуса «Знайка» и «Россиянка» — 1,5 км или 18 минут пешком. За 24 минуты можно дойти до дошкольного отделения школы № 141 имени Героя Советского Союза Рихарда Зорге (рядом со ст. МЦК «Хорошево»).
Общеобразовательная школа № 1253 расположена в 1,3 км, 16 минут пешком. Несколько корпусов школы № 1560 «Лидер» находятся вдоль ул. Мневники, расстояние до ближайшего — 1,4 км. Дойти можно за 17 минут. Около 2,2–2,5 км до общеобразовательных корпусов школы № 141 и школы № 1288, до них можно доехать на машине за 7–9 минут.
Новая школа с IT-полигоном и детский сад с бассейном строятся в 400 метрах от Emotion. Срок сдачи этих объектов намечен на конец 2024 года. Оба учебных корпуса войдут в состав школы № 1253.
Ближайшие к Emotion супермаркеты «Перекресток» и «Пятерочка» находятся на Шелепихинской набережной, в 15–20 минутах ходьбы. А за настоящим шопингом выходного дня можно отправиться в ТРЦ «Авиапарк», до которого всего 17 минут на машине.
Получить консультацию врача взрослые жители Emotion смогут в поликлинике №115, расположенной по адресу: ул. Демьяна Бедного, до нее 8–10 минут пешком или 6 минут на машине. Ближайшая детская поликлиника №93 находится на расстоянии 3 км, до нее можно доехать на автомобиле за 6 минут. Пройти обследование всей семьей можно в частной клинике «ABC-медицина», расположенной на ул. 1905 года, 17 — дорога на машине займет 10–12 минут.
Заниматься спортом жители Emotion смогут в собственном спортивном зале. А если захочется сменить обстановку, то можно посетить клуб Xfit в 16 минутах ходьбы, клуб «Pro Движение» — 18 минут пешком, студию Art Of Pilates — 19 минут пешком, Студию растяжки и пилатеса Ирины Мираж — 21 минута пешком. В самом здании, напоминаем, также будет spa-центр с бассейном и комната для занятий йогой.
Безопасность
Криминогенная обстановка в районе Хорошево-Мневники спокойная. Несмотря на внешнеполитические события, мобилизационные мероприятия и распространение коронавирусной инфекции, личному составу МВД успешно удавалось в 2022 году поддерживать общественный порядок. Число преступлений за этот период снизилось на 15%. Большая часть правонарушений приходится на статьи, связанные с хищением имущества.
Ближайшие отделения полиции расположены:
Цены и способы покупки
Старт продаж Emotion состоялся в начале сентября 2023 года, минимальный бюджет 18-метрового лота в тот момент составлял 9,69 млн руб. В середине декабря стоимость недвижимости в Emotion — от 10,8 до 88,7 млн рублей. Самые доступные лоты — по-прежнему 18-метровые студии, самый дорогой лот — трёхкомнатный с тремя гардеробными и двумя ванными комнатами. Популярные «евродвушки» можно приобрести за 17–23 млн рублей.
Цены в Emotion:
|
Тип жилья |
Метраж, кв. м |
Цена, руб. |
Цена за кв. м, тыс. руб. |
|
студии |
22.90 — 29.00 |
14 051 440 — 16 863 600 |
517.2 — 613.6 |
|
1-комнатные |
43.50 — 44.00 |
20 706 000 — 21 142 000 |
476 — 480.5 |
|
2-комнатные |
41.30 — 73.00 |
19 245 800 — 34 529 000 |
466 — 558.5 |
|
3-комнатные |
52.10 — 140.90 |
24 018 100 — 92 444 490 |
456 — 656.1 |
|
4-комнатные |
85.70 — 100.00 |
40 364 700 — 47 300 000 |
471 — 473 |
Покупатели могут оплатить недвижимость собственными или кредитными средствами, а также оформить беспроцентную рассрочку от застройщика. Рассрочка предоставляется на период до ввода объекта в эксплуатацию с первоначальным взносом от 50%.
Заключить ипотечный договор можно с одним из банков-партнеров. Срок кредитования до 30 лет, первоначальный взнос от 15–20%, стандартная ставка от 15,6% (Сбербанк). Есть возможность приобретения недвижимости в ипотеку от Альфа-банка с субсидией от застройщика: в течение первых 12 месяцев ставка по кредиту будет 0,11% годовых, далее — стандартная. Также есть вариант получения кредита без первоначального взноса. Оптимальный вариант ипотеки помогут подобрать в кредитном отделе застройщика.
Приобрести новостройку можно по программе Trade-in. Застройщик поможет с реализацией имеющейся недвижимости, а также зафиксирует стоимость приобретаемых лотов на срок до 30 дней.
Недавно были анонсированы специальные предновогодние предложения от ГК «Основа»:
Данные об акциях и условиях кредитования действительны на момент публикации статьи. Актуальную информацию вы всегда можете найти в карточке проекта.
Конкуренты
Emotion — необычный объект, ориентированный на аудиторию ценителей смелой архитектуры. Локация «Большого Сити» активно застраивается жильем. Ближе всего к Emotion возводятся такие новостройки, как Sydney City и «Level Причальный».
Sydney City — масштабный проект бизнес-класса, включающий в себя 33 жилых корпуса, а также объекты социальной инфраструктуры — школу и детский сад. Строительство ведется поэтапно. Уже введены в эксплуатацию первые три корпуса, на завершающей стадии еще четыре, ещё для трех готовится фундамент. Завершить строительство всех домов ГК ФСК планирует в 2028 году. В ЖК Sydney City можно приобрести квартиры площадью от 33 до 148 кв. м, с готовым дизайнерским ремонтом, с предчистовой отделкой или без отделки. Покупателям доступен большой выбор ипотечных программ, в том числе с субсидиями и господдержкой.
Цены в ЖК Sydney City:
|
Тип жилья |
Метраж, кв. м |
Цена, руб. |
Цена за кв. м, тыс. руб. |
|
студии |
30.30 — 41.70 |
29 380 120 — 36 512 520 |
875.6 — 1032.6 |
|
1-комнатные |
35.40 — 65.60 |
23 161 038 — 43 705 672 |
610.3 — 1090.2 |
|
2-комнатные |
43.00 — 78.20 |
26 406 056 — 63 537 500 |
525.8 — 1021.9 |
|
3-комнатные |
61.70 — 105.20 |
31 015 479 — 87 689 430 |
499 — 1016.1 |
|
4-комнатные |
90.50 — 156.40 |
55 834 178 — 165 909 120 |
596.5 — 1124.3 |
|
многокомнатные |
113.70 — 162.20 |
70 932 200 — 163 384 060 |
577.8 — 1055 |
ЖК «Level Причальный» от Level Group возводится в 7 минутах ходьбы от станции метро «Шелепиха». В ЖК будет 4 корпуса высотой до 33 этажей, названных в соответствии со сторонами света. Корпуса «Юг» и «Восток» планируют ввести в эксплуатацию до конца 2023 года, корпуса «Север» и «Запад» будут достроены в I квартале 2024 года. Квартирография комплекса представлена студиями, а также квартирами с 1–4 изолированными спальнями. Покупатели могут выбрать готовый дизайнерский ремонт, white box или лоты без отделки. Есть возможность оформить ипотеку и воспользоваться программами государственной поддержки.
Цены в ЖК «Level Причальный»:
|
Тип жилья |
Метраж, кв. м |
Цена, руб. |
Цена за кв. м, тыс. руб. |
|
многокомнатные |
131.00 — 134.00 |
105 361 901 — 114 366 287 |
786.3 — 873 |
Резюме
Emotion — амбициозный проект с впечатляющей архитектурой и функциональностью. Среди плюсов новостройки:
Emotion подойдет тем, кто приобретает недвижимость для дальнейшей сдачи в аренду: арендаторы оценят как близкое расстояние до метро, так и удобное сообщение с центром столицы и «Москвой-Сити».
Как вариант для собственного проживания Emotion подойдет амбициозным и активным людям, которые ценят комфорт, время и все привилегии современного бизнес-класса.
Также стоит отметить, что по соседству строятся масштабные проекты, что повышает конкуренцию среди желающих сдавать свои объекты в аренду.
Дата публикации 19 декабря 2023