В сентябре 2024 года был объявлен старт продаж ЖК Set в Можайском районе на западе Москвы. Квартал построят рядом с природным заказником «Долина реки Сетунь». Перспективная локация, собственная инфраструктура, близость зеленой зоны — чем еще интересен новый проект MR Group, изучил Новострой-М.
Примечание
В статье перечислены только факты о жилом комплексе, собранные из открытых источников. В рубрике «Экспертиза проекта» Новострой-М решил отказаться от оценок и оценочных суждений: право делать выводы из описанных фактов мы предоставляем нашим читателям.
Кто строит
Компания MR Group основана в 2003 году, сегодня она является одним из лидеров в девелопменте жилой и коммерческой недвижимости. Входит в топ-3 рейтинга РБК и в топ-5 рейтинга Forbes, неоднократный лауреат различных отраслевых премий. Все новостройки MR Group можно изучить по ссылке.
Что строят
ЖК бизнес-класса Set состоит из трех урбан-блоков, сейчас ведется строительство первого из них. Высота корпусов в нем — 18, 45 и 59 этажей. Также проект включает объекты инфраструктуры, в их числе — школа и детский сад, школа искусств, фитнес-клуб, медцентр и многое другое.



ЖК Set в цифрах*:
|
№ объекта |
Квартиры |
Энергоэффект. |
Машино-места |
Класс |
Срок сдачи в эксплуатацию |
|
1 |
1281 |
А |
495 |
бизнес |
III кв. 2028 г. |
*По данным проектной декларации
Архитектура и дизайн
Проект башен урбан-блока Set.1 разработан архитектурным бюро СПИЧ. Образ зданий отсылает к авангардной эстетике начала XX века. Фасады домов будут облицованы алюминиевыми кассетами с разным рельефом, это позволит придать поверхности объемную структуру.
Придомовая территория
Концепцию благоустройства разработали в студии ландшафтного дизайна L.BURO (Санкт-Петербург). Пространство двора первого урбан-блока вдохновлено скандинавским дизайном — архитектурные элементы органических форм сочетаются с дикорастущей растительностью. Структура дворового пространства подчеркивается большим количеством камней и скальных пород.
На территории разместятся двухуровневая игровая зона с горкой, песочницей, пещерами и скалолазными конструкциями, воркаут-площадка с тренажерами, небольшой водоем, площадка для занятий йогой. На кровле стилобата расположится лаундж-зона.
Предусмотрено всесезонное озеленение: хвойные и лиственные кустарники и деревья (в том числе голландский вяз, бальзамическая пихта, горная сосна, приречный клен), цветники. Специально для Set создан «сад светлячков» — по вечерам среди растений зажигаются сотни мерцающих огоньков.
Кроме того, запроектированы гостевые парковочные места — 50 на придомовой территории и шесть за ее пределами.







Безопасность и технологии
Территорию комплекса и паркинга покрывает система видеонаблюдения, также камеры установят в местах общего пользования и лифтах. Вход в подъезды будет осуществляться по биометрическим считывателям Face ID, доступ в паркинг — по автоматическому распознаванию номеров. Предусмотрена система автоматического пожаротушения. В каждом подъезде — от 2 до 4 скоростных лифтов с интеллектуальной системой обслуживания и распределением пассажиропотока.
Нежилые метры
В лобби разместятся зоны ресепшен и библиотеки, комната для проведения мероприятий, переговорная, колясочные, лапомойки, санузлы, постаматы.
В трехэтажной стилобатной части будут работать магазины, кафе, аптека, медцентр, центр культуры и досуга для подростков. Два подземных уровня займут паркинг на 495 машино-мест с местами для электрокаров, автомойками и постами для подкачки шин, кладовые.





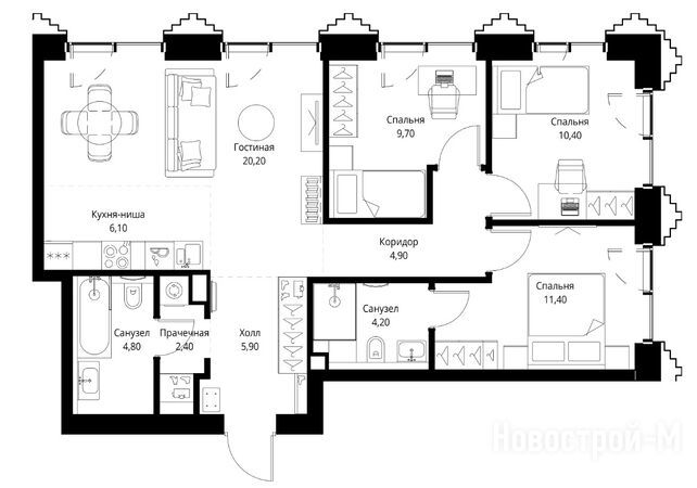
Квартиры и планировки
В первом урбан-блоке Set будет 1 281 квартира, от студий до многокомнатных. Квартиры в 1 и 2 секциях продаются без отделки, в 3 секции — с предчистовой отделкой MR Base. В середине ноября 2024 года в продаже представлено 233 квартиры без отделки.
Площадь студий — от 23,35 кв. м до 29,5 кв. м. Планировки квартир меньшей площади — линейные, большей площади — угловые.
1-комнатные квартиры представлены в евроформате. Планировки линейные, в некоторых есть мастер-спальни и гардеробные. Площадь таких квартир — от 34,5 кв. м до 45,8 кв. м. 2-комнатные квартиры также спроектированы в евроформате — две спальни и кухня-гостиная. Площадь лотов варьируется от 53,2 кв. м до 65,2 кв. м, планировки — линейные и угловые. Особенности некоторых планировок: мастер-спальни, гардеробные, гостевые санузлы.





В 3-комнатных квартирах тоже есть кухня-гостиная, площадь таких лотов — от 76,5 кв. м до 101,5 кв. м. Планировки — угловые и с окнами на три стороны света. В каждой «трешке» есть мастер-спальня, в некоторых предусмотрены гардеробные и прачечные.
Квартир с большим количеством комнат в середине ноября продавалось всего две. Площадь каждой из них — 102,1 кв. м. В них есть кухня-гостиная, мастер-спальня, гардеробная и еще четыре комнаты, в которых можно обустроить спальни или кабинеты. Окна таких квартир выходят на три стороны света.
Где строят
ЖК Set строится на Верейской улице в Можайском районе на западе Москвы, раньше здесь находились корпуса Московского радиотехнического завода (МРТЗ). Ближайшая станция метро — «Давыдково», расстояние до нее — 2 км.
Станции метро, время в пути от ЖК Set:
• метро «Давыдково» — 22 минуты пешком.
Недалеко от будущего ЖК есть автобусные остановки, можно доехать до метро «Озерная» или «Филевский Парк», а также до Киевского вокзала.
Дорога на автомобиле до «Москва-Сити» займет 15 минут, до Садового кольца — 20 минут, до «Сколково» — 12 минут.
Экология
Эксперты компании EcoStandard присвоили Можайскому району 6 баллов из 10, экологическая обстановка здесь оценивается как приемлемая.
Среди зеленых зон на территории района следует отметить часть природного заказника «Долина реки Сетунь» (рядом с которым и возводится ЖК Set), сквер Дубки, Козловский лес, Троекуровский лес, Мещерский парк.
Инфраструктура
В составе жилого комплекса будут построены детский сад на 450 мест и школа на 1 500 мест. Объекты инфраструктуры появятся и в стилобатной части.
Ближайший детский сад сейчас находится на Гжатской улице в 10 минутах ходьбы от ЖК Set, это частное учреждение под названием Rybakov Playschool («Рыбаков Плейскул»). Немного дальше, в корпусах ЖК «КутузовGRAD II», работают билингвальный детский сад Kotiki School и английский детский сад Sun School. Однако, согласно Яндекс.Картам, прямой дороги к ним нет, дорога пешком займет около 30 минут.
Ближайшие школы — корпуса №№1 и 4 Западного комплекса непрерывного образования (ЗКНО) на улицах Гродненская и Гжатская. До них можно дойти за 12-16 минут. Отметим, что и детские сады, и школы находятся по другую сторону улицы Верейская, то есть нужно переходить дорогу.
Ближайшая детская поликлиника находится на улице Артамонова, 6, это филиал №3 поликлиники №30. До нее почти 2,5 км.
Филиал №6 КДЦ №4 на Можайском шоссе находится в 2 км от ЖК Set. Если идти пешком, придется переходить не только Верейскую улицу, но и Можайское шоссе. Относительно недалеко расположены несколько платных клиник.
Если говорить о торговой инфраструктуре, продуктовых магазинов в локации достаточно. В здании бизнес-центра «Верейская Плаза 3» работает Spar, немного дальше (на Верейской, 5) — круглосуточный «ВкусВилл». Также рядом есть небольшие продуктовые магазинчики.
В бизнес-центре «Верейская Плаза 3» есть фитнес-клуб «СССР», он работает круглосуточно, дорога до него займет около 10 минут. До спортивного клуба World Class на Рябиновой улице пешком можно добраться за 25 минут, как и до еще одного клуба этой сети на Аминьевском шоссе. Около получаса займет дорога до клуба Keri Fit на Можайском шоссе.
Безопасность района
Можайский район не входит в рейтинг самых опасных районов Москвы. Согласно отчету начальника районного отдела МВД, в 2023 году в районе было зарегистрировано 1 125 совершенных преступлений, что на 3,6% меньше, чем в 2022 году. Число мошенничеств выросло на 46,4%, однако снизилось число краж и преступлений, совершенных в общественных местах.
Отдел МВД по Можайскому району расположен на улице Вересаева, до него 1,65 км или 20 минут пешком.
Цены и способы покупки
На старте продаж в начале сентября 2024 года самый недорогой лот в ЖК Set продавался за 10,9 млн рублей. К середине ноября цены немного снизились, самый бюджетный вариант — студия площадью 23,5 кв. м за 10,67 млн рублей.
|
Тип жилья |
Метраж, кв. м |
Цена, руб. |
Цена за кв. м, тыс. руб. |
|
студии |
22.50 — 31.90 |
17 267 600 — 22 238 125 |
647.6 — 816 |
|
1-комнатные |
31.70 — 72.44 |
18 332 800 — 38 783 800 |
444.8 — 773.5 |
|
2-комнатные |
49.07 — 80.90 |
25 665 024 — 47 477 600 |
440 — 680 |
|
3-комнатные |
75.18 — 132.84 |
36 405 556 — 68 410 550 |
453.2 — 697 |
|
4-комнатные |
97.41 — 120.70 |
47 691 936 — 65 522 080 |
471.8 — 578 |
|
многокомнатные |
102.90 |
48 280 680 — 48 543 075 |
469.2 — 471.8 |
Купить квартиру можно в ипотеку, кредиты предоставляют банки ВТБ, Абсолют, Альфа-Банк, Ак Барс Банк, Дом.рф, Уралсиб, ВБРР, Газпромбанк, Металлинвестбанк, МТС Банк, Промсвязьбанк, Россельхозбанк, Сбербанк и Совкомбанк. Другие способы покупки — 100-процентная оплата, рассрочка и trade-in.
Данные об условиях кредитования действительны на момент публикации статьи. Актуальную информацию вы всегда можете найти в карточке проекта.
Конкуренты
Рядом с ЖК Set строится еще один новый проект MR Group — мультиквартал бизнес-класса Veer, продажи в нем стартовали в августе 2024 года. Квартал состоит из нескольких урбан-блоков, в составе инфраструктуры предусмотрен 3-этажный фитнес-центр с бассейном.
Первая очередь проекта состоит из 5 башен высотой от 22 до 59 этажей. Квартиры продаются с предчистовой отделкой, цены — от 11 млн рублей за студию площадью 20,6 кв. м. Строящиеся дома будут сданы одновременно с первым урбан-блоком Set — в III квартале 2028 года.
Цены в ЖК Veer:
|
Тип жилья |
Метраж, кв. м |
Цена, руб. |
Цена за кв. м, тыс. руб. |
|
студии |
20.50 — 37.50 |
16 456 000 — 23 778 750 |
564 — 817.7 |
|
1-комнатные |
30.20 — 79.10 |
18 595 080 — 38 953 800 |
420.8 — 799 |
|
2-комнатные |
49.00 — 115.60 |
25 830 000 — 48 147 400 |
416.5 — 646 |
|
3-комнатные |
72.70 — 103.40 |
34 102 850 — 57 128 500 |
444 — 578 |
|
4-комнатные |
94.90 — 112.10 |
48 802 325 — 61 935 250 |
482.8 — 552.5 |
|
многокомнатные |
158.70 |
74 866 725 |
471.8 |
Еще одна новостройка поблизости — МФК бизнес-класса «Верейская 41». Это проект Группы «Самолет», его строительство вышло на финальную стадию — ввод в эксплуатацию должен состояться в начале 2025 года. Лоты продаются с отделкой и без отделки, цены — от 11,1 млн рублей за студию площадью 26,3 кв. м без отделки.
Цены в МФК «Верейская 41»:
|
Тип жилья |
Метраж, кв. м |
Цена, руб. |
Цена за кв. м, тыс. руб. |
|
студии |
22.03 — 31.16 |
20 689 320 — 24 586 170 |
762.8 — 943.6 |
|
1-комнатные |
31.88 — 57.14 |
23 299 086 — 42 120 294 |
597.2 — 849.3 |
|
2-комнатные |
49.28 — 98.49 |
30 684 029 — 64 451 818 |
575.9 — 770.2 |
|
3-комнатные |
62.43 — 110.19 |
40 366 177 — 70 874 208 |
575.5 — 721 |
|
4-комнатные |
98.82 — 125.55 |
61 578 201 — 78 964 045 |
553.5 — 628.9 |
Через дорогу от ЖК Set Группа «Родина» строит жилой комплекс премиум-класса «Родина Парк». Мультиформатный кластер возводится совсем рядом с долиной реки Сетунь и в 15 минутах ходьбы от станции метро «Давыдково».
Цены в ЖК «Родина Парк»:
|
Тип жилья |
Метраж, кв. м |
Цена, руб. |
Цена за кв. м, тыс. руб. |
|
студии |
29.70 — 174.50 |
23 966 368 — 221 944 700 |
690.1 — 1271.9 |
|
1-комнатные |
38.40 — 42.40 |
24 658 421 — 31 421 602 |
590.8 — 787.5 |
|
2-комнатные |
41.00 — 54.40 |
23 762 054 — 43 779 012 |
515.4 — 959.9 |
|
3-комнатные |
61.30 — 93.90 |
42 019 823 — 77 018 513 |
517.2 — 1018.8 |
|
4-комнатные |
85.30 — 125.60 |
63 394 795 — 122 476 060 |
699.9 — 1307.1 |
Проект включает три клубных дома высотой 9-11 этажей, таунхаусы, два небоскреба и деловой центр. Сейчас ведется строительство клубных домов, плановый срок их сдачи — I квартал 2027 года. Цены — от 24 млн рублей за 2-комнатную квартиру с одной спальней, кухней-гостиной и гардеробной площадью 42,3 кв. м.
Резюме
Плюсы ЖК Set:
- перспективная локация;
- наличие собственной инфраструктуры;
- разнообразные планировки;
- близость к природному заказнику «Долина реки Сетунь»;
- надежный застройщик.
Минусы проекта — неважная транспортная доступность для пешеходов, до ближайшей станции метро — больше 20 минут пешком. Кроме того, строительство ведется на территории бывшей промзоны, и в окружении еще есть объекты, напоминающие о промышленном прошлом.
Однако локация развивается: процесс редевелопмента промзон в ЗАО идет высокими темпами, а по соседству с ЖК Set возводятся еще 2 новостройки и есть 1 уже сданный в эксплуатацию комплекс с собственной инфраструктурой.
Дата публикации 26 ноября 2024