В начале 2021 года компания «Донстрой» вывела на рынок недвижимости одну из самых ожидаемых новинок — ЖК «Остров». Масштабный проект в южной части Мневниковской поймы в декабре 2021 года получил собственную станцию метро — «Терехово». «Остров» также входит в ТОП-10 самых продаваемых ЖК Москвы по данным Росреестра. Уникальное расположение в окружении Москвы-реки и парков, богатая собственная инфраструктура, разнообразные форматы жилья — почему ЖК «Остров» пользуется спросом у покупателей, разобрался Новострой-М.
Примечание
В статье перечислены только факты о ЖК, собранные из открытых источников. В рубрике «Экспертиза проекта» Новострой-М решил отказаться от оценочных суждений: право делать выводы из описанных фактов о жилом комплексе мы предоставляем нашим читателям.
Кто строит
«Донстрой» работает на рынке жилой недвижимости с 1994 года и является одним из ведущих девелоперов Москвы. Компания специализируется на строительстве проектов бизнес-, премиум- и элит-класса с уникальной архитектурой и применением инновационных технологий. В портфеле девелопера — 8,4 млн кв. м площадей. Сейчас компания ведет продажи в 15 жилых проектах, половина из которых активно строятся, с ними вы можете ознакомиться на сайте Новострой-М.
Что строят
Жилой комплекс «Остров» — это несколько десятков монолитных домов класса «бизнес» и выше, объединенных в кварталы, и три крупных социальных кластера. Общая площадь ЖК – 1,4 млн кв. метров, из которых 700 тыс. кв. метров приходится на жилье. Строительство ведется поэтапно, завершить проект планируется в 2025 году. Общая площадь застройки — 40 га, ее значительная часть отведена под объекты инфраструктуры и благоустройство.
ЖК «Остров» в цифрах
|
№ объекта |
Квартиры |
Энергоэффективность |
Количество машино-мест |
Класс |
Срок сдачи |
|
Остров-1 |
|||||
|
1 |
97 |
В |
556 |
бизнес |
IV квартал 2023 г. |
|
2 |
73 |
В |
- |
бизнес |
IV квартал 2023 г. |
|
3 |
87 |
В |
- |
бизнес |
IV квартал 2023 г. |
|
4 |
164 |
В |
|
бизнес |
IV квартал 2023 г. |
|
Остров-2 |
|||||
|
1 |
229 |
А |
1060 |
бизнес |
II квартал 2024 г. |
|
2 |
194 |
А |
- |
бизнес |
II квартал 2024 г. |
|
3 |
248 |
А |
- |
бизнес |
II квартал 2024 г. |
|
4 |
423 |
А |
- |
бизнес |
II квартал 2024 г. |
|
Остров-3 |
|||||
|
1 |
101 |
А |
248 |
премиум |
II квартал 2024 г. |
|
2 |
40 |
А |
- |
премиум |
II квартал 2024 г. |
|
3 |
47 |
А |
- |
премиум |
II квартал 2024 г. |
|
Остров-4 |
|||||
|
1 |
116 |
А |
1475 |
бизнес |
IV квартал 2024 г. |
|
2 |
94 |
А |
- |
бизнес |
IV квартал 2024 г. |
|
3 |
78 |
А |
- |
бизнес |
IV квартал 2024 г. |
|
4 |
180 |
А |
- |
бизнес |
IV квартал 2024 г. |
|
5 |
241 |
А |
- |
бизнес |
IV квартал 2024 г. |
|
6 |
349 |
А |
- |
бизнес |
IV квартал 2024 г. |
|
7 |
368 |
А |
- |
бизнес |
IV квартал 2024 г. |
|
Остров-5 |
|||||
|
1 |
137 |
А |
776 |
бизнес |
I квартал 2025 г. |
|
2 |
128 |
А |
- |
бизнес |
I квартал 2025 г. |
|
3 |
160 |
А |
- |
бизнес |
I квартал 2025 г. |
|
4 |
186 |
А |
- |
бизнес |
I квартал 2025 г. |
|
5 |
140 |
А |
- |
бизнес |
I квартал 2025 г. |
|
6 |
108 |
А |
- |
бизнес |
I квартал 2025 г. |
|
7 |
130 |
А |
- |
бизнес |
I квартал 2025 г. |
|
8 |
204 |
А |
- |
бизнес |
I квартал 2025 г. |
|
Остров-6 |
|||||
|
1 |
116 |
А+ |
795 |
бизнес |
I квартал 2025 г. |
|
2 |
119 |
А+ |
- |
бизнес |
I квартал 2025 г. |
|
3 |
124 |
А+ |
- |
бизнес |
I квартал 2025 г. |
|
4 |
188 |
А+ |
- |
бизнес |
I квартал 2025 г. |
|
5 |
116 |
А+ |
- |
бизнес |
I квартал 2025 г. |
|
6 |
452 |
А+ |
- |
бизнес |
I квартал 2025 г. |
Архитектура и дизайн
Генеральный проектировщик проекта — UNK Project. Жилой комплекс представляет собой смешанную квартальную застройку: шесть разноэтажных кварталов будут располагаться с обеих сторон улицы Нижние Мневники. Один из кварталов («Остров-3») представляет собой клубные резиденции с корпусами высотой 8-10 этажей и небольшим количеством квартир. Высота корпусов в других кварталах — от 5 до 25 этажей.





У каждого квартала будет свой уникальный облик, при этом их архитектура придерживается единой концепции. Для оформления фасадов используются кирпич, керамический камень, анодированное стекло.
Придомовая территория
На территории ЖК «Остров» появятся спортивные объекты, детские игровые площадки, парки, несколько маршрутов здоровья, места для отдыха и активного общения. Парковые пространства суммарно занимают 650 гектаров, по ним будут проложены маршруты для различных активностей: детский игровой, спортивный и рекреационный. Вся территория комплекса спроектирована как безбарьерная среда. Тротуары будут снабжены LED-подсветкой с датчиками движения. Будет работать прокат электросамокатов.





Безопасность и технологии
Территория жилого комплекса будет закрыта для посторонних, системы безопасности включают «умные» домофоны и распознавание лиц. Доставку документов и посылок для резидентов комплекса планируется осуществлять без курьеров — с помощью дронов. Кроме того, жителям «Острова» будет доступен сверхскоростной интернет стандарта 5G с онлайн-контролем всех устройств «умного дома». При этом заводить интернет-кабель в квартиры будет уже не нужно; передача данных будет бесшовной на территории всего квартала.
Нежилые метры
В подземном паркинге предусмотрены машино-места с возможностью установки зарядки для электрокаров, места для хранения велосипедов и отсеки для кладовых (площади келлеров от 3 до 13 кв. метров).
В каждом доме разместятся сервисы «на каждый день». В вестибюлях запроектированы лобби для приватного общения, зоны ожидания, места для хранения колясок, помещения для мойки лап домашним животным.
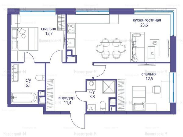
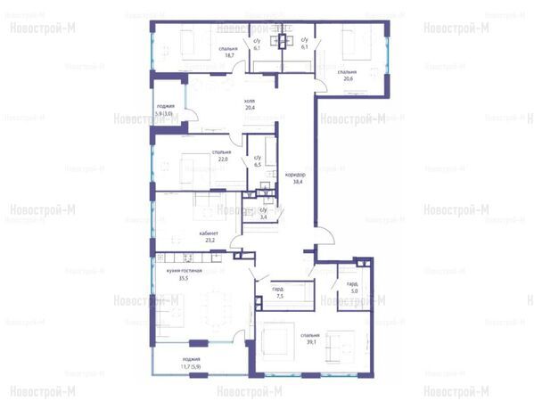
Квартиры и планировки
Жилой фонд ЖК «Остров» представлен разнообразными вариантами классического и евроформата от студий площадью 26,3 кв. м до семейных многокомнатных квартир (4-, 5-, 7-комнатных) и пентхаусов 255,5 кв. метра. Высота потолков — от 3,1 до 4,9 м. Жилье реализуется без отделки.







В большинстве квартир (в том числе в студиях) есть лоджии или балконы. Площадь кухонь даже в традиционных планировках — не меньше 12,9 кв. м. Уже в 1-комнатных лотах есть варианты с гардеробными.
В 2-комнатных квартирах появляются несколько санузлов и мастер-спальни, а также постирочные. В некоторых лотах с тремя и более комнатами одна из комнат обозначена как «кабинет», есть террасы и хозяйственные помещения. Есть варианты планировок с окном в ванной, с панорамным остеклением, просторной кухней-гостиной.
Большинство квартир в «Острове» имеют правильную форму, однако есть варианты с закругленными углами.
Где строят
ЖК «Остров» строится в районе Хорошево-Мневники на северо-западе Москвы. На территории новостройки в декабре 2021 года была открыта станция БКЛ метро «Терехово», также есть остановки общественного транспорта.
Для автомобилистов имеются выезды через Крылатский и Новый Карамышевский мосты на Рублевское и Звенигородское шоссе, неподалеку расположены Рублево-Успенское и Новорижское шоссе, по территории проекта проходит Северо-Западная хорда. Доехать до ММДЦ «Москва-Сити» можно за 10 минут, до Садового кольца — за 15 минут. Пока дома только строятся и не заселены, сложно сказать, будут ли затруднены выезды с территории новостройки.
Экология
В экологическом рейтинге от EcoStandard район Хорошево-Мневники получил 2 балла из 10 — это очень хороший показатель, экологическая обстановка в этом районе оптимальная. Большую часть района занимают зеленые зоны — Серебряный бор и Мневниковская пойма.
ЖК «Остров» находится на искусственном острове — Мневниковская пойма со всех сторон окружена парками и Москвой-рекой. Локация действительно уникальна для Москвы, поэтому новостройка пользуется стабильно высоким спросом у покупателей.
Инфраструктура
Собственная инфраструктура проекта самодостаточна: здесь построят детские сады и школы, кафе и супермаркеты, фитнес-центры. Это важно, поскольку от соседних районов новостройка отделена парками и рекой, дойти пешком до школы или супермаркета достаточно трудно.
Несмотря на то, что ранее Мневниковская пойма считалась депрессивной территорией, ее окружает развитая инфраструктура. Так, недалеко от ЖК «Остров» находятся несколько детских садов: в пределах 20 минут езды на автомобиле расположены дошкольные отделения школы №1133 на Крылатских Холмах, школ №№1584 и 887 на Рублевском шоссе, детские сады Happy Star, «Каллидус», «Страна Лукомория». На таком же расстоянии находятся учебные корпуса школ №№1584 и 887.
Важно отметить, что школы и детские сады заявлены застройщиком в составе собственной инфраструктуры ЖК. Так, в квартале «Остров-2» будет построена «Школа будущего» на 800 детей, она будет сертифицирована в соответствии с международным «зеленым» стандартом LEED. Также здесь возведут детский сад на 125 ребятишек.
Ближайшие детские поликлиники представлены филиалом №5 поликлиники №30 на Филевском бульваре (20 минут на автомобиле или больше одного часа на общественно транспорте) и поликлиникой №130 на Крылатских Холмах (15-20 минут на автомобиле или не меньше 27 минут на общественном транспорте).
Рядом с детской поликлиникой на Филевском бульваре находится филиал №5 взрослой поликлиники №195, на Крылатских Холмах — КДЦ №4 (15-20 минут на машине или 25 минут на общественном транспорте).
В пределах получаса езды на автомобиле от нашей новостройки есть несколько продуктовых магазинов — небольшие формата «у дома» и сетевые «Перекресток», «Пятерочка», «Мираторг», «Лента». Ближайшие торговые центры — «Крылатский», «Кунцево Плаза», «Рублевский», всего около 15 районных ТЦ, но они расположены далее 1,5 км от ЖК.
На территории ЖК «Остров» обещают организовать собственный спортивный кластер: здесь будут гребные базы, серфинг-центр, ледовая арена, хоккейная академия и прочее. За пределами жилого комплекса интерес представляют гребные клубы «Спарта» и SkiRowClub, до них можно дойти пешком за 25-30 минут, дорога на общественном транспорте займет примерно столько же времени. На автомобиле намного быстрее — всего 5 минут. Ближайшие к Мневниковской пойме фитнес-клубы – NeoFit, «Инь-Ян», «Олимпик Стар», EMS. У метро «Молодежная» располагаются World Class и VanderFit. Также в парке Крылатские холмы можно посещать школу мотокросса, велотрек, гольф-клуб, ледовый дворец, горнолыжный комплекс и теннисный клуб.
Безопасность
Район Хорошево-Мневники является достаточно благополучной локацией. В 2021 году районный отдел МВД фиксировал снижение числа правонарушений, совершенных в общественных местах и на улицах, в то же время выросло количество так называемых дистанционных преступлений — телефонных и интернет-мошенничеств.
Территория ЖК «Остров» находится под круглосуточной охраной, ближайшие отделения полиции расположены на Рублевском шоссе — это ОМВД по району Фили-Давыдково и два участковых пункта. Путь на автомобиле до них займет порядка 5-15 минут.
Цены
Продажи в ЖК «Остров» стартовали в начале 2021 года. Согласно статистике Росреестра, новостройка стабильно входит в топ-10 продаж. Сейчас цены на квартиры в этом проекте начинаются от 15,5 млн рублей за студию.
|
Тип жилья |
Метраж, кв. м |
Цена, руб. |
Цена за кв. м, тыс. руб. |
|
студии |
28.50 — 37.60 |
26 134 500 — 35 230 800 |
811 — 942 |
|
1-комнатные |
42.20 — 51.10 |
30 090 200 — 48 833 500 |
694.9 — 1058 |
|
2-комнатные |
63.60 — 100.90 |
42 444 000 — 85 180 500 |
639 — 1035 |
|
3-комнатные |
67.20 — 138.20 |
48 202 560 — 352 248 200 |
627.3 — 2617 |
|
4-комнатные |
100.50 — 221.20 |
70 115 220 — 443 703 000 |
609 — 2418 |
|
многокомнатные |
142.00 — 318.10 |
86 510 900 — 545 529 600 |
581 — 2411 |
Купить квартиру в ЖК «Остров» можно в ипотеку, финансовым партнером проекта является банк ВТБ. Действуют субсидированные программы со ставкой от 0,7% на первый год при первом взносе от 30%, минимальная ставка по семейной ипотеке составляет 5,7%, по программе господдержки-2020 — от 8,7% годовых.
Также возможна покупка квартиры в рассрочку и с использованием средств материнского капитала.
Конкуренты
ЖК «Остров» занял, похоже, самую удачную локацию не только в Хорошево-Мневниках, но и во всей Москве. В ближайшем окружении у нашей новостройки нет конкурентов.
Если искать новостройки в той же ценовой категории в Хорошево-Мневниках, следует обратить внимание на апарт-комплекс бизнес-класса Wellton Gold от концерна «Крост». Он представляет собой 21-этажное здание в составе квартала Wellton Park, рядом расположены образовательный центр и парки, ближайшая станция метро — «Народное Ополчение». Проект будет завершен в этом году, цены на апартаменты начинаются от 15,1 млн рублей за «евродвушку» площадью 45,1 кв. м.
Цены в ЖК Wellton Gold:
|
Тип жилья |
Метраж, кв. м |
Цена, руб. |
Цена за кв. м, тыс. руб. |
|
3-комнатные |
95.60 |
54 683 200 |
572 |
|
4-комнатные |
114.70 |
62 052 700 |
541 |
Еще одна соседняя новостройка уже сдана в эксплуатацию, это дом бизнес-класса Shome в районе Фили-Давыдково рядом с метро «Кунцевская». Два 23-этажных корпуса построены рядом с Мазиловским прудом, недалеко от Москвы-реки и нескольких парков. Квартиры реализуются с предчистовой отделкой white box, жилье в продаже от застройщика еще есть, стоимость можно узнать по запросу.
Цены в ЖК Shome:
|
Тип жилья |
Метраж, кв. м |
Цена, руб. |
Цена за кв. м, тыс. руб. |
Нет в продаже | |||
Более бюджетный вариант — ЖК «Академика Павлова» от ПИК. Новостройка комфорт-класса строится в районе Кунцево недалеко от станции метро «Молодежная», здесь уже введены в эксплуатацию несколько корпусов. Купить квартиру в этой новостройке можно от 9,2 млн рублей — такова стоимость студии с отделкой площадью 23,5 кв. м.
Цены в ЖК «Академика Павлова»:
|
Тип жилья |
Метраж, кв. м |
Цена, руб. |
Цена за кв. м, тыс. руб. |
Нет в продаже | |||
Резюме
Плюсы ЖК «Остров»:
- самодостаточный проект с собственной инфраструктурой;
- станция метро рядом с домом;
- расположение внутри МКАД в сочетании с природным окружением;
- отличная экологическая обстановка;
- разнообразные планировки;
- богатый выбор спортивных объектов поблизости.
Минусом проекта можно назвать то, что в Мневниковской пойме планируется строительство домов по программе реновации. Соседство с такими новостройками может показаться нежелательным.
«Остров» — действительно уникальный жилой комплекс. Удачное расположение, разнообразные планировки, насыщенная инфраструктура, надежный девелопер делают его интересным для любой категории покупателей, в том числе для инвесторов.