ЖК «Монблан» строится в районе Замоскворечье недалеко от станции метро «Павелецкая». Камерный элитный проект в историческом центре Москвы на Шлюзовой набережной, видовые квартиры, собственный двор-парк в стиле альпийской долины — эти и другие особенности нового комплекса от ГК «Галс-Девелопмент» изучил Новострой-М.
Архитектура, дизайн, благоустройство
Примечание
В статье перечислены только факты о проекте, собранные из открытых источников. В рубрике «Экспертиза проекта» Новострой-М решил отказаться от оценок и оценочных суждений: право делать выводы из описанных фактов мы предоставляем нашим читателям.
ГК «Галс-Девелопмент» работает с 1994 года, сегодня это один из крупнейших российских застройщиков. Девелопер занимается строительством жилой и офисной недвижимости, в его портфеле — проекты в Москве и Подмосковье, Санкт-Петербурге, Казани и Сочи. Со всеми ЖК вы можно ознакомиться по ссылке.
Элитный жилой комплекс «Монблан» — это шесть секций высотой от 7 до 27 этажей. Предусмотрены двухуровневый подземный паркинг и различные общественные пространства. Ввод в эксплуатацию запланирован на I квартал 2028 года.
ЖК «Монблан» в цифрах:
Авторы проекта — архитектурное бюро «Спич». Жилой комплекс состоит из шести секций высотой 7-17-27 этажей, самая высокая из них станет новой высотной доминантой района — «поворачивающаяся» форма, напоминающая кристалл, со стеклянными фасадами и окнами в пол.







Ключевые архитектурные решения — натуральный камень, бетон, стекло — отсылают к заснеженным, горным озерам и альпийским лугам.
Внутренний двор в стиле альпийской долины разработан ландшафтным бюро Scape. Площадь двора — почти 7 тыс. кв. м, здесь высадят вечнозеленые ели и сосны, красный клен и липу, магнолии, анемоны и гортензию сорта Mont Blanc. Особенностью проекта озеленения станет галерея берсо — аллея под зеленым сводом, который составляют переплетенные ветви деревьев и кустарников.
Парковая часть начнется с амфитеатра — пространства для мероприятий. В глубине парка разместятся крупный плейхаб для детей разных возрастов, спортивная площадка, прогулочные дорожки, коворкинг.




На первых этажах корпусов запроектированы колясочные и санузлы. Подземный паркинг займет два этажа, он рассчитан на 267 машино-мест, в том числе 25 — созависимых (двухместных). Там же есть места для хранения велосипедов.
Безопасность жителей обеспечат система контроля доступа, сигнализация, видеодомофоны, камеры наблюдения, противопожарные системы.
Система «Умный дом» позволяет идентифицировать номер автомобиля при въезде, также можно бесконтактно попасть в подъезд по метке в смартфоне.
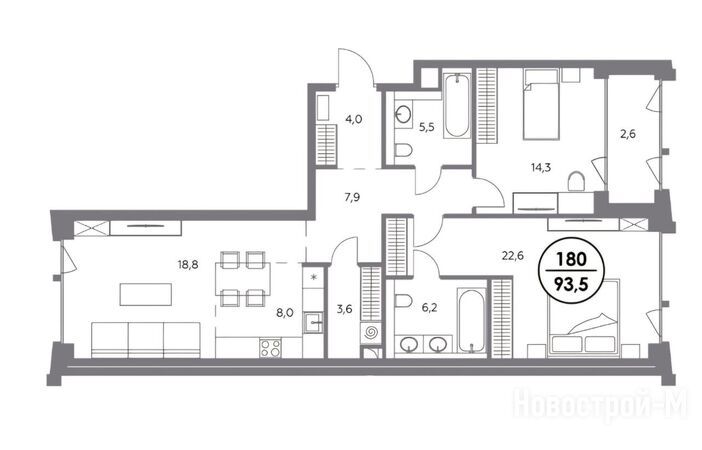
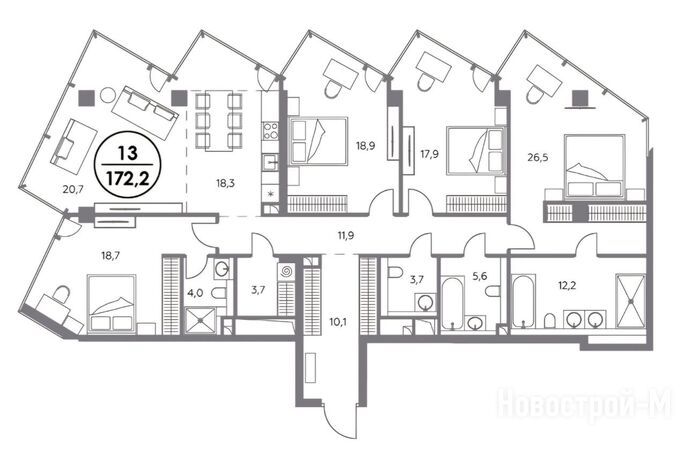
Важная особенность проекта: в «Монблане» нет студий. Здесь запроектированы квартиры от 1-комнатных площадью 47,4 кв. м до пентхаусов площадью от 171 кв. м.





В первой половине декабря 2025 года для покупки доступны квартиры с количеством спален от 1 до 4 площадью от 50 до 173 кв. м. В каждой квартире есть гардеробные, другие особенности планировок: кухни-гостиные, мастер-спальни, лоджии, террасы, окна на две или три стороны. Часть планировок имеют неправильную форму, жилье продается без отделки.
ЖК «Монблан» строят на участке площадью 1,47 га на Шлюзовой набережной в районе Замоскворечье (ЦАО), рядом с Садовым кольцом. Проект обладает хорошей транспортной доступностью.
Станции метро, время в пути от ЖК «Монблан»:
Дорога на машине до Кремля займет 10 минут по набережным.
Эксперты компании EcoStandard оценивают экологическую обстановку в Замоскворечье как удовлетворительную — 3 балла из 10 по интенсивности воздействия вредных факторов.
Территорию района пересекает Садовое кольцо, что уже само по себе является источником шума и загазованности. В Замоскворечье нет действующих промышленных предприятий, но и крупных зеленых зон тоже нет — только Павелецкий парк и небольшие скверы.
Первые этажи ЖК «Монблан» займут коммерческие помещения, где откроются, в частности, кафе, продуктовые магазины и другие объекты. В лобби предусмотрен клабхаус — пространство для рабочих и дружеских встреч, с библиотекой и кофе-поинтом. Для юных резидентов будет работать детский клуб.






Клубный формат проекта не предполагает наличие собственных школ и детских садов, но всё необходимое есть рядом с жилым комплексом.
Совсем рядом, на Шлюзовой набережной в ЖК «I`m на Садовом», работает билингвальный частный детский сад I`m Preschool. В 5-м Монетчиковском переулке (17 минут пешком или 6 минут на авто) расположен частный детсад «Планета детства» — с углубленным логико-математическим развитием и погружением в английский язык с носителями языка.
Ближайшие муниципальные детские сады — дошкольное отделение школы №1259 в 1-м Новокузнецком переулке (19 минут пешком или 7 минут на машине) и дошкольное отделение школы №627 на Садовнической улице (14 минут пешком или три минуты на машине).
Ближе других к нашей новостройке расположена частная школа «Чуланчик», она находится на Озерковской набережной в 12 минутах ходьбы или 6 минутах на машине, это авторская школа, в которой также есть группы дневного пребывания для детей от 2,5 до 4,5 лет с занятиями по методике Монтессори.
Корпус общеобразовательной школы №1259 в 5-м Монетчиковском переулке находится в 16 минутах ходьбы или 6 минутах на машине.
С муниципальными поликлиниками ситуация следующая — ближайшая детская поликлиника расположена в Большом Строченовском переулке, этот филиал №3 поликлиники №38, до него 20 минут пешком или 8 минут на машине, там же находится филиал №1 поликлиники для взрослых №68. Впрочем, рядом с «Монбланом» есть несколько частных клиник, которые намного больше подходят жителям элитных домов.
Рядом с новостройкой есть различные магазины, в том числе сетевые супермаркеты и небольшие продуктовые магазинчики. Возле метро «Павелецкая» работает ТРЦ «Павелецкая Плаза» с супермаркетом «Перекресток», множеством магазинов и фудкортом. А вокруг торгового центра расположен парк с новогодней елкой.
Для желающих заняться спортом неподалеку от «Монблана» есть спортклуб Reeboot East и фитнес-клуб «Мистер Шпагателло».
Безопасность района
Район Замоскворечье — это центр Москвы, здесь действуют повышенные меры безопасности, установлено много уличных видеокамер. Согласно информационно-аналитической записке начальника районного ОМВД, в 2024 году здесь на 1,3% снизилось число зарегистрированных преступлений — в основном за счет правонарушений небольшой тяжести.
ЖК «Монблан» строят недалеко от железной дороги и Павелецкого вокзала, рядом с которым есть хостелы, отели и арендные квартиры для приезжих, это может доставлять беспокойство.
Жилой комплекс будет находиться под защитой, но полезно знать, что ближайшие пункты полиции находятся на ул. Бахрушина, 13 (ОПОП ЦАО №19, 16 минут пешком) и на ул. Народная, 15/1 (21 минута пешком). Районный отдел МВД расположен на ул. Пятницкая, 49 стр. 1 (24 минуты пешком).
Продажи квартир в ЖК «Монблан» начались в апреле 2024 года, на старте продаж квартиру можно было купить по цене от 36,1 млн рублей. В первой половине декабря 2025 года цены начинаются от 48 млн рублей за 1-комнатную квартиру площадью 47,4 кв. м.
Актуальные цены в ЖК «Монблан»:
|
Тип жилья |
Метраж, кв. м |
Цена, руб. |
Цена за кв. м, тыс. руб. |
|
1-комнатные |
47.40 — 72.50 |
48 035 800 — 88 550 000 |
860.4 — 1631 |
|
2-комнатные |
83.20 — 111.60 |
81 412 000 — 160 804 000 |
921.1 — 1795.2 |
|
3-комнатные |
113.30 — 137.60 |
102 409 900 — 196 651 200 |
888.7 — 1544.8 |
|
4-комнатные |
164.40 — 174.20 |
175 469 900 — 251 608 800 |
1007.6 — 1528.6 |
|
многокомнатные |
227.20 |
527 204 000 |
2320.4 |
Купить квартиру можно в ипотеку, в том числе по семейной программе под 6% годовых. Доступна ипотека от застройщика:
Ипотеку предоставляют банки ВТБ и Московский кредитный банк.
Данные об условиях кредитования действительны на момент публикации статьи. Актуальную информацию вы всегда можете найти в карточке проекта.
Недалеко от Павелецкого вокзала есть еще несколько новостроек — готовых и строящихся.
Проект Voxhall от Группы «Эталон» уже практически сдан в эксплуатацию, это четыре корпуса бизнес-класса высотой до 21 этажа с подземным паркингом и коммерческими помещениями. Предусмотрен собственный детский сад. Цены на квартиры — от 16,7 млн рублей за студию площадью 22,6 кв. м.
Актуальные цены в ЖК Voxhall:
|
Тип жилья |
Метраж, кв. м |
Цена, руб. |
Цена за кв. м, тыс. руб. |
| квартиры | |||
|
1-комнатные |
41.10 — 53.80 |
38 901 923 — 51 788 268 |
940.1 — 1061.5 |
|
2-комнатные |
59.20 — 79.50 |
46 909 634 — 65 874 063 |
590.1 — 1012.8 |
|
3-комнатные |
71.00 — 125.30 |
47 450 490 — 99 258 421 |
572.6 — 1070.7 |
|
4-комнатные |
86.30 — 151.50 |
60 357 419 — 166 394 930 |
699.4 — 1098.3 |
|
многокомнатные |
134.70 — 140.50 |
109 432 884 — 159 330 649 |
812.4 — 1134 |
| помещения | |||
|
студии |
22.60 — 26.20 |
16 706 262 — 28 155 846 |
730.3 — 1091.3 |
|
1-комнатные |
41.20 — 48.10 |
27 409 885 — 39 904 005 |
608.8 — 932.3 |
|
2-комнатные |
59.00 — 75.80 |
35 156 439 — 55 811 790 |
560.5 — 924.5 |
|
3-комнатные |
85.20 — 125.10 |
64 559 048 — 108 360 561 |
757.7 — 866.2 |
ЖК High Life от ГК «Пионер» относится к премиум-классу, он состоит из шести башен высотой от 24 до 47 этажей, три из них уже сданы. Для резидентов предусмотрена клубная инфраструктура. Цены на квартиры — от 25,4 млн рублей за студию с отделкой площадью 23,9 кв. м.
Актуальные цены в ЖК High Life:
|
Тип жилья |
Метраж, кв. м |
Цена, руб. |
Цена за кв. м, тыс. руб. |
|
1-комнатные |
23.90 — 38.40 |
25 741 485 — 35 930 112 |
892 — 1193.1 |
|
2-комнатные |
35.40 — 92.40 |
34 858 026 — 103 598 880 |
650.7 — 1245.2 |
|
3-комнатные |
70.50 — 164.40 |
57 206 520 — 212 181 290 |
653.1 — 1385.9 |
|
4-комнатные |
100.40 — 223.20 |
68 512 960 — 335 715 120 |
612.6 — 1574.7 |
|
многокомнатные |
138.50 — 321.40 |
203 581 150 — 363 728 380 |
1131.7 — 1469.9 |
ЖК «MYPRIORITY Павелецкая» от ГК «Гранель» — это два корпуса бизнес-класса высотой от 8 до 28 этажей, первый корпус планируется сдать в IV квартале 2026 года.
Актуальные цены в ЖК «MYPRIORITY Павелецкая»:
|
Тип жилья |
Метраж, кв. м |
Цена, руб. |
Цена за кв. м, тыс. руб. |
|
студии |
30.23 — 35.85 |
24 178 774 — 25 278 808 |
679.1 — 836.2 |
|
1-комнатные |
38.02 — 58.29 |
26 360 315 — 34 882 726 |
574.5 — 703.1 |
|
2-комнатные |
62.26 — 95.14 |
35 432 055 — 53 256 398 |
528.3 — 574.5 |
|
3-комнатные |
70.23 — 89.64 |
41 381 641 — 50 021 328 |
530.3 — 589.7 |
|
4-комнатные |
103.30 |
54 577 845 |
528.3 |
Собственная инфраструктура сосредоточится на первых этажах, появится подземный паркинг с кладовыми. Самый бюджетный лот — студия без отделки площадью 30,23 кв. м за 24 млн рублей.
Резюме
Плюсы ЖК «Монблан»:
Минусы:
Замоскворечье — это центр столицы, ждать, что жилье здесь будет хотя бы относительно недорогим, нет смысла. Зато «Монблан» — по-настоящему камерный проект (всего 341 квартира в 6 секциях) с собственным парком. Рядом расположены Водоотводный канал Москвы-реки, на который будут выходить часть квартир, и Павелецкий парк, а также множество исторических и других достопримечательностей.
«Монблан» подойдет семьям любого состава, в том числе без детей. Это хорошее вложение в недвижимость, квартира в центре Москвы — это и престижно, и отличный актив.
Дата публикации 09 декабря