Комплекс апартаментов бизнес-класса «Level Стрешнево» – проект застройщика Level Group, расположенный в СЗАО Москвы, в районе Покровское-Стрешнево. В его составе – три 25-этажные башни с подземным паркингом. Апарт-комплекс примечателен тем, что находится у воды, имеет собственную благоустроенную набережную, а 90% всех апартаментов являются видовыми. Новстрой-М изучил проект и подробно рассказывает о его достоинствах и недостатках.
Примечание
В статье перечислены только факты о ЖК, собранные из открытых источников. В рубрике «Экспертиза проекта» Новострой-М решил отказаться от оценок и оценочных суждений: право делать выводы из описанных фактов о жилом комплексе мы предоставляем нашим читателям.
Кто строит
Девелопер проекта – Level Group – компания, которая занимается возведением как жилой, так и коммерческой недвижимости. Среди релизованных проектов – ЖК «Level Кутузовский», международная школа для одаренных детей «Летово», бизнес-центр класса А Wall Street возле станции метро «Добрынинская» в центре Москвы.
Все проекты, над которыми девелопер работает сегодня, доступны на сайте Новострой-М.
Что строят
Апарт-комплекс «Level Стрешнево» – это три 25-этажные монолитные башни, в которых запроектировано 745 апартаментов бизнес-класса. Проект распололагается на стрелке Москвы-реки и реки Сходни.
Все три трапецевидные башни – ««Север», «Запад » и «Юг» – застройщик планирует сдать почти в одно и то же время: ключи от апартаментов без отделки собственники получат в I квартале 2022 года, с отделкой – во II квартале 2022 года.
Архитектура и дизайн. Основная «фишка» проекта – уникальная форма окон. В каждом номере комплекса застройщик создал радиусное панорамное остекление, которое увеличивает угол обзора до 270%. Практически все апартаменты (90%) выходят на Строгинскую пойму.
Все 3 башни ЖК «Level Стрешнево» имеют округлую форму и располагаются в шахматном порядке, чтобы не загораживать виды из окон и обеспечивать высокий уровень инсоляции всем жильцам.
Технология строительства – монолит, несущие стены в номерах отсутствуют, что дает простор для создания планировки на свой вкус.
Придомовая территория. По информации, расположенной на сайте застройщика, в «Level Стрешнево» планируют создать внутренний двор-сад площадью 3,6 га. Там построят 2 детские площадки для маленьких жильцов разных возрастных групп, высадят более 400 деревьев и кустарников. Также появится сад с травами и зеленые холмы, которые призваны создать атмосферу загородной жизни в мегаполисе.
В 40 метрах от ЖК будет располагаться 600-метровая благоустроенная набережная и эко-парк.





Нежилые метры. В комплексе построят подземный паркинг, рассчитанный на 220 машино-мест. На первых этажах башен запроектированы помещения под коммерческие нужды. Со временем там появятся магазины, бытовые службы и все необходимые жильцам сервисы.
Квартиры и планировки
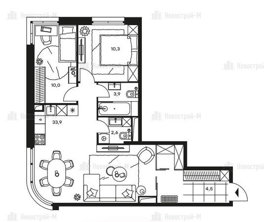
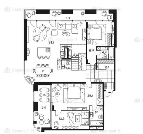
Три башни, входящие в состав комплекса, рассчитаны на 745 апартаментов площадью от 23,3 кв. м до 208,7 кв. м. Еще одна особенность проекта – оригинальные форматы номеров. Среди них – пентхаусы с террасой (панорамный вид, терраса площадью до 14,6 кв. м, второй свет, 6-метровые потолки). Апартаменты с патио, в которых есть отдельный вход и тоже высокие потолки.
Более привычные форматы апартаментов, которых в комплексе большинство, имеют хорошо продуманные, классические или европланировки с комнатами квадратной или прямоугольной формы.






Апартаменты сдаются покупателям в трех вариантах: без отделки, с предчистовой отделкой white box или с готовым ремонтом в стилях Modern и Classic.
Где строят
ЖК «Level Стрешнево» возводится на северо-западе Москвы, в районе Покровское-Стрешнево.
Ближайшая станция метро – Тушинская, до нее 23 минуты пешком. За такое же время можно дойти до станции МЦД-2 «Трикотажная».
Рядом с новостройкой (около 500 метров) проходит Волоколамское шоссе. По нему без пробок до центра можно добраться за 20-25 минут. Однако стоит иметь в виду, что трасса довольно загруженная.
Экология
Экологическая обстановка в районе Покровское-Стрешнево вполне удовлетворительная: по данным компании EcoStandard, у локации 3 балла из 4 возможных.
Апарт-комплекс «Level Стрешнево» окружен зелеными зонами: это и парк «Братцево», и ландшафтный парк «Митино», и парк «Покровское-Стрешнево», и северный берег Строгинской поймы.
Картину немного омрачает близкое соседство с промышленной зоной «Трикотажная», где расположены несколько не самых полезных производств.
Инфраструктура
Что касается собственной инфраструктуры, то на первых этажах «Level Стрешнево» разместятся магазины, кафе и другие предприятия сферы услуг.
Формат апарт-комплексов не предусматривает создание социальной инфраструктуры на территории ЖК. И проект Level Group не исключение.
Собственной школы и детского сада не будет. Однако до этих объектов, расположенных в районе, можно добраться пешком, на автомобиле или на общественном транспорте.
До нескольких ближайших школ можно дойти за 20 минут.
Школы
Столько же времени займет дорога до 1-2 детских садов.
Детские сады
Взрослая и детская поликлиники также находятся по другую сторону Волоколамского шоссе. Время в пути пешком – около 15-20 минут.
Поликлиники
Вокруг новостройки расположено большое количество сетевых супермаркетов: «Пятерочка», «Магнит», «Перекресток», «Лента».
Магазины
А вот спортивная инфраструктура вокруг ЖК пока не очень развита. До ближайшего фитнес-клуба придется добираться на автотомбиле или на общественном транспорте.
Безопасность
Покровское-Стрешнево считается довольно спокойным районом, потенциально опасных объектов рядом с «Level Стрешнево» нет. Ближайшие отделения полиции – в 20 минутах ходьбы от ЖК.
Цены
Продажи в проекте стартовали в конце декабря 2019 года. Тогда самый недорогой номер можно было приобрести за 4,1 млн рублей. Сейчас цены начинаются от 5,1 млн рублей.
Цены в ЖК «Level Стрешнево»
|
Тип жилья |
Метраж, кв. м |
Цена, руб. |
Цена за кв. м, тыс. руб. |
Нет в продаже | |||
Апартаменты в проекте продаются по старым правилам, то есть без эскроу-счетов. Покупатели также могут оформить сделку дистанционно.
ЖК аккредитован крупнейшими российскими банками – выгодные предложения по ипотеке есть у «Газпромбанка», «СМП банка» и «Возрождения».
Конкуренты
Других апарт-комплексов, которые относятся к бизнес-классу, поблизости нет. Единственный конкурент «Level Стрешнево» – комплекс апартаментов комфорт-класса «Движение. Тушино» от ГК ФСК.
Цены там стартуют от 5,3 млн рублей. Расположение комплекса заметно менее выигрышное: Волоколамское шоссе находится слишком близко, а вода – намного дальше.
Цены в ЖК «Движение. Тушино»
|
Тип жилья |
Метраж, кв. м |
Цена, руб. |
Цена за кв. м, тыс. руб. |
Нет в продаже | |||
Резюме
Плюсы ЖК «Level Стрешнево»:
– довольно демократичные для бизнес-класса цены на апартаменты;
– близость воды, благоустроенная набережная;
– радиусное панорамное остекление, живописные виды из окон;
– крупные парки неподалеку от комплекса.
К минусам новостройки можно отнести отсутствие детской инфраструктуры. Однако для тех, кто выбирает апартаменты, это не будет сюрпризом – формат апарт-комплексов не подразумевает строительства собственных школ и детских садов.
Автор: Анна Лябегина
Комментирует Денис Бобков, генеральный директор аналитической и консалтинговой компании «Недвижимость-Профи»
Учитывая, что в комплексе предполагается 747 апартаментов, я бы назвал его «Боинг». В нём имеются двухэтажные (двухуровневые) пентхаусы с панорамным остеклением (по аналогии с верхней палубой на этой модели Боинга), отличный комфорт во время полёта, все удовольствия бизнес-класса. Правда, на Боинге нет специальной инфраструктуры для детей, а покупки вы можете совершить в нашем магазине на борту у бортпроводников, т.е. в пяти коммерческих помещениях. Но обо всём по порядку.
Расположение у стрелки, т.е. слиянии двух рек всегда считалось престижным. Вспомните хотя бы Нижний Новгород, Кремль в котором располагается как раз с видом на две реки. В данном случаев, конечно, речь идёт не о Волге с Окой, но виды открываются тоже неплохие, и девелопер максимально использовал это преимущество. Три башни поставлены в шахматном порядке и развёрнуты таким образом, чтобы обеспечить лучшие видовые характеристики. Для этого же использовано моллированное остекление (по-русски — гнутые стёкла). Не уверен, что в данном случае такое остекление — лучшее решение, ведь если эти окна не открываются, мыть их придётся снаружи с помощью альпинистов, что дополнительно удорожит стоимость эксплуатации. Сделать нестандартные гнутые профили карнизов для штор или гнутые жалюзи тоже обойдётся в копеечку. Но — красиво!
Расположение самого комплекса довольно обособленное, он не примыкает к жилой застройке. На территории же самого ЖК нет практически ничего, 5 коммерческих помещений – это ничто для примерно 2 тысяч будущих жителей. Нет даже детского сада. А ведь путь с ребёнком, который взрослый одолеет за 15-20 минут до ближайшего детского сада, займёт не менее получаса.
Второй существенный минус расположения — отсутствие станций метро рядом. Ну ещё бы — проект-то бизнес-класса, на машинах все жители должны ездить. Но проблема в том, что власти Москвы ведут последовательную политику по выдавливанию автомобиля из города (особенно центра, где располагается большинство рабочих мест этого самого бизнес-класса). Да и мест для парковки предусмотрено всего 220, что означает менее 1 машино-места на 3 апартамента. Это при том, что в семьях, достигших этого уровня, 2 автомобиля в семье – не редкость.
Может быть, к достоинствам комплекса можно отнести экологию? Открытый вопрос. Близость Волоколамского шоссе с постоянным трафиком – не самая большая проблема. Хуже наличие рядом снегоплавильного пункта (да-да, с очередями из самосвалов на разгрузку убранного снега зимой), КНС рядом, и ряд других мелких предприятий. На другой стороне Волоколамки есть парк вдоль берега Сходни, и в пешей доступности пока на этом всё заканчивается. Теоретически, если будет построен мост через Сходню в сторону бывшего Тушинского аэродрома, то рядом, в 15-20 минутах, строится несколько жилых проектов, обеспеченных всей инфраструктурой – от детских садов до стадионов и ТЦ, а также набережная. Но для этого нужно построить мост, что вряд ли будет реализовано силами девелопера Level Стрешнево.
Изучая планировки апартаментов, можно обратить внимание на то, что балконы предусмотрены только для избранных – владельцев некоторых трёхкомнатных апартаментов. А ведь опыт самоизоляции показал потребность горожан в своём каком-никаком уличном пространстве. В этом плане повезёт тем, кто покупает апартаменты на первом этаже – в их состав входит собственное патио. И тем, кто покупает пентхаус – у них будет собственная терраса. Что касается остальных апартаментов, то в них тоже могут применяться нестандартные решения, например, в некоторых апартаментах - проходные гостиные (на любителя), в некоторых – неоднозначное зонирование (ближе к входу располагается спальная зона, а кухня-гостиная – дальше всех).
Плюсом является наличие европланировок (объединённые кухни-гостиные – это удобно), и наличие отделки – от white box до чистовой, причём стоимость включается в стоимость договора, а значит на отделку распространяется и ипотека.
Средняя цена на апрель 2020 составляет около 173 000 руб./кв.м, причём это с учётом того, что большая часть предложения – с отделкой. Очень недорого для бизнес-класса! Однако не забываем о том, что это – апартаменты, стоимость которых при прочих равных ниже на 15-20% стоимости аналогичных квартир. Поэтому покупая их для себя, озаботьтесь заранее вопросом прописки и детского сада и/или школы, куда будете водить (простите, возить) своих детей. В отличие от краткосрочного полёта на Боинге, здесь всё-таки нужно продумать все аспекты жизни.
Цены с начала реализации в сентябре 2019 выросли на… Да можно сказать, что почти не выросли, 3% за полгода – это совсем немного, на фоне растущего всё это время рынка. Апартаменты обладают хорошей привлекательностью для инвестиций в качестве объекта для сдачи в аренду, но в данном случае сегмент (бизнес-класс) и удалённость от станций метро делают его ориентированным на очень узкую аудиторию. Проект интересен своими решениями, однако как не все любят полёты (в том числе и на Боинге-747), так и этот комплекс подойдёт не всем.
Дата публикации 13 апреля 2020