ЖК Holland Park – это проект комплексной застройки от ГК ПИК на северо-западе Москвы, в районе Покровское-Стрешнево. Он интересен тем, что находится на первой линии Москвы-реки, а в его составе, помимо 9 жилых корпусов, появятся детские сады, школы, центр спортивной медицины, хоккейная арена, бассейн и теннисный корт. Новострой-М рассказывает о преимуществах и недостатках масштабного проекта.
Примечание
В статье перечислены только факты о ЖК, собранные из открытых источников. В рубрике «Экспертиза проекта» Новострой-М решил отказаться от оценок и оценочных суждений: право делать выводы из описанных фактов о жилом комплексе мы предоставляем нашим читателям.
Кто строит
Застройщик ЖК Holland Park – ГК ПИК – один из самых известных российских девелоперов, который специализируется на строительстве масшатбных жилых комплексов комфорт-класса. На рынке с 1994 года. Все проекты ГК ПИК в Москве и Подмосковье можно найти на сайте Новострой-М. Здесь доступны фото ЖК, сроки их строительства, вся необходимая документация и информация по актуальным ипотечным программам.
Что строят
ЖК Holland Park – проект квартальной застройки, который расположен на территории площадью около 500 000 кв. м на северо-западе Москвы, в районе Покровское-Стрешнево.
Квартал буквально окружен водой с разных сторон: это и Москва-река, и реки Сходня, Химка, также Сходненский канал и канал имени Москвы. Кстати, свое название проект получил благодаря этому окружению: Holland переводится как Голландия, а в Нидерландах, как известно, много воды – море и огромное количество рек.
ЖК Holland Park – это 9 жилых корпусов разной этажности (от 13 до 24 этажей). В конце января 2019 года в реализацию вышел один корпус на 926 квартир, состоящий из шести секций. Его строительство планируют завершить в III квартале 2022 года. Закончить весь проект застройщик собирается к 2029 году.






Архитектура и дизайн. Все дома в проекте переменной этажности, они будут построены по монолитной технологии и отделаны плиткой под кирпич.
Важный момент – так как потолки в квартирах высокие, застройщик установил 2-метровые окна, которые сделают и без того приятный вид из окон еще более живописным. Также в некоторых квартирах будут установлены угловые окна и французские балконы.
Придомовая территория. Пространство вокруг домов девелопер собирается сделать максимально комфортным: его озеленят, набережную благоустроят – там должна появиться прогулочная зона, детские и спортивные площадки. Двор новостройки будет закрыт для машин.
Нежилые метры. Первые этажи домов со временем укомплектуют стандартным набором полезных сервисов для жителей: там появятся аптеки, магазины и кафе.
Что касается парковки, то в рамках 1 очереди проекта в пока единственном корпусе построят подземный паркинг на 381 место.
Квартиры и планировки
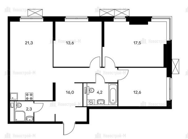
В жилом комплексе представлены 1-, 2-,3- и 4-комнатные варианты квартир без отделки площадью от 26 до 123 кв. м. Есть лоты как с классической, так и с европейской планировкой, где кухния и гостиная объединены.




В целом, все планировки в ЖК Holland Park можно назвать вполне комфортными и продуманными: комнаты имеют правильную форму, бесполезного пространства нет.
Где строят
Проект находится в СЗАО Москвы, в районе Покровское-Стрешнево. Транспортную доступность места, где расположен ЖК, можно назвать высокой. До метро «Спартак» спокойным шагом идти 10 минут, до «Тушинской» – полчаса.
Автомобилисты могут воспользоваться Волоколамским шоссе, однако стоит помнить, что эта дорога довольно загруженная: утром и вечером там обычно собираются пробки.
Экология
С экологией у района Покровское-Стрешнево полный порядок. По данным компании EcoStandard, локация заработала 3 балла из 4 возможных. Обилие парков и зеленых зон – сильная сторона проекта Holland Park.
Большой Строгинский затон, Серебряный Бор, лесопарк Покровское-Стрешнево – вот неполный список мест, которые подойдут для прогулок с детьми, отдыха у воды и занятий спортом.
Опасных для здоровья объектов вблизи квартала, к счастью, нет.
Инфраструктура
Вторая сильная сторона ЖК Holland Park – наличие собственной инфраструктуры. Застройщик позаботился о том, чтобы жителям комплекса не пришлось далеко ходить, чтобы закрыть свои насущные потребности.
На территории ЖК со временем появится 3 детских сада, рассчитанных на 750 мест, 2 школы, каждая из которых сможет вместить по 1100 учеников, также застройщик возведет целый спортивный кластер. В него войдут хоккейная арена, бассейн, теннисный корт и центр спортивной медицины.
Что касается внешней инфраструктуры, то район укомплектован ею не очень основательно. К тому же, практически все объекты находятся за Волоколамским шоссе. Поэтому добираться до них придется довольно долго.
Например, ближайшие школы находятся в получасе ходьбы от комплекса, по другую сторону Волоколамского шоссе.
Школы
Из детских садов всего один располагается по эту сторону шоссе, но и до него путь неблизкий: около получаса. Остальные находятся еще дальше.
Детские сады
С поликлиниками ситуация похожая: до трех ближайших быстро можно добраться разве что на машине – дорога займет около 10 минут. На общественном транспорте – около получаса.
Поликлиники
Покупка продуктов тоже пока остается не самой легкой задачей: сетевые «Лента», «Пятерочка», «Азбука Вкуса», «Перекресток» покажутся близкими только автомобилистам. Доехать до большинства из этих магазинов на машине можно минут за 10. А вот пешеходам придется либо сесть на общественный транспорт, либо прошагать пешком более 30 минут.
Магазины
Фитнес-клубов в пешей доступности нет. Но на машине или на общественном транспорте можно довольно быстро доехать до 2-3 ближайших.
Если говорить об уровне безопасности, то локация, в которой строится ЖК Holland Park – спокойное место. Ближайший пункт полиции находится в получасе ходьбы от ЖК.
Цены
Продажи в ЖК Holland Park стартовали в конце января 2020 года. Тогда самое доступное предложение оценивалось в 6,2 млн рублей. Сейчас цены в проекте начинаются от 6,8 млн рублей.
Цены в ЖК Holland Park
|
Тип жилья |
Метраж, кв. м |
Цена, руб. |
Цена за кв. м, тыс. руб. |
|
1-комнатные |
35.00 — 40.60 |
22 172 500 — 25 563 540 |
559.1 — 642.3 |
|
2-комнатные |
52.90 — 57.90 |
27 992 044 — 31 772 130 |
483.5 — 596.1 |
|
3-комнатные |
73.40 — 88.70 |
34 740 220 — 41 360 810 |
441.2 — 477.2 |
Квартиры в проекте реализуются по новым правилам, то есть через эскроу-счета. Также застройщик предоставляет покупателям возможность приобрести жилье дистанционно.
Оплатить 100% стоимости квартиры можно банковской картой или оформить ипотеку онлайн не выходя из дома.
ЖК аккредитован крупными российскими банками: Газпромбанк, Альфа-Банк, Сбербанк, ВТБ, Зенит, Уралсиб, Дом.рф. Наиболее выгодную ставку – 6,5% – в настоящее время предлагает Альфа-Банк.
Конкуренты
Ближайший конкурент ЖК Holland Park – это жилой район комфорт-класса ALIA от застройщика Asterus. Проект также возводится в районе Покровское-Стрешнево, на берегу Москвы-реки. Завершить строительство планируют в конце 2022 года.
В составе ALIA построят 11 монолитных домов, детские сады, школы и поликлиники. Цены в ЖК стартуют от 7,4 млн рублей. Для покупки доступны 1-, 2-, 3-, и 4- комнатные варианты без отделки или с отделкой white box.
Цены в ЖК ALIA
|
Тип жилья |
Метраж, кв. м |
Цена, руб. |
Цена за кв. м, тыс. руб. |
|
студии |
26.00 — 30.00 |
17 109 792 — 19 499 600 |
633.7 — 748.8 |
|
1-комнатные |
34.00 — 90.00 |
22 648 500 — 42 419 522 |
471.3 — 740.7 |
|
2-комнатные |
49.00 — 79.90 |
28 911 390 — 47 319 648 |
511.7 — 704.3 |
|
3-комнатные |
79.00 — 169.00 |
48 650 625 — 96 861 050 |
534 — 905 |
|
4-комнатные |
103.00 — 113.00 |
65 946 375 — 86 866 800 |
605 — 768.7 |
|
многокомнатные |
141.00 |
90 410 360 |
641.2 |
Резюме
Плюсы ЖК Holland Park:
– надежный и известный застройщик;
– локация: ЖК расположен на первой линии Москвы-реки, метро находится в пешей доступности;
– экология: по сравнению со многими московскими районами Покровское-Стрешнево выгодно отличается обилием обширных зеленых зон;
– собственная благоустроенная набережная для прогулок и занятий спортом;
– в квартирах большие окна (2 метра) и высокие потолки (3 метра);
– жилье сдается без отделки – возможность сделать ремонт на свой вкус;
– богатая внутренняя инфраструктура проекта: детские сады, школы, спортивный кластер.
К недостаткам проекта можно отнести скудную инфраструктуру района. Однако не стоит забывать, что локация активно застраивается. Поэтому в ближайшие несколько лет этот вопрос, скорее всего, будет решен.
Комментирует Денис Бобков, генеральный директор аналитической и консалтинговой компании «Недвижимость-Профи»
«Замечательно. Поразительно. Гениально! Слушайте, я не узнаю вас в гриме!», так говорил режиссёр Якин в бессмертной комедии «Иван Васильевич меняет профессию». Начнём с названия. ГК «ПИК» и ранее называла свои проекты со словом «парк», но это было, во-первых, на русском, во-вторых, слово перед «парк» означало местоположение («Мякинино парк», «Люблинский парк»), в-третьих, сами проекты относились к эконом-классу. А тут «Holland». Не иначе, как заявка на бизнес-класс.
На такое название девелопера сподвигло расположение проекта между реками: Москва-река, Сходня, Химка, канал им. Москвы. Пожалуй, на этом сходство как места, так и самого проекта с Нидерландами заканчивается. Хотя экология здесь тоже неплохая – проект возводится на бывшем аэрополе (т.е. само место экологически безопасное), рядом крупных промпредприятий нет – только на другой стороне Волоколамского шоссе. С западной стороны (преобладающей розы ветров в Москве) находится Москва-река и жилой район «Строгино» на противоположном берегу.
Нужно отметить, что и сам проект (как и название) не совсем типичен для ГК «ПИК». Так, например, архитектура – если изучить рендеры, то видно, что здесь ушли от иногда навязчивых цветовых решений (применяемых в более демократичных и ранних проектах). Фасады под кирпич, однотонные – чем не бизнес-класс? Однако можно покритиковать за отсутствие изящных решений для маскировки внешних блоков кондиционеров (применены те же банальные корзины, что и в эконом-классе) и отсутствие балконов (кажется, после пандемии покупатели этому моменту будут уделять внимание, балкон становится местом для прогулок и отдыха, а не хламосборником, как ранее).
Ещё одно решение, отличающее от других проектов ГК «ПИК» – высота потолков. В квартирах высота от пола до пола составляет 3,2 м, т.е. даже с учётом отделки высота потолка будет около 3 метров, т.е. и по этому важному критерию соответствует бизнес-классу.
Добавим, что и конструкция зданий – монолитная, а не сборная, как этого можно было ожидать от данного девелопера. При этом сохранена квартальная застройка (неизвестно, будут ли дворы закрытыми, что характерно для бизнес-класса).
Учитывая местоположение, с одной стороны, фактически на берегу (первой линии застройки от берега, на самом берегу будет парк) реки, а с другой – рядом со станцией метро «Спартак» (в 12-15 минутах пешком по факту от домов с видом на воду), можно только удивляться, почему застройщик «Тушино-2018» не стал самостоятельно продолжать проект, застраивая самую «лакомую» часть территории, предложив её ГК «ПИК». Как бы то ни было, будущим покупателям повезло не только в плане местоположения, но и собственной инфраструктуры (предусмотрены 3 детских сада, 2 школы, поликлиника, различный стрит-ритейл, а уж в спортивной инфраструктуре вокруг недостатка точно нет).
Проект отличается широкой квартирографией: так, имеются и студии (не от 19 кв.м как в «экономе», а 26 – это же бизнес-класс), евродвушки с кухнями-гостиными вместо обычных однушек, классические двушки и евротрёшки, классические трёшки и еврочетвёрки. Площади адекватные, а вот сами планировки могут вызывать вопросы – не всегда есть чёткое зонирование на гостевую и спальную зоны. Количество санузлов в квартирах с тремя комнатами могло бы быть и больше, учитывая претензии на бизнес-класс. Зато есть интересное решение – французские окна (тоже уникальное решение для проектов этого девелопера) – этакая замена отсутствию балконов.
К минусам можно отнести отсутствие квартир в предложении с отделкой (по крайней мере, пока) – практически во всех проектах группы компаний отделка предлагается по умолчанию. Здесь же придётся самому заниматься процессом и накапливать средства либо брать отдельный кредит на неё. И ждать, пока все соседи сделают ремонт, чтобы зажить в тишине, комфорте и безопасности.
Так или иначе, проект получается вполне достойный, и девелопер постарался не испортить его типовым подходом, а наоборот – извлечь максимум из местоположения. А наработанные технологии позволят его быстро реализовать и по относительно невысоким ценам.
Средняя цена на апрель 2020 года – 212 тыс. руб./кв.м, причём со старта проекта в конце января этого же года она уже подросла на 10%. Но и сейчас это относительно недорого для данной локации, и можно ожидать определённого инвестиционного потенциала (благодаря бренду застройщика, высокой скорости строительства (если она будет) и удачному местоположению. Для собственного проживания проект тоже отлично подойдёт, если устроят планировочные решения. А вот для сдачи в аренду я бы не рассматривал – рядом строится комплекс апартаментов, другие проекты, и «каннибализма» предложений аренды в данной локации не избежать.
Дата публикации 02 мая 2020