Рейтинг@Mail.ru
Переверните экран
Новостройки Квартиры Ипотека Новостройки Москвы Новостройки Подмосковья Новостройки Новой Москвы Готовые новостройки Новостройки на карте Акции от застройщиков Коммерческие помещения Продавцы и застройщики Панорамы новостроек Видеообзор новостроек Экспертиза новостроек Экология Москвы и Подмосковья Студии 1-комнатные 2-комнатные 3-комнатные Квартиры на карте Ипотечный калькулятор Семейная ипотека Военная ипотека Банки и программы Медиа Новости недвижимости Мнение эксперта Аналитика рынка Покупателю Экспертиза новостроек Эксперты и авторы О проекте Контакты Реклама на сайте Vk Youtube Telegram Дзен Машиноместа Апартаменты #траншевая ипотека #рассрочка ИТ-ипотека Квартиры со скидками до 40% Видео 360° новостроек Субсидированная застройщиком Rutube Поиск дома в Москве Программа реновации в Москве Новостройки премиум-класса Новостройки бизнес-класса Рассрочка Траншевая ипотека Дома и коттеджи Бизнес-центры Бизнес-центры в Москве Бизнес-центры рядом с метро Строящиеся бизнес-центры Бизнес-центры класса A Бизнес-центры класса B Ипотека со ставкой 0,1%

ЖК «Цветочные Поляны» от ГК «МИЦ»

В середине октября ГК «МИЦ» вывела на рынок Новой Москвы проект «Цветочные Поляны». В реализации находятся два первых дома жилого комплекса, начальная цена продаж составила 2,1 млн рублей за квартиру-студию. Новострой-М решил оценить перспективы проекта, выяснить его сильные и слабые стороны.

Примечание

В статье перечислены только факты о ЖК, собранные из открытых источников. В рубрике «Экспертиза проекта» Новострой-М решил отказаться от оценок и оценочных суждений: право делать выводы из описанных фактов о жилом комплексе мы предоставляем нашим читателям.

Кто строит?

Застройщик жилого комплекса «Цветочные Поляны» — группа компаний «МИЦ». Группа работает на рынке более 18 лет, она возводит недвижимость в Московском регионе на своих земельных участках. В портфеле застройщика — 5 млн кв. метров жилья и более 20 проектов, которые уже завершены или находятся в стадии строительства. Обманутых дольщиков ГК «МИЦ» не имеет, строит быстро и почти всегда вовремя, а небольшие переносы сроков сдачи покупателям компенсируются.

Среди сданных объектов группы — ЖК «Новое Павлино» в Балашихе, ЖК в поселке Молодежный, ЖК «Коммунарка», есть готовые дома еще в трех строящихся жилых комплексах: Новоград «Павлино» (Балашиха), «Зеленые аллеи» (город Видное) и «Татьянин Парк» (Новая Москва). В Новой Москве также возводятся ЖК «Кленовые аллеи», «Южное Бунино» и «Цветочные Поляны».

Что строят?

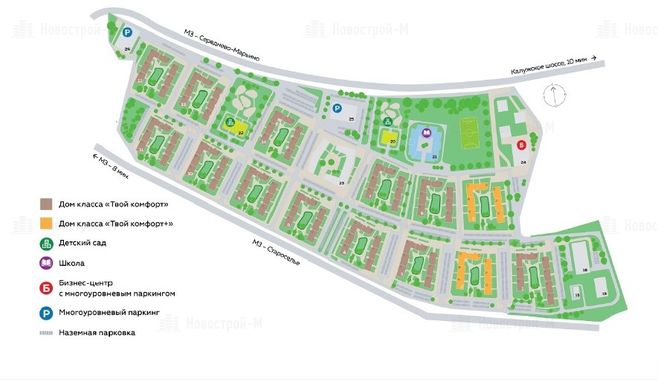
ЖК комфорт-класса «Цветочные Поляны» будет включать в себя 14 монолитных домов высотой от шести до девяти этажей. Класс энергоэффективности зданий — В (высокий). С завершением проекта для жильцов новостройки заработают два детских сада, школа, бизнес-центр и другие объекты социально-бытового назначения.

Согласно проектным декларациям, в корпусе 3 запроектировано 370 квартир площадью 24–94 кв. метра, корпус 4 вмещает в себя 327 квартир площадью 22–118 кв. метра. Покупатели могут выбрать из 12 вариантов планировочных решений, от студий до 4-комнатных, в том числе евроформата, двухуровневые квартиры, квартиры с террасами, с панорамным остеклением, лофты с потолками 3,2 метра. Доступны четыре вида отделки от застройщика.

Над концепцией благоустройства комплекса работало финское архитектурное бюро. Жилые корпуса образуют дворы-парки, в которых будет вестись круглосуточное видеонаблюдение. Во дворах создадут безбарьерные прогулочные аллеи, места для игр, спортплощадки, предусмотрена зона барбекю. Вне территории квартала обустроят площадки для выгула собак.

Сдача первых двух домов ЖК «Цветочные Поляны» намечена на конец 2020 года.

Где строят?

Новостройка возводится в Новомосковском АО, в поселении Филимонковское, в 14 км от МКАД по Киевскому шоссе (плюс еще 4,7 км от шоссе в сторону пос. Марьино). От стройплощадки до станции метро «Саларьево» (сейчас — конечная Сокольнической линии) можно доехать без пробок на машине за 20-25 минут. По утрам движение в сторону метро по Киевскому шоссе затруднено на участке в районе развязки в городе Московский.

Еще один вариант для будущих жителей «Цветочных Полян» — доехать до станции метро «Рассказовка» (конечная Солнцевской линии). Путь без пробок займет 17-20 минут, однако утром они довольно серьезные все в том же районе города Московский.


Дорожная ситуация в понедельник, в 9:00

В 2019 году власти Москвы планируют открыть участок метро от «Саларьево» до «Столбово», включающий четыре новых станции — «Филатов луг», «Прокшино», «Ольховая» и «Столбово». После открытия участка дорога от новостройки до метро, станции «Филатов луг», будет составлять 15-17 минут, минуя пробки на Киевском шоссе.

Что касается пешеходов, от поселка Марьино можно дохать на маршрутках №№ 420 и 879 до станции метро «Саларьево», время в пути составит примерно 50 минут. После открытия станции «Филатов луг» дорога до метро сократится как минимум вдвое.

Экология

Согласно экологическому рейтингу компании EcoStandard group, индекс поселения Филимонковское — три балла из четырех возможных. Таким образом, локация отличается хорошей экологической обстановкой.

ЖК «Цветочные Поляны» находится далеко от больших транспортных магистралей, в окружении лесов. В 300 метрах от будущих домов расположен Валуевский лесопарк площадью более 2 тыс. гектаров. На его территории протекают реки Ликова и Сосенка, множество ручьев, есть пруды. С противоположной стороны также находятся зеленые зоны, несколько прудов, протекает река Незнайка.

Из минусов локации стоит отметить близость международного аэропорта Внуково. Он расположен в пяти километрах по прямой от нашей новостройки, так что жильцам может досаждать авиационный шум от пролетающих самолетов.

Инфраструктура

В ЖК «Цветочные Поляны» запланированы свои социальные объекты. К окончанию строительства на территории комплекса будут работать два детских сада на 400 мест, школа на 1100 учащихся, бизнес-центр. Также в планах поликлиника, многоуровневые паркинги и наземная парковка.

Недалеко от «Цветочных Полян» находится пос. Марьино, в котором уже есть минимум необходимой инфраструктуры. Так, в 20 минутах ходьбы работают школа и детский сад, две амбулатории (детская и взрослая), супермаркет, отделение почты и Сбербанка. Здесь же расположена остановка общественного транспорта «Школа», от которой ходят маршрутки до метро.

Больше социальных объектов находится в соседнем поселении — городе Московский. За 10 минут на автомобиле (или за полчаса на маршрутке) можно доехать до крупного ТРК «Новомосковский», где есть все, к чему привык городской житель — гипермаркет, бутики, кафе, рестораны, кинотеатр, спорттовары, зоотовары и так далее. В городе действуют школы, детские сады, четыре поликлиники, аптеки, спорткомплекс с бассейном.

С торговой инфраструктурой также все хорошо — помимо шести ТЦ работает множество магазинов, супермаркетов, ресторанов и кафе.

Цены в ЖК «Цветочные Поляны»

Тип жилья

Метраж, кв. м

Цена, руб.

Цена за кв. м, тыс. руб.

студии

22

2 227 000

101

1-комн.

31

2 757 000

89

2-комн.

37,6

3 448 000

91,7

3-комн.

57,3

5 100 000

89

4-комн.

79,5

6 550 000

82,3

При покупке квартиры в ипотеку лучшие условия клиенту подберет сотрудник ГК «МИЦ», он же отправит необходимые документы на одобрение в банк. Как сообщается на сайте проекта, минимальная процентная ставка составляет 7,1%. Заявку на ипотеку можно оставить онлайн на сайте новостройки: анкета будет отправлена в несколько банков (однако в какие именно — не уточняется). Застройщик уверяет, что одобрение получают 99% заявок, а срок рассмотрения составляет от двух часов.

Конкуренты

Недалеко от «Цветочных Полян» находятся два долгостроя — ЖК «Марьино Град» и ЖК «Спортивный квартал». Около года назад стало известно, что строительство этих комплексов возобновляет компания Capital Group. А застройщиков, которые изначально возводили данные проекты, хотят признать банкротами. Речь идет о компаниях ООО «Марьино-Строй» (ЖК «Марьино Град») и ООО «СтройПлюс» (ЖК «Спортивный квартал»).

ЖК «Марьино Град» включает 22 монолитно-кирпичных четырехэтажных дома и пятиэтажный наземный паркинг. Жилье (студии, одно-, двух- и трехкомнатные квартиры) сдается без ремонта. Своей инфраструктуры в ЖК не предусмотрено. Завершить строительство первого этапа комплекса (корпуса 10–22) Capital Group планирует в декабре 2018 года, второго (корпуса 1–9) — в апреле 2019 года. Первоначально комплекс должны были сдать до середины 2015 года.

Цены в ЖК «Марьино Град»

Тип жилья

Метраж, кв. м

Цена, руб.

Цена за кв. м, тыс. руб.

студии

27,86

2 775 000

99,6

1-комн.

38,9

3 697 400

95

2-комн.

53,8

4 412 400

82

3-комн.

64,2

5 268 000

82

ЖК «Спортивный квартал» — это 15 монолитно-кирпичных домов переменной этажности (от трех до 12 этажей). В продаже квартиры от студий до трехкомнатных, ремонт в квартирах не предусмотрен. Социальной инфраструктуры запланировано много, она в основном спортивной направленности — это ледовые катки, теннисный корт, баскетбольная площадка, футбольное поле. Также должны быть построены детский сад, школа и спортшкола, многоуровневый паркинг. Сдача первого этапа новостройки (корпуса 11-15) намечена на декабрь 2018 года, второго (корпуса 1-10) — на апрель 2019 года. Первоначально комплекс должен быть построен во II квартале 2015 года.

Цены в ЖК «Спортивный квартал»

Тип жилья

Метраж, кв. м

Цена, руб.

Цена за кв. м, тыс. руб.

студии

27,7

2 784 000

100,5

1-комн.

34,08

3 139 800

92,1

2-комн.

47,6

4 407 600

92,5

3-комн.

65,88

5 534 000

84

Цены в проектах Capital Group сравнимы со стоимостью жилья в «Цветочных Полянах», хотя последние сдаются на два года позже (первый этап). Но стоит учитывать, что новостройка от ГК «МИЦ» не долгострой, в плане архитектуры проект очень интересен, есть возможность купить квартиру с отделкой.

Резюме

Плюсы ЖК «Цветочные Поляны»:

— надежный застройщик;

— хорошая экология;

— своя инфраструктура;

— можно купить жилье с отделкой.

Минусы:

— своих социальных объектов может не хватить;

— нет метро или ж/д платформы в шаговой доступности.

Проект «Цветочные Поляны» подойдет тем покупателям, которые устали от городской суеты и ценят близость природы. Также комплекс заинтересует удаленных работников и фрилансеров, которым не нужно ездить каждый день в центр города — жить в комплексе без автомобиля будет не очень комфортно.

 

Комментирует Денис Бобков, генеральный директор аналитической и консалтинговой компании «Недвижимость-Профи»

Уже название комплекса намекает, что речь идёт о проекте, расположенном в экологически чистом месте. Недостатком такого расположения является удалённость от «старой» Москвы и слабая транспортная связность с ней – увы, в пешей доступности станций метро нет, и в обозримом будущем не предвидится. Ближайшая станция метро «Филатов луг» - на расстоянии 9 км, прямо скажем, очень далеко. Рядом с ней уже построена перехватывающая парковка, но дорога «Саларьево-Марьино» (ведущая напрямую к этой станции) в настоящее время не достроена. Тем не менее, будущие жители ЖК оценят её удобство, и возможность не выезжать на достаточно загруженное в часы пик Киевское шоссе, чтобы добраться до метро. В любом случае, транспортная доступность очень слабая, и это основной минус проекта.

Из плюсов можно отметить близость Валуевского лесопарка, но со стороны ЖК он не благоустроен, по сути – просто лес.

Посёлок Марьино активно застраивался последние лет 10, и почему-то сразу два больших комплекса здесь стали долгостроями – «Марьино Град» и «Спортивный квартал». Сейчас за их достройку активно взялись власти в дуэте с Capital Group. Зато заселившись в «Цветочные поляны» покупатели квартиры не обречены ожидать начала работы собственной коммерческой инфраструктуры – она есть в соседних комплексах, уже частично действующая. Также там есть работающие 2 детских сада и школа в пешей доступности. В составе же самого ЖК «Цветочные поляны» предусмотрены 2 детских сада и школа, т.е. выбор, куда отвести детей, будет.

Концепция проекта с закрытыми дворами и высотой домов 6-9 этажей соразмерна человеку и обеспечит комфортное проживание. Архитектура – без особых изысков, как и полагается комфорт-классу.

Практически 90% квартир в предложении – с отделкой, что обеспечит возможность быстрого заселения комплекса, комфортного проживания без звуков ремонта соседей, и возможность включения стоимости отделки в ипотечный кредит. Имеются экзотические для комфорт-класса варианты квартир – с собственным «патио» (дворик для квартир на первом этаже), с «террасой в подарок», двухуровневые квартиры с отдельным входом (по сути – встроенный таунхаус), и двухуровневые квартиры на последнем этаже.

Студии в основном представлены в довольно комфортной площади около 30 кв.м, имеется как классическая, так и востребованная «европланировка». Но некоторые планировки квартир удивляют. Например, кухня в ряде квартир максимально удалена от входа (обычно, наоборот, кухня-столовая входит в так называемую «гостевую» зону). «Евродвушки» (кухня-гостиная и спальня) и даже «евротрёшки» (с двумя спальнями) почему-то только с одним совмещённым санузлом – по утрам будет очередь.

Текущая средняя цена (на декабрь 2019) составляет около 116 тыс. руб./кв.м., что для квартир с отделкой неплохо. Цена за год выросла практически на 20% - на уровне динамики средней цены по всем проектам Новой Москвы. В перспективе ажиотажного роста цен ожидать не стоит – станции метро уже введены, улучшение автомобильной доступности существенного влияния на цены не окажет. Кроме того, наверняка Capital Group получит взамен своих услуг по достройке другие площадки в окружении, и конкуренция обострится, что ограничит возможный рост цен в перспективе. Поэтому я бы рассматривал этот проект не для инвестиций (уже поздно), не для сдачи в аренду, а в большей мере для личного, семейного проживания.

Дата публикации 06 ноября 2018
Рассылка новостей
Раз в неделю мы будем присылать вам самые интересные новости о недвижимости на почту
Полезное
Следите за обновлениями Новострой-М на самых популярных площадках интернета
Наш Telegram
Мы в Яндекс.Дзен Zen icon Канал на Youtube Youtube icon Канал на Rutube Rutube icon
Популярно на Новострой-М
Посмотреть все спецпредложения

Рекомендуемые новостройки

Посмотреть ещё
4.5
38
Квартиры с выгодой
Доступно всем: 8% на 3 года
Системообразующий застройщик
Застройщик ООО СЗ «ЛЮБЛИНО ДЕВЕЛОПМЕНТ»
Строится
Есть сданные
Москва, ЮВАО
Братиславская
15 мин.
9 577 557
Студия от 19.50 м2
13 100 942
1-комн. от 31.30 м2
17 423 316
2-комн. от 44.50 м2
21 089 902
3-комн. от 69.00 м2
411 квартир от застройщика
Посмотреть ещё
4.7
21
Скидка 40%
Системообразующий застройщик
Застройщик Level Group (Левел Групп)
Сдан
Москва, ЮЗАО
Академическая
1 мин.
23 017 382
Студия от 24.90 м2
66 748 711
3-комн. от 67.00 м2
84 845 804
4-комн. от 122.30 м2
161 690 236
8-комн. от 220.80 м2
11 квартир от застройщика
Посмотреть ещё
4.6
20
Скидка 2% при 100% оплате
Рассрочка 0%
Семейная ипотека от 6%
Старт продаж
Застройщик АО СЗ «СберСити»
Строится
Есть сданные
Москва, Кунцево
Рублёво-Архангельская (2026)
15 мин.
22 349 250
Студия от 27.50 м2
26 822 391
1-комн. от 41.60 м2
33 147 400
2-комн. от 47.10 м2
39 542 814
3-комн. от 77.20 м2
65 797 320
4-комн. от 99.00 м2
152 квартиры от застройщика
Посмотреть ещё
4.4
58
Рассрочка до 11 месяцев
Застройщик «Среда»
Строится
Москва, ЗАО
Кунцевская
10 мин.
16 672 043
Студия от 22.93 м2
21 166 552
1-комн. от 30.59 м2
29 404 897
2-комн. от 52.88 м2
38 832 330
3-комн. от 72.30 м2
90 квартир от застройщика

Скидки и спецпредложения от застройщиков