Рейтинг@Mail.ru
Переверните экран
Новостройки Квартиры Ипотека Новостройки Москвы Новостройки Подмосковья Новостройки Новой Москвы Готовые новостройки Новостройки на карте Акции от застройщиков Коммерческие помещения Продавцы и застройщики Панорамы новостроек Видеообзор новостроек Экспертиза новостроек Экология Москвы и Подмосковья Студии 1-комнатные 2-комнатные 3-комнатные Квартиры на карте Ипотечный калькулятор Семейная ипотека Военная ипотека Банки и программы Медиа Новости недвижимости Мнение эксперта Аналитика рынка Покупателю Экспертиза новостроек Эксперты и авторы О проекте Контакты Реклама на сайте Vk Youtube Telegram Дзен Машиноместа Апартаменты #траншевая ипотека #рассрочка ИТ-ипотека Квартиры со скидками до 40% Видео 360° новостроек Субсидированная застройщиком Rutube Поиск дома в Москве Программа реновации в Москве Новостройки премиум-класса Новостройки бизнес-класса Рассрочка Траншевая ипотека Дома и коттеджи Коттеджные поселки в Новой Москве Готовые коттеджные поселки Строящиеся коттеджные поселки Коттеджные поселки в лесу Коттеджные поселки у водоема Коттеджные поселки в ипотеку Бизнес-центры Коттеджи Ипотека со ставкой 0,1%

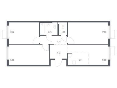
Планировки в ЖК «Горки Парк»

Московская область, Коробово деревня
от 5.8 до 24.1 млн
 
Цены за квартиры от 14 мая
по данным официального сайта
Посмотреть все спецпредложения

Скидки и спецпредложения от застройщиков

Выгодные предложения на новостройки

Квартиры от застройщиков с акциями

Отзывы о ЖК «Горки Парк»

Самый полезный отзыв
Л
Люда
10 июня 2024
Оценка
Покупаем трехкомнатную в корпусе 8.2, 71 квадратных метра. Варианты по трешкам были и другие, мы остановились на этом. Если рассматривать стоимость, то я бы сказала, что в своем эквиваленте, это класс, отделка, локация.
Ответить
Самый новый отзыв
А
Анна
28 апреля
Оценка
Переехала в свою новую квартиру в этом жк. Купила именно тут, потому что понравилось, что это загород, а не Москва. Тут как-то спокойнее, красивее, людей не такое количество, как в городе и во дворе магаз есть. Только место для машины иногда сложно найти, но я все равно нахожу
Ответить

Оставить отзыв

Добавьте отзыв, заполнив личные данные, или сначала войдите на сайт, тогда информация будет автоматически взята из личного профиля.

Оценка*