Рейтинг@Mail.ru
Переверните экран
Новостройки Квартиры Ипотека Новостройки Москвы Новостройки Подмосковья Новостройки Новой Москвы Готовые новостройки Новостройки на карте Акции от застройщиков Коммерческие помещения Продавцы и застройщики Панорамы новостроек Видеообзор новостроек Экспертиза новостроек Экология Москвы и Подмосковья Студии 1-комнатные 2-комнатные 3-комнатные Квартиры на карте Ипотечный калькулятор Семейная ипотека Военная ипотека Банки и программы Медиа Новости недвижимости Мнение эксперта Аналитика рынка Покупателю Экспертиза новостроек Эксперты и авторы О проекте Контакты Реклама на сайте Vk Youtube Telegram Дзен Машиноместа Апартаменты #траншевая ипотека #рассрочка IT-ипотека Квартиры со скидками до 35% Видео 360° новостроек Субсидированная застройщиком Rutube Поиск дома в Москве Программа реновации в Москве Новостройки премиум-класса Новостройки бизнес-класса Рассрочка Траншевая ипотека Дома и коттеджи Бизнес-центры Бизнес-центры в Москве Бизнес-центры рядом с метро Строящиеся бизнес-центры Бизнес-центры класса A Бизнес-центры класса B
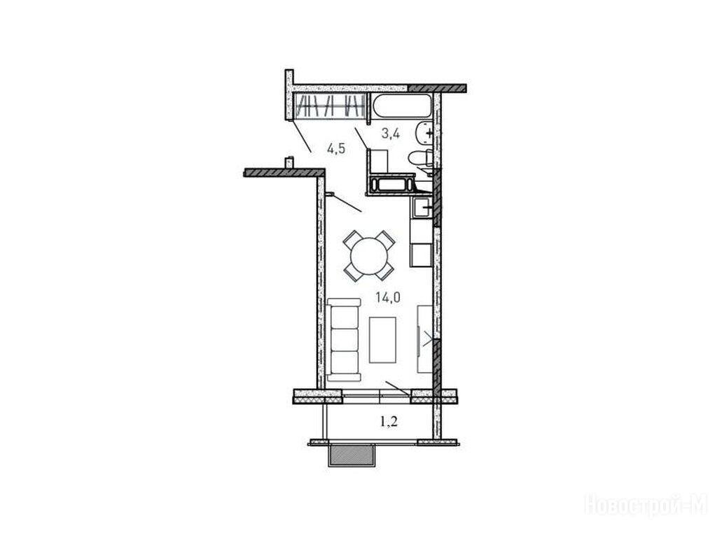
студия, 23.10 м2, 9 этаж
Срок сдачи 1 квартал 2026 года
6 962 340 
301 400 2
обновлено 5 февраля

Описание студии

Застройщик
Срок ГК
1 квартал 2026 года
Стадия строительства
отделка фасада и внутренние работы
Тип проекта
Общая площадь
23.10 м2
Этаж
9 / 17
Грузовой лифт
есть

Расположение студии

Станция МЦД
Ж/Д-станция
Дом
3
Адрес
улица Твардовского, вл.36. корп. 3, секция 2

Способы покупки

Особенности

Продается студия в новостройке ЖК «Квартал Светлый» по адресу Московская область, Балашиха городской округ, Балашиха, улица Твардовского, вл.36. корп. 3. Общая площадь квартиры - 23.1 кв. м. Тип проекта, по которому построен дом — Монолит, компания-застройщик — Сетьстрой. Стоимость квартиры — 6 962 340 руб. Способы оплаты можно уточнить у продавца. Срок сдачи — 1 квартал 2026. Более подробная информация по телефону.
Инфоцентр новостроек
Инфоцентр новостроек
+7 (499) 705-91-41
Время работы 9:00 — 21:00
Посмотреть все спецпредложения
студия 23,20 м2 5 244 360
Этаж 16/17
МО, ЖК «Квартал Светлый»
Кучино
13 мин.
Строится
студия 24,10 м2 7 217 950
Этаж 8/17
МО, ЖК «Квартал Светлый»
Кучино
13 мин.
Строится
студия 24,70 м2 5 529 713
Этаж 13/17
МО, ЖК «Квартал Светлый»
Кучино
13 мин.
Строится
студия 24,90 м2 5 574 488
Этаж 5/17
МО, ЖК «Квартал Светлый»
Кучино
13 мин.
Строится
Посмотреть 10 квартир в ЖК «Квартал Светлый»
1-комн. квартира 29,50 м2 7 954 675
Этаж 15/17
МО, ЖК «Квартал Светлый»
Кучино
13 мин.
Строится
1-комн. квартира 30,00 м2 6 426 000
Этаж 9/17
МО, ЖК «Квартал Светлый»
Кучино
13 мин.
Строится
1-комн. квартира 31,50 м2 8 367 975
Этаж 13/17
МО, ЖК «Квартал Светлый»
Кучино
13 мин.
Строится
1-комн. квартира 31,60 м2 8 361 360
Этаж 9/17
МО, ЖК «Квартал Светлый»
Кучино
13 мин.
Строится
Посмотреть 40 квартир в ЖК «Квартал Светлый»
2-комн. квартира 48,60 м2 12 451 320
Этаж 13/17
МО, ЖК «Квартал Светлый»
Кучино
13 мин.
Строится
2-комн. квартира 52,70 м2 10 676 598
Этаж 17/17
МО, ЖК «Квартал Светлый»
Кучино
13 мин.
Строится
2-комн. квартира 54,10 м2 10 997 448
Этаж 6/17
МО, ЖК «Квартал Светлый»
Кучино
13 мин.
Строится
2-комн. квартира 54,20 м2 10 957 072
Этаж 2/17
МО, ЖК «Квартал Светлый»
Кучино
13 мин.
Строится
Посмотреть 10 квартир в ЖК «Квартал Светлый»

Скидки и спецпредложения от застройщиков

ЖК «Квартал Светлый» на карте

Выгодные предложения на новостройки

Отзывы о ЖК «Квартал Светлый»

Самый полезный отзыв
П
14 марта 2018
Оценка:
Экология
Хочу узнать подробнее о планировках, живу в Балашихе
Показать все комментарии
Ответить
Полезный отзыв?
Самый новый отзыв
Е
02 февраля
Оценка:
Проект, безусловно, амбициозный и выглядит крайне перспективно. Пока это только первая очередь, а финальный результат еще предстоит оценить, но если застройщик реализует хотя бы часть заявленного – здесь будет не просто хорошо, а отлично. Детский сад прямо в здании, благоустроенные дворы с продуманными зонами отдыха и озеленение, все это выглядит очень убедительно на рендерах. Пока я занимаю выжидательную позицию, но признаю, если их слова не разойдутся с делом, это действительно может стать лучшим местом для жизни в Балашихе.
Ответить
Полезный отзыв?
Добавьте отзыв, заполнив личные данные, или сначала войдите на сайт, тогда информация будет автоматически взята из личного профиля.
Оценка*