Рейтинг@Mail.ru
Переверните экран
Новостройки Квартиры Ипотека Новостройки Москвы Новостройки Подмосковья Новостройки Новой Москвы Готовые новостройки Новостройки на карте Акции от застройщиков Коммерческие помещения Продавцы и застройщики Панорамы новостроек Видеообзор новостроек Экспертиза новостроек Экология Москвы и Подмосковья Студии 1-комнатные 2-комнатные 3-комнатные Квартиры на карте Ипотечный калькулятор Семейная ипотека Военная ипотека Банки и программы Медиа Новости недвижимости Мнение эксперта Аналитика рынка Покупателю Экспертиза новостроек Эксперты и авторы О проекте Контакты Реклама на сайте Vk Youtube Telegram Дзен Машиноместа Апартаменты #траншевая ипотека #рассрочка IT-ипотека Квартиры со скидками до 40% Видео 360° новостроек Субсидированная застройщиком Rutube Поиск дома в Москве Программа реновации в Москве Новостройки премиум-класса Новостройки бизнес-класса Рассрочка Траншевая ипотека ГАЛС Дома и коттеджи Бизнес-центры Бизнес-центры в Москве Бизнес-центры рядом с метро Строящиеся бизнес-центры Бизнес-центры класса A Бизнес-центры класса B ЛСР
Данная квартира является лидером продаж среди однокомнатных квартир в ЖК «Квартал Светлый» по данным Росреестра
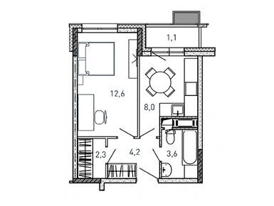
1-комн. квартира, 31.50 м2, 13 этаж
Срок сдачи 4 квартал 2025 года
7 969 500 
253 000 2
обновлено 5 декабря

Описание 1-комн. квартиры

Застройщик
Срок ГК
4 квартал 2025 года
Стадия строительства
отделка фасада и внутренние работы
Тип проекта
Общая площадь
31.50 м2
Жилая площадь
10.10 м2
Площадь кухни
14.00 м2
Этаж
13 / 17
Грузовой лифт
есть

Расположение 1-комн. квартиры

Станция МЦД
Ж/Д-станция
Дом
3
Адрес
улица Твардовского, вл.36. корп. 3, секция 1

Способы покупки

Особенности

Продается однокомнатная квартира в новостройке ЖК «Квартал Светлый» по адресу Московская область, Балашиха городской округ, Балашиха, улица Твардовского, вл.36. корп. 3. Общая площадь квартиры - 31.5 кв. м. Тип проекта, по которому построен дом — Монолит, компания-застройщик — Сетьстрой. Стоимость квартиры — 7 969 500 руб. Способы оплаты можно уточнить у продавца. Срок сдачи — 4 квартал 2025. Более подробная информация по телефону.
Инфоцентр новостроек
Инфоцентр новостроек
+7 (499) 705-91-41
Время работы 9:00 — 21:00

Похожие квартиры в ЖК «Квартал Светлый»

15 этаж
из 17 4 квартал 2025
Московская область, Балашиха городской округ
Кучино
13 мин.
3
Корпус
нет данных
Отделка
2.72 м
Потолки
ЖК «Квартал Светлый»
7 969 500
Абсолют Банк, Газпромбанк, СберБанк, Промсвязьбанк, ВТБ, Совкомбанк
4.99%
Ставка
20.01%
Первый взнос
от 42 733 /мес.
Все варианты
Посмотреть все спецпредложения
студия 23,10 м2 6 962 340
Этаж 9/17
МО, ЖК «Квартал Светлый»
Кучино
13 мин.
Строится
студия 23,20 м2 6 992 480
Этаж 10/17
МО, ЖК «Квартал Светлый»
Кучино
13 мин.
Строится
студия 24,10 м2 5 413 463
Этаж 7/17
МО, ЖК «Квартал Светлый»
Кучино
13 мин.
Строится
студия 24,70 м2 5 529 713
Этаж 3/17
МО, ЖК «Квартал Светлый»
Кучино
13 мин.
Строится
Посмотреть 17 квартир в ЖК «Квартал Светлый»
1-комн. квартира 29,50 м2 7 463 500
Этаж 15/17
МО, ЖК «Квартал Светлый»
Кучино
13 мин.
Строится
1-комн. квартира 30,00 м2 7 650 000
Этаж 9/17
МО, ЖК «Квартал Светлый»
Кучино
13 мин.
Строится
1-комн. квартира 31,40 м2 7 944 200
Этаж 16/17
МО, ЖК «Квартал Светлый»
Кучино
13 мин.
Строится
1-комн. квартира 31,50 м2 7 969 500
Этаж 15/17
МО, ЖК «Квартал Светлый»
Кучино
13 мин.
Строится
Посмотреть 48 квартир в ЖК «Квартал Светлый»
2-комн. квартира 48,60 м2 11 858 400
Этаж 16/17
МО, ЖК «Квартал Светлый»
Кучино
13 мин.
Строится
2-комн. квартира 53,60 м2 12 998 000
Этаж 8/17
МО, ЖК «Квартал Светлый»
Кучино
13 мин.
Строится
2-комн. квартира 53,70 м2 13 022 250
Этаж 5/17
МО, ЖК «Квартал Светлый»
Кучино
13 мин.
Строится
2-комн. квартира 54,10 м2 10 473 760
Этаж 4/17
МО, ЖК «Квартал Светлый»
Кучино
13 мин.
Строится
Посмотреть 23 квартиры в ЖК «Квартал Светлый»

Скидки и спецпредложения от застройщиков

ЖК «Квартал Светлый» на карте

Выгодные предложения на новостройки

Отзывы о ЖК «Квартал Светлый»

Самый полезный отзыв
П
14 марта 2018
Оценка:
Экология
Хочу узнать подробнее о планировках, живу в Балашихе
Показать все комментарии
Ответить
Полезный отзыв?
Самый новый отзыв
Г
02 декабря
Оценка:
Когда впервые приехал смотреть этот ЖК, был приятно удивлен расположением. Из окон открывается вид на лес, а до озера можно дойти за несколько минут пешком. Все городские удобства прямо под боком. Строят качественно, по монолитной технологии, планировки продуманные, квартиры светлые и просторные, с высокими потолками. Отличное сочетание экологии и современного комфорта.
Ответить
Полезный отзыв?
Добавьте отзыв, заполнив личные данные, или сначала войдите на сайт, тогда информация будет автоматически взята из личного профиля.
Оценка*