Многофункциональный жилой комплекс бизнес-класса «Северный Порт» возводится в Левобережном районе САО Москвы, на первой линии реки Химки. Дизайнерские квартиры с функциями «умного дома», большой выбор планировок, зеленые дворы, скрытые от посторонних. О плюсах и минусах масштабного проекта – в экспертизе Новострой-М.
Примечание
В статье перечислены только факты о проекте, собранные из открытых источников. В рубрике «Экспертиза проекта» Новострой-М решил отказаться от оценок и оценочных суждений: право делать выводы из описанных фактов мы предоставляем нашим читателям.
«Северный Порт» – проект компании LEGENDA Intelligent Development. Холдинг работает на рынке 15 лет. За это время было построено более 10 домов класса «комфорт» и «бизнес», есть реализованный элитный жилой комплекс. «Северный Порт» – первый московский проект девелопера, рядом с ЖК он также возводит многофункциональный общественно-деловой комплекс.
Холдинг занимает 47 место в России по объему текущего строительства – 355 тыс. кв. м (по данным «Единого ресурса застройщиков» на 1 ноября 2025 года).
Многофункциональный жилой комплекс «Северный Порт» – это часть масштабного проекта по редевелопменту и освоению территории Северного речного порта на первой линии реки Химки в Левобережном районе Москвы.
Всего здесь планируется построить в три очереди 11 корпусов общей жилой площадью 189 тыс. кв. м. В первую очередь (Лот №7) вошли три корпуса высотой от 19 до 58 этажей, рассчитанных на 1172 квартиры.
ЖК «Северный Порт» в цифрах:
Генеральную концепцию проекта разработало архитектурное бюро Sergey Skuratov Architects. На первой береговой линии располагаются жилые кварталы. Они обрамляют побережье и создают динамичный образ за счет разной высотности зданий. Зеркальные фасады призваны создать ощущение гармонии и взаимосвязи с окружающей природой.








Главный акцент проекта – 58-этажный небоскреб, как маяк возвышающийся над остальными корпусами. Его особенностью является фактурный ступенчатый излом, проходящий по периметру всего здания, а также сплошное остекление на последних трех этажах, свет от которых дорисовывает образ маяка.
Вторая и третья линии проекта формируют общественный контур, в который входят детские сады, школы и деловые центры.
Созданный дизайн-код был взят за основу концепции, которую доработало архитектурное бюро KAMEN Architects.
Благоустройство проекта «Северный Порт» включает в себя внешнюю среду – набережную и общественный контур – и внутреннюю среду – приватные дворы в рамках каждого Лота. Корпуса первой очереди образуют закрытый внутренний двор. Корпуса второй и третьей очереди будут иметь общее внутреннее пространство.




Во дворе Лота №7 будет парадная площадь, зоны отдыха, коворкинг на свежем воздухе, спортивные зоны, обзорные площадки и игровые зоны для детей разных возрастов с различными игровыми сценариями.
Внутренние дворы будут окружены различной растительностью: газоны, цветы, кустарники, деревья, «зеленые крыши» беседок, вертикальное озеленение.
Застройщик предлагает приобрести квартиры в комплектации TechnoBox. В комплекс входят умные функции Smart Home Ready – удаленное управление элементами квартиры: отоплением, кондиционированием, голосовой помощник, дистанционное управление чайником или плитой. В квартире будут установлены датчики протечек и открытия входной двери, которые в случае необходимости сообщат о любой нештатной ситуации.
В этих квартирах будет установлена система приточно-вытяжной вентиляции Air Design, центральное кондиционирование и мультисервисная сеть с IP-домофонией и видеонаблюдением.
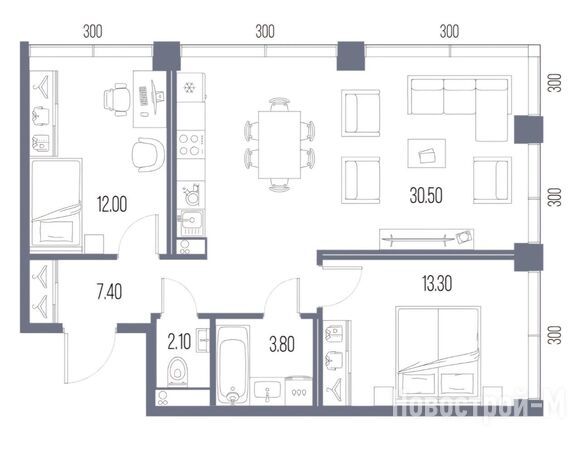
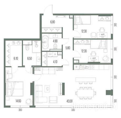
Сейчас (все данные в статье актуальны на конец ноября 2025 года) в продаже на официальном сайте застройщика представлены 100 квартир в проекте. В предложении есть видовые квартиры, варианты с мастер-спальнями и дизайнерские квартиры с индивидуальными планировками.
Площади квартир в имеющемся предложении:
Высота потолков в квартирах варьируется от 3,15 до 4 метров.





Многофункциональный жилой комплекс «Северный Порт» строится в Левобережном районе Москвы, между рекой Химкой и Ленинградским шоссе. По нему до МКАД можно доехать на машине за 8 минут. До Садового кольца можно доехать за 15 минут, до аэропорта Шереметьево – за полчаса. Это без учета пробок. В час пик время в пути может серьезно увеличиться. Например, вечером дорога из центра (от Садового кольца) до жилого комплекса по загруженному Ленинградскому шоссе может занять около часа.
Ближайшая станция метро «Беломорская» расположена в полутора километрах от комплекса. Путь до нее пешком займет около 17 минут. До станции метро «Речной вокзал» пешком можно дойти за 24 минуты.
Станции метро, время в пути от ЖК «Северный Порт» пешком:
До Северного речного вокзала также можно дойти за 24 минуты, он расположен в 2 км от комплекса. Во время сезона летней речной навигации работают маршруты-переправы к причалам «Химки» в Подмосковье и «Захарково» в районе Южное Тушино.
Экологическая обстановка в Левобережном районе, где строится «Северный Порт», оценивается экспертами компании EcoStandard как «приемлемая». В своем рейтинге специалисты дают ему 6 баллов из 10 (где 10 – худшая экологическая обстановка). Из положительных моментов – низкая плотность населения, негативные факторы – загруженность шоссе, не очень большая площадь зеленых насаждений.
Проект реновации также предполагает создание прогулочной набережной, которая в полутора километрах к югу от комплекса соединится с парком Северного речного вокзала. Дойти до него можно минут за 18. Примерно столько же займет путь до Березовой аллеи. Чуть дальше – в 2 км – расположен парк Дружбы.
Около 18 минут займет путь пешком до парка Левобережный и одноименного пляжа. Он расположен в противоположной стороне. Около получаса займет путь пешком до Химкинского лесопарка с его местами отдыха.
Жилой комплекс находится в развитом районе с достаточным количеством магазинов и социальной инфраструктуры. Кроме того, им отводится место и в самом проекте.
Ближайший детский сад – дошкольное отделение школы №158 (Ленинградское шоссе, 116а) – расположен в 1,5 км от новостройки. Дойти до него можно за 14 минут. Чуть дальше находятся еще два корпуса этого учреждения (Валдайский проезд, 20 и Прибрежный проезд, 14а), до которых пешком можно дойти за 16 минут.
Путь пешком до корпусов школы №158 по адресу Валдайский проезд, 14/1 и Смольная улица, 61а займет 15 минут. До отделения школы, расположенного по адресу Прибрежный проезд, 12, дойти можно минут за 16.
За 10 минут от комплекса можно дойти до супермаркетов «ВкусВилл» (Ленинградское шоссе, 69 к2), «Азбука daily» (Ленинградское шоссе, 63г), «Перекресток» (Ленинградское шоссе, 112 к4), «Азбука Вкуса» (Ленинградское шоссе, 112/1). Неподалеку также расположен супермаркет «Супер Лента» (Валдайский проезд, 8).
Ближайшая детская поликлиника (Смольная улица, 55) находится в 1,5 км от комплекса. Дойти до нее можно за 18 минут, путь на машине займет 6 минут. Рядом находится и взрослая поликлиника, однако временно это отделение не работает. Путь до другого, по адресу Петрозаводская улица, 26, займет 9 минут на машине или около получаса пешком.
Чтобы увидеть объекты, нажмите на соответствующую кнопку внизу карты.
Недалеко от комплекса работают несколько финтес-клубов: Bsma (Ленинградское шоссе, 69 к2), Deltasport (Беломорская улица, 9), «Mos russцвет» (Беломорская улица, 16а). Путь до них пешком займет не более 15 минут.
Безопасность
В информационно-аналитической записке о результатах работы отдела полиции по Левобережному району за 2024 год говорится, что «состояние криминогенной ситуации остается стабильным, прогнозируемым».
Ближайший участковый пункт полиции находится в километре от комплекса (Валдайский проезд, 6). Дойти до него можно минут за 12.
Девелопер открыл продажи квартир весной 2024 года. Тогда цены на них стартовали от 13,7 млн рублей. Сейчас они начинаются от 20,9 млн рублей. За эти деньги можно купить студию площадью 30,6 кв. м.
Самый дорогой вариант в представленном предложении – квартира площадью 134,9 кв.м. В планировке – четыре спальни, две гардеробные, три санузла и огромная кухня-гостиная (45,8 кв.м) с барной стойкой. Она продается за 96,6 млн рублей (100%-ая оплата или ипотека), базовая цена при рассрочке – 107,34 млн рублей.
Актуальные цены в ЖК «Северный Порт»:
|
Тип жилья |
Метраж, кв. м |
Цена, руб. |
Цена за кв. м, тыс. руб. |
|
студии |
30.60 |
20 933 154 — 21 214 062 |
684.1 — 693.3 |
|
1-комнатные |
35.00 — 58.10 |
20 478 150 — 38 610 936 |
494.1 — 697.8 |
|
2-комнатные |
59.10 — 98.20 |
29 662 148 — 64 915 110 |
472.6 — 661.1 |
|
3-комнатные |
88.20 — 116.40 |
42 063 462 — 80 134 947 |
476.9 — 716.1 |
|
4-комнатные |
134.80 — 134.90 |
92 821 932 — 96 605 937 |
688.6 — 716.1 |
До 2 декабря на «квартиры месяца» предоставляется дисконт до 7%. Скидка действует в случае платного бронирования квартиры. До этой же даты есть скидка до 9% при оформлении рассрочки. Также застройщик предлагает программу trade-in.
Данные об условиях кредитования действительны на момент публикации статьи. Актуальную информацию вы всегда можете найти в карточке проекта.
Рядом с МЖК «Северный Порт», также на первой линии реки Химки, строится другой проект бизнес-класса – ЖК «Мангазея на Речном». На территории площадью 14 га девелопер «Мангазея» планирует построить 18 монолитно-кирпичных корпусов высотой от 8 до 70 этажей.
Здания будут расположены в 3 линии. Сейчас в строительстве квартал 8, который состоит из двух корпусов высотой 12 и 24 этажа. Сдать их планируется в III кв. 2027 года. Цены в проекте стартуют от 16,8 млн рублей за студию площадью 29,40 кв.м.
Актуальные цены в ЖК «Мангазея на Речном»:
|
Тип жилья |
Метраж, кв. м |
Цена, руб. |
Цена за кв. м, тыс. руб. |
|
студии |
29.40 — 29.80 |
18 829 800 — 19 983 180 |
634 — 679.7 |
|
1-комнатные |
38.50 — 48.80 |
21 638 925 — 29 206 800 |
517.2 — 634.9 |
|
2-комнатные |
56.50 — 71.50 |
33 744 060 — 41 920 450 |
492.5 — 661.1 |
|
3-комнатные |
91.40 |
55 223 880 — 57 362 640 |
604.2 — 627.6 |
Дальше от береговой линии расположен ЖК «Фестиваль Парк-2» застройщика «Центр-Инвест». Это тоже проект бизнес-класса.
Актуальные цены в ЖК «Фестиваль Парк-2»:
|
Тип жилья |
Метраж, кв. м |
Цена, руб. |
Цена за кв. м, тыс. руб. |
|
студии |
26.50 — 26.60 |
16 607 696 — 16 830 867 |
626.7 — 632.7 |
|
1-комнатные |
40.80 — 44.10 |
22 185 892 — 22 695 381 |
504.4 — 544.9 |
|
2-комнатные |
39.90 — 49.40 |
22 324 959 — 24 710 411 |
477.5 — 559.5 |
|
3-комнатные |
65.60 — 84.00 |
31 053 611 — 41 588 488 |
436.1 — 521.2 |
|
4-комнатные |
91.50 — 143.10 |
38 081 118 — 70 989 620 |
402.8 — 507.8 |
|
многокомнатные |
124.50 — 189.90 |
48 033 902 — 93 031 060 |
369.8 — 489.9 |
Он состоит из пяти высотных монолитных корпусов и трех малоэтажных клубных домов. Все они уже введены в эксплуатацию. Цены здесь начинаются от 16,6 млн рублей. За эти деньги можно купить студию площадью 26,30 кв. м.
Резюме
Плюсы МЖК «Северный Порт»:
Минусы:
Безопасный район с развитой инфраструктурой, продуманное благоустройство и просторные квартиры станут плюсом для семейных покупателей. Еще один плюс – река практически во дворе и неплохая экологическая обстановка в районе.
Хотя продажи в проекте стартовали еще весной 2024 года, для инвесторов этот вариант тоже может быть интересен: по мере реновации территории цены на жилье здесь будут только расти.
Дата публикации 25 ноября