Клубный дом «Эльйон» — это готовый жилой комплекс комфорт-класса в Одинцовском районе Московской области. Объект расположен в 16 км от МКАД, из Москвы до него можно доехать на машине или электричке за 20–30 минут. Покупателям предлагаются просторные квартиры с ремонтом «под ключ» или без отделки. Обо всех преимуществах и недостатках ЖК — в обзоре «Новострой-М».
Примечание
В статье перечислены только факты о ЖК, собранные из открытых источников. В рубрике «Экспертиза проекта» Новострой-М решил отказаться от оценок и оценочных суждений: право делать выводы из описанных фактов о жилом комплексе мы предоставляем нашим читателям.
Кто строит?
Проект клубного дома реализован СЗ «Монолит Инвест», который входит в ГК «Монолит». Холдинг ведет свою деятельность с 1989 года. Он объединяет несколько компаний, которые обеспечивают выполнение полного цикла работ от разработки проекта до ввода здания в эксплуатацию, а также предприятия по производству строительных материалов.
Компания возводит жилые дома, объекты социальной инфраструктуры, административные здания, занимается благоустройством своих объектов и строительством дорог. Готовые ЖК застройщика находятся в подмосковных городах Лобня, Мытищи, Королев.
Что строят?
Клубный дом «Эльйон» — это многоподъездный дом высотой 4 этажа, с подземным паркингом и большим закрытым двором. Жилой комплекс ориентирован на семейных покупателей: здесь запроектированы просторные квартиры с лоджиями, балконами и несколькими санузлами, во дворе предусмотрено игровое и спортивное оборудование для семейного досуга, а в одной из секций открыт частный детский центр для дошколят и младших школьников.
ЖК «Эльйон» в цифрах
|
№ дома |
Лоты |
Энергоэффект. |
Машино-места |
Класс |
Срок ввода |
|
1 |
282 |
В |
167 |
Комфорт |
IV кв. 2023 |
Архитектура и дизайн
Жилой комплекс отличается сдержанной архитектурой в скандинавском стиле. В его составе один единственный дом из 21 секции. Все секции имеют одинаковую высоту — 4 этажа, все этажи являются жилыми. Секции образуют замкнутый пятиугольник с арочными проездами во внутренний двор.






Подъезды во всех секциях сквозные, входные группы остекленные. Входы расположены выше уровня земли, подниматься к ним нужно по лестнице, для маломобильных граждан и детских колясок у каждого подъезда предусмотрен пандус или подъемник.
Благоустройство
Просторный внутренний двор расположен на крыше подземного паркинга. Это закрытая территория, где есть всё необходимое для детского и взрослого досуга: игровые комплексы с песочницами и качелями, площадки для командных игр — футбола, баскетбола, зоны ворк-аута и зоны спокойного отдыха с лавочками и навесами. Внутренние дорожки подходят для прогулок, пробежек и катания на велосипедах.
Безопасность и технологии
На территории жилого комплекса и в подъездах установлены камеры видеонаблюдения, которые круглосуточно фиксируют происходящее в общественных зонах. Для обеспечения комфорта и безопасности жителей в доме есть охрана.
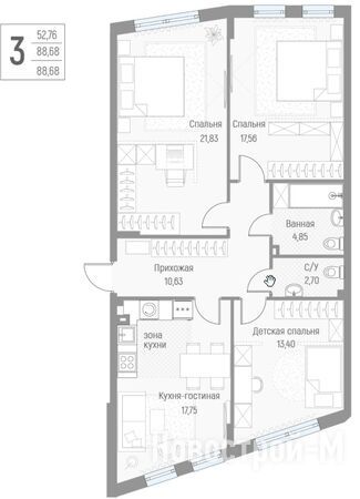
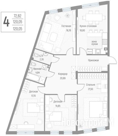
Планировки
Маленьких квартир здесь не предусмотрено — площади начинаются от 49 кв. метров и достигают 120 кв. метров. Количество изолированных спален варьируется от одной до четырех. Во многих лотах есть остекленные лоджии или небольшие узкие балконы. Многокомнатные квартиры есть с распашной, угловой или линейной планировкой, с дополнительным санузлом или полноценной мастер-спальней. Высота потолков во всех квартирах — 3,1 метра.






Квартиры предлагаются с отделкой и без отделки со свободной планировкой. Ремонт как опцию можно добавить при заключении договора и включить его стоимость в ипотечный кредит.
Вид из окон части квартир открывается на примыкающий к ЖК лесной массив, из других квартир будет виден частный сектор или благоустроенный двор.
Где строят?
Жилой комплекс находится в деревне Крюково Одинцовского района Московской области. Расстояние до МКАД — 16 км по Можайскому шоссе. Дорога без пробок занимает около 20 минут, а при высокой загруженности трассы — до 1,5 часов. В часы пик жители новостройки смогут сократить время в пути, воспользовавшись платной трассой М-1.
Время в пути до ж/д станций от клубного дома «Эльйон»:
Доехать до Москвы без автомобиля можно на электричке. Ближайшие железнодорожные станции Перхушково и Здравница находятся в 20 минутах ходьбы от ЖК. Путь на электричке до станции МЦД-1 Одинцово занимает 10 минут, интервалы в движении поездов составляют от 10 минут до 2 часов. Также доехать до станции МЦД можно на автобусе, который следует от остановки «Гипермаркет Глобус», общее время в пути — 39 минут.
Экология
Одинцовский район отличается благоприятной экологической обстановкой. Он находится на значительном удалении от крупных предприятий. Промышленность в районе развита средне, значительную часть территории занимает частный сектор и зеленые массивы. В местных лесах можно гулять, собирать грибы и ягоды, кататься зимой на лыжах. Жителям клубного дома «Эльйон» проводить досуг на природе будет особенно удобно, так как рядом с ЖК протекает река Ликова, а сразу за ней начинается лес.
Инфраструктура
Собственная инфраструктура ЖК ограничивается частным образовательным центром «Азбушка», который объединяет в себе детский сад, начальную школу и секции дополнительного образования.
Детские сады
Несколько детских садов, частных и муниципальных, есть в поселке ВНИИССОК и в Дубках, доехать до образовательных учреждений на машине можно за 8–10 минут, время в пути на автобусе — около получаса.
Школы
Школьники до 9 класса могут посещать Основную школу в Перхушково — до нее 23 минуты ходьбы. За 20 минут можно дойти до частного детского сада и частной школы Da Vinci в деревне Трубачеевка. Доехать до Лесногородской средней школы можно на автобусе за 27 минут. Столько же времени займет дорога на общественном транспорте до современного образовательного центра «Багратион», расположенного в Одинцово на Триумфальной ул., 15.
Супермаркеты
В 8 минутах от новостройки находятся сразу два гипермаркета: продуктовый — «Глобус», хозяйственный — «Лемана Про».
Поликлиники
До взрослой поликлиники в Перхушково можно дойти пешком за 23 минуты. Ситуация с медицинскими учреждениями для детей более сложная: в пешей доступности детских поликлиник нет. За 15 минут можно доехать на машине до поликлиники во Власихе (45 минут общественным транспортом). Чуть дольше придется ехать до педиатрического отделения в Одинцово — 20 минут на машине, 48 минут на автобусе или 10 минут на электричке (но еще около 35 минут придется идти пешком, сначала до платформы Перхушково, потом от платформы Одинцово до поликлиники).
Фитнес-центры
До фитнес-клубов в поселке ВНИИССОК («Физкультпривет» и «Пионер») можно дойти пешком за 25 минут или доехать на машине за 7 минут. Ближайший фитнес-клуб с бассейном Lime Fitness находится в Одинцово, до него 10 минут на машине или полчаса на автобусе.
Безопасность
Общая обстановка в районе стабильная. По итогам 2023 года в отчете МВД отмечено снижение числа зарегистрированных в Одинцовском районе преступлений на 11,3%. Несмотря на небольшой рост числа правонарушений по отдельным статьям, в целом динамика в районе положительная.
Ближайшие отделения полиции:
Цены и способы покупки
Цены на квартиры в клубном доме «Эльйон» начинаются от 9,5 млн рублей за «евродвушку» без отделки с учетом скидки от застройщика. Самый дорогой лот в продаже — четырехкомнатная квартира евро-формата с отделкой «под ключ»: ее стоимость — 19,1 млн рублей.
|
Тип жилья |
Метраж, кв. м |
Цена, руб. |
Цена за кв. м, тыс. руб. |
|
1-комнатные |
48.80 — 49.10 |
10 390 000 — 10 480 000 |
212.8 — 213.9 |
|
2-комнатные |
48.60 — 79.50 |
10 350 000 — 13 930 000 |
172.1 — 213 |
|
3-комнатные |
77.00 — 97.80 |
13 710 000 — 16 930 000 |
172 — 183.9 |
|
4-комнатные |
90.70 — 96.50 |
15 700 000 — 16 600 000 |
172 — 173.1 |
Приобрести недвижимость можно как за собственные средства, так и в ипотеку. Проект подходит в том числе под условия льготных программ — «Семейная ипотека» (ставка от 6%), «Ипотека для IT-специалистов» (ставка от 6%), субсидированная ипотека (ставка от 10%). Максимальный срок кредитования для большинства программ составляет 30 лет, а минимальный первоначальный взнос — от 20,1%.
На ограниченный пул квартир действует скидка от застройщика до 20%. Со скидкой 8% реализуются квартиры с чистовой отделкой при оплате наличными или использовании несубсидированной ипотеки. При покупке квартир «семейного» формата (2–4 спальни) застройщик готов отдать машино-место в подземном паркинге за 100 тысяч рублей.
Для тех, кому перед покупкой новой квартиры необходимо реализовать имеющуюся недвижимость, есть услуга trade-in.
Данные об условиях кредитования действительны на момент публикации статьи. Актуальную информацию вы всегда можете найти в карточке проекта.
Конкуренты
В Одинцовском районе в целом небольшой выбор нового жилья. Из ближайших малоэтажных комплексов покупатели могли бы рассмотреть ЖК «Грибовский лес» и ЖК «Равновесие».
ЖК «Грибовский лес» расположен в деревне Бородки вблизи г. Одинцово. Реализует проект ООО «Симон Джессо». ЖК представляет собой один четырехэтажный многоподъездный дом. В его составе 14 секций, которые образуют прямоугольник. Последний этаж — мансардный. В проекте предлагаются квартиры без отделки площадью от 41 до 140 кв. метров.
Цены в ЖК «Грибовский лес»:
|
Тип жилья |
Метраж, кв. м |
Цена, руб. |
Цена за кв. м, тыс. руб. |
Нет в продаже | |||
Главным преимуществом этого ЖК будет пешая доступность объектов инфраструктуры: до детских садов, школы «Багратион», спортивного клуба и поликлиники можно дойти за 10 минут. Доехать до МКАД по Можайскому шоссе можно за 20–30 минут, в зависимости от дорожной обстановки. Цены на недвижимость в ЖК «Грибовский лес» варьируются от 7,8 до 21 млн рублей. Срок сдачи — 4 квартал 2024 года, но стоит учитывать, что застройщик менял его уже трижды.
ЖК «Равновесие» от застройщика «Кортрос» расположен в селе Перхушково. Это малоэтажный квартал комфорт-класса из нескольких корпусов высотой от 4 до 6 этажей, с благоустроенной территорией и собственной инфраструктурой. В квартале уже введены в эксплуатацию 5 домов и детский сад, ещё 7 будут сдаваться в 2024 и 2026 годах. В проекте есть квартиры разной площади и формата — от 25-метровых студий до четырехкомнатных квартир площадью 121 кв. метр. Цены на недвижимость начинаются от 4,5 млн рублей.
Цены в ЖК «Равновесие»:
|
Тип жилья |
Метраж, кв. м |
Цена, руб. |
Цена за кв. м, тыс. руб. |
| квартиры | |||
|
студии |
24.90 — 34.90 |
6 450 912 — 11 717 465 |
244.8 — 336.7 |
|
1-комнатные |
34.80 — 53.50 |
8 583 109 — 17 644 835 |
225.8 — 335.7 |
|
2-комнатные |
39.29 — 63.10 |
9 548 845 — 16 835 660 |
224.2 — 329.8 |
|
3-комнатные |
53.40 — 89.20 |
13 375 117 — 23 178 976 |
213.3 — 327.8 |
|
4-комнатные |
77.80 — 107.40 |
16 823 226 — 30 989 647 |
215 — 288.5 |
| помещения | |||
|
1-комнатные |
38.29 — 44.50 |
8 414 584 — 9 414 420 |
209.8 — 221.9 |
|
2-комнатные |
38.40 — 57.10 |
8 483 556 — 11 785 440 |
205.5 — 221.9 |
|
3-комнатные |
57.10 — 77.00 |
10 852 426 — 15 959 020 |
190.1 — 209.8 |
Стоит отметить, что у локации ограниченная транспортная доступность: до ближайшей железнодорожной станции не менее 40 минут ходьбы, поэтому проект подойдет скорее тем, у кого есть личный автомобиль.
Резюме
Клубный дом «Эльйон» имеет ряд преимуществ, среди которых пешая доступность железнодорожных станций, соседство с лесным массивом, благоприятная экологическая обстановка, собственный образовательный центр на территории ЖК, два гипермаркета в нескольких минутах ходьбы.
В клубном доме покупателям предлагаются просторные квартиры с эргономичными планировками, ключи от которых можно получить непосредственно в день сделки, так как дом уже сдан.
Минус жилого комплекса — его удаленность от муниципальных детских садов, школ и поликлиник.
Дата публикации 15 октября 2024