VEER – это новый жилой комплекс бизнес-класса в Западном округе Москвы с авторской архитектурой и дизайнерскими общественными пространствами. В мультиквартале будут собственный трехэтажный фитнес-центр с бассейном, дизайнерский двор без машин, квартиры с террасами. Сколько сейчас стоит жилье в этом проекте и чем еще он может быть интересен покупателю – читайте в экспертизе Новострой-М.
Примечание
В статье перечислены только факты о ЖК, собранные из открытых источников. В рубрике «Экспертиза проекта» Новострой-М решил отказаться от оценок и оценочных суждений: право делать выводы из описанных фактов о жилом комплексе мы предоставляем нашим читателям.
Кто строит?
Строительством ЖК VEER занимается MR Group. Девелопер представлен на рынке недвижимости с 2003 года. В портфеле компании 52 проекта общей площадью 9,5 млн кв. м, преимущественно бизнес- и премиум-класса. Кроме жилых квадратных метров девелопер также строит бизнес-центры, МФК, реализовал проект индустриального парка.
По данным Единого ресурса застройщиков на 1 сентября 2024 года, MR Group занимает четвертое место в Москве в рейтингах по объему текущего строительства и объему ввода жилья.
Что строят?
ЖК VEER – это мультиквартал бизнес-класса, состоящий из нескольких урбан-блоков. Комплекс возводится в Можайском районе (Западном округе Москвы) на Верейской улице, в полутора километрах от станции метро «Давыдково».
Первая очередь проекта, которая получила название Indigo, будет состоять из пяти секций разной высоты (от 3 до 59 надземных этажей). Небоскребы объединены низкоэтажной стилобатной частью и образуют прямоугольник, внутри которого разместится закрытый внутренний двор с прудом, зонами отдыха и спортивными площадками.
В корпусах также предусмотрены фитнес-центр с бассейном, магазины, образовательная и бизнес-инфраструктура.
Двухуровневый подземный паркинг рассчитан на 685 машино-мест, также на территории запланированы 85 гостевых парковочных мест.
ЖК VEER в цифрах:
|
№ дома |
Лоты |
Энергоэффект. |
Машино-места |
Класс |
Срок ввода |
|
1 |
1843 |
А |
685 |
А |
III кв. 2028 года |
Архитектура и дизайн
Архитектурную концепцию проекта разрабатывало бюро СПИЧ Сергея Чобана. Переменная высота башен формирует динамичный силуэт комплекса в панораме города. Для каждой башни был разработан свой скульптурный образ и решение фасадов, что по задумке архитектора должно сделать каждый небоскреб в ЖК узнаваемым и запоминающимся. При этом сохраняется общий архитектурный ансамбль.






За дизайн интерьеров в проекте отвечала испанская мастерская Jaime Beriestain Studio. Лобби в башнях ЖК будут одновременно местом для отдыха, коммуникации и работы. Зоны будут четко разграничены, при этом в вестибюле сохранится ощущение открытости и простора. Интерьеры призваны создать атмосферу гостеприимства и сдержанной роскоши.
В лобби разместятся коворкинг и кофе-поинты, лаундж-зона и общественная гостиная.
Благоустройство
В закрытом внутреннем дворе не будет машин, а попасть в него смогут только резиденты жилого комплекса. Проект благоустройства разрабатывала архитектурная дизайн-студия GAFA. В нем дизайнеры обыграли образ веера, раскрывающегося от центра к краям.





Внутренняя территория поделена на четыре зоны, плавно перетекающие друг в друга и объединенные сетью маршрутов среди природного разнообразия. В «Кленовой роще» большая часть отведена под спортивные площадки, «Волшебный лес» – детская зона с площадками для разных возрастов. В центре двора будет «Чайный домик» с утепленным навесом, а ближе к шестой секции ЖК – «Центральная площадь» с прудом, библиотекой и амфитеатром.
Безопасность и технологии
На территории комплекса будет работать круглосуточная охрана и вестись видеонаблюдение. В подземный паркинг резиденты смогут заехать без дополнительных действий благодаря системе считывания номеров. Спуститься туда можно будет на лифте прямо со своего этажа. Там же разместятся велопарковки, сервис подкачки шин и зарядки для электрокаров. Немаловажно, что для курьеров и служб доставки будет организован отдельный вход.
В квартирах предусмотрена установка системы «Умный дом», показания счетчиков будут передаваться автоматически. С помощью мобильного приложения можно будет контролировать уровень подачи тепла в квартиру или управлять освещением, а если кто-то попытается проникнуть в помещение – система тут же сообщит об этом. Также она автоматически перекроет воду, если обнаружит протечку.
В квартирах будет установлена сплит-система, а внешние блоки кондиционеров разместятся на техническом балконе. Оконные системы предполагают наличие клапана проветривания.
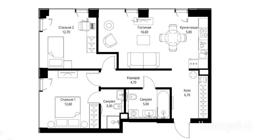
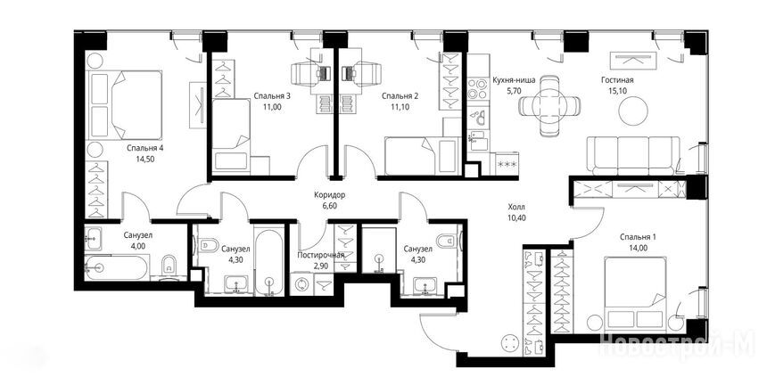
Планировки
В ЖК VEER представлены различные планировки (всего более 200 уникальных решений): студии, квартиры с одной, двумя, тремя, четырьмя и пятью комнатами. Есть варианты с мастер-спальнями, постирочными и кладовыми при кухне, есть квартиры с видом на зеленый массив и реку Сетунь и центр Москвы. Также представлены лоты с террасами. В 4- и 5-комнатных лотах предусмотрено по три санузла, минимум по два – в «двушках» и «трешках». Планировки разработаны с учетом различных жизенных сценариев.





Площади квартир в имеющемся предложении (все данные актуальны на конец сентября 2024 года):
Все квартиры сдаются с отделкой MR Base, которая включает в себя установку розеток и выключателей; выводы горячей холодной воды и канализации; стяжку пола; вывод интернет-сети, IP-телефонии и домофона. Также сюда входит монтаж системы защиты от протечек и управления отоплением, контроль проникновения в квартиру.
Где строят?
ЖК VEER строится в центре Можайского района на бывшей территории Московского радиотехнического завода. До МКАД от комплекса всего 6 км, доехать на машине можно минут за 10, около 15 минут займет выезд на ТТК, до МГУ – минут 17–20, примерно за такое же время на автомобиле можно добраться до Садового кольца. Однако дороги здесь довольно загружены, из-за чего время в пути в часы пик может сильно увеличиться.
Время в пути до станций метро и МЦД:
Экология
Согласно данным рейтинга экспертов EcoStandard, экологическая обстановка в Можайском районе оценивается как «приемлемая» (на 6 из 10, где 10 – самый негативный результат). Из плюсов называется большое количество водоемов. Из минусов – загруженность шоссе.
В 2 км от ЖК расположен природный заказник Долина реки Сетунь с местами отдыха, спортивными площадками и сетью тропинок. Дойти до него можно за 21 минуту. В километре от комплекса расположен пруд Пятачок, до него время в пути займет 11 минут. Примерно столько же до Большого и Малого Манухинских прудов. Расстояние до Козловского леса можно преодолеть за 22 минуты пешком.
Менее 10 минут займет путь на машине до Троекуровских прудов и рощи, 12–13 минут – до Мещерского парка, примерно столько же до Солдатёнковского и Суворовского парков.
Обилие зелени вокруг обеспечит приятные виды из окон квартир на высоких этажах.
Инфраструктура
В жилом комплексе откроются кафе, рестораны, супермаркеты, аптеки, химчистки, студия для занятий йогой, а также собственный трехэтажный фитнес-центр с бассейном. Мультиквартал VEER в целом позиционируется как «15-минутный город», в котором все будет под рукой.
Ближайший муниципальный детский сад расположен в километре от ЖК (улица Гродненская, 7 к1) дойти до него можно за 10 минут. В полутора километрах находится Классический пансион МГУ им. М. В. Ломоносова, путь до него пешком займет около 18 минут. Рядом есть несколько частных детских садов: Rybakov Playschool (Гжатская улица, 5 к4), Smile Fish (Гжатская улица, 5 к1), kotiki school (улица Петра Алексеева, 14). Дойти до них можно минут за 10.
В Классическом пансионе МГУ им. М. В. Ломоносова также располагается школа. До школы «Западный комплекс непрерывного образования» (Гжатская улица, 6) можно дойти за 10 минут. Чуть дальше находится колледж «Западного комплекса непрерывного образования» (улица Гродненская, 5). Путь пешком до школы №1195 (Рябиновая улица, 8 к2) займет около 20 минут.
В шаговой доступности от комплекса есть несколько супермаркетов федеральных сетей: «ВкусВилл», «Пятерочка», «Магнит». Есть и другие торговые точки. Кроме того, в самом ЖК планируется открыть различные магазины на первых этажах.
Ближайшая взрослая поликлиника – Клинико-диагностический центр №4 – расположена по адресу: Можайское шоссе, 14 ст4. Дорога до нее пешком займет около 20 минут, на машине можно добраться за 7–10 минут.
Детская поликлиника находится еще дальше. Детская городская поликлиника №30 расположена по адресу: улица Толбухина, 14. До нее можно добраться пешком минут за 40, на машине – за 11.
Есть несколько частных медицинских центров, но расположены они с противоположной стороны Можайского шоссе, путь до них на машине займет около 10 минут, пешком – минут 20.
Если фитнес-центра с бассейном в ЖК будет недостаточно, то в километре от нашей новостройки расположен спортивный комплекс «Кунцево» с бассейном и стадионом (Можайское шоссе, 7 ст1).
На Рябиновой улице, 3с6 работает премиальный фитнес-клуб World Class, а за 10 минут можно доехать на машине до универсального дворца спорта «Крылья Советов» (улица Толбухина, 10 к4) с хоккейной школой.
Безопасность
Согласно информационно-аналитической записке к отчету начальника Отдела МВД России по Можайскому району Москвы, в 2023 году количество зарегистрированных преступлений снизилось 3,6 % (с 1167 до 1125). Уличных и квартирных краж, угонов автомобилей стало меньше. За год не было зафиксировано ни одного разбоя, а три совершенных ранее раскрыли. Выросло количество ложных сообщений о терроризме, мошенничеств, угроз убийством и хулиганских происшествий.
В целом же район не входит в список самых опасных мест Москвы, и криминогенная обстановка в нем находится в пределах нормы.
Ближайшие участковые пункты полиции находятся на Можайском шоссе, 29 и улице Вересаева, 7. От них можно добраться до жилого комплекса на машине за 5–7 минут, путь пешком займет около 20 минут.
Цены и способы покупки
Продажи квартир в комплексе VEER стартовали в августе 2024 года, тогда цены начинались от 11,8 млн рублей за студию площадью 20,6 кв. м.
В конце сентября 2024 года цены начинаются от 12 млн рублей. За эти деньги можно приобрести студию площадью 20,6 кв. м. Самый дорогой вариант в текущем предложении – квартира площадью 156,2 кв. м. Она включает в себя четыре спальни, кабинет, три санузла, три гардеробных и большую кухню-гостиную (34 кв. м). Эта квартира продается сейчас почти за 49,5 млн рублей.
Актуальные цены в ЖК VEER:
|
Тип жилья |
Метраж, кв. м |
Цена, руб. |
Цена за кв. м, тыс. руб. |
|
студии |
20.50 — 37.50 |
16 456 000 — 23 778 750 |
564 — 817.7 |
|
1-комнатные |
30.20 — 79.10 |
18 595 080 — 38 953 800 |
420.8 — 799 |
|
2-комнатные |
49.00 — 115.60 |
25 830 000 — 48 147 400 |
416.5 — 646 |
|
3-комнатные |
72.70 — 103.40 |
34 102 850 — 57 128 500 |
444 — 578 |
|
4-комнатные |
94.90 — 112.10 |
48 802 325 — 61 935 250 |
482.8 — 552.5 |
|
многокомнатные |
158.70 |
74 866 725 |
471.8 |
Застройщик предлагает несколько вариантов приобретения недвижимости: 100% оплата, рассрочка, ипотека и ипотека с субсидией. Для уточнения условий по каждому конкретному предложению необходимо связаться с менеджером офиса продаж.
Данные об условиях кредитования действительны на момент публикации статьи. Актуальную информацию вы всегда можете найти в карточке проекта.
Конкуренты
Территории вдоль Верейской улицы начинают активно осваиваться девелоперами. Рядом с ЖК VEER сейчас идет строительство комплекса «Верейская 41» от группы «Самолет». Этот проект включает в себя четыре урбан-блока высотой от 6 до 14 этажей. Цены здесь начинаются от 9,6 млн рублей за студию с отделкой и кухней, площадь лота 22,7 кв. м. Судя по данным на официальном сайте застройщика, заселение планируется во втором квартале 2025 года.
Цены в «Верейская 41»:
|
Тип жилья |
Метраж, кв. м |
Цена, руб. |
Цена за кв. м, тыс. руб. |
|
студии |
22.03 — 31.16 |
20 689 320 — 24 586 170 |
762.8 — 943.6 |
|
1-комнатные |
31.88 — 57.14 |
23 299 086 — 42 120 294 |
597.2 — 849.3 |
|
2-комнатные |
49.28 — 98.49 |
30 684 029 — 64 451 818 |
575.9 — 770.2 |
|
3-комнатные |
62.43 — 110.19 |
40 366 177 — 70 874 208 |
575.5 — 721 |
|
4-комнатные |
98.82 — 125.55 |
61 578 201 — 78 964 045 |
553.5 — 628.9 |
Практически напротив, через дорогу, ведется строительство квартала «Родина Парк» от Группы «Родина». Этот комплекс премиум-класса также расположен в пешей доступности от метро «Давыдково». Сейчас здесь строятся три монолитных корпуса высотой 11–19 этажей со сроком ввода I кв. 2027 года. По состоянию на сентябрь 2024 года в продаже представлены только 2- и 3-комнатные квартиры площадью от 41,9 до 83,2 кв. м без отделки. В перспективе в реализацию должны также поступить таунхаусы с палисадниками.
Цены в ЖК «Родина Парк»:
|
Тип жилья |
Метраж, кв. м |
Цена, руб. |
Цена за кв. м, тыс. руб. |
|
студии |
29.70 — 174.50 |
23 966 368 — 221 944 700 |
690.9 — 1271.9 |
|
1-комнатные |
38.40 — 42.40 |
24 658 421 — 31 713 006 |
590.8 — 774.2 |
|
2-комнатные |
41.00 — 54.40 |
23 762 054 — 43 779 012 |
515.4 — 959.9 |
|
3-комнатные |
61.30 — 93.90 |
42 019 823 — 77 018 513 |
517.2 — 1018.8 |
|
4-комнатные |
85.30 — 125.60 |
63 394 795 — 122 476 060 |
699.9 — 1307.1 |
Резюме
Плюсы ЖК VEER:
Минусы:
Расположение комплекса во многом определяет его плюсы и минусы. С одной стороны, рядом находится много зеленых зон: это и парки, и пруды, и природный заказник Долина реки Сетунь. С другой стороны – рядом расположена масштабная промзона – «Очаково». В локации, где строится ЖК, активно идет редевелопмент этих территорий и появляется много жилых проектов, но производственных корпусов по соседству пока тоже немало.
До ближайших социальных объектов (детсадов, школ, больниц) придется немного пройтись. В районе с ними нет проблем, но из-за специфики местоположения ЖК, находятся от него в удалении. Вероятно, ситуация изменится, когда в этой локации будут реализованы все запланированные жилищные проекты. Появится дополнительная инфраструктура, в том числе и социальная. То же касается и станции метро: станция есть относительно недалеко, но дойти до нее можно минут за 20. С другой стороны, жилой комплекс рассчитан прежде всего на резидентов, в собственности которых есть автомобиль.
Однако в районе все отлично со спортивными объектами, да и в самом доме будет открыт фитнес-центр с бассейном.
Семейные покупатели найдут для себя в ЖК VEER хорошие варианты планировок, безопасный внутренний двор с детскими площадками для разных возрастов. Для одиноких и молодых семей без детей есть студии и просторные (до 79,1 кв. м) однокомнатные варианты. Проект может быть интересен и инвесторам, эта локация имеет неплохие характеристики, пользуется спросом за счет престижного статуса запада Москвы и активно развивается.
Дата публикации 24 сентября 2024