«Мангазея на Тульской» появится в Даниловском районе (ЮАО) недалеко от станции метро «Тульская». Здесь запланировано строительство двух жилых небоскребов и бизнес-центра. Удобные планировки, собственная инфраструктура, хорошая транспортная доступность и близость к центру — почему еще новый проект девелопера «Мангазея» привлекает покупателей, изучал Новострой-М.
Примечание
В статье перечислены только факты о проекте, собранные из открытых источников. В рубрике «Экспертиза проекта» Новострой-М решил отказаться от оценок и оценочных суждений: право делать выводы из описанных фактов мы предоставляем нашим читателям.
Кто строит
Компания «Мангазея» присутствует на рынке с 2012 года, она специализируется на строительстве жилой и коммерческой недвижимости сегментов «комфорт», «бизнес» и «премиум». В московском портфеле девелопера — четыре сданных проекта и три строящихся. Еще один проект готовится к запуску.
Что строят
«Мангазея на Тульской» относится к классу «бизнес+». Стройплощадка расположена на Большой Тульской улице, раньше здесь находился бизнес-центр «Серпуховской двор».
Проект состоит из двух монолитных башен высотой 41–42 этажа (плюс 11-этажная секция), также будет построен 27-этажный бизнес-центр. Жилые корпуса планируется ввести в эксплуатацию в IV квартале 2027 года. На двух подземных уровнях разместятся паркинг, места для хранения велосипедов и кладовые. Общая площадь проекта — 53 958 кв. м.
«Мангазея на Тульской» в цифрах:
|
№ |
Квартиры |
Энергоэффект. |
Класс |
Машино-места |
Срок ввода |
|
1 |
916 |
А |
бизнес |
496 |
IV кв. 2027 г. |
Архитектура, дизайн и благоустройство
Архитектурную концепцию проекта «Мангазея на Тульской» разработали в бюро IND. Башни-небоскребы носят названия Бронзовая и Серебряная, их фасады будут отделаны стемалитом и металлическими панелями, за счет этого они будут искриться на солнце. У каждой башни свой силуэт: в архитектуре Бронзовой башни есть такой элемент как зубцы, напоминающие стену Кремля, форма Серебряной башни — ступенчатая. 27-этажная Донская башня будет отведена под деловой центр.
В гранд-лобби запроектирована велком-зона, откуда можно попасть в кофейню и пекарню. На антресольном этаже лобби разместятся конференц-зал, коворкинг, кофе-поинт с зоной отдыха. В каждой секции — колясочные и лапомойки.














Двор будет закрыт от посторонних, на его территории разместятся детские и спортивные площадки, места для отдыха с качелями, коворкинг, прогулочный арт-променад в виде цифровой реки. Особое внимание уделено ландшафту: территорию украсят камни-валуны, будут высажены пихты, карликовые ели и сибирский кустарник дерен. Жилую и деловую часть комплекса соединит пешеходный бульвар.
Безопасность и технологии
Предусмотрены системы видеонаблюдения, пожарной безопасности и контроля доступа. Вход на территорию будет бесконтактным. Для связи с управляющей компанией разработано мобильное приложение, все квартиры будут оснащены системой «Умный дом». Это позволит не только управлять бытовой техникой и климатом, но и экономить расход ресурсов. В паркинге будет обеспечено усиление сотовой связи.
Нежилые метры
Двухуровневый подземный паркинг рассчитан на 496 машино-мест, включая зависимые места и места с зарядками для электрокаров. Также на подземных этажах разместятся кладовые и места для хранения велосипедов. На первых этажах небоскребов откроются супермаркет, салоны красоты, пекарня, аптека, службы сервиса.
В отдельном двухэтажном здании будет работать ресторан, также предусмотрено строительство детского сада и клиники.
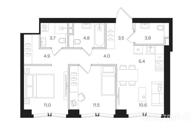
Квартиры и планировки
В «Мангазее на Тульской» спроектировано 916 квартир: 409 в Серебряной башне и 507 – в Бронзовой. В начале июля 2024 года в продаже представлены квартиры в Бронзовой башне. Все планировки — европейские, с кухней-гостиной и широкоформатными окнами без подоконников и высотой потолка до 3.16-3.48 м. Отделка не предусмотрена.



Площадь 1-комнатных квартир — от 39,5 до 42,9 кв. м. В таких квартирах есть ниши для хранения, в некоторых планировках имеются мастер-спальни.
Площадь 2-комнатных лотов — от 63,5 до 72,8 кв. м. В каждой квартире есть мастер-спальня и зоны для хранения, в некоторых планировках предусмотрены гардеробная, два окна в кухне-гостиной и спальне.
3-комнатные комнаты представлены одним вариантом планировки площадью 85,5 кв. м. Здесь три санузла (один из них в мастер-спальне) и ниши для хранения.
Также анонсированы двухуровневые квартиры и варианты с террасами, на сайте проекта они пока не предлагаются.



Где строят
Небоскребы «Мангазея на Тульской» строят в Даниловском районе между Малой и Большой Тульскими улицами, рядом с Тульской эстакадой (ТТК). Ближайшая станция метро — «Тульская», сейчас до нее 10 минут пешком, после завершения строительства это время составит 5 минут.
Станции метро, время в пути от ЖК «Мангазея на Тульской»:
Рядом с новостройкой останавливаются автобусы, можно доехать до Даниловского рынка, станций метро «Лубянка», «Варшавская», «Беляево», «Красногвардейская», «Профсоюзная» и МЦК «ЗИЛ».
Для автомобилистов появятся удобные выезды на ТТК и Большую Тульскую улицы. До Садового кольца можно будет доехать за 10 минут.
Экология
В экологическом рейтинге компании EcoStandard Даниловский район получил 8 баллов из 10, экологическая обстановка здесь оценивается как удовлетворительная. Основной недостаток района — нехватка зеленых насаждений.
«Мангазея на Тульской» возводится в окружении дорог. Дефицит зелени будет компенсирован высадкой деревьев и кустарников на придомовой территории. В 13 минутах ходьбы находится парк у пруда Бекет, за 15 минут на машине можно доехать до парка аттракционов «Остров мечты», Северного и Южного ландшафтных парков, Нескучного сада.
Инфраструктура
Собственная инфраструктура «Мангазеи на Тульской» представлена различными объектами на первых этажах, детским садом, клиникой, рестораном авторской кухни. Также будет построен 27-этажный бизнес-центр.
Недалеко от нашей новостройки есть билингвальный детский сад «Интеграл» сети «Академическая гимназия», дойти до него можно за 2 минуты. Ближайший муниципальный детский сад — дошкольное отделение школы №1257 на 3-й Рощинской, до него 6 минут пешком.
В 4 минутах ходьбы от «Мангазеи на Тульской» находится один из корпусов школы №1257 с начальными и средними классами. До корпуса №10 школы №630 на Малой Тульской — 10 минут.
Филиал №2 детской поликлиники №91 на улице Лестева находится в 1 км или 12 минутах пешком от нашей новостройки. До КДЦ №1 «НИКИ детства» на Большой Серпуховской — 1,5 км или 18 минут пешком.
До филиала №4 детской поликлиники №61 — почти 2,3 км, пройти это расстояние можно почти за полчаса, дорога на общественном транспорте займет 17 минут, на автомобиле — 6 минут. В 2,5 км от «Мангазеи на Тульской» находится Морозовская детская больница.
На Павловской улице расположен филиал №5 взрослой поликлиники №67, от него до нашей новостройки — 1,3 км или 15 минут ходьбы. До клиники «Медси» в Гамсоновском переулке — 860 метров или 8 минут, до медсанчасти АО «Гознак» — 1,4 км или 17 минут.
Ближайшие сетевые супермаркеты — «Пятерочка», «ВкусВилл», «Чижик». Рядом с метро «Тульская» работает ТРЦ «Ереван Плаза» с круглосуточной «Азбукой вкуса» и кинотеатром, а до Даниловского рынка можно дойти пешком за 8 минут.
Заняться спортом можно в спортклубе «Канрит», здесь работают секции различных видов единоборств, йоги, настольного тенниса и шахмат. Дойти до клуба от «Мангазеи на Тульской» можно всего за 3 минуты. До фитнес-клуба «Персона Фитнес» — 5 минут, до студии йоги Way to Self — 9 минут.
Также рядом с новостройкой есть множество магазинов, салонов красоты и кафе, социальный фонд и различные учебные заведения.
Безопасность района
Даниловский район не является ни самым криминальным, ни самым безопасным районом Москвы. Из информационно-аналитической записки «Об итогах оперативно-служебной деятельности Отдела МВД России по Даниловскому району г. Москвы за 12 месяцев 2023 года» следует, что в прошлом году количество зарегистрированных преступных посягательств снизилось на 13,4% (с 1 390 до 1 204).
Стало меньше преступлений небольшой тяжести (-3,9%), тяжких и особо тяжких (-29,8%), но выросло число преступлений средней тяжести (+8,7%). На мошенничества пришлось 17,3% зарегистрированных правонарушений, в основном они совершены дистанционно.
Ближайший к «Мангазее на Тульской» участковый пункт полиции расположен на улице Малая Тульская, 2/1 к. 20, до него 660 метров или 8 минут пешком.
Цены и способы покупки
Продажи в «Мангазее на Тульской» начались совсем недавно, в июле, а в начале августа 2024 года цены на квартиры варьировались от 19 млн рублей за 1-комнатную квартиру площадью 36,7 кв. м до 40,8 млн рублей за 3-комнатную площадью 85,5 кв. м.
Цены в «Мангазее на Тульской»:
|
Тип жилья |
Метраж, кв. м |
Цена, руб. |
Цена за кв. м, тыс. руб. |
|
студии |
28.10 — 34.10 |
20 032 490 — 31 315 800 |
664.9 — 972.3 |
|
1-комнатные |
36.80 — 67.60 |
26 113 280 — 54 084 960 |
607.2 — 972.8 |
|
2-комнатные |
57.20 — 89.60 |
39 090 480 — 74 585 200 |
580.9 — 980.3 |
|
3-комнатные |
85.80 — 107.60 |
55 949 700 — 83 800 500 |
604.8 — 876.2 |
Купить квартиру в небоскребах «Мангазея на Тульской» можно в ипотеку: кредиты предоставляют Альфа-Банк, Сбербанк, Дом.рф, ВТБ, Абсолют Банк, МТС Банк, Совкомбанк, Уралсиб, Металлинвестбанк, Московский кредитный банк (МКБ). Ставки — от 3,5% по семейной ипотеке.
Еще один вариант — трейд-ин.
Данные об условиях кредитования действительны на момент публикации статьи. Актуальную информацию вы всегда можете найти в карточке проекта.
Конкуренты
Ближайший конкурент «Мангазеи на Тульской» — премиальный проект «Дом 7 Даниловский» от девелопера Coldy. Продажи здесь стартовали в мае этого года, планируется строительство трех 15-этажных корпусов, ввод в эксплуатацию намечен на II квартал 2027 года. Квартиры реализуются с чистовой и предчистовой отделкой, студий в проекте нет. Цены — от 28,9 млн рублей за евродвушку с готовой отделкой площадью 35,27 кв. м.
Цены в «Дом 7 Даниловский»:
|
Тип жилья |
Метраж, кв. м |
Цена, руб. |
Цена за кв. м, тыс. руб. |
|
1-комнатные |
30.80 — 65.70 |
29 657 320 — 74 103 030 |
910 — 1139.7 |
|
2-комнатные |
53.70 — 177.20 |
55 976 880 — 331 434 880 |
996.7 — 1870.4 |
|
3-комнатные |
111.20 — 117.00 |
113 291 100 — 117 694 080 |
968.3 — 1058.4 |
Более бюджетные варианты предлагает Sense Development в доме Logos. Клубный дом премиум-класса будет сдан уже в этом году, его особенность — двухуровневая терраса на крыше. Лоты продаются с предчистовой отделкой, цены — от 18,3 млн рублей за студию площадью 32,5 кв. м.
Цены в доме Logos:
|
Тип жилья |
Метраж, кв. м |
Цена, руб. |
Цена за кв. м, тыс. руб. |
|
1-комнатные |
72.70 — 85.30 |
45 915 960 — 72 496 290 |
631.6 — 849.9 |
|
2-комнатные |
140.90 |
92 881 890 |
659.2 |
Резюме
К минусам проекта относится то, что с трех сторон он окружен дорогами, в том числе Третьим транспортным кольцом. Однако этот вопрос решается установкой шумозащитных экранов, а для автомобилистов столь близкое расположение к ТТК будет только плюсом, так как сократит время выезда на магистраль и в другие районы города.
Плюсы «Мангазеи на Тульской»:
Квартиры в этом жилом комплексе подойдут как семейным парам с детьми, так и одиночкам, для которых важно жить вблизи центра Москвы в доме, в котором все необходимое есть под рукой.
Дата публикации 06 августа 2024