ЖК Forst — это флагманский проект застройщика Forma. Его концепция вдохновлена скандинавской эстетикой, а из окон и с террас открываются впечатляющие виды на Москву-реку и исторический центр столицы. Помимо живописных панорам, будущие резиденты комплекса получат эргономичные планировки и возможность экономить на коммунальных услугах за счет высокой энергоэффективности зданий. Новострой-М узнал все подробности об этом проекте.
Примечание
В статье перечислены только факты о ЖК, собранные из открытых источников. В рубрике «Экспертиза проекта» Новострой-М решил отказаться от оценок и оценочных суждений: право делать выводы из описанных фактов о жилом комплексе мы предоставляем нашим читателям.
Кто строит?
Молодая амбициозная компания Forma — дочерняя структура ПИК, организованная в 2021 году специально для реализации проектов с авторской архитектурой в сегментах «бизнес» и «премиум». Все жилые комплексы Forma отличаются неплохим местоположением на карте Москвы, оригинальной концепцией, высокой энергоэффективностью и технологичностью. Большое внимание застройщик уделяет созданию общественных пространств и удобной инфраструктуры. Forst – первый проект девелопера, и уже скоро должен состояться ввод в эксплуатацию. Помимо этой новостройки, в портфеле компании есть еще четыре проекта в разных районах столицы.
Что строят?
ЖК бизнес-класса Forst — это 4 двадцатиэтажных корпуса на Симоновской набережной Москвы-реки с собственным детским садом на 95 мест. Общая жилая площадь проекта – 46 965 кв. м. В основе концепции комплекса – скандинавский стиль и образ жизни. Архитектура отличается лаконичностью и строгой геометрией, в квартирах, обращенных к реке, предусмотрены панорамные окна, лоджии и террасы. В здании спроектировано 808 квартир, подземный паркинг рассчитан на 273 автомобиля, еще 59 машино-мест будет на придомовой территории и 125 мест – по внешнему периметру дома.
Мы посещали стройплощадку этого ЖК совсем недавно, в марте 2024 года, и вы можете оценить ход строительства.






ЖК Forst в цифрах:
|
№ дома |
Лоты |
Энергоэффект. |
Машино-места |
Класс |
Срок ввода |
|
1 |
808 |
А++ |
273
|
Бизнес |
II кв. 2024 |
Архитектура и дизайн
Название ЖК Forst переводится с норвежского языка как «первый». В основу архитектурной концепции комплекса положены скандинавские мотивы, образ фьорда, расположенного среди скал на берегу холодного моря. Над проектом работали архитектуры бюро WALL, которые постарались максимально реализовать видовой потенциал локации. Комплекс находится на своеобразном мысе, в стороне от существующей и будущей застройки. Отсюда открываются виды на излучину Москвы-реки. Расположение корпусов продумано таким образом, чтобы живописные панорамы были доступны для большего числа квартир.







Во всех квартирах, из которых открывается вид на реку, будут установлены панорамные окна от стены до стены высотой 2,5 м. В квартирах, обращенных во двор, ширина окон составит 1,8 м. Для остекления применяются двухкамерные энергоэффективные стеклопакеты, которые не только обеспечивают комфортный микроклимат в помещениях и минимизируют теплопотери, но и гарантируют максимальную звукоизоляцию, что особенно актуально для квартир с окнами на ТТК.
В отделке фасада используется натуральный камень на первом этаже, а выше — бетонная плитка нескольких оттенков, алюминиевые ребристые и композитные панели. Сохранить внешнюю эстетику позволят технические балконы, куда будут вынесены внешние блоки кондиционеров.
В каждой секции есть просторное светлое лобби, в котором предусмотрены зоны ожидания с диванами, колясочные, гостевые санузлы и лапомойки. Главное лобби станет центром притяжения для жителей квартала: потолки 6 метров, дизайнерская отделка, зона с камином и библиотекой, лекторий с проектором, уютное кафе, а также ресепшн, где можно будет решить все бытовые вопросы.
Благоустройство
В ландшафтном дизайне от бюро Gillespies находит продолжение образ скандинавской природы. На внутриквартальной территории, закрытой от машин и посторонних, появится сеть пешеходных дорожек, мощенных колотым гранитом, тропинки, отсыпанные гранитной крошкой, а также зеленые островки. Дополнят образ скандинавского двора натуральные валуны и необработанные каменные поверхности. В центре двора появится раскидистое дерево (отсылка к древу жизни из скандинавской мифологии). Также будут высажены канадская ирга, горная сосна, приречный клен, гортензии и папоротники.










Двор будет разделен на функциональные зоны. Здесь появится площадка для выгула и дрессировки собак, спортивная зона и детский городок в стиле скандинавской деревни. На крыше здания детского сада будет создан экологичный плейхаб площадью 327 кв. м.
В рамках проекта благоустройства также предусмотрено создание северного парка и реновация участка Симоновской набережной. Вдоль реки появятся прогулочный маршрут, зоны для отдыха и площадки для командных игр с баскетбольными кольцами.
Безопасность и технологии
ЖК Forst — это высокотехнологичный дом, который соответствует высочайшему классу энергоэффективности А++, что подтверждено «зеленым» сертификатом. Для экономного потребления ресурсов предусмотрены датчики движения, утепление окон и стен, а также современные счетчики отопления, воды и электричества. В каждой квартире будут приточные клапаны, позволяющие установить бризер для очистки воздуха. Вода, которая поступает в квартиры, будет проходить пятиступенчатую фильтрацию. Вместе с ключами застройщик планирует вручать будущим жильцам диспоузеры – измельчители для бытовых отходов.
Во всех секциях ЖК Forst будут установлены современные бесшумные скоростные лифты — по 2 пассажирских и по 1 грузовому с увеличенной высотой кабины до 2,4 м.
В подземном паркинге появятся зарядные станции для электрокаров.
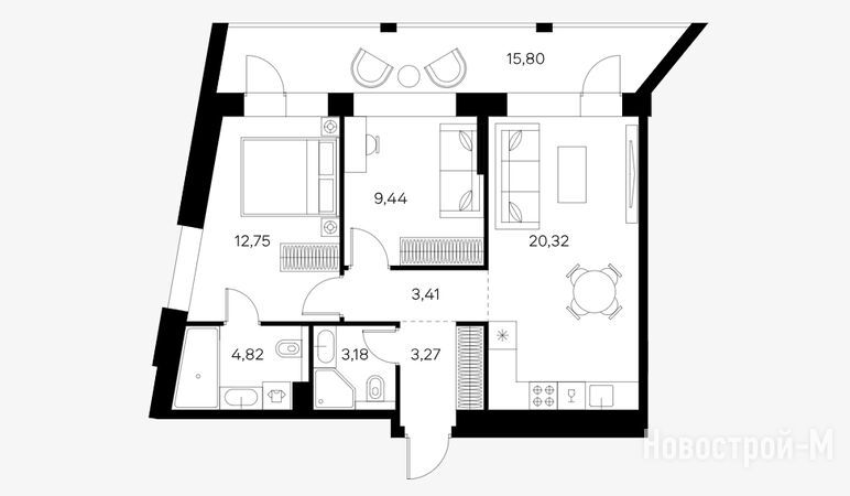
Планировки
В комплексе представлены планировочные решения под разный состав семьи и жизненные сценарии. Есть квартиры с одинаковым расположением комнат, но разной площадью, с гардеробными и лоджиями или без них, благодаря чему покупатели смогут выбрать для себя оптимальный вариант по метражу и функциональности.
Квартирография проекта включает:
Все квартиры – евроформата с большими кухнями-гостиными. Есть варианты с гардеробными и мастер-спальнями, квартиры с окнами на две или три стороны света.






В числе эксклюзивных предложений лоты на первым этаже с патио, квартиры с террасами, с окном в ванной, пентхаусы площадью до 142,4 кв. м с сауной и возможностью установки дровяного камина.
В большинстве квартир, обращенных окнами к реке, предусмотрена лоджия или терраса, а также увеличенная площадь остекления. Ограждения лоджий и террас выполнены из прочного стекла (триплекс) для увеличения радиуса обзора.
Отделка white box max запланирована в секциях 3 и 4, в остальных — квартиры реализуются без отделки. Однако на сайте застройщика представлены отдельные лоты с предчистовой отделкой и в секциях 1, 2, 5.
Где строят?
ЖК Forst возводится в Даниловском районе ЮАО, довольно близко к центру — в пределах ТТК. Магистраль проходит у самой границы комплекса, на нее есть удобный выезд как в сторону Автозаводского моста, так и в сторону ЮВХ. Добраться на машине до Садового кольца можно за 10 мин. За 18 минут можно выехать на Кремлевскую набережную, столько же времени потребуется, чтобы доехать до делового центра «Москва-Сити».
Станции метро и МЦК, время в пути от ЖК Forst:
Ближайшая от комплекса станция метро — «Тульская» — расположена в 1,2 км, дойти до нее можно за 15 мин., однако придется пройти под эстакадой и пересечь мост. Альтернативный вариант — станция метро «Автозаводская», расположенная в 2 км по одноименной улице. Дорога прямая и удобная, время в пути порядка 24 мин. Также можно дойти до станции МЦК «ЗИЛ» — 1,6 км или 20 мин. ходьбы.
Экология
Экологическая ситуация в Даниловском районе изменилась с момента старта программы редевелопмента промзон. Огромные площади, которые ранее занимали заводы, фабрики и складские помещения, постепенно превращаются в современные деловые и жилые кварталы. И хотя отголоски промышленного прошлого будут ощущаться ещё не один год, состояние экологии в Даниловском районе стало лучше и сегодня оценивается экспертами EcoStandart как «удовлетворительное». Главным негативным фактором остается отсутствие «зеленых» зон в самом районе и поблизости.
Выбор мест для прогулок у будущих жителей ЖК Forst не слишком велик: пешком можно дойти до Симоновской набережной (3 мин.), набережной Марка Шагала (10 мин.) или парка «Тюфелева роща» (28 мин.). До крупных парков, где можно отдохнуть от городского шума, придется ехать на машине или велосипеде:
А если захочется прогуляться по настоящему лесу (например, Битцевскому), придется ехать на машине не менее 20 мин.
Инфраструктура
Расположение ЖК Forst довольно уединенное. Комплекс строится на обособленном участке в излучине Москвы-реки: с одной стороны вода, с другой — Третье транспортное кольцо. Инфраструктура в этой части района не слишком развитая, особенно если говорить о развлекательной составляющей. Зато до образовательных и медицинских учреждений можно дойти пешком.
Ближайший муниципальный детский сад находится на расстоянии 980 м, дойти до него пешком можно за 12 мин. Чуть больше времени, порядка 13–15 мин., займет дорога до частных садов Smile Fish, «Бэбиполис Умничка», «Парус». Но самый удобным вариантом для резидентов ЖК Forst будет билингвальный детский сад English Preschool Discovery, который разместится здании, пристроенном ко 2-й секции дома.
В шаговой доступности от новостройки находится самая большая в России школа №548 на 2500 учащихся. Новое четырехэтажное здание находится на пр. Лихачева, дойти до него можно за 12 мин. За 22 мин. можно также дойти до школы №463 или школы №1257, расположенной на противоположном берегу реки.
По соседству с ЖК Forst находится крупный ТЦ «Ривьера», в котором есть «Ашан», магазины одежды для всей семьи, спортивный магазин, магазины косметики, бытовой техники, детских игрушек, фуд-корт, кинотеатр, детская комната и интерактивный музей. За строительными материалами, мебелью и товарами для дома можно отправиться в «Леруа-Мерлен», который находится всего в 1,5 км от новостройки. В 10 мин. ходьбы также есть сетевые супермаркеты «Пятерочка» и «ВкусВилл»
Пройти обследование, поставить плановые прививки детям и взрослым, оформить больничный можно в муниципальной поликлинике, расположенной на ул. Автозаводской, 23 с177. Дойти до медицинского учреждения пешком можно за 12 мин. Ближайшая частная клиника «МАК» находится на расстоянии 950 м, если идти от новостройки вдоль ТТК.
В 10 минутах ходьбы есть несколько спортивных клубов, в которых можно заниматься на тренажерах, попробовать кроссфит или бокс или даже гимнастику и акробатику. Ближайший World Class с бассейном, групповыми программами и индивидуальными тренировками находится на другой стороне реки, дойти до него пешком можно за 24 мин., доехать на машине — за 8 мин.
Безопасность
Оперативную обстановку в Даниловском районе по итогам 2023 года можно считать стабильной. По одним статьям преступлений стало меньше, по другим — их число возросло. Особенно активными в прошедшем периоде были мошенники, лица, занимающиеся сбытом запрещенных веществ, а также угонщики. Район переживает серьезные трансформации, в связи с чем здесь стало больше новых жителей, приезжих из других регионов и стран, временно проживающих рабочих. Это усугубляет криминогенную обстановку.
Ближайшее отделение полиции (Штаб народной дружины) находится на ул. Автозаводской, в 19 мин. ходьбы от новостройки. До отдела МВД по Даниловскому району можно доехать на машине за 8 мин. Еще один участковый пункт находится за рекой, дойти до него пешком можно за 23 мин, путь на машине с учетом разворота займет 16 мин.
Цены и способы покупки
Продажи квартир в ЖК Forst стартовали в ноябре 2021 года, минимальная стоимость квартиры тогда составляла 10,83 млн руб. В апреле 2024 года минимальный бюджет покупки студии – 14,5 млн руб.
Очередное повышение цен запланировано после 12 апреля 2024 года.
|
Тип жилья |
Метраж, кв. м |
Цена, руб. |
Цена за кв. м, тыс. руб. |
|
2-комнатные |
60.70 |
33 324 300 |
549 |
|
4-комнатные |
135.20 — 140.40 |
67 918 500 — 72 207 616 |
483.8 — 534.1 |
Приобрести квартиру можно за собственные или кредитные средства. При 100% предоплате будут предложены специальные скидки. Также доступна программа рассрочки, по условиям которой первоначальный взнос составляет 20%, а оставшиеся 80% должны быть внесены до июня 2024 года. Из рассрочки можно перейти в ипотеку.
ЖК Forst аккредитован ведущими российскими банками. Оформить ипотеку можно как на стандартных условиях, так и с поддержкой от государства. Ставка по стандартным субсидированным программам составит от 9–10% годовых, при первоначальном взносе от 20,1% и на срок до 30 лет.
Доступна «Семейная ипотека» под 5,99% годовых на специальных условиях: «Год без процентов» и «Два года без процентов», а также с субсидированием ставки на первые 1–3 года. IT-ипотеку можно оформить под 3% годовых на весь срок. Также доступны не субсидированные программы в банках: Сбер, Альфа-банк, Акбарс, Росбанк, Металлинвестбанк.
Для тех, кто планирует обменять имеющуюся недвижимость на квартиру в новом квартале, действует программа трейд-ин.
Данные об условиях кредитования действительны на момент публикации статьи. Актуальную информацию вы всегда можете найти в карточке проекта.
Конкуренты
Выбор новой современной недвижимости бизнес-класса в Даниловском и соседних районах впечатляет. Здесь есть и клубные дома, и концептуальные кварталы, и целые микрорайоны с собственной инфраструктурой. Рассмотрим самые ближайшие варианты к ЖК Forst.
Комплекс апартаментов Insider находится по соседству с ЖК Forst, на Симоновской набережной. Близость инфраструктуры и транспортная доступность здесь такая же, как у Forst, единственное отличие — на набережной перед комплексом апартаментов находится станция водоотведения «Мосводосток», которая, впрочем, практически не влияет на видовые характеристики. Insider — это 3 разновысотных (от 7 до 16 этажей) корпуса, расположенных буквой «П» и соединенных 3-этажными строениями, в которых будет коммерческая инфраструктура. В проекте есть апартаменты-студии, а также лоты с 1–3 спальнями, двумя ванными, панорамными окнами и террасами. Приобрести недвижимость можно без отделки со свободной планировкой или с готовым дизайнерским ремонтом. Стоимость апартаментов — от 12,3 до 48,2 млн руб.
Цены в апарт-комплексе Insider:
|
Тип жилья |
Метраж, кв. м |
Цена, руб. |
Цена за кв. м, тыс. руб. |
|
студии |
29.01 — 37.32 |
15 930 952 — 23 175 691 |
464.6 — 674.3 |
|
1-комнатные |
36.25 — 79.01 |
18 016 908 — 38 754 405 |
471.4 — 641.7 |
|
2-комнатные |
56.47 — 145.75 |
27 325 833 — 80 818 375 |
462.6 — 629.6 |
|
3-комнатные |
69.74 — 134.68 |
32 931 228 — 78 114 400 |
472.2 — 602.8 |
В ЖК «Зиларт» можно выбрать квартиры в готовых и строящихся домах. Масштабный жилой комплекс возводится на месте бывшего завода им. Лихачева, его общая площадь 65 га. В планах «Группы ЛРС» возвести здесь 30 домов разного формата и высоты — от 3 до 40 этажей. Уже построено и введено в эксплуатацию 17 домов. Еще 5 корпусов дома №18 будут сданы в конце 2025 года. ЖК отличается интересным расположением: с одной стороны Москва-Река и благоустроенная набережная Марка Шагала, с другой — парк «Тюфелева роща». Расстояние от границы территории комплекса до станции МЦК «ЗИЛ» (с будущей пересадкой на одноименную станцию метро) – около 800 м. Квартирография проекта очень разнообразна: есть студии, однокомнатные, двухкомнатные, трехкомнатные и четырехкомнатные квартиры, с отделкой и без.
Цены в ЖК «Зиларт»:
|
Тип жилья |
Метраж, кв. м |
Цена, руб. |
Цена за кв. м, тыс. руб. |
|
студии |
18.90 — 32.00 |
16 911 833 — 24 474 574 |
677.6 — 986.9 |
|
1-комнатные |
32.80 — 46.30 |
21 100 473 — 35 121 172 |
505.9 — 793 |
|
2-комнатные |
51.10 — 76.80 |
29 799 883 — 45 271 152 |
508.8 — 798.1 |
|
3-комнатные |
71.60 — 82.60 |
43 929 822 — 56 381 355 |
604.9 — 682.6 |
|
4-комнатные |
109.70 — 126.80 |
80 670 747 — 111 148 188 |
735.4 — 876.6 |
ЖК «Парк Легенд» отличается выгодным расположением с точки зрения доступности объектов инфраструктуры. В 3–5 мин. ходьбы от него находятся школа №548, детская и взрослая поликлиники, спортивный комплекс «ЦСКА-Арена», хоккейный клуб «Торпедо», Центр синхронного плавания, строительный гипермаркет «Леруа-Мерлен», ТЦ «Ривьера», парк «Тюфелева роща», а также станция МЦК «ЗИЛ». Комплекс состоит из 10 корпусов, которые полностью достроены. Квартиры реализуются в корпусах 7,1 и 7,2, расположенных вблизи перекрестка просп. Лихачева и Зиловского бульвара. В продаже остались однокомнатные и двухкомнатные квартиры с готовой отделкой, встроенной кухонной мебелью и техникой.
Цены в ЖК «Парк Легенд»:
|
Тип жилья |
Метраж, кв. м |
Цена, руб. |
Цена за кв. м, тыс. руб. |
|
1-комнатные |
38.50 — 49.40 |
23 195 521 — 25 907 484 |
524.4 — 610.9 |
|
2-комнатные |
54.00 — 62.10 |
29 169 429 — 33 929 021 |
536.2 — 567.5 |
Резюме
ЖК Forst — интересный проект для тех, кому важно жить рядом с центром, быть мобильным и иметь приятные виды из окон. Здесь всё это есть, и даже немного больше: собственный детский сад с плейхабом на крыше, просторное гранд-лобби с библиотекой, променад на набережной. В комплексе представлены эргономичные планировки под разный состав семьи, а также эксклюзивные форматы жилья.
Некоторый дискомфорт может доставить соседство с оживленным и всегда загруженным ТТК, особенно для тех, чьи окна будут выходить на магистраль. Но стоит отметить, что авторы проекта продумали расположение и угол поворота зданий таким образом, чтобы любоваться дорогой пришлось наименьшему числу жильцов.
ЖК подходит как для собственного проживания, так и для инвестиций. В проекте большой выбор компактных квартир, которые можно сдавать в аренду, на которую будет спрос благодаря в том числе и удобному расположению недалеко от метро и от центра Москвы.
Дата публикации 09 апреля 2024