Рейтинг@Mail.ru
Переверните экран
Новостройки Квартиры Ипотека Новостройки Москвы Новостройки Подмосковья Новостройки Новой Москвы Готовые новостройки Новостройки на карте Акции от застройщиков Коммерческие помещения Продавцы и застройщики Панорамы новостроек Видеообзор новостроек Экспертиза новостроек Экология Москвы и Подмосковья Студии 1-комнатные 2-комнатные 3-комнатные Квартиры на карте Ипотечный калькулятор Семейная ипотека Военная ипотека Банки и программы Медиа Новости недвижимости Мнение эксперта Аналитика рынка Покупателю Экспертиза новостроек Эксперты и авторы О проекте Контакты Реклама на сайте Vk Youtube Telegram Дзен Машиноместа Апартаменты #траншевая ипотека #рассрочка ИТ-ипотека Квартиры со скидками до 40% Видео 360° новостроек Субсидированная застройщиком Rutube Поиск дома в Москве Программа реновации в Москве Новостройки премиум-класса Новостройки бизнес-класса Рассрочка Траншевая ипотека Дома и коттеджи Бизнес-центры Бизнес-центры в Москве Бизнес-центры рядом с метро Строящиеся бизнес-центры Бизнес-центры класса A Бизнес-центры класса B Ипотека со ставкой 0,1%

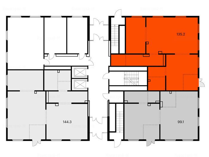
Помещение свободного назначения, 135.20 м 2

Московская область, Красногорск городской округ, Ильинское-Усово пос., ул. Заповедная, д. 1
33 935 200
251 000 2
обновлено 02 апреля
Узнать про коммерческие помещения

Описание

Номер лота
БКФН 1
Новостройка
Срок ГК
3 квартал 2027
Стадия строительства
Тип здания
встроенное помещение
Этаж
1
Площадь
135.20 м2
Высота потолка
4.28
Окна
стандартные с видом на улицу
Вход в помещение
отдельный с улицы
Электроснабжение
есть
Интернет
Есть, без возможности выбора оператора услуг
Вентиляция
есть
Водопровод
есть
Канализация
есть
Отопление
есть
Лифт
нет
Грузовой лифт
нет
Парковка
есть
Гостевая парковка
есть

Расположение

Поселок
Красногорск городской округ
Поселок
Ильинское-Усово пос.
Метро
Станция МЦК
Павшино
20 мин.
Шоссе
Новорижское 10 км от МКАД
Дом
3.5
Адрес
ул. Заповедная, д. 1 , секция 1

Особенности

Продаётся нежилое помещение свободного назначения в новом жилом районе Ильинские луга от ПИК. Открытая планировка, витринное остекление, удобный вход на уровне земли. Помещение (номер на площадке: №1) расположено по адресу: Московская область, городской округ Красногорск, г. Красногорск, д. Глухово, корпус 3.5. Продажа напрямую от застройщика.

Планировка

Корпус 3.5, секция 1 (ГК 3 квартал 2027)
Где купить помещение
ПИК
ПИК
02:00 — 21:00
Заказать обратный звонок
Задать вопрос
Выбирайте квартиру в Ильинские луга по ценам от застройщика ПИК.
Посмотреть все спецпредложения

Еще помещения в Ильинские луга

Продажа
3 квартал 2027
Московская область, Красногорск городской округ
Ильинская (2029)
11 мин.
4.47
Высота потолка
Паркинг
витринные
Окна
отдельный с улицы
Вход
3.5
Корпус
Ильинские луга
Продажа
3 квартал 2027
Московская область, Красногорск городской округ
Ильинская (2029)
11 мин.
4.13
Высота потолка
Паркинг
витринные
Окна
отдельный с улицы
Вход
4.2
Корпус
Ильинские луга
Продажа
3 квартал 2027
Московская область, Красногорск городской округ
Ильинская (2029)
11 мин.
4.71
Высота потолка
Паркинг
витринные
Окна
отдельный с улицы
Вход
4.2
Корпус
Ильинские луга
Продажа
3 квартал 2027
Московская область, Красногорск городской округ
Ильинская (2029)
11 мин.
4.21
Высота потолка
Паркинг
витринные
Окна
отдельный с улицы
Вход
3.1
Корпус
Ильинские луга

Скидки и спецпредложения от застройщиков

Ильинские луга на карте

Выгодные предложения на новостройки