Переверните экран
Новостройки
Квартиры
Ипотека
Новостройки Москвы
Новостройки Подмосковья
Новостройки Новой Москвы
Готовые новостройки
Новостройки на карте
Акции от застройщиков
Коммерческие помещения
Продавцы и застройщики
Панорамы новостроек
Видеообзор новостроек
Экспертиза новостроек
Экология Москвы и Подмосковья
Студии
1-комнатные
2-комнатные
3-комнатные
Квартиры на карте
Ипотечный калькулятор
Семейная ипотека
Военная ипотека
Банки и программы
Медиа
Новости недвижимости
Мнение эксперта
Аналитика рынка
Покупателю
Экспертиза новостроек
Эксперты и авторы
О проекте
Контакты
Реклама на сайте
Vk
Youtube
Telegram
Дзен
Машиноместа
Апартаменты
#траншевая ипотека
#рассрочка
IT-ипотека
Квартиры со скидками до 40%
Видео 360° новостроек
Субсидированная застройщиком
Rutube
Поиск дома в Москве
Программа реновации в Москве
Новостройки премиум-класса
Новостройки бизнес-класса
Рассрочка
Траншевая ипотека
Дома и коттеджи
Бизнес-центры
Бизнес-центры в Москве
Бизнес-центры рядом с метро
Строящиеся бизнес-центры
Бизнес-центры класса A
Бизнес-центры класса B
Посмотреть
3126
ЖК
0 новостроек
Удобный поиск новостроек
Доп. параметры
0
Поиск
новостроек
Скрыть поиск
Закрыть
Самые популярные за неделю
Левел Южнопортовая
ЖК «КОД Сокольники»
ЖК «НАЗАРÉ» («Мангазея в Богородском»)
ЖК «Мангазея на Речном»
Расположение
Регион
Москва
Московская область
Новая Москва
Метро
МЦД
Ж/Д-станции
Шоссе
Районы
Районы
Города МО
Районы МО
До метро не более
Выбрать
Пешком
Транспортом
До МКАД не более
Цена за квартиру
Комнатность
Студии
1
2
3
4+
Срок сдачи
Выберите
Дом сдан
2026
2027
2028
2029
2030
Отделка
Любая
Без отделки
Под чистовую
Чистовая
Есть скидки
Ипотека
Материнский капитал
Эскроу-счет
Старт продаж
Семейная ипотека 6%
Рассрочка
Панорамные окна
Рядом парк
Системообразующий застройщик
Кол-во квартир на этаже
не больше 6
не больше 4
Помещения и квартиры
Только квартиры
Только апартаменты/помещения
Больше параметров
Посмотреть
3126
ЖК
0 новостроек
Novostroy-M.ru
•
База новостроек
•
Московская область
•
Дубна городской округ
•
ЖК по ул. Макаренко
•
Планировки
Описание
Квартиры
16
Ход строительства
Планировки
Ипотека
Планировки в ЖК по ул. Макаренко
Московская область, Дубна
от 9.6 до 11.8 млн
₽
Цены за квартиры
от
21 января по данным официального сайта
Поделиться на страницах
Копировать ссылку
Поделиться на страницах
Копировать ссылку
Описание
Квартиры
16
Ход строительства
Планировки
Ипотека
Планировки двухкомнатных квартир в ЖК по ул. Макаренко
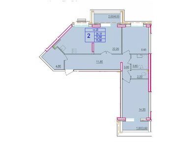
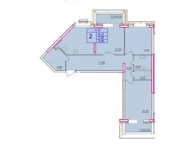
2-комн. кв, 75.30 м
2
10 843 200 руб.
2-комн. кв, 75.10 м
2
10 664 200 руб.
2-комн. кв, 71.00 м
2
10 082 000 руб.
2-комн. кв, 69.60 м
2
10 161 600 руб.
2-комн. кв, 69.50 м
2
10 147 000 руб.
2-комн. кв, 69.30 м
2
9 979 200 руб.
2-комн. кв, 67.70 м
2
9 613 400 руб.
Инфоцентр новостроек
9:00 — 21:00
Задать вопрос
Как сюда попасть?
Посмотреть все спецпредложения
Планировки трехкомнатных квартир в ЖК по ул. Макаренко
3-комн. кв, 92.90 м
2
11 798 300 руб.
3-комн. кв, 89.60 м
2
11 200 000 руб.
3-комн. кв, 87.20 м
2
10 812 800 руб.
3-комн. кв, 87.10 м
2
11 235 900 руб.
3-комн. кв, 86.80 м
2
10 850 000 руб.
3-комн. кв, 86.80 м
2
11 197 200 руб.
3-комн. кв, 86.60 м
2
10 738 400 руб.
3-комн. кв, 86.40 м
2
10 886 400 руб.
3-комн. кв, 86.30 м
2
10 787 500 руб.
Скидки и спецпредложения от застройщиков
Отзывы о ЖК по ул. Макаренко
Будьте первым, кто оставит отзыв
о ЖК по ул. Макаренко
Добавьте отзыв, заполнив личные данные, или сначала
войдите на сайт
, тогда информация будет автоматически взята из личного профиля.
Как вас зовут?
*
Email
*
Оценка
*
Плюсы
Транспортная доступность
Экология
Социальная инфраструктура
Планировки
Готовность
Способы покупки
Скорость строительства
Внешний вид фасада
Входные группы
Подземный паркинг
Двор, окружение
Расположение
Минусы
Транспортная доступность
Экология
Социальная инфраструктура
Планировки
Готовность
Способы покупки
Скорость строительства
Внешний вид фасада
Входные группы
Подземный паркинг
Двор, окружение
Расположение
Отзыв
*
Правила форума
Отправить
Рейтинг от Новострой-М
3.8
Как составляется наш рейтинг?
Сайт использует ваши cookies (куки) и прочие метаданные.
Подробнее
Принять
0
о ЖК по ул. Макаренко