Рейтинг@Mail.ru
Переверните экран
Новостройки Квартиры Ипотека Новостройки Москвы Новостройки Подмосковья Новостройки Новой Москвы Готовые новостройки Новостройки на карте Акции от застройщиков Коммерческие помещения Продавцы и застройщики Панорамы новостроек Видеообзор новостроек Экспертиза новостроек Экология Москвы и Подмосковья Студии 1-комнатные 2-комнатные 3-комнатные Квартиры на карте Ипотечный калькулятор Семейная ипотека Военная ипотека Банки и программы Медиа Новости недвижимости Мнение эксперта Аналитика рынка Покупателю Экспертиза новостроек Эксперты и авторы О проекте Контакты Реклама на сайте Vk Youtube Telegram Дзен Машиноместа Апартаменты #траншевая ипотека #рассрочка ИТ-ипотека Квартиры со скидками до 40% Видео 360° новостроек Субсидированная застройщиком Rutube Поиск дома в Москве Программа реновации в Москве Новостройки премиум-класса Новостройки бизнес-класса Рассрочка Траншевая ипотека Дома и коттеджи Коттеджные поселки в Новой Москве Готовые коттеджные поселки Строящиеся коттеджные поселки Коттеджные поселки в лесу Коттеджные поселки у водоема Коттеджные поселки в ипотеку Бизнес-центры Коттеджи Ипотека со ставкой 0,1%
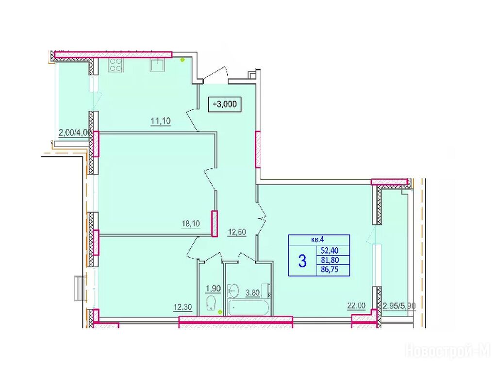
3-комн. квартира, 86.80 м2, 1 этаж
Сдан
10 850 000 
125 000 2
обновлено 26 апреля

Описание 3-комн. квартиры

Новостройка
Срок ГК
Дом сдан
Стадия строительства
Общая площадь
86.80 м2
Жилая площадь
52.20 м2
Площадь кухни
10.60 м2
Этаж
1 / 7
Отделка
нет

Расположение 3-комн. квартиры

Ж/Д-станция
Дом
1
Адрес
ул. Программистов, д. 11, секция 1

Способы покупки

Особенности

Продается трехкомнатная квартира в новостройке ЖК по ул. Макаренко по адресу Московская область, Дубна городской округ , Дубна, ул. Программистов, д. 11. Общая площадь квартиры - 86.8 кв. м. Тип проекта, по которому построен дом — Монолитно-кирпичный, компания-застройщик — ГК «Волжский Домостроительный комбинат», СЗ Рэд. Стоимость квартиры — 10 850 000 руб. Способы оплаты можно уточнить у продавца. Более подробная информация по телефону.
Инфоцентр новостроек
Инфоцентр новостроек
Время работы 9:00 — 21:00
Выбирайте квартиру в ЖК по ул. Макаренко по ценам от застройщика
ЖК по ул. Макаренко ЖК по ул. Макаренко|Новострой-М
Первая очередь проекта - 7-9 этажный корпус ЖК по ул. Макаренко|Новострой-М
Благоустроенный двор ЖК по ул. Макаренко|Новострой-М

Похожие квартиры в ЖК по ул. Макаренко

5 этаж
из 7 Дом сдан
Московская область, Дубна городской округ
Большая Волга (ж/д)
9 мин.
1
Корпус
нет
Отделка
2.72 м
Потолки
ЖК по ул. Макаренко
11 197 200
Уралсиб, ВТБ, СберБанк
6.00%
Ставка
30.00%
Первый взнос
от 67 133 /мес.
Все варианты
2-комн. квартира 67,70 м2 9 613 400
Этаж 1/9
МО, ЖК по ул. Макаренко
Большая Волга (ж/д)
9 мин.
Сдан
2-комн. квартира 69,30 м2 9 979 200
Этаж 2/9
МО, ЖК по ул. Макаренко
Большая Волга (ж/д)
9 мин.
Сдан
2-комн. квартира 69,50 м2 10 147 000
Этаж 9/9
МО, ЖК по ул. Макаренко
Большая Волга (ж/д)
9 мин.
Сдан
2-комн. квартира 69,60 м2 10 161 600
Этаж 4/9
МО, ЖК по ул. Макаренко
Большая Волга (ж/д)
9 мин.
Сдан
Посмотреть 7 квартир в ЖК по ул. Макаренко
3-комн. квартира 86,30 м2 10 787 500
Этаж 1/9
МО, ЖК по ул. Макаренко
Большая Волга (ж/д)
9 мин.
Сдан
3-комн. квартира 86,40 м2 10 886 400
Этаж 9/9
МО, ЖК по ул. Макаренко
Большая Волга (ж/д)
9 мин.
Сдан
3-комн. квартира 86,60 м2 10 738 400
Этаж 2/9
МО, ЖК по ул. Макаренко
Большая Волга (ж/д)
9 мин.
Сдан
3-комн. квартира 86,80 м2 11 197 200
Этаж 5/7
МО, ЖК по ул. Макаренко
Большая Волга (ж/д)
9 мин.
Сдан
Посмотреть 9 квартир в ЖК по ул. Макаренко

Скидки и спецпредложения от застройщиков

ЖК по ул. Макаренко на карте

Выгодные предложения на новостройки

Отзывы о ЖК по ул. Макаренко

Самый полезный отзыв
В
22 августа 2025
Оценка:
Жилой комплекс находится в стадии сдачи, был на приёме квартиры, всё чётко и по делу. Качество строительства соответствует заявленным требованиям, отделка хорошая, планировка удобная.
Ответить
Самый новый отзыв
ВС
27 марта
Оценка:
Это просто райский уголок в городе! Такие красивые виды из окна, просто дух захватывает. Архитектура здания завораживает, а благоустроенные дворы создают атмосферу уюта и спокойствия. Я чувствую себя здесь счастливой!
Ответить

Оставить отзыв

Добавьте отзыв, заполнив личные данные, или сначала войдите на сайт, тогда информация будет автоматически взята из личного профиля.
Оценка*