Переверните экран
Новостройки
Квартиры
Ипотека
Новостройки Москвы
Новостройки Подмосковья
Новостройки Новой Москвы
Готовые новостройки
Новостройки на карте
Акции от застройщиков
Коммерческие помещения
Продавцы и застройщики
Панорамы новостроек
Видеообзор новостроек
Экспертиза новостроек
Экология Москвы и Подмосковья
Студии
1-комнатные
2-комнатные
3-комнатные
Квартиры на карте
Ипотечный калькулятор
Семейная ипотека
Военная ипотека
Банки и программы
Медиа
Новости недвижимости
Мнение эксперта
Аналитика рынка
Покупателю
Экспертиза новостроек
Эксперты и авторы
О проекте
Контакты
Реклама на сайте
Vk
Youtube
Telegram
Дзен
Машиноместа
Апартаменты
#траншевая ипотека
#рассрочка
IT-ипотека
Квартиры со скидками до 40%
Видео 360° новостроек
Субсидированная застройщиком
Rutube
Поиск дома в Москве
Программа реновации в Москве
Новостройки премиум-класса
Новостройки бизнес-класса
Рассрочка
Траншевая ипотека
ГАЛС
Дома и коттеджи
Бизнес-центры
Бизнес-центры в Москве
Бизнес-центры рядом с метро
Строящиеся бизнес-центры
Бизнес-центры класса A
Бизнес-центры класса B
ЛСР
Посмотреть
3116
ЖК
0 новостроек
Удобный поиск новостроек
Доп. параметры
0
Поиск
новостроек
Скрыть поиск
Закрыть
Самые популярные за неделю
ЖК «НАЗАРÉ» («Мангазея в Богородском»)
Жилой район ÁLIA (АЛИА)
ЖК Portland. Дом на берегу
Level Мичуринский
Расположение
Регион
Москва
Московская область
Новая Москва
Метро
МЦД
Ж/Д-станции
Шоссе
Районы
Районы
Города МО
Районы МО
До метро не более
Выбрать
Пешком
Транспортом
До МКАД не более
Цена за квартиру
Комнатность
Студии
1
2
3
4+
Срок сдачи
Выберите
Дом сдан
2025
2026
2027
2028
2029
2030
Отделка
Любая
Без отделки
Под чистовую
Чистовая
Есть скидки
Ипотека
Материнский капитал
Эскроу-счет
Старт продаж
Семейная ипотека 6%
Рассрочка
Панорамные окна
Рядом парк
Системообразующий застройщик
Кол-во квартир на этаже
не больше 6
не больше 4
Помещения и квартиры
Только квартиры
Только апартаменты/помещения
Больше параметров
Посмотреть
3116
ЖК
0 новостроек
Novostroy-M.ru
•
База новостроек
•
Московская область
•
Ленинский городской округ
•
Горки Ленинские Г/П
•
ЖК «Первый квартал»
•
Планировки
Описание
Квартиры
760
Ход строительства
15.12.25
Планировки
Ипотека
Отзывы
32
Вопрос-ответ
10
Планировки в ЖК «Первый квартал»
Московская область, Горки Ленинские Г/П
от 4.9 до 26.7 млн
₽
Цены за квартиры
от
18 декабря по данным официального сайта
Звоните, мы ещё работаем!
Узнать об акциях
Поделиться на страницах
Копировать ссылку
Узнать об акциях
Поделиться на страницах
Копировать ссылку
Описание
Квартиры
760
Ход строительства
15.12.25
Планировки
Ипотека
Отзывы
32
Вопрос-ответ
10
Планировки студий (квартир) в ЖК «Первый квартал»
студия, 33.10 м
2
7 010 000 руб.
студия, 33.10 м
2
7 020 000 руб.
студия, 33.10 м
2
7 070 000 руб.
студия, 33.10 м
2
7 090 000 руб.
студия, 33.10 м
2
7 150 000 руб.
студия, 33.10 м
2
7 190 000 руб.
студия, 33.10 м
2
7 390 000 руб.
студия, 33.10 м
2
7 530 000 руб.
студия, 31.40 м
2
8 190 000 руб.
студия, 31.30 м
2
8 160 000 руб.
студия, 26.10 м
2
5 840 000 руб.
студия, 26.10 м
2
6 400 000 руб.
Посмотреть объявления о продаже всех (101) студий (квартир) в ЖК «Первый квартал»
Отдел продаж
09:00 — 21:00
Заказать обратный звонок
Задать вопрос
Как сюда попасть?
Посмотреть все спецпредложения
Планировки однокомнатных квартир в ЖК «Первый квартал»
1-комн. кв, 102.20 м
2
18 780 000 руб.
1-комн. кв, 101.20 м
2
18 190 000 руб.
1-комн. кв, 90.90 м
2
16 130 000 руб.
1-комн. кв, 84.50 м
2
13 280 000 руб.
1-комн. кв, 84.00 м
2
14 010 000 руб.
1-комн. кв, 73.40 м
2
12 460 000 руб.
1-комн. кв, 72.80 м
2
11 660 000 руб.
1-комн. кв, 64.70 м
2
12 180 000 руб.
1-комн. кв, 62.50 м
2
12 070 000 руб.
1-комн. кв, 62.50 м
2
12 280 000 руб.
1-комн. кв, 59.80 м
2
11 420 000 руб.
1-комн. кв, 58.90 м
2
11 700 000 руб.
Посмотреть объявления о продаже всех (265) однокомнатных квартир в ЖК «Первый квартал»
Скидки и спецпредложения от застройщиков
Планировки двухкомнатных квартир в ЖК «Первый квартал»
2-комн. кв, 171.00 м
2
20 740 000 руб.
2-комн. кв, 155.50 м
2
19 960 000 руб.
2-комн. кв, 142.80 м
2
17 530 000 руб.
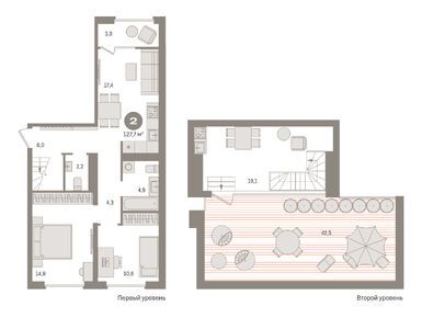
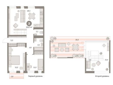
2-комн. кв, 133.70 м
2
17 600 000 руб.
2-комн. кв, 131.20 м
2
22 330 000 руб.
2-комн. кв, 128.90 м
2
17 330 000 руб.
2-комн. кв, 127.70 м
2
21 850 000 руб.
2-комн. кв, 127.60 м
2
20 110 000 руб.
2-комн. кв, 125.80 м
2
19 180 000 руб.
2-комн. кв, 123.00 м
2
20 690 000 руб.
2-комн. кв, 123.00 м
2
20 920 000 руб.
2-комн. кв, 112.20 м
2
19 500 000 руб.
Посмотреть объявления о продаже всех (236) двухкомнатных квартир в ЖК «Первый квартал»
Выгодные предложения на новостройки
Планировки трехкомнатных квартир в ЖК «Первый квартал»
3-комн. кв, 171.10 м
2
20 910 000 руб.
3-комн. кв, 169.50 м
2
26 740 000 руб.
3-комн. кв, 163.80 м
2
26 740 000 руб.
3-комн. кв, 138.20 м
2
21 800 000 руб.
3-комн. кв, 135.50 м
2
24 080 000 руб.
3-комн. кв, 135.20 м
2
23 660 000 руб.
3-комн. кв, 134.10 м
2
21 040 000 руб.
3-комн. кв, 129.20 м
2
20 370 000 руб.
3-комн. кв, 124.40 м
2
18 720 000 руб.
3-комн. кв, 124.40 м
2
19 090 000 руб.
3-комн. кв, 124.30 м
2
18 710 000 руб.
3-комн. кв, 124.00 м
2
18 680 000 руб.
Посмотреть объявления о продаже всех (148) трехкомнатных квартир в ЖК «Первый квартал»
Квартиры от застройщиков с акциями
Планировки четырехкомнатных квартир в ЖК «Первый квартал»
4-комн. кв, 149.70 м
2
22 960 000 руб.
4-комн. кв, 107.80 м
2
19 100 000 руб.
4-комн. кв, 104.70 м
2
17 690 000 руб.
Специальные предложения на новостройки
Отзывы
Посмотреть все 32 отзыва
Самый полезный отзыв
М
Мирослав
28 сентября 2018
Оценка:
Транспортная доступность
Готовность
Чудо чудное! Лоджии не просто застеклены и их утепляют... Там радиаторы стоят!! Вот это я называю теплые лоджии))
Ответить
Полезный отзыв?
0
0
Самый новый отзыв
СГ
Сергей Глотов
16 декабря
Оценка:
Планировки
Способы покупки
В продаже есть лоты в строящихся домах, также и выбор готовых квартир есть, не надо ждать, можно сразу заселяться. Ценник вроде ничего
Ответить
Полезный отзыв?
0
0
Добавьте отзыв, заполнив личные данные, или сначала
войдите на сайт
, тогда информация будет автоматически взята из личного профиля.
Как вас зовут?
*
Email
*
Оценка
*
Плюсы
Транспортная доступность
Экология
Социальная инфраструктура
Планировки
Готовность
Способы покупки
Скорость строительства
Внешний вид фасада
Входные группы
Подземный паркинг
Двор, окружение
Расположение
Минусы
Транспортная доступность
Экология
Социальная инфраструктура
Планировки
Готовность
Способы покупки
Скорость строительства
Внешний вид фасада
Входные группы
Подземный паркинг
Двор, окружение
Расположение
Отзыв
*
Правила форума
Отправить
Рейтинг от Новострой-М
4.2
Как составляется наш рейтинг?
Рейтинг от посетителей
4,3
12
3
1
1
1
Сайт использует ваши cookies (куки) и прочие метаданные.
Подробнее
Принять
0