Рейтинг@Mail.ru
Переверните экран
Новостройки Квартиры Ипотека Новостройки Москвы Новостройки Подмосковья Новостройки Новой Москвы Готовые новостройки Новостройки на карте Акции от застройщиков Коммерческие помещения Продавцы и застройщики Панорамы новостроек Видеообзор новостроек Экспертиза новостроек Экология Москвы и Подмосковья Студии 1-комнатные 2-комнатные 3-комнатные Квартиры на карте Ипотечный калькулятор Семейная ипотека Военная ипотека Банки и программы Медиа Новости недвижимости Мнение эксперта Аналитика рынка Покупателю Экспертиза новостроек Эксперты и авторы О проекте Контакты Реклама на сайте Vk Youtube Telegram Дзен Машиноместа Апартаменты #траншевая ипотека #рассрочка IT-ипотека Квартиры со скидками до 40% Видео 360° новостроек Субсидированная застройщиком Rutube Поиск дома в Москве Программа реновации в Москве Новостройки премиум-класса Новостройки бизнес-класса Рассрочка Траншевая ипотека ГАЛС Дома и коттеджи Бизнес-центры Бизнес-центры в Москве Бизнес-центры рядом с метро Строящиеся бизнес-центры Бизнес-центры класса A Бизнес-центры класса B ЛСР

Планировки в ЖК «Отрадный»

Московская область, Мытищи
от 5.2 до 18.5 млн
 
Цены за квартиры от 5 декабря
по данным официального сайта
Звоните, мы ещё работаем!
Зафиксировать цену
Отдел продаж
09:00 — 21:00
Заказать обратный звонок
Задать вопрос
Посмотреть все спецпредложения

Скидки и спецпредложения от застройщиков

Выгодные предложения на новостройки

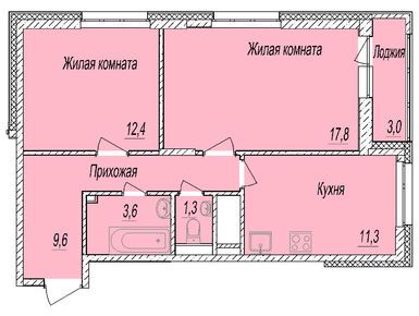
Планировки четырехкомнатных квартир в ЖК «Отрадный»

Квартиры от застройщиков с акциями

Отзывы о ЖК «Отрадный»

Самый полезный отзыв
Ф
Федор
27 июня 2018
Оценка:
Социальная инфраструктура
Расположение
Транспортная доступность
Работаю рядом с бабушкинской. Ищу квартиру недалеко. В Москве цены неподъемные, а в Мытищах, которые по сути находятся сразу за МКАДом, цены значительно ниже. 1 критерий – надежный застройщик, потому что не хочется потом остаться в дураках. Рассматриваю «UP квартал Скандинавский» и «Отрадный». В Скандинавском привлекает меньшая загруженность Волковского шоссе, в сравнении с Ярославским. ЖК выглядят достаточно презентабельно. Смущает пустое окружение ЖК – вокруг лес и дорога. И всё. Тут, конечно, Отрадный выглядит выигрышнее. И школы, и бассейн, и магазины. Увидел, что рядом со скандинавским расположено 2 огромных кладбища и ТЭЦ. Это самый огромный минус. Кто-то знает может быть, насколько это влияет на воздух? Насколько близко кладбища расположены?
Показать все комментарии
Ответить
Полезный отзыв?
Самый новый отзыв
ИВ
Игорь В.
17 ноября
Оценка:
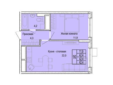
Планировки
Способы покупки
Как покупатель уже вижу, что в сданных корпусах студии и однокомнатных квартир практически уже не осталось, ну и мой выбор выглядит разумным в пользу именно этого проекта.
Ответить
Полезный отзыв?
Добавьте отзыв, заполнив личные данные, или сначала войдите на сайт, тогда информация будет автоматически взята из личного профиля.
Оценка*