Рейтинг@Mail.ru
Переверните экран
Новостройки Квартиры Ипотека Новостройки Москвы Новостройки Подмосковья Новостройки Новой Москвы Готовые новостройки Новостройки на карте Акции от застройщиков Коммерческие помещения Продавцы и застройщики Панорамы новостроек Видеообзор новостроек Экспертиза новостроек Экология Москвы и Подмосковья Студии 1-комнатные 2-комнатные 3-комнатные Квартиры на карте Ипотечный калькулятор Семейная ипотека Военная ипотека Банки и программы Медиа Новости недвижимости Мнение эксперта Аналитика рынка Покупателю Экспертиза новостроек Эксперты и авторы О проекте Контакты Реклама на сайте Vk Youtube Telegram Дзен Машиноместа Апартаменты #траншевая ипотека #рассрочка IT-ипотека Квартиры со скидками до 40% Видео 360° новостроек Субсидированная застройщиком Rutube Поиск дома в Москве Программа реновации в Москве Новостройки премиум-класса Новостройки бизнес-класса Рассрочка Траншевая ипотека ГАЛС Дома и коттеджи Бизнес-центры Бизнес-центры в Москве Бизнес-центры рядом с метро Строящиеся бизнес-центры Бизнес-центры класса A Бизнес-центры класса B ЛСР

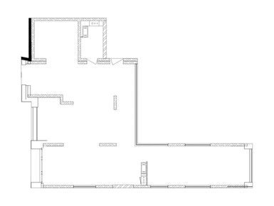
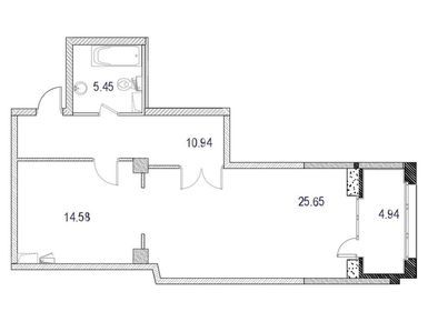
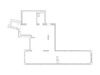
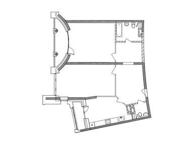
Планировки в Жилом микрорайоне «Маршал»

Москва, СЗАО, Щукино
от 27.6 до 87.6 млн
 
Цены за квартиры от 5 декабря
по данным официального сайта
Звоните, мы ещё работаем!
Сравнить с похожими

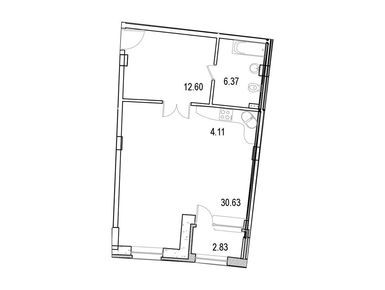
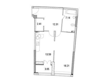
Планировки однокомнатных апартаментов в Жилом микрорайоне «Маршал»

Задать вопрос
Посмотреть все спецпредложения

Скидки и спецпредложения от застройщиков

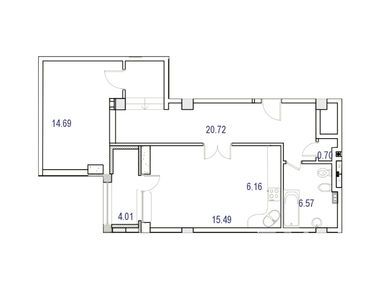
Планировки трехкомнатных апартаментов в Жилом микрорайоне «Маршал»

Выгодные предложения на новостройки

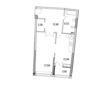
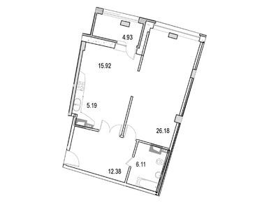
Планировки двухкомнатных квартир в Жилом микрорайоне «Маршал»

Квартиры от застройщиков с акциями

Специальные предложения на новостройки

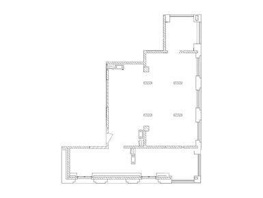
Планировки четырехкомнатных квартир в Жилом микрорайоне «Маршал»

Планировки пятикомнатных квартир в Жилом микрорайоне «Маршал»

Отзывы о Жилом микрорайоне «Маршал»

Самый полезный отзыв
А
Антон
29 декабря 2017
Оценка:
Являюсь одним из старожилов МФК «Маршал». За это время ни разу не пожалел о своем выборе. Мне очень нравится архитектура комплекса, местоположение, а также близость к метро. Пока я здесь живу, открыли еще одну станцию рядом, буквально в нескольких шагах. Я, честно говоря, не знаю таких ЖК, рядом с которыми находятся сразу две станции метро. Здесь очень развита инфраструктура. На территории есть все необходимое для комфортной жизни. УК всегда оперативно реагирует на возникающие вопросы. Очень чистая и ухоженная территория и подъезды в домах. С нетерпением жду открытия фитнес-центра с бассейном. Там ведутся уже последние отделочные работы. К весне будет рекреационная зона с теннисным кортом, спортплощадками и площадками для выгула собак.
Ответить
Полезный отзыв?
Самый новый отзыв
ОР
Ольга Рижко
19 мая
Оценка:
Транспортная доступность
Социальная инфраструктура
Двор, окружение
Расположение
Хороший, современный для своего времени постройки жилой комплекс. Рядом станции метро Октябрьское Поле и МЦК Панфиловская. Про это, наверное, писали уже ни один раз. Удобная инфраструктура, много всего есть, одновременно удобно для проживания и работы
Ответить
Полезный отзыв?
Добавьте отзыв, заполнив личные данные, или сначала войдите на сайт, тогда информация будет автоматически взята из личного профиля.
Оценка*