Рейтинг@Mail.ru
Переверните экран
Новостройки Квартиры Ипотека Новостройки Москвы Новостройки Подмосковья Новостройки Новой Москвы Готовые новостройки Новостройки на карте Акции от застройщиков Коммерческие помещения Продавцы и застройщики Панорамы новостроек Видеообзор новостроек Экспертиза новостроек Экология Москвы и Подмосковья Студии 1-комнатные 2-комнатные 3-комнатные Квартиры на карте Ипотечный калькулятор Семейная ипотека Военная ипотека Банки и программы Медиа Новости недвижимости Мнение эксперта Аналитика рынка Покупателю Экспертиза новостроек Эксперты и авторы О проекте Контакты Реклама на сайте Vk Youtube Telegram Дзен Машиноместа Апартаменты #траншевая ипотека #рассрочка ИТ-ипотека Квартиры со скидками до 40% Видео 360° новостроек Субсидированная застройщиком Rutube Поиск дома в Москве Программа реновации в Москве Новостройки премиум-класса Новостройки бизнес-класса Рассрочка Траншевая ипотека Дома и коттеджи Коттеджные поселки в Новой Москве Готовые коттеджные поселки Строящиеся коттеджные поселки Коттеджные поселки в лесу Коттеджные поселки у водоема Коттеджные поселки в ипотеку Бизнес-центры Коттеджи Ипотека со ставкой 0,1%

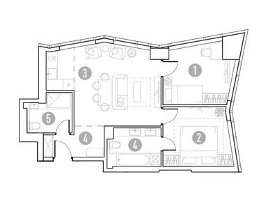
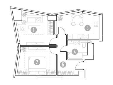
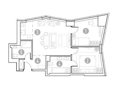
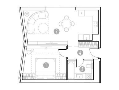
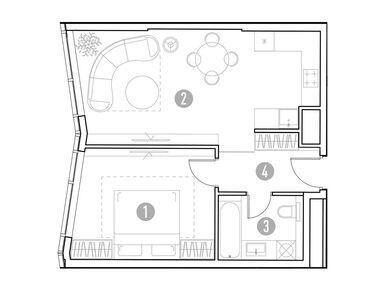
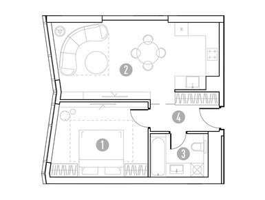
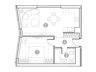
Планировки в ЖК «УНО.Горбунова»

Москва, ЗАО, Можайский
от 12.5 до 39.5 млн
 
Цены за квартиры от 3 мая
по данным официального сайта
Звоните, мы ещё работаем!
Узнать об акциях
Отдел продаж
09:00 — 21:00
Заказать обратный звонок
Задать вопрос
Посмотреть все спецпредложения

Скидки и спецпредложения от застройщиков

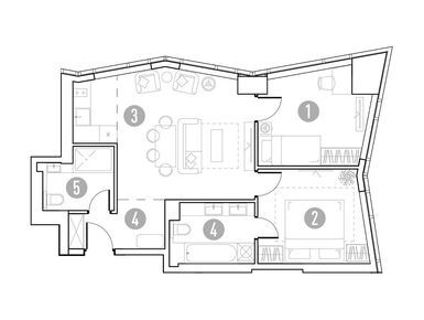
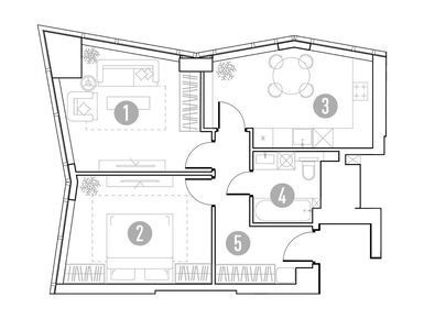
Планировки трехкомнатных квартир в ЖК «УНО.Горбунова»

Выгодные предложения на новостройки

Отзывы о ЖК «УНО.Горбунова»

Самый полезный отзыв
ЭН
Элла Наумкина
29 мая 2025
Оценка
Достоинства
Внешний вид фасада
Двор, окружение
Расположение
Честно говоря, из всего, что мы смотрели на западе Москвы, UNO на Горбунова нам больше всего понравился. Отличная транспортная доступность - это огромный плюс! Плюс, двор с ландшафтным дизайном запланирован, представила себе эту красоту и сразу захотелось там жить. Виды в сторону леса - вообще мечта, а застройщик, вроде, с хорошей репутацией, что тоже важно.
Ответить
Самый новый отзыв
ПМ
Павел Мереновский
06 марта
Оценка
Достоинства
Транспортная доступность
Планировки
Способы покупки
Двор, окружение
Расположение
Одни плюсы. Потолки варьируются от 2,7 до 3,4 м в зависимости от этажа, что даёт ощущение простора. До МЦД-1 Сетунь несколько минут пешком, до метро Молодёжная 6-10 минут на транспорте. Предусмотрены кладовые помещения, что добавляет удобства для хранения вещей.
Ответить

Оставить отзыв

Добавьте отзыв, заполнив личные данные, или сначала войдите на сайт, тогда информация будет автоматически взята из личного профиля.

Оценка*