Рейтинг@Mail.ru
Переверните экран
Новостройки Квартиры Ипотека Новостройки Москвы Новостройки Подмосковья Новостройки Новой Москвы Готовые новостройки Новостройки на карте Акции от застройщиков Коммерческие помещения Продавцы и застройщики Панорамы новостроек Видеообзор новостроек Экспертиза новостроек Экология Москвы и Подмосковья Студии 1-комнатные 2-комнатные 3-комнатные Квартиры на карте Ипотечный калькулятор Семейная ипотека Военная ипотека Банки и программы Медиа Новости недвижимости Мнение эксперта Аналитика рынка Покупателю Экспертиза новостроек Эксперты и авторы О проекте Контакты Реклама на сайте Vk Youtube Telegram Дзен Машиноместа Апартаменты #траншевая ипотека #рассрочка ИТ-ипотека Квартиры со скидками до 40% Видео 360° новостроек Субсидированная застройщиком Rutube Поиск дома в Москве Программа реновации в Москве Новостройки премиум-класса Новостройки бизнес-класса Рассрочка Траншевая ипотека Дома и коттеджи Коттеджные поселки в Новой Москве Готовые коттеджные поселки Строящиеся коттеджные поселки Коттеджные поселки в лесу Коттеджные поселки у водоема Коттеджные поселки в ипотеку Бизнес-центры Коттеджи Ипотека со ставкой 0,1%
3-комн. квартира, 79.95 м2, 5 этаж
Срок сдачи 1 квартал 2027 года
10 363 550 
129 625 2
обновлено 13 мая

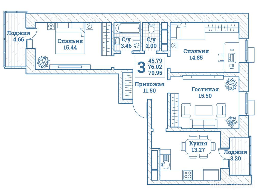
Описание 3-комн. квартиры

Срок ГК
1 квартал 2027 года
Стадия строительства
отделка фасада и внутренние работы
Общая площадь
79.95 м2
Жилая площадь
45.79 м2
Площадь кухни
13.27 м2
Этаж
5 / 7
Отделка
нет

Расположение 3-комн. квартиры

Метро
Ж/Д-станция
Монино
15 мин.
Кашино
40 мин.
Дом
14
Адрес
ул. Генерала Ковачевича, корп. 14, секция 4

Способы покупки

Особенности

Продается трехкомнатная квартира в новостройке ЖК «Новоград Монино» по адресу Московская область, Щелковский район, Монино Г/П, ул. Генерала Ковачевича, корп. 14. Общая площадь квартиры - 79.95 кв. м. Тип проекта, по которому построен дом — Монолитно-кирпичный, компания-застройщик — СПЕЦИАЛИЗИРОВАННЫЙ ЗАСТРОЙЩИК «АВЕРУС». Стоимость квартиры — 10 363 550 руб. Способы оплаты можно уточнить у продавца. Срок сдачи — 1 квартал 2027. Более подробная информация по телефону.
Инфоцентр новостроек
Инфоцентр новостроек
+7 (499) 705-91-41
Время работы 9:00 — 21:00

Похожие квартиры в ЖК «Новоград Монино»

1 этаж
из 7 1 квартал 2027
Московская область, Щелковский район
Щелковская
50 мин.
14
Корпус
нет
Отделка
2.80 м
Потолки
ЖК «Новоград Монино»
10 363 550
Альфа-Банк, СберБанк, ВТБ, Промсвязьбанк, ДОМ.РФ, Абсолют Банк
6.00%
Ставка
30.10%
Первый взнос
от 62 135 /мес.
Все варианты
3 этаж
из 7 1 квартал 2027
Московская область, Щелковский район
Щелковская
50 мин.
14
Корпус
нет
Отделка
2.80 м
Потолки
ЖК «Новоград Монино»
10 363 550
Альфа-Банк, СберБанк, ВТБ, Промсвязьбанк, ДОМ.РФ, Абсолют Банк
6.00%
Ставка
30.10%
Первый взнос
от 62 135 /мес.
Все варианты
7 этаж
из 7 1 квартал 2027
Московская область, Щелковский район
Щелковская
50 мин.
14
Корпус
нет
Отделка
2.80 м
Потолки
ЖК «Новоград Монино»
10 363 550
Альфа-Банк, СберБанк, ВТБ, Промсвязьбанк, ДОМ.РФ, Абсолют Банк
6.00%
Ставка
30.10%
Первый взнос
от 62 135 /мес.
Все варианты
1-комн. квартира 33,91 м2 4 933 040
Этаж 1/7
МО, ЖК «Новоград Монино»
Щелковская
50 мин.
Строится
1-комн. квартира 33,99 м2 4 944 560
Этаж 1/7
МО, ЖК «Новоград Монино»
Щелковская
50 мин.
Строится
1-комн. квартира 34,00 м2 4 946 000
Этаж 1/7
МО, ЖК «Новоград Монино»
Щелковская
50 мин.
Строится
1-комн. квартира 34,07 м2 4 956 080
Этаж 1/7
МО, ЖК «Новоград Монино»
Щелковская
50 мин.
Строится
Посмотреть 407 квартир в ЖК «Новоград Монино»
2-комн. квартира 49,83 м2 7 026 200
Этаж 1/7
МО, ЖК «Новоград Монино»
Щелковская
50 мин.
Строится
2-комн. квартира 49,91 м2 7 037 400
Этаж 1/7
МО, ЖК «Новоград Монино»
Щелковская
50 мин.
Строится
2-комн. квартира 50,04 м2 7 055 600
Этаж 2/7
МО, ЖК «Новоград Монино»
Щелковская
50 мин.
Строится
2-комн. квартира 53,84 м2 7 426 080
Этаж 1/7
МО, ЖК «Новоград Монино»
Щелковская
50 мин.
Строится
Посмотреть 134 квартиры в ЖК «Новоград Монино»
3-комн. квартира 78,50 м2 11 982 000
Этаж 2/7
МО, ЖК «Новоград Монино»
Щелковская
50 мин.
Сдан
3-комн. квартира 78,56 м2 10 184 240
Этаж 1/7
МО, ЖК «Новоград Монино»
Щелковская
50 мин.
Строится
3-комн. квартира 78,60 м2 11 997 200
Этаж 6/7
МО, ЖК «Новоград Монино»
Щелковская
50 мин.
Сдан
3-комн. квартира 78,70 м2 12 012 400
Этаж 7/7
МО, ЖК «Новоград Монино»
Щелковская
50 мин.
Сдан
Посмотреть 97 квартир в ЖК «Новоград Монино»

Скидки и спецпредложения от застройщиков

ЖК «Новоград Монино» на карте

Выгодные предложения на новостройки

Отзывы о ЖК «Новоград Монино»

Самый полезный отзыв
ВП
12 декабря 2022
Оценка:
Пока мы видим одни плюсы. А дальше время покажет. Насчет магазинов, кто не знает 10 мин ходу и на территории городка Монино все есть "5"-и ни одна, Ермолино-классный магазин, сбербанк, школа, ДК, спортивный комплекс и много другого. А кому плохо, то видимо им везде будет плохо-это сорт людей такой. .
Ответить
Самый новый отзыв
СН
05 февраля
Оценка:
Достоинства
Транспортная доступность
Социальная инфраструктура
Двор, окружение
Расположение
Локация вот особенно порадовала: до метро недалеко 15 минут пешком до станции Монино, дорога до работы становится короче.
Ответить

Оставить отзыв

Добавьте отзыв, заполнив личные данные, или сначала войдите на сайт, тогда информация будет автоматически взята из личного профиля.
Оценка*