Рейтинг@Mail.ru
Переверните экран
Новостройки Квартиры Ипотека Новостройки Москвы Новостройки Подмосковья Новостройки Новой Москвы Готовые новостройки Новостройки на карте Акции от застройщиков Коммерческие помещения Продавцы и застройщики Панорамы новостроек Видеообзор новостроек Экспертиза новостроек Экология Москвы и Подмосковья Студии 1-комнатные 2-комнатные 3-комнатные Квартиры на карте Ипотечный калькулятор Семейная ипотека Военная ипотека Банки и программы Медиа Новости недвижимости Мнение эксперта Аналитика рынка Покупателю Экспертиза новостроек Эксперты и авторы О проекте Контакты Реклама на сайте Vk Youtube Telegram Дзен Машиноместа Апартаменты #траншевая ипотека #рассрочка ИТ-ипотека Квартиры со скидками до 40% Видео 360° новостроек Субсидированная застройщиком Rutube Поиск дома в Москве Программа реновации в Москве Новостройки премиум-класса Новостройки бизнес-класса Рассрочка Траншевая ипотека Дома и коттеджи Коттеджные поселки в Новой Москве Готовые коттеджные поселки Строящиеся коттеджные поселки Коттеджные поселки в лесу Коттеджные поселки у водоема Коттеджные поселки в ипотеку Бизнес-центры Коттеджи Ипотека со ставкой 0,1%
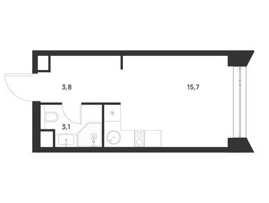
студия, 22.60 м2, 20 этаж
Срок сдачи 4 квартал 2027 года
14 590 525 
19 481 053
645 598 2
обновлено 30 апреля

Описание студии

Новостройка
Срок ГК
4 квартал 2027 года
Стадия строительства
Общая площадь
22.60 м2
Жилая площадь
10.70 м2
Площадь кухни
5.00 м2
Этаж
20 / 40

Расположение студии

Локация
Метро
Станция МЦК
Дом
1
Адрес
1-й Грайвороновский пр-д, вл. 2/2, секция 1

Способы покупки

Особенности

Продается студия в новостройке ЖК «Войс» по адресу Москва, ЮВАО, Текстильщики, 1-й Грайвороновский пр-д, вл. 2/2. Общая площадь квартиры - 22.6 кв. м. Тип проекта, по которому построен дом — Монолитно-кирпичный, компания-застройщик — СЗ «Три Эс Сити», 3S Group (Три Эс Груп). Стоимость квартиры — 14 590 525 руб. Способы оплаты можно уточнить у продавца. Срок сдачи — 4 квартал 2027. Более подробная информация по телефону.
3S Group (Три Эс Груп)
3S Group (Три Эс Груп)
Сданных 1
|
Строящихся 2
Время работы 09:00 — 21:00
Заказать обратный звонок
Выбирайте квартиру в ЖК «Войс» по ценам от застройщика

Похожие квартиры в ЖК «Войс»

17 этаж
из 40 4 квартал 2027
Москва, ЮВАО
Новохохловская
10 мин.
1
Корпус
нет данных
Отделка
2.92 м
Потолки
ЖК «Войс»
18 693 160
СберБанк, Альфа-Банк, Совкомбанк, Абсолют Банк, Промсвязьбанк, Московский Кредитный Банк, ДОМ.РФ, Россельхозбанк, Банк Санкт-Петербург, Металлинвестбанк, МТС Банк, Газпромбанк, Уралсиб
3.50%
Ставка
20.00%
Первый взнос
от 83 941 /мес.
Все варианты
студия 22,20 м2 15 050 150
Этаж 14/40
Москва, ЖК «Войс»
Новохохловская
10 мин.
Строится
студия 22,30 м2 14 657 979
Этаж 26/40
Москва, ЖК «Войс»
Новохохловская
10 мин.
Строится
Этаж 17/40
Москва, ЖК «Войс»
Новохохловская
10 мин.
Строится
студия 22,70 м2 14 727 428
Этаж 26/40
Москва, ЖК «Войс»
Новохохловская
10 мин.
Строится
Посмотреть 51 квартира в ЖК «Войс»
1-комн. квартира 35,80 м2 22 390 150
Этаж 17/33
Москва, ЖК «Войс»
Новохохловская
10 мин.
Строится
1-комн. квартира 36,00 м2 22 690 150
Этаж 21/33
Москва, ЖК «Войс»
Новохохловская
10 мин.
Строится
1-комн. квартира 36,10 м2 18 362 975
Этаж 29/33
Москва, ЖК «Войс»
Новохохловская
10 мин.
Строится
1-комн. квартира 36,30 м2 22 250 150
Этаж 17/33
Москва, ЖК «Войс»
Новохохловская
10 мин.
Строится
Посмотреть 86 квартир в ЖК «Войс»
2-комн. квартира 44,40 м2 24 832 000
Этаж 17/33
Москва, ЖК «Войс»
Новохохловская
10 мин.
Строится
2-комн. квартира 44,50 м2 24 832 000
Этаж 23/33
Москва, ЖК «Войс»
Новохохловская
10 мин.
Строится
2-комн. квартира 48,30 м2 25 101 760
Этаж 8/33
Москва, ЖК «Войс»
Новохохловская
10 мин.
Строится
2-комн. квартира 48,60 м2 21 761 340
Этаж 21/33
Москва, ЖК «Войс»
Новохохловская
10 мин.
Строится
Посмотреть 104 квартиры в ЖК «Войс»
3-комн. квартира 69,70 м2 34 514 460
Этаж 17/33
Москва, ЖК «Войс»
Новохохловская
10 мин.
Строится
3-комн. квартира 70,00 м2 27 131 230
Этаж 22/33
Москва, ЖК «Войс»
Новохохловская
10 мин.
Строится
3-комн. квартира 71,40 м2 35 180 150
Этаж 16/33
Москва, ЖК «Войс»
Новохохловская
10 мин.
Строится
3-комн. квартира 71,50 м2 27 478 422
Этаж 22/33
Москва, ЖК «Войс»
Новохохловская
10 мин.
Строится
Посмотреть 17 квартир в ЖК «Войс»

Скидки и спецпредложения от застройщиков

ЖК «Войс» на карте

Выгодные предложения на новостройки

Отзывы о ЖК «Войс»

Самый полезный отзыв
АУ
27 мая 2024
Оценка:
Достоинства
Транспортная доступность
Расположение
На районе хватает ТЦ и развлечений, есть каток, бассейн и много чего еще. Вот это прям здорово и важно для меня, на самом деле. Сам ЖК выглядит многообещающе.
Ответить
Самый новый отзыв
ЮС
06 марта
Оценка:
Достоинства
Планировки
Способы покупки
Двор, окружение
Расположение
Срок сдачи долгий, но надеюсь, что проект оправдает ожидания. Очень хочется, чтобы этот проект стал хорошим примером для других.
Ответить

Оставить отзыв

Добавьте отзыв, заполнив личные данные, или сначала войдите на сайт, тогда информация будет автоматически взята из личного профиля.
Оценка*