Рейтинг@Mail.ru
Переверните экран
Новостройки Квартиры Ипотека Новостройки Москвы Новостройки Подмосковья Новостройки Новой Москвы Готовые новостройки Новостройки на карте Акции от застройщиков Коммерческие помещения Продавцы и застройщики Панорамы новостроек Видеообзор новостроек Экспертиза новостроек Экология Москвы и Подмосковья Студии 1-комнатные 2-комнатные 3-комнатные Квартиры на карте Ипотечный калькулятор Семейная ипотека Военная ипотека Банки и программы Медиа Новости недвижимости Мнение эксперта Аналитика рынка Покупателю Экспертиза новостроек Эксперты и авторы О проекте Контакты Реклама на сайте Vk Youtube Telegram Дзен Машиноместа Апартаменты #траншевая ипотека #рассрочка ИТ-ипотека Квартиры со скидками до 40% Видео 360° новостроек Субсидированная застройщиком Rutube Поиск дома в Москве Программа реновации в Москве Новостройки премиум-класса Новостройки бизнес-класса Рассрочка Траншевая ипотека Дома и коттеджи Бизнес-центры Бизнес-центры в Москве Бизнес-центры рядом с метро Строящиеся бизнес-центры Бизнес-центры класса A Бизнес-центры класса B Ипотека со ставкой 0,1%
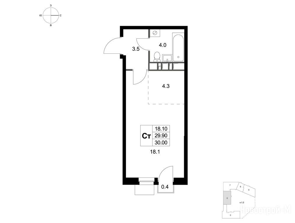
студия, 30.00 м2, 3 этаж
Срок сдачи 4 квартал 2026 года
8 700 000 
290 000 2
обновлено 29 марта

Описание студии

Срок ГК
4 квартал 2026 года
Стадия строительства
монтаж средних этажей
Общая площадь
30.00 м2
Жилая площадь
18.10 м2
Этаж
3 / 6
Грузовой лифт
есть

Расположение студии

Метро
Ж/Д-станция
Дом
1.2
Адрес
ЖК «Легенда Марусино», корп. 1.2, секция 6

Способы покупки

Особенности

Продается студия в новостройке ЖК «Легенда Марусино» по адресу Московская область, Люберцы городской округ, Марусино деревня, ЖК «Легенда Марусино», корп. 1.2. Общая площадь квартиры - 30 кв. м. Тип проекта, по которому построен дом — Монолитно-кирпичный, компания-застройщик — Некрасовка Девелопмент, СЗ МАРУСИНО. Стоимость квартиры — 8 700 000 руб. Способы оплаты можно уточнить у продавца. Срок сдачи — 4 квартал 2026. Более подробная информация по телефону.
Инфоцентр новостроек
Инфоцентр новостроек
+7 (499) 705-91-41
Время работы 9:00 — 21:00

Похожие квартиры в ЖК «Легенда Марусино»

5 этаж
из 6 4 квартал 2026
Московская область, Люберцы городской округ
Некрасовка
13 мин.
1.2
Корпус
нет данных
Отделка
2.82 м
Потолки
ЖК «Легенда Марусино»
8 700 000
ВТБ, Альфа-Банк, СберБанк, Совкомбанк, ДОМ.РФ, Промсвязьбанк, Банк Санкт-Петербург, Абсолют Банк, Т-Банк, АК БАРС, Металлинвестбанк
6.00%
Ставка
40.10%
Первый взнос
от 52 161 /мес.
Все варианты
студия 23,30 м2 4 823 100
Этаж 4/7
МО, ЖК «Легенда Марусино»
Некрасовка
13 мин.
Строится
студия 23,40 м2 5 592 600
Этаж 6/7
МО, ЖК «Легенда Марусино»
Некрасовка
13 мин.
Строится
студия 23,60 м2 5 640 400
Этаж 4/7
МО, ЖК «Легенда Марусино»
Некрасовка
13 мин.
Строится
студия 23,70 м2 5 664 300
Этаж 6/7
МО, ЖК «Легенда Марусино»
Некрасовка
13 мин.
Строится
Посмотреть 16 квартир в ЖК «Легенда Марусино»
1-комн. квартира 38,40 м2 8 755 200
Этаж 1/6
МО, ЖК «Легенда Марусино»
Некрасовка
13 мин.
Строится
1-комн. квартира 39,50 м2 11 455 000
Этаж 3/7
МО, ЖК «Легенда Марусино»
Некрасовка
13 мин.
Строится
1-комн. квартира 39,70 м2 11 513 000
Этаж 3/4
МО, ЖК «Легенда Марусино»
Некрасовка
13 мин.
Строится
1-комн. квартира 39,80 м2 11 542 000
Этаж 2/6
МО, ЖК «Легенда Марусино»
Некрасовка
13 мин.
Строится
Посмотреть 18 квартир в ЖК «Легенда Марусино»
2-комн. квартира 38,90 м2 11 281 000
Этаж 1/4
МО, ЖК «Легенда Марусино»
Некрасовка
13 мин.
Строится
2-комн. квартира 43,10 м2 9 395 800
Этаж 6/7
МО, ЖК «Легенда Марусино»
Некрасовка
13 мин.
Строится
2-комн. квартира 45,80 м2 13 282 000
Этаж 2/6
МО, ЖК «Легенда Марусино»
Некрасовка
13 мин.
Строится
2-комн. квартира 52,10 м2 15 109 000
Этаж 5/6
МО, ЖК «Легенда Марусино»
Некрасовка
13 мин.
Строится
Посмотреть 27 квартир в ЖК «Легенда Марусино»
3-комн. квартира 59,90 м2 12 698 800
Этаж 6/6
МО, ЖК «Легенда Марусино»
Некрасовка
13 мин.
Строится
3-комн. квартира 67,40 м2 19 546 000
Этаж 2/7
МО, ЖК «Легенда Марусино»
Некрасовка
13 мин.
Строится
3-комн. квартира 67,60 м2 19 604 000
Этаж 2/7
МО, ЖК «Легенда Марусино»
Некрасовка
13 мин.
Строится
3-комн. квартира 67,80 м2 19 662 000
Этаж 3/7
МО, ЖК «Легенда Марусино»
Некрасовка
13 мин.
Строится
Посмотреть 16 квартир в ЖК «Легенда Марусино»

Скидки и спецпредложения от застройщиков

ЖК «Легенда Марусино» на карте

Выгодные предложения на новостройки

Отзывы о ЖК «Легенда Марусино»

Самый полезный отзыв
А
20 января 2025
Оценка:
Достоинства
Транспортная доступность
Планировки
Расположение
С мужем приобрели тут квартиру для нашего сына - пока растет. Нравится прежде всего расположение и отличный застройщик. Видели его проекты - проблемных нет. Сдача в 2026 году. Продумана каждая мелочь. Жк комфорт плюс. Ждем с нетерпением ключиков
Ответить
Самый новый отзыв
М
13 марта
Оценка:
В старом доме вечная проблема была с парковкой - приходилось по часу круги нарезать. Здесь же будет просто сказка: машина всегда в безопасности. Плюс закрытая территория - и за детей спокойно, и по дворам посторонние не ходят. Чувствуется разница.
Ответить

Оставить отзыв

Добавьте отзыв, заполнив личные данные, или сначала войдите на сайт, тогда информация будет автоматически взята из личного профиля.
Оценка*