Рейтинг@Mail.ru
Переверните экран
Новостройки Квартиры Ипотека Новостройки Москвы Новостройки Подмосковья Новостройки Новой Москвы Готовые новостройки Новостройки на карте Акции от застройщиков Коммерческие помещения Продавцы и застройщики Панорамы новостроек Видеообзор новостроек Экспертиза новостроек Экология Москвы и Подмосковья Студии 1-комнатные 2-комнатные 3-комнатные Квартиры на карте Ипотечный калькулятор Семейная ипотека Военная ипотека Банки и программы Медиа Новости недвижимости Мнение эксперта Аналитика рынка Покупателю Экспертиза новостроек Эксперты и авторы О проекте Контакты Реклама на сайте Vk Youtube Telegram Дзен Машиноместа Апартаменты #траншевая ипотека #рассрочка ИТ-ипотека Квартиры со скидками до 40% Видео 360° новостроек Субсидированная застройщиком Rutube Поиск дома в Москве Программа реновации в Москве Новостройки премиум-класса Новостройки бизнес-класса Рассрочка Траншевая ипотека Дома и коттеджи Коттеджные поселки в Новой Москве Готовые коттеджные поселки Строящиеся коттеджные поселки Коттеджные поселки в лесу Коттеджные поселки у водоема Коттеджные поселки в ипотеку Бизнес-центры Коттеджи Ипотека со ставкой 0,1%
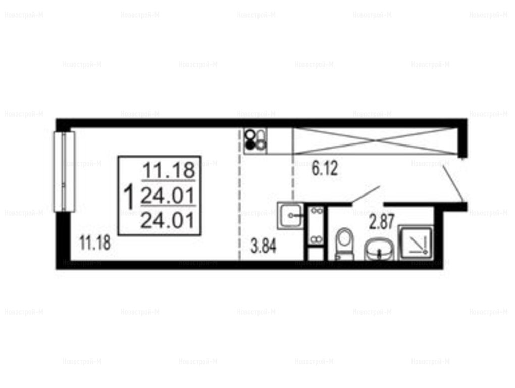
студия, 24.01 м2, 4 этаж
Сдан
4 021 880 
167 509 2
обновлено 13 мая

Описание студии

Новостройка
Застройщик
Срок ГК
Дом сдан
Стадия строительства
выдача ключей + заселение
Тип проекта
Общая площадь
24.01 м2
Жилая площадь
11.18 м2
Площадь кухни
3.84 м2
Этаж
4 / 17
Отделка
чистовая
Грузовой лифт
есть

Расположение студии

Метро
Станция МЦД
Панки
25 мин.
Дом
5 (15Д)
Адрес
6-й микрорайон, д. 15Д, секция 2

Способы покупки

Особенности

Продается студия в новостройке ЖК «Гармония Парк» по адресу Московская область, Лыткарино городской округ, Лыткарино, 6-й микрорайон, д. 15Д. Общая площадь квартиры - 24.01 кв. м. Тип проекта, по которому построен дом — Монолит, компания-застройщик — ООО «ТКС Риэлти». Стоимость квартиры — 4 021 880 руб. Способы оплаты можно уточнить у продавца. Более подробная информация по телефону.

Похожие квартиры в ЖК «Гармония Парк»

6 этаж
из 17 Дом сдан
Московская область, Лыткарино городской округ
Котельники
23 мин.
5 (15Д)
Корпус
чистовая
Отделка
2.72 м
Потолки
ЖК «Гармония Парк»
4 067 240
ДОМ.РФ, СберБанк, Абсолют Банк
0.30%
Ставка
15.00%
Первый взнос
от 11 298 /мес.
Все варианты

Еще квартиры в ЖК «Гармония Парк»

Этаж 16/17
МО, ЖК «Гармония Парк»
Котельники
23 мин.
Сдан
Этаж 10/17
МО, ЖК «Гармония Парк»
Котельники
23 мин.
Сдан
студия 23,82 м2 4 012 810
Этаж 10/17
МО, ЖК «Гармония Парк»
Котельники
23 мин.
Сдан
студия 24,01 м2 4 067 240
Этаж 6/17
МО, ЖК «Гармония Парк»
Котельники
23 мин.
Сдан
Посмотреть 12 квартир в ЖК «Гармония Парк»

Скидки и спецпредложения от застройщиков

ЖК «Гармония Парк» на карте

Выгодные предложения на новостройки

Отзывы о ЖК «Гармония Парк»

Самый полезный отзыв
ИС
02 июня 2019
Оценка:
Достоинства
Социальная инфраструктура
Скорость строительства
Внешний вид фасада
Расположение
Мы живем недалеко от стройки (кв. 3А), для родителей будем брать квартиру в этой очереди, точнее себе там, а родителей в свою квартиру, из корпусов 1-3 такие виды, они ближе к воде и школа практически во дворе - одни плюсы, сейчас ждем одобрение ипотеки, надеюсь, что все срастется
Ответить
Самый новый отзыв
ЮЮ
29 мая 2025
Оценка:
Достоинства
Планировки
Способы покупки
Двор, окружение
Расположение
Главное преимущество района - это, конечно, парк! Гулять там одно удовольствие, дышать свежим воздухом. А еще карьер с прекрасной водой! Летом - вообще красота, можно купаться и загорать. В общем, для меня близость к природе - это огромный плюс.
Ответить

Оставить отзыв

Добавьте отзыв, заполнив личные данные, или сначала войдите на сайт, тогда информация будет автоматически взята из личного профиля.
Оценка*