Рейтинг@Mail.ru
Переверните экран
Новостройки Квартиры Ипотека Новостройки Москвы Новостройки Подмосковья Новостройки Новой Москвы Готовые новостройки Новостройки на карте Акции от застройщиков Коммерческие помещения Продавцы и застройщики Панорамы новостроек Видеообзор новостроек Экспертиза новостроек Экология Москвы и Подмосковья Студии 1-комнатные 2-комнатные 3-комнатные Квартиры на карте Ипотечный калькулятор Семейная ипотека Военная ипотека Банки и программы Медиа Новости недвижимости Мнение эксперта Аналитика рынка Покупателю Экспертиза новостроек Эксперты и авторы О проекте Контакты Реклама на сайте Vk Youtube Telegram Дзен Машиноместа Апартаменты #траншевая ипотека #рассрочка IT-ипотека Квартиры со скидками до 40% Видео 360° новостроек Субсидированная застройщиком Rutube Поиск дома в Москве Программа реновации в Москве Новостройки премиум-класса Новостройки бизнес-класса Рассрочка Траншевая ипотека ГАЛС Дома и коттеджи Бизнес-центры Бизнес-центры в Москве Бизнес-центры рядом с метро Строящиеся бизнес-центры Бизнес-центры класса A Бизнес-центры класса B ЛСР
Данная квартира является лидером продаж среди однокомнатных квартир в ЖК «Публицист» по данным Росреестра
Данное предложение на 13.12.2025 неактуально. Пожалуйста, ознакомьтесь с другими похожими предложениями в ЖК «Публицист» .
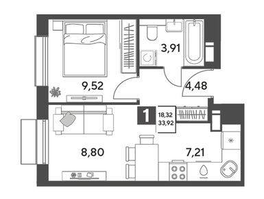
1-комн. квартира, 36.17 м2, 12 этаж
Срок сдачи 3 квартал 2026 года
6 666 854 
184 320 2
обновлено 19 сентября

Описание 1-комн. квартиры

Новостройка
Срок ГК
3 квартал 2026 года
Стадия строительства
Общая площадь
36.17 м2
Жилая площадь
20.17 м2
Площадь кухни
7.05 м2
Высота потолков
2.72
Этаж
12 / 15
Отделка
чистовая
Вид из окна
на улицу
Грузовой лифт
есть

Расположение 1-комн. квартиры

Метро
Станция МЦК
Ж/Д-станция
Дом
12
Адрес
ул. Зеленая Роща, корп. 12

Особенности

Продается однокомнатная квартира в новостройке ЖК «Публицист» по адресу Московская область, Пушкинский район, Пушкино, ул. Зеленая Роща, корп. 12. Общая площадь квартиры - 36.17 кв. м. Тип проекта, по которому построен дом — Монолитно-кирпичный, компания-застройщик — DOGMA, ООО СЗ Ниго-Холдинг. Стоимость квартиры — 6 666 854 руб. Способы оплаты можно уточнить у продавца. Срок сдачи — 3 квартал 2026. Более подробная информация по телефону.
Инфоцентр новостроек
Инфоцентр новостроек
+7 (499) 705-91-41
Время работы 9:00 — 21:00
Посмотреть все спецпредложения
2-комн. квартира 64,29 м2 14 676 636
Этаж 6/15 лоджия
МО, ЖК «Публицист»
Ростокино
24 мин.
Строится
студия 17,63 м2 4 336 134
Этаж 11/15
МО, ЖК «Публицист»
Ростокино
24 мин.
Строится
студия 19,41 м2 4 693 804
Этаж 10/10
МО, ЖК «Публицист»
Ростокино
24 мин.
Строится
студия 19,65 м2 4 742 410
Этаж 4/10
МО, ЖК «Публицист»
Ростокино
24 мин.
Строится
студия 19,68 м2 4 990 848
Этаж 9/10
МО, ЖК «Публицист»
Ростокино
24 мин.
Строится
Посмотреть 17 квартир в ЖК «Публицист»
1-комн. квартира 31,70 м2 8 883 101
Этаж 11/12
МО, ЖК «Публицист»
Ростокино
24 мин.
Строится
1-комн. квартира 31,80 м2 7 120 020
Этаж 7/9
МО, ЖК «Публицист»
Ростокино
24 мин.
Строится
1-комн. квартира 33,71 м2 8 740 868
Этаж 15/15
МО, ЖК «Публицист»
Ростокино
24 мин.
Строится
1-комн. квартира 33,92 м2 7 020 626
Этаж 7/12
МО, ЖК «Публицист»
Ростокино
24 мин.
Строится
Посмотреть 51 квартира в ЖК «Публицист»
2-комн. квартира 43,63 м2 11 463 870
Этаж 9/15
МО, ЖК «Публицист»
Ростокино
24 мин.
Строится
Этаж 9/9
МО, ЖК «Публицист»
Ростокино
24 мин.
Строится
2-комн. квартира 44,40 м2 9 462 528
Этаж 7/15
МО, ЖК «Публицист»
Ростокино
24 мин.
Строится
Этаж 9/12
МО, ЖК «Публицист»
Ростокино
24 мин.
Строится
Посмотреть 73 квартиры в ЖК «Публицист»
3-комн. квартира 76,92 м2 14 537 880
Этаж 2/9 лоджия
МО, ЖК «Публицист»
Ростокино
24 мин.
Строится
3-комн. квартира 77,71 м2 14 778 577
Этаж 13/15 лоджия
МО, ЖК «Публицист»
Ростокино
24 мин.
Строится
3-комн. квартира 81,91 м2 15 231 328
Этаж 2/15 лоджия
МО, ЖК «Публицист»
Ростокино
24 мин.
Строится
Посмотреть 9 квартир в ЖК «Публицист»

Скидки и спецпредложения от застройщиков

ЖК «Публицист» на карте

Выгодные предложения на новостройки

Отзывы о ЖК «Публицист»

Самый полезный отзыв
А
06 мая 2024
Оценка:
Планировки
Я приобрёл квартиру в новом жилом комплексе и решил сравнить два корпуса — 10 и 11. Корпус 10 предлагает квартиры без отделки, что позволяет сделать ремонт по своему вкусу и бюджету. В таком варианте есть свои плюсы: можно сразу приступить к ремонту и воплотить свои идеи в жизнь. Однако это требует дополнительных затрат на материалы и работу. Корпус 11 предлагает квартиры с полной отделкой под ключ. Это означает, что застройщик выполнил все черновые работы, установил коммуникации и сделал косметический ремонт. Такой вариант подойдёт тем, кто хочет заехать в квартиру сразу после покупки и не тратить время и силы на ремонт. Однако стоимость таких квартир будет выше, чем в корпусе 10. В итоге я выбрал корпус 10, так как предпочитаю индивидуальный подход к дизайну и ремонту. Однако оба варианта являются хорошим предложением на рынке недвижимости.
Ответить
Полезный отзыв?
Самый новый отзыв
К
18 ноября
Оценка:
Была в офисе продаж Публициста и смотрела макет. Сразу заметила, как продуманы дворы и зеленые зоны, плюс несколько арт-объектов планируется. Планировки квартир показались удобными, особенно мне понравились лоджии и большие окна.
Ответить
Полезный отзыв?
Добавьте отзыв, заполнив личные данные, или сначала войдите на сайт, тогда информация будет автоматически взята из личного профиля.
Оценка*