Рейтинг@Mail.ru
Переверните экран
Новостройки Квартиры Ипотека Новостройки Москвы Новостройки Подмосковья Новостройки Новой Москвы Готовые новостройки Новостройки на карте Акции от застройщиков Коммерческие помещения Продавцы и застройщики Панорамы новостроек Видеообзор новостроек Экспертиза новостроек Экология Москвы и Подмосковья Студии 1-комнатные 2-комнатные 3-комнатные Квартиры на карте Ипотечный калькулятор Семейная ипотека Военная ипотека Банки и программы Медиа Новости недвижимости Мнение эксперта Аналитика рынка Покупателю Экспертиза новостроек Эксперты и авторы О проекте Контакты Реклама на сайте Vk Youtube Telegram Дзен Машиноместа Апартаменты #траншевая ипотека #рассрочка ИТ-ипотека Квартиры со скидками до 40% Видео 360° новостроек Субсидированная застройщиком Rutube Поиск дома в Москве Программа реновации в Москве Новостройки премиум-класса Новостройки бизнес-класса Рассрочка Траншевая ипотека Дома и коттеджи Коттеджные поселки в Новой Москве Готовые коттеджные поселки Строящиеся коттеджные поселки Коттеджные поселки в лесу Коттеджные поселки у водоема Коттеджные поселки в ипотеку Бизнес-центры Коттеджи Ипотека со ставкой 0,1%
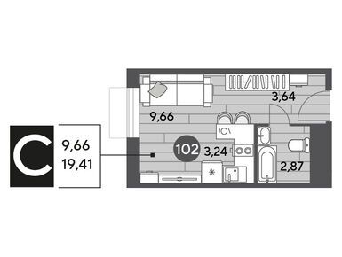
студия, 19.41 м2, 10 этаж
Срок сдачи 2 квартал 2029 года
5 054 364 
260 400 2
обновлено 25 мая

Описание студии

Новостройка
Срок ГК
2 квартал 2029 года
Стадия строительства
Общая площадь
19.41 м2
Жилая площадь
9.66 м2
Площадь кухни
3.24 м2
Высота потолков
2.72
Этаж
10 / 14
Отделка
предчистовая
Вид из окна
на улицу
Грузовой лифт
есть

Расположение студии

Метро
Станция МЦК
Ж/Д-станция
Дом
5
Адрес
ул. Зеленая Роща, корп. 5, секция 6

Особенности

Продается студия в новостройке ЖК «Публицист» по адресу Московская область, Пушкинский район, Пушкино, ул. Зеленая Роща, корп. 5. Общая площадь квартиры - 19.41 кв. м. Тип проекта, по которому построен дом — Монолитно-кирпичный, компания-застройщик — DOGMA, ООО СЗ Ниго-Холдинг. Стоимость квартиры — 5 054 364 руб. Способы оплаты можно уточнить у продавца. Срок сдачи — 2 квартал 2029. Более подробная информация по телефону.

Правовые документы

Инфоцентр новостроек
Инфоцентр новостроек
+7 (499) 705-91-41
Время работы 9:00 — 21:00

Похожие квартиры в ЖК «Публицист»

14 этаж
из 14 2 квартал 2029
Московская область, Пушкинский район
Ростокино
24 мин.
5
Корпус
предчистовая
Отделка
2.72 м
Потолки
ЖК «Публицист»
5 033 013
11 этаж
из 14 2 квартал 2029
Московская область, Пушкинский район
Ростокино
24 мин.
5
Корпус
предчистовая
Отделка
2.72 м
Потолки
ЖК «Публицист»
5 058 246
студия 17,63 м2 5 891 523
Этаж 13/15
МО, ЖК «Публицист»
Ростокино
24 мин.
Строится
студия 19,41 м2 5 058 246
Этаж 11/14
МО, ЖК «Публицист»
Ростокино
24 мин.
Строится
студия 19,65 м2 5 399 820
Этаж 10/10
МО, ЖК «Публицист»
Ростокино
24 мин.
Строится
студия 19,68 м2 6 708 912
Этаж 9/15
МО, ЖК «Публицист»
Ростокино
24 мин.
Строится
Посмотреть 76 квартир в ЖК «Публицист»
1-комн. квартира 31,70 м2 9 476 525
Этаж 8/9
МО, ЖК «Публицист»
Ростокино
24 мин.
Строится
1-комн. квартира 31,80 м2 7 816 440
Этаж 7/9
МО, ЖК «Публицист»
Ростокино
24 мин.
Строится
1-комн. квартира 31,93 м2 9 039 383
Этаж 4/12
МО, ЖК «Публицист»
Ростокино
24 мин.
Строится
1-комн. квартира 33,71 м2 9 243 282
Этаж 7/15
МО, ЖК «Публицист»
Ростокино
24 мин.
Строится
Посмотреть 206 квартир в ЖК «Публицист»
2-комн. квартира 42,69 м2 9 397 264
Этаж 12/12
МО, ЖК «Публицист»
Ростокино
24 мин.
Строится
2-комн. квартира 43,63 м2 10 106 802
Этаж 11/15
МО, ЖК «Публицист»
Ростокино
24 мин.
Строится
2-комн. квартира 44,40 м2 10 387 469
Этаж 9/15
МО, ЖК «Публицист»
Ростокино
24 мин.
Строится
2-комн. квартира 44,52 м2 11 486 160
Этаж 4/9
МО, ЖК «Публицист»
Ростокино
24 мин.
Строится
Посмотреть 172 квартиры в ЖК «Публицист»
3-комн. квартира 76,92 м2 17 522 376
Этаж 2/9 лоджия
МО, ЖК «Публицист»
Ростокино
24 мин.
Строится
3-комн. квартира 77,71 м2 16 181 087
Этаж 13/15 лоджия
МО, ЖК «Публицист»
Ростокино
24 мин.
Строится
3-комн. квартира 81,91 м2 16 756 820
Этаж 2/15 лоджия
МО, ЖК «Публицист»
Ростокино
24 мин.
Строится
Посмотреть 17 квартир в ЖК «Публицист»

Скидки и спецпредложения от застройщиков

ЖК «Публицист» на карте

Выгодные предложения на новостройки

Отзывы о ЖК «Публицист»

Самый полезный отзыв
А
06 мая 2024
Оценка:
Достоинства
Планировки
Я приобрёл квартиру в новом жилом комплексе и решил сравнить два корпуса — 10 и 11. Корпус 10 предлагает квартиры без отделки, что позволяет сделать ремонт по своему вкусу и бюджету. В таком варианте есть свои плюсы: можно сразу приступить к ремонту и воплотить свои идеи в жизнь. Однако это требует дополнительных затрат на материалы и работу. Корпус 11 предлагает квартиры с полной отделкой под ключ. Это означает, что застройщик выполнил все черновые работы, установил коммуникации и сделал косметический ремонт. Такой вариант подойдёт тем, кто хочет заехать в квартиру сразу после покупки и не тратить время и силы на ремонт. Однако стоимость таких квартир будет выше, чем в корпусе 10. В итоге я выбрал корпус 10, так как предпочитаю индивидуальный подход к дизайну и ремонту. Однако оба варианта являются хорошим предложением на рынке недвижимости.
Ответить
Самый новый отзыв
ИШ
19 мая
Оценка:
Живу проектами на удаленке, вот искал ЖК где есть где поработать вне квартиры. В Догма Клубе обещают коворкинг и соседский центр только для резидентов, это прям козырь. До ж/д Пушкино на автобусе минут 20, МЦД 5 пока в проекте, заложился на автономию по инфраструктуре
Ответить

Оставить отзыв

Добавьте отзыв, заполнив личные данные, или сначала войдите на сайт, тогда информация будет автоматически взята из личного профиля.
Оценка*