Рейтинг@Mail.ru
Переверните экран
Новостройки Квартиры Ипотека Новостройки Москвы Новостройки Подмосковья Новостройки Новой Москвы Готовые новостройки Новостройки на карте Акции от застройщиков Коммерческие помещения Продавцы и застройщики Панорамы новостроек Видеообзор новостроек Экспертиза новостроек Экология Москвы и Подмосковья Студии 1-комнатные 2-комнатные 3-комнатные Квартиры на карте Ипотечный калькулятор Семейная ипотека Военная ипотека Банки и программы Медиа Новости недвижимости Мнение эксперта Аналитика рынка Покупателю Экспертиза новостроек Эксперты и авторы О проекте Контакты Реклама на сайте Vk Youtube Telegram Дзен Машиноместа Апартаменты #траншевая ипотека #рассрочка IT-ипотека Квартиры со скидками до 40% Видео 360° новостроек Субсидированная застройщиком Rutube Поиск дома в Москве Программа реновации в Москве Новостройки премиум-класса Новостройки бизнес-класса Рассрочка Траншевая ипотека ГАЛС Дома и коттеджи Бизнес-центры Бизнес-центры в Москве Бизнес-центры рядом с метро Строящиеся бизнес-центры Бизнес-центры класса A Бизнес-центры класса B ЛСР
Данная квартира является лидером продаж среди однокомнатных квартир в ЖК «Публицист» по данным Росреестра
Данное предложение на 17.12.2025 неактуально. Пожалуйста, ознакомьтесь с другими похожими предложениями в ЖК «Публицист» .
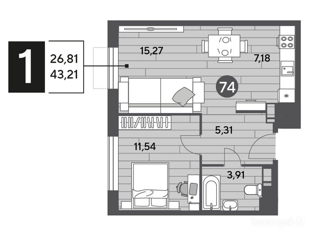
1-комн. квартира, 43.21 м2, 6 этаж
Срок сдачи 1 квартал 2026 года
6 939 872 
160 608 2
обновлено 17 октября

Описание 1-комн. квартиры

Новостройка
Срок ГК
1 квартал 2026 года
Стадия строительства
Общая площадь
43.21 м2
Жилая площадь
26.81 м2
Площадь кухни
7.18 м2
Высота потолков
2.72
Этаж
6 / 12
Отделка
нет
Вид из окна
на улицу
Грузовой лифт
есть

Расположение 1-комн. квартиры

Метро
Станция МЦК
Ж/Д-станция
Дом
10
Адрес
ул. Зеленая Роща, корп. 10

Особенности

Продается однокомнатная квартира в новостройке ЖК «Публицист» по адресу Московская область, Пушкинский район, Пушкино, ул. Зеленая Роща, корп. 10. Общая площадь квартиры - 43.21 кв. м. Тип проекта, по которому построен дом — Монолитно-кирпичный, компания-застройщик — DOGMA, ООО СЗ Ниго-Холдинг. Стоимость квартиры — 6 939 872 руб. Способы оплаты можно уточнить у продавца. Срок сдачи — 1 квартал 2026. Более подробная информация по телефону.
Инфоцентр новостроек
Инфоцентр новостроек
+7 (499) 705-91-41
Время работы 9:00 — 21:00

Похожие квартиры в ЖК «Публицист»

2 этаж
из 10 1 квартал 2026
Московская область, Пушкинский район
Ростокино
24 мин.
10
Корпус
нет
Отделка
2.75 м
Потолки
ЖК «Публицист»
8 370 987
4 этаж
из 10 1 квартал 2026
Московская область, Пушкинский район
Ростокино
24 мин.
10
Корпус
нет
Отделка
2.75 м
Потолки
ЖК «Публицист»
8 462 246
Посмотреть все спецпредложения
2-комн. квартира 64,29 м2 15 565 380
Этаж 6/15 лоджия
МО, ЖК «Публицист»
Ростокино
24 мин.
Строится
студия 17,63 м2 4 610 316
Этаж 13/15
МО, ЖК «Публицист»
Ростокино
24 мин.
Строится
студия 19,41 м2 5 049 706
Этаж 10/10
МО, ЖК «Публицист»
Ростокино
24 мин.
Строится
студия 19,65 м2 5 081 962
Этаж 4/10
МО, ЖК «Публицист»
Ростокино
24 мин.
Строится
студия 19,68 м2 5 295 888
Этаж 9/10
МО, ЖК «Публицист»
Ростокино
24 мин.
Строится
Посмотреть 16 квартир в ЖК «Публицист»
1-комн. квартира 31,70 м2 9 449 136
Этаж 8/9
МО, ЖК «Публицист»
Ростокино
24 мин.
Строится
1-комн. квартира 31,80 м2 7 705 140
Этаж 7/9
МО, ЖК «Публицист»
Ростокино
24 мин.
Строится
1-комн. квартира 31,93 м2 7 316 823
Этаж 2/9
МО, ЖК «Публицист»
Ростокино
24 мин.
Строится
1-комн. квартира 33,71 м2 9 533 727
Этаж 7/15
МО, ЖК «Публицист»
Ростокино
24 мин.
Строится
Посмотреть 59 квартир в ЖК «Публицист»
2-комн. квартира 43,63 м2 9 687 954
Этаж 7/15
МО, ЖК «Публицист»
Ростокино
24 мин.
Строится
Этаж 9/9
МО, ЖК «Публицист»
Ростокино
24 мин.
Строится
2-комн. квартира 44,40 м2 10 131 725
Этаж 7/15
МО, ЖК «Публицист»
Ростокино
24 мин.
Строится
Этаж 9/12
МО, ЖК «Публицист»
Ростокино
24 мин.
Строится
Посмотреть 76 квартир в ЖК «Публицист»
3-комн. квартира 77,71 м2 15 673 796
Этаж 13/15 лоджия
МО, ЖК «Публицист»
Ростокино
24 мин.
Строится
3-комн. квартира 81,91 м2 16 316 472
Этаж 2/15 лоджия
МО, ЖК «Публицист»
Ростокино
24 мин.
Строится
Посмотреть 7 квартир в ЖК «Публицист»

Скидки и спецпредложения от застройщиков

ЖК «Публицист» на карте

Выгодные предложения на новостройки

Отзывы о ЖК «Публицист»

Самый полезный отзыв
А
06 мая 2024
Оценка:
Планировки
Я приобрёл квартиру в новом жилом комплексе и решил сравнить два корпуса — 10 и 11. Корпус 10 предлагает квартиры без отделки, что позволяет сделать ремонт по своему вкусу и бюджету. В таком варианте есть свои плюсы: можно сразу приступить к ремонту и воплотить свои идеи в жизнь. Однако это требует дополнительных затрат на материалы и работу. Корпус 11 предлагает квартиры с полной отделкой под ключ. Это означает, что застройщик выполнил все черновые работы, установил коммуникации и сделал косметический ремонт. Такой вариант подойдёт тем, кто хочет заехать в квартиру сразу после покупки и не тратить время и силы на ремонт. Однако стоимость таких квартир будет выше, чем в корпусе 10. В итоге я выбрал корпус 10, так как предпочитаю индивидуальный подход к дизайну и ремонту. Однако оба варианта являются хорошим предложением на рынке недвижимости.
Ответить
Полезный отзыв?
Самый новый отзыв
К
18 ноября
Оценка:
Была в офисе продаж Публициста и смотрела макет. Сразу заметила, как продуманы дворы и зеленые зоны, плюс несколько арт-объектов планируется. Планировки квартир показались удобными, особенно мне понравились лоджии и большие окна.
Ответить
Полезный отзыв?
Добавьте отзыв, заполнив личные данные, или сначала войдите на сайт, тогда информация будет автоматически взята из личного профиля.
Оценка*