Рейтинг@Mail.ru
Переверните экран
Новостройки Квартиры Ипотека Новостройки Москвы Новостройки Подмосковья Новостройки Новой Москвы Готовые новостройки Новостройки на карте Акции от застройщиков Коммерческие помещения Продавцы и застройщики Панорамы новостроек Видеообзор новостроек Экспертиза новостроек Экология Москвы и Подмосковья Студии 1-комнатные 2-комнатные 3-комнатные Квартиры на карте Ипотечный калькулятор Семейная ипотека Военная ипотека Банки и программы Медиа Новости недвижимости Мнение эксперта Аналитика рынка Покупателю Экспертиза новостроек Эксперты и авторы О проекте Контакты Реклама на сайте Vk Youtube Telegram Дзен Машиноместа Апартаменты #траншевая ипотека #рассрочка ИТ-ипотека Квартиры со скидками до 40% Видео 360° новостроек Субсидированная застройщиком Rutube Поиск дома в Москве Программа реновации в Москве Новостройки премиум-класса Новостройки бизнес-класса Рассрочка Траншевая ипотека Дома и коттеджи Коттеджные поселки в Новой Москве Готовые коттеджные поселки Строящиеся коттеджные поселки Коттеджные поселки в лесу Коттеджные поселки у водоема Коттеджные поселки в ипотеку Бизнес-центры Коттеджи Ипотека со ставкой 0,1%
Данная квартира является лидером продаж среди однокомнатных квартир в ЖК «Подольском квартале» по данным Росреестра
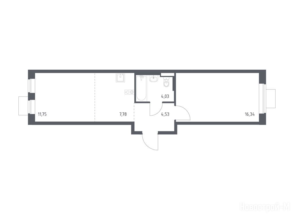
1-комн. квартира, 44.43 м2, 8 этаж
Срок сдачи 2 квартал 2026 года
12 033 243 
270 836 2
обновлено 4 мая

Описание 1-комн. квартиры

Срок ГК
2 квартал 2026 года
Общая площадь
44.43 м2
Жилая площадь
28.09 м2
Площадь кухни
19.53 м2
Этаж
8 / 9
Отделка
нет

Расположение 1-комн. квартиры

Локация
Метро
Станция МЦД
Дом
4
Адрес
ЖК «Подольские кварталы», корп.4, секция 2

Способы покупки

Особенности

Продается однокомнатная квартира в новостройке ЖК «Подольские кварталы» по адресу Москва, ТиНАО, Новомосковский АО, Щербинка, ЖК «Подольские кварталы», корп.4. Общая площадь квартиры - 44.43 кв. м. Тип проекта, по которому построен дом — Монолитно-кирпичный, компания-застройщик — ООО СЗ «Рязанское 1», Группа «Самолет». Стоимость квартиры — 12 033 243 руб. Способы оплаты можно уточнить у продавца. Срок сдачи — 2 квартал 2026. Более подробная информация по телефону.

Похожие квартиры в ЖК «Подольском квартале»

3 этаж
из 9 2 квартал 2026
Москва, Новомосковский АО
Силикатная
15 мин.
4
Корпус
нет
Отделка
2.78 м
Потолки
ЖК «Подольские кварталы»
11 870 807
Уралсиб, Металлинвестбанк, ВТБ, Банк Санкт-Петербург, Альфа-Банк, Абсолют Банк
18.19%
Ставка
20.00%
Первый взнос
от 180 745 /мес.
Все варианты
5 этаж
из 9 2 квартал 2026
Москва, Новомосковский АО
Силикатная
15 мин.
4
Корпус
нет
Отделка
2.78 м
Потолки
ЖК «Подольские кварталы»
11 951 759
Уралсиб, Металлинвестбанк, ВТБ, Банк Санкт-Петербург, Альфа-Банк, Абсолют Банк
18.19%
Ставка
20.00%
Первый взнос
от 181 978 /мес.
Все варианты
9 этаж
из 9 2 квартал 2026
Москва, Новомосковский АО
Силикатная
15 мин.
4
Корпус
нет
Отделка
2.78 м
Потолки
ЖК «Подольские кварталы»
12 061 990
Уралсиб, Металлинвестбанк, ВТБ, Банк Санкт-Петербург, Альфа-Банк, Абсолют Банк
18.19%
Ставка
20.00%
Первый взнос
от 183 656 /мес.
Все варианты
студия 21,82 м2 8 442 785
Этаж 1/9
НМ, ЖК «Подольские кварталы»
Силикатная
15 мин.
Строится
студия 22,28 м2 7 625 196
Этаж 5/12
НМ, ЖК «Подольские кварталы»
Силикатная
15 мин.
Строится
студия 22,94 м2 8 968 324
Этаж 5/9
НМ, ЖК «Подольские кварталы»
Силикатная
15 мин.
Строится
студия 25,91 м2 10 024 847
Этаж 5/9
НМ, ЖК «Подольские кварталы»
Силикатная
15 мин.
Строится
Посмотреть 20 квартир в ЖК «Подольском квартале»
1-комн. квартира 33,42 м2 9 473 066
Этаж 7/9
НМ, ЖК «Подольские кварталы»
Силикатная
15 мин.
Строится
1-комн. квартира 33,52 м2 10 536 710
Этаж 3/12
НМ, ЖК «Подольские кварталы»
Силикатная
15 мин.
Строится
1-комн. квартира 33,53 м2 11 353 266
Этаж 5/12
НМ, ЖК «Подольские кварталы»
Силикатная
15 мин.
Строится
1-комн. квартира 34,75 м2 9 587 038
Этаж 3/9
НМ, ЖК «Подольские кварталы»
Силикатная
15 мин.
Строится
Посмотреть 70 квартир в ЖК «Подольском квартале»
2-комн. квартира 51,91 м2 13 909 284
Этаж 3/9
НМ, ЖК «Подольские кварталы»
Силикатная
15 мин.
Строится
2-комн. квартира 52,62 м2 14 617 047
Этаж 5/9
НМ, ЖК «Подольские кварталы»
Силикатная
15 мин.
Строится
2-комн. квартира 52,92 м2 13 499 151
Этаж 3/9
НМ, ЖК «Подольские кварталы»
Силикатная
15 мин.
Строится
2-комн. квартира 53,28 м2 15 699 538
Этаж 5/9
НМ, ЖК «Подольские кварталы»
Силикатная
15 мин.
Строится
Посмотреть 19 квартир в ЖК «Подольском квартале»
3-комн. квартира 76,32 м2 21 124 974
Этаж 3/12
НМ, ЖК «Подольские кварталы»
Силикатная
15 мин.
Строится
3-комн. квартира 78,51 м2 19 923 958
Этаж 1/9
НМ, ЖК «Подольские кварталы»
Силикатная
15 мин.
Строится
3-комн. квартира 78,55 м2 18 920 181
Этаж 5/9
НМ, ЖК «Подольские кварталы»
Силикатная
15 мин.
Строится
3-комн. квартира 79,15 м2 22 303 460
Этаж 3/9
НМ, ЖК «Подольские кварталы»
Силикатная
15 мин.
Строится
Посмотреть 19 квартир в ЖК «Подольском квартале»

Скидки и спецпредложения от застройщиков

ЖК «Подольские кварталы» на карте

Выгодные предложения на новостройки

Отзывы о ЖК «Подольском квартале»

Самый полезный отзыв
ИХ
10 февраля 2024
Оценка:
Комплекс однозначно стоит внимания, понятное дело, без личного автомобиля в таком районе будет много неудобств, но в остальном все классно. Квартиры, которые сделают будут соответствовать современным стандартам, с высокими потолками и увеличенным остеклением ну и практически все будут с отличным видом на Бутовский лесопарк.
Ответить
Самый новый отзыв
СД
27 апреля
Оценка:
Рассматривали несколько планировок. решили, что нам важнее всего отдельная спальня ребенку. поэтому влезли в ипотечный кредит и купили квартиру подороже. у нас будут сразу включены натяжной потолок, ламинат, сантехника, ну и вся остальная отделка.
Ответить

Оставить отзыв

Добавьте отзыв, заполнив личные данные, или сначала войдите на сайт, тогда информация будет автоматически взята из личного профиля.
Оценка*