Рейтинг@Mail.ru
Переверните экран
Новостройки Квартиры Ипотека Новостройки Москвы Новостройки Подмосковья Новостройки Новой Москвы Готовые новостройки Новостройки на карте Акции от застройщиков Коммерческие помещения Продавцы и застройщики Панорамы новостроек Видеообзор новостроек Экспертиза новостроек Экология Москвы и Подмосковья Студии 1-комнатные 2-комнатные 3-комнатные Квартиры на карте Ипотечный калькулятор Семейная ипотека Военная ипотека Банки и программы Медиа Новости недвижимости Мнение эксперта Аналитика рынка Покупателю Экспертиза новостроек Эксперты и авторы О проекте Контакты Реклама на сайте Vk Youtube Telegram Дзен Машиноместа Апартаменты #траншевая ипотека #рассрочка IT-ипотека Квартиры со скидками до 35% Видео 360° новостроек Субсидированная застройщиком Rutube Поиск дома в Москве Программа реновации в Москве Новостройки премиум-класса Новостройки бизнес-класса Рассрочка Траншевая ипотека Дома и коттеджи Бизнес-центры Бизнес-центры в Москве Бизнес-центры рядом с метро Строящиеся бизнес-центры Бизнес-центры класса A Бизнес-центры класса B
Данная квартира является лидером продаж среди однокомнатных квартир в Премиум-квартале «Дом 56» по данным Росреестра
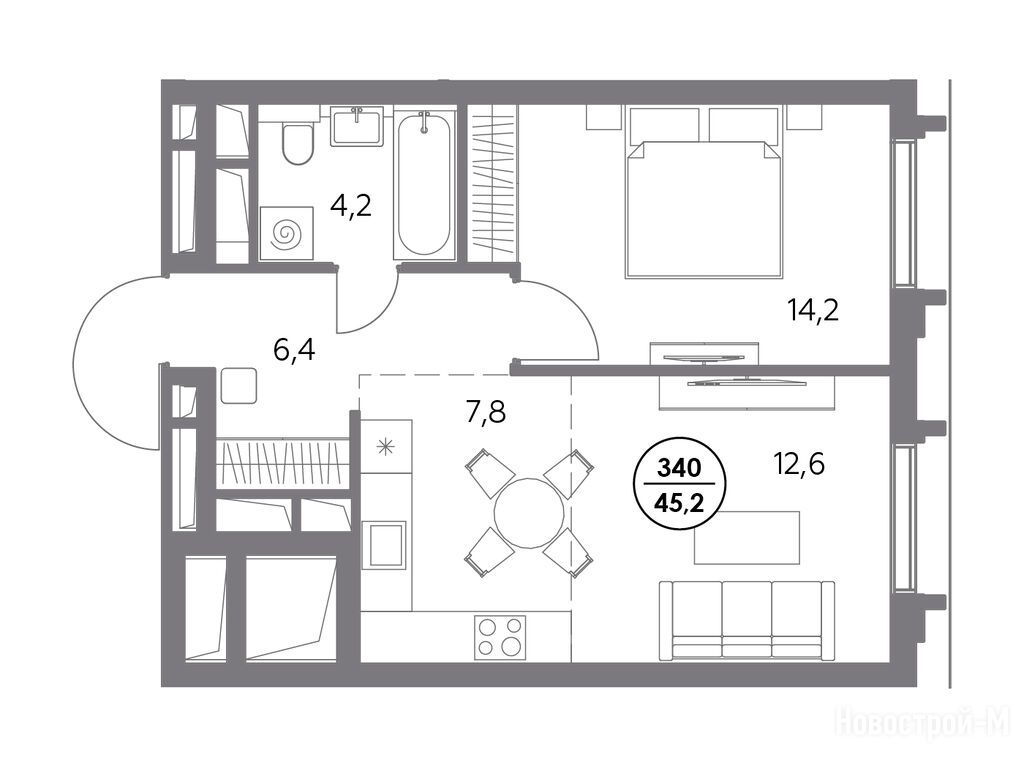
1-комн. квартира, 45.20 м2, 24 этаж
Срок сдачи 4 квартал 2026 года
31 373 600 
694 106 2
обновлено 5 февраля

Описание 1-комн. квартиры

Срок ГК
4 квартал 2026 года
Стадия строительства
отделка фасада и внутренние работы
Общая площадь
45.20 м2
Жилая площадь
26.80 м2
Площадь кухни
7.80 м2
Этаж
24 / 27
Отделка
нет
Тип санузла
совмещенный
Вид из окна
во двор
Грузовой лифт
есть

Расположение 1-комн. квартиры

Локация
Станция МЦД
Дом
2
Адрес
ул. Фридриха Энгельса, 56, корп. 2, секция 1

Способы покупки

Особенности

Продается однокомнатная квартира в новостройке Премиум-квартал «Дом 56» по адресу Москва, ЦАО, Басманный, ул. Фридриха Энгельса, 56, корп. 2. Общая площадь квартиры - 45.2 кв. м. Тип проекта, по которому построен дом — Монолитно-кирпичный, компания-застройщик — ГК «Галс-Девелопмент». Стоимость квартиры — 31 373 600 руб. Способы оплаты можно уточнить у продавца. Срок сдачи — 4 квартал 2026. Более подробная информация по телефону.
Инфоцентр новостроек
Инфоцентр новостроек
+7 (499) 705-91-41
Время работы 9:00 — 21:00

Похожие квартиры в Премиум-квартале «Дом 56»

21 этаж
из 27 4 квартал 2026
Москва, ЦАО
Бауманская
13 мин.
2
Корпус
нет
Отделка
3.25 м
Потолки
Премиум-квартал «Дом 56»
30 966 800
ВТБ, СберБанк
6.00%
Ставка
20.10%
Первый взнос
от 185 662 /мес.
Все варианты
23 этаж
из 27 4 квартал 2026
Москва, ЦАО
Бауманская
13 мин.
2
Корпус
нет
Отделка
3.25 м
Потолки
Премиум-квартал «Дом 56»
31 238 000
ВТБ, СберБанк
6.00%
Ставка
20.10%
Первый взнос
от 187 288 /мес.
Все варианты
26 этаж
из 27 4 квартал 2026
Москва, ЦАО
Бауманская
13 мин.
2
Корпус
нет
Отделка
3.25 м
Потолки
Премиум-квартал «Дом 56»
31 870 800
ВТБ, СберБанк
6.00%
Ставка
20.10%
Первый взнос
от 191 082 /мес.
Все варианты
Посмотреть все спецпредложения
студия 27,40 м2 21 805 600
Этаж 22/27
Москва, Премиум-квартал «Дом 56»
Бауманская
13 мин.
Строится
студия 29,40 м2 22 158 800
Этаж 23/27
Москва, Премиум-квартал «Дом 56»
Бауманская
13 мин.
Строится
Этаж 2/27
Москва, Премиум-квартал «Дом 56»
Бауманская
13 мин.
Строится
студия 29,60 м2 22 190 800
Этаж 21/27
Москва, Премиум-квартал «Дом 56»
Бауманская
13 мин.
Строится
Посмотреть 5 квартир в Премиум-квартале «Дом 56»
1-комн. квартира 44,60 м2 31 448 400
Этаж 24/27
Москва, Премиум-квартал «Дом 56»
Бауманская
13 мин.
Строится
1-комн. квартира 45,20 м2 30 966 800
Этаж 21/27
Москва, Премиум-квартал «Дом 56»
Бауманская
13 мин.
Строится
Этаж 26/27
Москва, Премиум-квартал «Дом 56»
Бауманская
13 мин.
Строится
1-комн. квартира 46,70 м2 31 619 200
Этаж 21/27
Москва, Премиум-квартал «Дом 56»
Бауманская
13 мин.
Строится
Посмотреть 22 квартиры в Премиум-квартале «Дом 56»
2-комн. квартира 62,70 м2 38 673 200
Этаж 2/23
Москва, Премиум-квартал «Дом 56»
Бауманская
13 мин.
Строится
2-комн. квартира 64,50 м2 42 813 500
Этаж 22/23
Москва, Премиум-квартал «Дом 56»
Бауманская
13 мин.
Строится
2-комн. квартира 66,60 м2 51 332 000
Этаж 7/20
Москва, Премиум-квартал «Дом 56»
Бауманская
13 мин.
Строится
2-комн. квартира 66,80 м2 50 818 000
Этаж 3/20
Москва, Премиум-квартал «Дом 56»
Бауманская
13 мин.
Строится
Посмотреть 15 квартир в Премиум-квартале «Дом 56»
Этаж 3/23
Москва, Премиум-квартал «Дом 56»
Бауманская
13 мин.
Строится
3-комн. квартира 105,20 м2 66 220 800
Этаж 2/23
Москва, Премиум-квартал «Дом 56»
Бауманская
13 мин.
Строится

Скидки и спецпредложения от застройщиков

Премиум-квартал «Дом 56» на карте

Выгодные предложения на новостройки

Отзывы о Премиум-квартале «Дом 56»

Самый полезный отзыв
П
19 сентября 2023
Оценка:
ууу! галсы всегда строят с основательным подходом. будем посмотреть, как говорится! долго думали - и и таки стартовали))
Ответить
Полезный отзыв?
Самый новый отзыв
П
03 января
Оценка:
Полный мэтч с этим застройщиком. Смотрели несколько новостроек в центре, но здесь понравилось больше всего соотношение цены и локации. Дом уже готов, не нужно ждать несколько лет. Для нас это был важный момент при покупке
Ответить
Полезный отзыв?
Добавьте отзыв, заполнив личные данные, или сначала войдите на сайт, тогда информация будет автоматически взята из личного профиля.
Оценка*