Рейтинг@Mail.ru
Переверните экран
Новостройки Квартиры Ипотека Новостройки Москвы Новостройки Подмосковья Новостройки Новой Москвы Готовые новостройки Новостройки на карте Акции от застройщиков Коммерческие помещения Продавцы и застройщики Панорамы новостроек Видеообзор новостроек Экспертиза новостроек Экология Москвы и Подмосковья Студии 1-комнатные 2-комнатные 3-комнатные Квартиры на карте Ипотечный калькулятор Семейная ипотека Военная ипотека Банки и программы Медиа Новости недвижимости Мнение эксперта Аналитика рынка Покупателю Экспертиза новостроек Эксперты и авторы О проекте Контакты Реклама на сайте Vk Youtube Telegram Дзен Машиноместа Апартаменты #траншевая ипотека #рассрочка IT-ипотека Квартиры со скидками до 35% Видео 360° новостроек Субсидированная застройщиком Rutube Поиск дома в Москве Программа реновации в Москве Новостройки премиум-класса Новостройки бизнес-класса Рассрочка Траншевая ипотека Дома и коттеджи Бизнес-центры Бизнес-центры в Москве Бизнес-центры рядом с метро Строящиеся бизнес-центры Бизнес-центры класса A Бизнес-центры класса B
Данная квартира является лидером продаж среди однокомнатных квартир в ЖК Foreville (Форевилль) по данным Росреестра
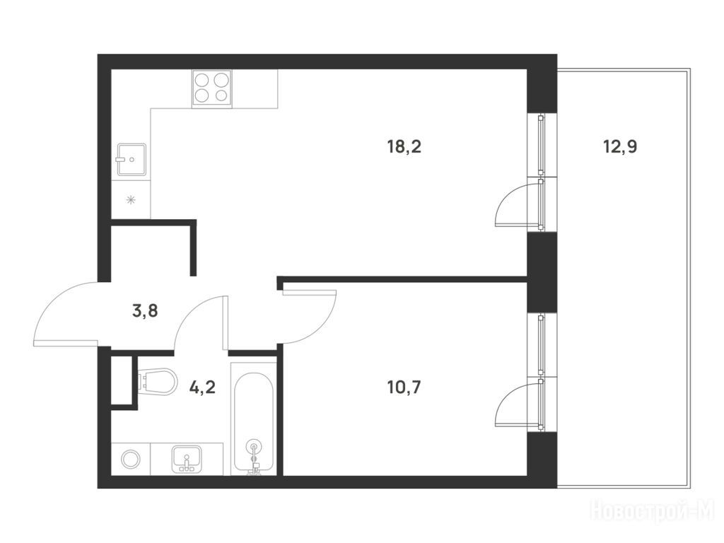
1-комн. квартира, 40.80 м2, 1 этаж
Срок сдачи 3 квартал 2026 года
15 393 391 
22 118 633
377 289 2
обновлено 5 февраля

Описание 1-комн. квартиры

Новостройка
Застройщик
3S Group (Не опубликовано)
Срок ГК
3 квартал 2026 года
Стадия строительства
отделка фасада
Общая площадь
40.80 м2
Жилая площадь
10.70 м2
Площадь кухни
18.20 м2
Этаж
1 / 17

Расположение 1-комн. квартиры

Локация
Метро
Станция МЦД
Дом
Essence
Адрес
ЖК Foreville (Форевилль), корп. Essence, секция 8

Способы покупки

Особенности

Продается однокомнатная квартира в новостройке ЖК Foreville (Форевилль) по адресу Москва, ТиНАО, Новомосковский АО, Сосенское С/П, Газопровод пос., ЖК Foreville (Форевилль), корп. Essence. Общая площадь квартиры - 40.8 кв. м. Тип проекта, по которому построен дом — Монолитно-кирпичный, компания-застройщик — 3S Group. Стоимость квартиры — 15 393 391 руб. Способы оплаты можно уточнить у продавца. Срок сдачи — 3 квартал 2026. Более подробная информация по телефону.
3S Group
3S Group
Сданных 1
|
Строящихся 2
Время работы 09:00 — 21:00
Выбирайте квартиру в ЖК Foreville (Форевилль) по ценам от застройщика
Посмотреть все спецпредложения
студия 24,30 м2 8 458 345
Этаж 14/17
НМ, ЖК Foreville (Форевилль)
Корниловская
10 мин.
Строится
1-комн. квартира 33,20 м2 17 128 280
Этаж 17/17
НМ, ЖК Foreville (Форевилль)
Корниловская
10 мин.
Строится
2-комн. квартира 64,30 м2 23 612 867
Этаж 15/17
НМ, ЖК Foreville (Форевилль)
Корниловская
10 мин.
Строится
3-комн. квартира 65,60 м2 17 657 840
Этаж 2/17
НМ, ЖК Foreville (Форевилль)
Корниловская
10 мин.
Строится
студия 20,60 м2 10 566 716
Этаж 14/17
НМ, ЖК Foreville (Форевилль)
Корниловская
10 мин.
Строится
студия 20,70 м2 11 697 909
Этаж 16/17
НМ, ЖК Foreville (Форевилль)
Корниловская
10 мин.
Строится
студия 20,90 м2 11 887 743
Этаж 16/17
НМ, ЖК Foreville (Форевилль)
Корниловская
10 мин.
Строится
студия 21,00 м2 9 764 264
Этаж 11/17
НМ, ЖК Foreville (Форевилль)
Корниловская
10 мин.
Строится
Посмотреть 112 квартир в ЖК Foreville (Форевилль)
Этаж 8/17
НМ, ЖК Foreville (Форевилль)
Корниловская
10 мин.
Строится
1-комн. квартира 32,70 м2 10 300 000
Этаж 4/17
НМ, ЖК Foreville (Форевилль)
Корниловская
10 мин.
Строится
1-комн. квартира 33,10 м2 14 347 120
Этаж 11/17
НМ, ЖК Foreville (Форевилль)
Корниловская
10 мин.
Строится
1-комн. квартира 33,20 м2 17 128 280
Этаж 17/17
НМ, ЖК Foreville (Форевилль)
Корниловская
10 мин.
Строится
Посмотреть 65 квартир в ЖК Foreville (Форевилль)
2-комн. квартира 49,50 м2 20 108 559
Этаж 14/17
НМ, ЖК Foreville (Форевилль)
Корниловская
10 мин.
Строится
2-комн. квартира 50,90 м2 20 665 400
Этаж 15/17
НМ, ЖК Foreville (Форевилль)
Корниловская
10 мин.
Строится
2-комн. квартира 51,40 м2 21 097 662
Этаж 13/17
НМ, ЖК Foreville (Форевилль)
Корниловская
10 мин.
Строится
2-комн. квартира 52,50 м2 17 768 389
Этаж 16/17
НМ, ЖК Foreville (Форевилль)
Корниловская
10 мин.
Строится
Посмотреть 53 квартиры в ЖК Foreville (Форевилль)
3-комн. квартира 65,60 м2 17 958 000
Этаж 12/17
НМ, ЖК Foreville (Форевилль)
Корниловская
10 мин.
Строится
3-комн. квартира 66,10 м2 25 040 557
Этаж 7/17
НМ, ЖК Foreville (Форевилль)
Корниловская
10 мин.
Строится
3-комн. квартира 67,20 м2 25 325 150
Этаж 15/17
НМ, ЖК Foreville (Форевилль)
Корниловская
10 мин.
Строится
3-комн. квартира 68,10 м2 29 962 545
Этаж 1/17
НМ, ЖК Foreville (Форевилль)
Корниловская
10 мин.
Строится
Посмотреть 33 квартиры в ЖК Foreville (Форевилль)

Скидки и спецпредложения от застройщиков

ЖК Foreville (Форевилль) на карте

Выгодные предложения на новостройки

Отзывы о ЖК Foreville (Форевилль)

Самый полезный отзыв
АБ
01 марта 2024
Оценка:
Мне уже почти 40, надо как-то определяться со своим жильем. Скопил денег и решил построиться в ЖК Foreville. Я один, так что однушку беру, мне места много не надо. Главное что паркинг есть и он подземный. Авто не будут мазолить глаза.
Ответить
Полезный отзыв?
Самый новый отзыв
ФА
11 января
Оценка:
Планировки
Способы покупки
Внешний вид фасада
Двор, окружение
Расположение
Транспортная доступность
Смотрел как более доступный вариант для жизни за пределами центра. Плюс - спокойнее, чем в плотных районах, и нет ощущения вечного городского давления. Минус - многое зависит от транспорта и личного графика, без машины будет непросто
Ответить
Полезный отзыв?
Добавьте отзыв, заполнив личные данные, или сначала войдите на сайт, тогда информация будет автоматически взята из личного профиля.
Оценка*