Рейтинг@Mail.ru
Переверните экран
Новостройки Квартиры Ипотека Новостройки Москвы Новостройки Подмосковья Новостройки Новой Москвы Готовые новостройки Новостройки на карте Акции от застройщиков Коммерческие помещения Продавцы и застройщики Панорамы новостроек Видеообзор новостроек Экспертиза новостроек Экология Москвы и Подмосковья Студии 1-комнатные 2-комнатные 3-комнатные Квартиры на карте Ипотечный калькулятор Семейная ипотека Военная ипотека Банки и программы Медиа Новости недвижимости Мнение эксперта Аналитика рынка Покупателю Экспертиза новостроек Эксперты и авторы О проекте Контакты Реклама на сайте Vk Youtube Telegram Дзен Машиноместа Апартаменты #траншевая ипотека #рассрочка IT-ипотека Квартиры со скидками до 40% Видео 360° новостроек Субсидированная застройщиком Rutube Поиск дома в Москве Программа реновации в Москве Новостройки премиум-класса Новостройки бизнес-класса Рассрочка Траншевая ипотека Дома и коттеджи Бизнес-центры Бизнес-центры в Москве Бизнес-центры рядом с метро Строящиеся бизнес-центры Бизнес-центры класса A Бизнес-центры класса B
5-комн. квартира, 227.60 м2, 15 этаж
Срок сдачи 1 квартал 2028 года
314 315 600 
1 381 000 2
обновлено 6 февраля

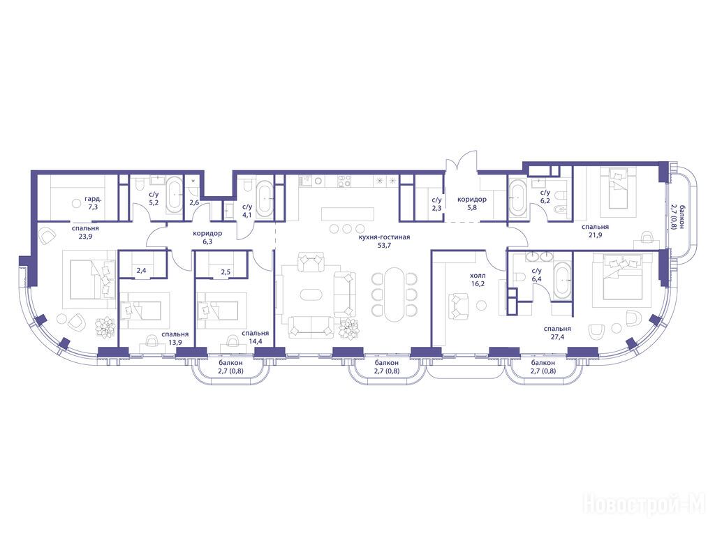
Описание 5-комн. квартиры

Новостройка
Застройщик
Срок ГК
1 квартал 2028 года
Стадия строительства
котлован/фундамент
Общая площадь
227.60 м2
Жилая площадь
101.50 м2
Площадь кухни
53.70 м2
Высота потолков
3.52
Этаж
15 / 19
Отделка
нет
Грузовой лифт
есть

Расположение 5-комн. квартиры

Локация
Ж/Д-станция
Дом
2
Адрес
ул. Большая Татарская, д. 35, секция 2

Способы покупки

Особенности

Продается многокомнатная квартира в новостройке ЖК «Татарская 35» по адресу Москва, ЦАО, Замоскворечье, ул. Большая Татарская, д. 35. Общая площадь квартиры - 227.6 кв. м. Тип проекта, по которому построен дом — Монолитно-кирпичный, компания-застройщик — Донстрой. Стоимость квартиры — 314 315 600 руб. Способы оплаты можно уточнить у продавца. Срок сдачи — 1 квартал 2028. Более подробная информация по телефону.
Инфоцентр новостроек
Инфоцентр новостроек
+7 (499) 705-91-41
Время работы 9:00 — 21:00
Посмотреть все спецпредложения
1-комн. квартира 48,30 м2 99 691 200
Этаж 11/23
Москва, ЖК «Татарская 35»
Новокузнецкая
10 мин.
Строится
Этаж 3/19
Москва, ЖК «Татарская 35»
Новокузнецкая
10 мин.
Строится
1-комн. квартира 53,90 м2 84 946 400
Этаж 8/19
Москва, ЖК «Татарская 35»
Новокузнецкая
10 мин.
Строится
1-комн. квартира 54,80 м2 86 419 600
Этаж 6/24
Москва, ЖК «Татарская 35»
Новокузнецкая
10 мин.
Строится
Посмотреть 9 квартир в ЖК «Татарская 35»
2-комн. квартира 71,30 м2 128 411 300
Этаж 15/24
Москва, ЖК «Татарская 35»
Новокузнецкая
10 мин.
Строится
2-комн. квартира 71,70 м2 145 694 400
Этаж 11/23
Москва, ЖК «Татарская 35»
Новокузнецкая
10 мин.
Строится
2-комн. квартира 72,10 м2 132 664 000
Этаж 16/24
Москва, ЖК «Татарская 35»
Новокузнецкая
10 мин.
Строится
2-комн. квартира 72,50 м2 143 115 000
Этаж 11/23
Москва, ЖК «Татарская 35»
Новокузнецкая
10 мин.
Строится
Посмотреть 64 квартиры в ЖК «Татарская 35»
3-комн. квартира 105,80 м2 149 072 200
Этаж 3/19
Москва, ЖК «Татарская 35»
Новокузнецкая
10 мин.
Строится
Этаж 9/19
Москва, ЖК «Татарская 35»
Новокузнецкая
10 мин.
Строится
3-комн. квартира 108,20 м2 154 942 400
Этаж 5/19
Москва, ЖК «Татарская 35»
Новокузнецкая
10 мин.
Строится
3-комн. квартира 110,30 м2 162 030 700
Этаж 3/19
Москва, ЖК «Татарская 35»
Новокузнецкая
10 мин.
Строится
Посмотреть 40 квартир в ЖК «Татарская 35»
4-комн. квартира 129,10 м2 206 172 700
Этаж 13/23
Москва, ЖК «Татарская 35»
Новокузнецкая
10 мин.
Строится
4-комн. квартира 131,00 м2 227 285 000
Этаж 14/23
Москва, ЖК «Татарская 35»
Новокузнецкая
10 мин.
Строится
4-комн. квартира 139,60 м2 333 644 000
Этаж 23/23
Москва, ЖК «Татарская 35»
Новокузнецкая
10 мин.
Строится
4-комн. квартира 147,90 м2 210 905 400
Этаж 3/20
Москва, ЖК «Татарская 35»
Новокузнецкая
10 мин.
Строится
Посмотреть 39 квартир в ЖК «Татарская 35»
5-комн. квартира 181,40 м2 353 185 800
Этаж 22/24
Москва, ЖК «Татарская 35»
Новокузнецкая
10 мин.
Строится
5-комн. квартира 182,10 м2 325 412 700
Этаж 17/24
Москва, ЖК «Татарская 35»
Новокузнецкая
10 мин.
Строится
5-комн. квартира 184,80 м2 341 510 400
Этаж 20/24
Москва, ЖК «Татарская 35»
Новокузнецкая
10 мин.
Строится
Этаж 16/20
Москва, ЖК «Татарская 35»
Новокузнецкая
10 мин.
Строится
Посмотреть 17 квартир в ЖК «Татарская 35»

Скидки и спецпредложения от застройщиков

ЖК «Татарская 35» на карте

Выгодные предложения на новостройки

Отзывы о ЖК «Татарская 35»

Самый полезный отзыв
Д
14 октября 2024
Оценка:
Транспортная доступность
Социальная инфраструктура
Планировки
Внешний вид фасада
Двор, окружение
Расположение
Наконец-то качественный проект именно там, где мне надо, ценник пока нормальный - надо брать. К финалу, судя по последним тенденциям, ценник будет минимум в 2,5 раза выше, а может и больше
Ответить
Полезный отзыв?
Самый новый отзыв
И
27 января
Оценка:
Выбрала Татарскую не только для комфортной жизни, но и для души) хоть и пафосно сказано, но тут потрясающе красивые места, старые улочки для неспешных прогулок, практически каждое здание с историей. Мне как искусствоведу по первому образованию, просто бальзам для души жить в таком месте. И если бы Татарская была пошлой грубой новостройкой, я бы на нее не посмотрела. А это будет красивый дом со своим изяществом, который отлично впишется в окружающее пространство
Ответить
Полезный отзыв?
Добавьте отзыв, заполнив личные данные, или сначала войдите на сайт, тогда информация будет автоматически взята из личного профиля.
Оценка*