Рейтинг@Mail.ru
Переверните экран
Новостройки Квартиры Ипотека Новостройки Москвы Новостройки Подмосковья Новостройки Новой Москвы Готовые новостройки Новостройки на карте Акции от застройщиков Коммерческие помещения Продавцы и застройщики Панорамы новостроек Видеообзор новостроек Экспертиза новостроек Экология Москвы и Подмосковья Студии 1-комнатные 2-комнатные 3-комнатные Квартиры на карте Ипотечный калькулятор Семейная ипотека Военная ипотека Банки и программы Медиа Новости недвижимости Мнение эксперта Аналитика рынка Покупателю Экспертиза новостроек Эксперты и авторы О проекте Контакты Реклама на сайте Vk Youtube Telegram Дзен Машиноместа Апартаменты #траншевая ипотека #рассрочка IT-ипотека Квартиры со скидками до 35% Видео 360° новостроек Субсидированная застройщиком Rutube Поиск дома в Москве Программа реновации в Москве Новостройки премиум-класса Новостройки бизнес-класса Рассрочка Траншевая ипотека Дома и коттеджи Бизнес-центры Бизнес-центры в Москве Бизнес-центры рядом с метро Строящиеся бизнес-центры Бизнес-центры класса A Бизнес-центры класса B
Данная квартира является лидером продаж среди двухкомнатных квартир в ЖК JOIS (Джойс) по данным Росреестра
2-комн. квартира, 89.45 м2, 12 этаж
Срок сдачи 4 квартал 2027 года
52 140 405 
582 900 2
обновлено 5 февраля

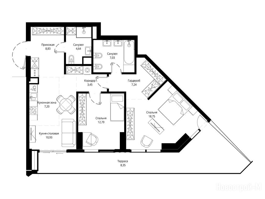
Описание 2-комн. квартиры

Новостройка
Застройщик
Срок ГК
4 квартал 2027 года
Стадия строительства
отделка фасада
Общая площадь
89.45 м2
Жилая площадь
31.69 м2
Площадь кухни
18.13 м2
Высота потолков
3.15
Этаж
12 / 55
Отделка
нет

Расположение 2-комн. квартиры

Локация
Станция МЦД
Беговая
11 мин.
Станция МЦК
Дом
Anna
Адрес
3-й Силикатный пр-д, д. 10, корп. 1, секция 1

Способы покупки

Особенности

Продается двухкомнатная квартира в новостройке ЖК JOIS (Джойс) по адресу Москва, СЗАО, Хорошево-Мневники, 3-й Силикатный пр-д, д. 10, корп. 1. Общая площадь квартиры - 89.45 кв. м. Тип проекта, по которому построен дом — Монолитно-каркасный, компания-застройщик — MR Group (МР Групп). Стоимость квартиры — 52 140 405 руб. Способы оплаты можно уточнить у продавца. Срок сдачи — 4 квартал 2027. Более подробная информация по телефону.
MR Group (МР Групп)
MR Group (МР Групп)
Сданных 29
|
Строящихся 25
Время работы 09:00 — 21:00
Официальный сайт архитектурного проекта JOIS от MR Group
Посмотреть все спецпредложения
студия 22,67 м2 17 276 807
Этаж 14/55
Москва, ЖК JOIS (Джойс)
Хорошево
7 мин.
Строится
студия 22,77 м2 20 395 089
Этаж 19/55
Москва, ЖК JOIS (Джойс)
Хорошево
7 мин.
Строится
студия 22,96 м2 21 508 928
Этаж 39/55
Москва, ЖК JOIS (Джойс)
Хорошево
7 мин.
Строится
студия 22,98 м2 21 592 008
Этаж 44/55
Москва, ЖК JOIS (Джойс)
Хорошево
7 мин.
Строится
Посмотреть 18 квартир в ЖК JOIS (Джойс)
1-комн. квартира 34,76 м2 27 519 492
Этаж 5/46
Москва, ЖК JOIS (Джойс)
Хорошево
7 мин.
Строится
1-комн. квартира 35,26 м2 29 858 168
Этаж 33/46
Москва, ЖК JOIS (Джойс)
Хорошево
7 мин.
Строится
1-комн. квартира 35,31 м2 29 600 373
Этаж 27/46
Москва, ЖК JOIS (Джойс)
Хорошево
7 мин.
Строится
1-комн. квартира 35,45 м2 29 894 985
Этаж 39/46
Москва, ЖК JOIS (Джойс)
Хорошево
7 мин.
Строится
Посмотреть 62 квартиры в ЖК JOIS (Джойс)
2-комн. квартира 58,09 м2 38 345 209
Этаж 31/46
Москва, ЖК JOIS (Джойс)
Хорошево
7 мин.
Строится
2-комн. квартира 58,28 м2 39 094 224
Этаж 36/46
Москва, ЖК JOIS (Джойс)
Хорошево
7 мин.
Строится
2-комн. квартира 59,66 м2 42 656 900
Этаж 15/46
Москва, ЖК JOIS (Джойс)
Хорошево
7 мин.
Строится
2-комн. квартира 59,95 м2 37 043 105
Этаж 4/46
Москва, ЖК JOIS (Джойс)
Хорошево
7 мин.
Строится
Посмотреть 86 квартир в ЖК JOIS (Джойс)
3-комн. квартира 82,06 м2 60 617 722
Этаж 33/46
Москва, ЖК JOIS (Джойс)
Хорошево
7 мин.
Строится
3-комн. квартира 84,07 м2 59 925 096
Этаж 5/46
Москва, ЖК JOIS (Джойс)
Хорошево
7 мин.
Строится
3-комн. квартира 84,09 м2 59 737 536
Этаж 3/46
Москва, ЖК JOIS (Джойс)
Хорошево
7 мин.
Строится
3-комн. квартира 84,73 м2 60 802 248
Этаж 10/46
Москва, ЖК JOIS (Джойс)
Хорошево
7 мин.
Строится
Посмотреть 23 квартиры в ЖК JOIS (Джойс)

Скидки и спецпредложения от застройщиков

ЖК JOIS (Джойс) на карте

Выгодные предложения на новостройки

Отзывы о ЖК JOIS (Джойс)

Самый полезный отзыв
П
20 сентября 2023
Оценка:
Планировки
У друзей в новой квартире потолки под 5 метров где-то. Это вообще другое восприятие пространства!!! и друг не планирует антресоли делать, второй свет и прочее всякое. Если здесь реально до 6 метров потолки будут, я реально в ипотеку залезу ради такой квартиры)))
Ответить
Полезный отзыв?
Самый новый отзыв
Б
28 ноября 2025
Оценка:
Расположение
До транспорта близко, к Москва-Сити, шаговая доступность до нескольких метро - по времени выходит рационально и более чем доступно.
Ответить
Полезный отзыв?
Добавьте отзыв, заполнив личные данные, или сначала войдите на сайт, тогда информация будет автоматически взята из личного профиля.
Оценка*