Рейтинг@Mail.ru
Переверните экран
Новостройки Квартиры Ипотека Новостройки Москвы Новостройки Подмосковья Новостройки Новой Москвы Готовые новостройки Новостройки на карте Акции от застройщиков Коммерческие помещения Продавцы и застройщики Панорамы новостроек Видеообзор новостроек Экспертиза новостроек Экология Москвы и Подмосковья Студии 1-комнатные 2-комнатные 3-комнатные Квартиры на карте Ипотечный калькулятор Семейная ипотека Военная ипотека Банки и программы Медиа Новости недвижимости Мнение эксперта Аналитика рынка Покупателю Экспертиза новостроек Эксперты и авторы О проекте Контакты Реклама на сайте Vk Youtube Telegram Дзен Машиноместа Апартаменты #траншевая ипотека #рассрочка ИТ-ипотека Квартиры со скидками до 40% Видео 360° новостроек Субсидированная застройщиком Rutube Поиск дома в Москве Программа реновации в Москве Новостройки премиум-класса Новостройки бизнес-класса Рассрочка Траншевая ипотека Дома и коттеджи Коттеджные поселки в Новой Москве Готовые коттеджные поселки Строящиеся коттеджные поселки Коттеджные поселки в лесу Коттеджные поселки у водоема Коттеджные поселки в ипотеку Бизнес-центры Коттеджи Ипотека со ставкой 0,1%
Данная квартира является лидером продаж среди двухкомнатных квартир в ЖК «Ильинойс» по данным Росреестра
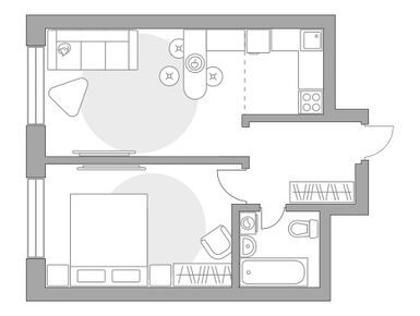
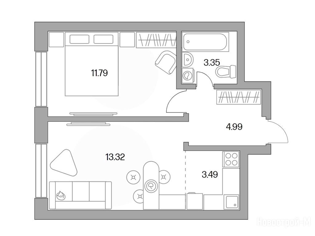
2-комн. квартира, 36.94 м2, 20 этаж
Срок сдачи 3 квартал 2028 года
9 843 552 
11 349 036
266 474 2
обновлено 3 мая

Описание 2-комн. квартиры

Новостройка
Срок ГК
3 квартал 2028 года
Стадия строительства
котлован/фундамент
Общая площадь
36.94 м2
Этаж
20 / 22
Отделка
нет
Грузовой лифт
есть

Расположение 2-комн. квартиры

Станция МЦД
Дом
3
Адрес
ЖК «Ильинойс», корп. 3, секция 7

Способы покупки

Особенности

Продается двухкомнатная квартира в новостройке ЖК «Ильинойс» по адресу Московская область, Красногорск городской округ, Красногорск, ЖК «Ильинойс», корп. 3. Общая площадь квартиры - 36.94 кв. м. Тип проекта, по которому построен дом — Монолитно-кирпичный, компания-застройщик — ГК «Гранель», ООО СЗ ОФЕРТА. Стоимость квартиры — 9 843 552 руб. Способы оплаты можно уточнить у продавца. Срок сдачи — 3 квартал 2028. Более подробная информация по телефону.
ГК «Гранель»
ГК «Гранель»
Сданных 16
|
Строящихся 17
Время работы 09:00 — 21:00
Заказать обратный звонок
Онлайн-сделка
Выбирайте квартиру в ЖК «Ильинойс» по ценам от застройщика

Похожие квартиры в ЖК «Ильинойс»

2 этаж
из 23 3 квартал 2028
Московская область, Красногорск городской округ
Красногорская
15 мин.
3
Корпус
нет
Отделка
2.80 м
Потолки
ЖК «Ильинойс»
8 525 174 10 992 988
Альфа-Банк, СберБанк, Азиатско-Тихоокеанский Банк, Всероссийский банк развития регионов, Совкомбанк, Абсолют Банк, Металлинвестбанк, ДОМ.РФ, Севергазбанк, Сургутнефтегазбанк, Уралсиб, ВТБ, Банк Санкт-Петербург, Россельхозбанк, МТС Банк
6.00%
Ставка
30.10%
Первый взнос
от 51 113 /мес.
Все варианты
13 этаж
из 22 3 квартал 2028
Московская область, Красногорск городской округ
Красногорская
15 мин.
3
Корпус
нет
Отделка
2.80 м
Потолки
ЖК «Ильинойс»
8 697 749 11 215 518
Альфа-Банк, СберБанк, Азиатско-Тихоокеанский Банк, Всероссийский банк развития регионов, Совкомбанк, Абсолют Банк, Металлинвестбанк, ДОМ.РФ, Севергазбанк, Сургутнефтегазбанк, Уралсиб, ВТБ, Банк Санкт-Петербург, Россельхозбанк, МТС Банк
6.00%
Ставка
30.10%
Первый взнос
от 52 147 /мес.
Все варианты
6 этаж
из 23 3 квартал 2028
Московская область, Красногорск городской округ
Красногорская
15 мин.
3
Корпус
нет
Отделка
2.80 м
Потолки
ЖК «Ильинойс»
8 766 779 11 304 530
Альфа-Банк, СберБанк, Азиатско-Тихоокеанский Банк, Всероссийский банк развития регионов, Совкомбанк, Абсолют Банк, Металлинвестбанк, ДОМ.РФ, Севергазбанк, Сургутнефтегазбанк, Уралсиб, ВТБ, Банк Санкт-Петербург, Россельхозбанк, МТС Банк
6.00%
Ставка
30.10%
Первый взнос
от 52 561 /мес.
Все варианты
3 этаж
из 23 3 квартал 2028
Московская область, Красногорск городской округ
Красногорская
15 мин.
3
Корпус
нет
Отделка
2.80 м
Потолки
ЖК «Ильинойс»
9 804 950 11 304 530
Альфа-Банк, СберБанк, Азиатско-Тихоокеанский Банк, Всероссийский банк развития регионов, Совкомбанк, Абсолют Банк, Металлинвестбанк, ДОМ.РФ, Севергазбанк, Сургутнефтегазбанк, Уралсиб, ВТБ, Банк Санкт-Петербург, Россельхозбанк, МТС Банк
6.00%
Ставка
30.10%
Первый взнос
от 58 786 /мес.
Все варианты
6 этаж
из 23 3 квартал 2028
Московская область, Красногорск городской округ
Красногорская
15 мин.
3
Корпус
нет
Отделка
2.80 м
Потолки
ЖК «Ильинойс»
9 804 950 11 304 530
Альфа-Банк, СберБанк, Азиатско-Тихоокеанский Банк, Всероссийский банк развития регионов, Совкомбанк, Абсолют Банк, Металлинвестбанк, ДОМ.РФ, Севергазбанк, Сургутнефтегазбанк, Уралсиб, ВТБ, Банк Санкт-Петербург, Россельхозбанк, МТС Банк
6.00%
Ставка
30.10%
Первый взнос
от 58 786 /мес.
Все варианты
5 этаж
из 23 3 квартал 2028
Московская область, Красногорск городской округ
Красногорская
15 мин.
3
Корпус
нет
Отделка
2.80 м
Потолки
ЖК «Ильинойс»
9 804 950 11 304 530
Альфа-Банк, СберБанк, Азиатско-Тихоокеанский Банк, Всероссийский банк развития регионов, Совкомбанк, Абсолют Банк, Металлинвестбанк, ДОМ.РФ, Севергазбанк, Сургутнефтегазбанк, Уралсиб, ВТБ, Банк Санкт-Петербург, Россельхозбанк, МТС Банк
6.00%
Ставка
30.10%
Первый взнос
от 58 786 /мес.
Все варианты
22 этаж
из 22 3 квартал 2028
Московская область, Красногорск городской округ
Красногорская
15 мин.
3
Корпус
нет
Отделка
2.80 м
Потолки
ЖК «Ильинойс»
9 843 552 11 349 036
Альфа-Банк, СберБанк, Азиатско-Тихоокеанский Банк, Всероссийский банк развития регионов, Совкомбанк, Абсолют Банк, Металлинвестбанк, ДОМ.РФ, Севергазбанк, Сургутнефтегазбанк, Уралсиб, ВТБ, Банк Санкт-Петербург, Россельхозбанк, МТС Банк
6.00%
Ставка
30.10%
Первый взнос
от 59 017 /мес.
Все варианты
22 этаж
из 22 3 квартал 2028
Московская область, Красногорск городской округ
Красногорская
15 мин.
3
Корпус
нет
Отделка
2.80 м
Потолки
ЖК «Ильинойс»
9 843 552 11 349 036
Альфа-Банк, СберБанк, Азиатско-Тихоокеанский Банк, Всероссийский банк развития регионов, Совкомбанк, Абсолют Банк, Металлинвестбанк, ДОМ.РФ, Севергазбанк, Сургутнефтегазбанк, Уралсиб, ВТБ, Банк Санкт-Петербург, Россельхозбанк, МТС Банк
6.00%
Ставка
30.10%
Первый взнос
от 59 017 /мес.
Все варианты
17 этаж
из 22 3 квартал 2028
Московская область, Красногорск городской округ
Красногорская
15 мин.
3
Корпус
нет
Отделка
2.80 м
Потолки
ЖК «Ильинойс»
9 843 552 11 349 036
Альфа-Банк, СберБанк, Азиатско-Тихоокеанский Банк, Всероссийский банк развития регионов, Совкомбанк, Абсолют Банк, Металлинвестбанк, ДОМ.РФ, Севергазбанк, Сургутнефтегазбанк, Уралсиб, ВТБ, Банк Санкт-Петербург, Россельхозбанк, МТС Банк
6.00%
Ставка
30.10%
Первый взнос
от 59 017 /мес.
Все варианты
18 этаж
из 22 3 квартал 2028
Московская область, Красногорск городской округ
Красногорская
15 мин.
3
Корпус
нет
Отделка
2.80 м
Потолки
ЖК «Ильинойс»
9 843 552 11 349 036
Альфа-Банк, СберБанк, Азиатско-Тихоокеанский Банк, Всероссийский банк развития регионов, Совкомбанк, Абсолют Банк, Металлинвестбанк, ДОМ.РФ, Севергазбанк, Сургутнефтегазбанк, Уралсиб, ВТБ, Банк Санкт-Петербург, Россельхозбанк, МТС Банк
6.00%
Ставка
30.10%
Первый взнос
от 59 017 /мес.
Все варианты
20 этаж
из 22 3 квартал 2028
Московская область, Красногорск городской округ
Красногорская
15 мин.
3
Корпус
нет
Отделка
2.80 м
Потолки
ЖК «Ильинойс»
9 843 552 11 349 036
Альфа-Банк, СберБанк, Азиатско-Тихоокеанский Банк, Всероссийский банк развития регионов, Совкомбанк, Абсолют Банк, Металлинвестбанк, ДОМ.РФ, Севергазбанк, Сургутнефтегазбанк, Уралсиб, ВТБ, Банк Санкт-Петербург, Россельхозбанк, МТС Банк
6.00%
Ставка
30.10%
Первый взнос
от 59 017 /мес.
Все варианты
13 этаж
из 23 3 квартал 2028
Московская область, Красногорск городской округ
Красногорская
15 мин.
3
Корпус
нет
Отделка
2.80 м
Потолки
ЖК «Ильинойс»
9 920 756 11 438 048
Альфа-Банк, СберБанк, Азиатско-Тихоокеанский Банк, Всероссийский банк развития регионов, Совкомбанк, Абсолют Банк, Металлинвестбанк, ДОМ.РФ, Севергазбанк, Сургутнефтегазбанк, Уралсиб, ВТБ, Банк Санкт-Петербург, Россельхозбанк, МТС Банк
6.00%
Ставка
30.10%
Первый взнос
от 59 480 /мес.
Все варианты
13 этаж
из 23 3 квартал 2028
Московская область, Красногорск городской округ
Красногорская
15 мин.
3
Корпус
нет
Отделка
2.80 м
Потолки
ЖК «Ильинойс»
9 920 756 11 438 048
Альфа-Банк, СберБанк, Азиатско-Тихоокеанский Банк, Всероссийский банк развития регионов, Совкомбанк, Абсолют Банк, Металлинвестбанк, ДОМ.РФ, Севергазбанк, Сургутнефтегазбанк, Уралсиб, ВТБ, Банк Санкт-Петербург, Россельхозбанк, МТС Банк
6.00%
Ставка
30.10%
Первый взнос
от 59 480 /мес.
Все варианты
9 этаж
из 23 3 квартал 2028
Московская область, Красногорск городской округ
Красногорская
15 мин.
3
Корпус
нет
Отделка
2.80 м
Потолки
ЖК «Ильинойс»
9 920 756 11 438 048
Альфа-Банк, СберБанк, Азиатско-Тихоокеанский Банк, Всероссийский банк развития регионов, Совкомбанк, Абсолют Банк, Металлинвестбанк, ДОМ.РФ, Севергазбанк, Сургутнефтегазбанк, Уралсиб, ВТБ, Банк Санкт-Петербург, Россельхозбанк, МТС Банк
6.00%
Ставка
30.10%
Первый взнос
от 59 480 /мес.
Все варианты
16 этаж
из 23 3 квартал 2028
Московская область, Красногорск городской округ
Красногорская
15 мин.
3
Корпус
нет
Отделка
2.80 м
Потолки
ЖК «Ильинойс»
10 036 563 11 571 566
Альфа-Банк, СберБанк, Азиатско-Тихоокеанский Банк, Всероссийский банк развития регионов, Совкомбанк, Абсолют Банк, Металлинвестбанк, ДОМ.РФ, Севергазбанк, Сургутнефтегазбанк, Уралсиб, ВТБ, Банк Санкт-Петербург, Россельхозбанк, МТС Банк
6.00%
Ставка
30.10%
Первый взнос
от 60 174 /мес.
Все варианты
19 этаж
из 23 3 квартал 2028
Московская область, Красногорск городской округ
Красногорская
15 мин.
3
Корпус
нет
Отделка
2.80 м
Потолки
ЖК «Ильинойс»
10 036 563 11 571 566
Альфа-Банк, СберБанк, Азиатско-Тихоокеанский Банк, Всероссийский банк развития регионов, Совкомбанк, Абсолют Банк, Металлинвестбанк, ДОМ.РФ, Севергазбанк, Сургутнефтегазбанк, Уралсиб, ВТБ, Банк Санкт-Петербург, Россельхозбанк, МТС Банк
6.00%
Ставка
30.10%
Первый взнос
от 60 174 /мес.
Все варианты
23 этаж
из 23 3 квартал 2028
Московская область, Красногорск городской округ
Красногорская
15 мин.
3
Корпус
нет
Отделка
2.80 м
Потолки
ЖК «Ильинойс»
10 036 563 11 571 566
Альфа-Банк, СберБанк, Азиатско-Тихоокеанский Банк, Всероссийский банк развития регионов, Совкомбанк, Абсолют Банк, Металлинвестбанк, ДОМ.РФ, Севергазбанк, Сургутнефтегазбанк, Уралсиб, ВТБ, Банк Санкт-Петербург, Россельхозбанк, МТС Банк
6.00%
Ставка
30.10%
Первый взнос
от 60 174 /мес.
Все варианты
21 этаж
из 23 3 квартал 2028
Московская область, Красногорск городской округ
Красногорская
15 мин.
3
Корпус
нет
Отделка
2.80 м
Потолки
ЖК «Ильинойс»
10 036 563 11 571 566
Альфа-Банк, СберБанк, Азиатско-Тихоокеанский Банк, Всероссийский банк развития регионов, Совкомбанк, Абсолют Банк, Металлинвестбанк, ДОМ.РФ, Севергазбанк, Сургутнефтегазбанк, Уралсиб, ВТБ, Банк Санкт-Петербург, Россельхозбанк, МТС Банк
6.00%
Ставка
30.10%
Первый взнос
от 60 174 /мес.
Все варианты
23 этаж
из 23 3 квартал 2028
Московская область, Красногорск городской округ
Красногорская
15 мин.
3
Корпус
нет
Отделка
2.80 м
Потолки
ЖК «Ильинойс»
10 036 563 11 571 566
Альфа-Банк, СберБанк, Азиатско-Тихоокеанский Банк, Всероссийский банк развития регионов, Совкомбанк, Абсолют Банк, Металлинвестбанк, ДОМ.РФ, Севергазбанк, Сургутнефтегазбанк, Уралсиб, ВТБ, Банк Санкт-Петербург, Россельхозбанк, МТС Банк
6.00%
Ставка
30.10%
Первый взнос
от 60 174 /мес.
Все варианты
16 этаж
из 23 3 квартал 2028
Московская область, Красногорск городской округ
Красногорская
15 мин.
3
Корпус
нет
Отделка
2.80 м
Потолки
ЖК «Ильинойс»
10 036 563 11 571 566
Альфа-Банк, СберБанк, Азиатско-Тихоокеанский Банк, Всероссийский банк развития регионов, Совкомбанк, Абсолют Банк, Металлинвестбанк, ДОМ.РФ, Севергазбанк, Сургутнефтегазбанк, Уралсиб, ВТБ, Банк Санкт-Петербург, Россельхозбанк, МТС Банк
6.00%
Ставка
30.10%
Первый взнос
от 60 174 /мес.
Все варианты
студия 25,98 м2 8 321 170
Этаж 22/24
МО, ЖК «Ильинойс»
Красногорская
15 мин.
Сдан
1-комн. квартира 32,50 м2 10 647 206
Этаж 22/22
МО, ЖК «Ильинойс»
Красногорская
15 мин.
Строится
2-комн. квартира 36,94 м2 9 843 552
Этаж 20/22
МО, ЖК «Ильинойс»
Красногорская
15 мин.
Строится
3-комн. квартира 56,45 м2 14 835 996
Этаж 22/22 лоджия
МО, ЖК «Ильинойс»
Красногорская
15 мин.
Строится
студия 24,33 м2 6 353 797
Этаж 18/23
МО, ЖК «Ильинойс»
Красногорская
15 мин.
Строится
студия 24,35 м2 6 359 020
Этаж 20/23
МО, ЖК «Ильинойс»
Красногорская
15 мин.
Строится
студия 24,40 м2 7 050 172
Этаж 15/22
МО, ЖК «Ильинойс»
Красногорская
15 мин.
Строится
Этаж 4/23
МО, ЖК «Ильинойс»
Красногорская
15 мин.
Строится
Посмотреть 72 квартиры в ЖК «Ильинойс»
1-комн. квартира 32,50 м2 10 647 206
Этаж 22/22
МО, ЖК «Ильинойс»
Красногорская
15 мин.
Строится
1-комн. квартира 32,80 м2 10 745 488
Этаж 20/22
МО, ЖК «Ильинойс»
Красногорская
15 мин.
Строится
Посмотреть 22 квартиры в ЖК «Ильинойс»
Этаж 21/23
МО, ЖК «Ильинойс»
Красногорская
15 мин.
Строится
Этаж 3/23
МО, ЖК «Ильинойс»
Красногорская
15 мин.
Строится
2-комн. квартира 36,94 м2 9 843 552
Этаж 22/22
МО, ЖК «Ильинойс»
Красногорская
15 мин.
Строится
2-комн. квартира 39,34 м2 9 079 057
Этаж 2/23 лоджия
МО, ЖК «Ильинойс»
Красногорская
15 мин.
Строится
Посмотреть 200 квартир в ЖК «Ильинойс»
3-комн. квартира 52,79 м2 16 770 268
Этаж 22/22 лоджия
МО, ЖК «Ильинойс»
Красногорская
15 мин.
Строится
3-комн. квартира 54,06 м2 12 779 268
Этаж 3/23 лоджия
МО, ЖК «Ильинойс»
Красногорская
15 мин.
Строится
3-комн. квартира 54,89 м2 14 110 523
Этаж 2/22 лоджия
МО, ЖК «Ильинойс»
Красногорская
15 мин.
Строится
3-комн. квартира 55,01 м2 14 601 253
Этаж 21/22 лоджия
МО, ЖК «Ильинойс»
Красногорская
15 мин.
Строится
Посмотреть 147 квартир в ЖК «Ильинойс»

Скидки и спецпредложения от застройщиков

ЖК «Ильинойс» на карте

Выгодные предложения на новостройки

Отзывы о ЖК «Ильинойс»

Самый полезный отзыв
О
29 сентября 2022
Оценка:
Достоинства
Способы покупки
Я на протяжении года живу в Красногорске, и влюбилась в этот город. Недавно увидела рекламу нового жилого комплекса Ильинойс, а так как мне бы хотелось приобрести квартиру на этапе застройки, это был отличный вариант для покупки. Оформила все быстро, в офисе продаж мне все объяснили и рассказали, жду срок сдачи))
Ответить
Самый новый отзыв
О
17 ноября 2025
Оценка:
Достоинства
Транспортная доступность
Расположение
От ЖК «Ильинойс» до транспорта близко - по времени выходит рационально, всего 15 мин до мцд.
Ответить

Оставить отзыв

Добавьте отзыв, заполнив личные данные, или сначала войдите на сайт, тогда информация будет автоматически взята из личного профиля.
Оценка*