Рейтинг@Mail.ru
Переверните экран
Новостройки Квартиры Ипотека Новостройки Москвы Новостройки Подмосковья Новостройки Новой Москвы Готовые новостройки Новостройки на карте Акции от застройщиков Коммерческие помещения Продавцы и застройщики Панорамы новостроек Видеообзор новостроек Экспертиза новостроек Экология Москвы и Подмосковья Студии 1-комнатные 2-комнатные 3-комнатные Квартиры на карте Ипотечный калькулятор Семейная ипотека Военная ипотека Банки и программы Медиа Новости недвижимости Мнение эксперта Аналитика рынка Покупателю Экспертиза новостроек Эксперты и авторы О проекте Контакты Реклама на сайте Vk Youtube Telegram Дзен Машиноместа Апартаменты #траншевая ипотека #рассрочка ИТ-ипотека Квартиры со скидками до 40% Видео 360° новостроек Субсидированная застройщиком Rutube Поиск дома в Москве Программа реновации в Москве Новостройки премиум-класса Новостройки бизнес-класса Рассрочка Траншевая ипотека Дома и коттеджи Коттеджные поселки в Новой Москве Готовые коттеджные поселки Строящиеся коттеджные поселки Коттеджные поселки в лесу Коттеджные поселки у водоема Коттеджные поселки в ипотеку Бизнес-центры Коттеджи Ипотека со ставкой 0,1%
Данная квартира является лидером продаж среди двухкомнатных квартир в ЖК «Сити Бэй» по данным Росреестра
2-комн. квартира, 52.70 м2, 31 этаж
Сдан
24 908 639 
26 219 620
472 650 2
обновлено 13 мая

Описание 2-комн. квартиры

Новостройка
Срок ГК
Дом сдан
Стадия строительства
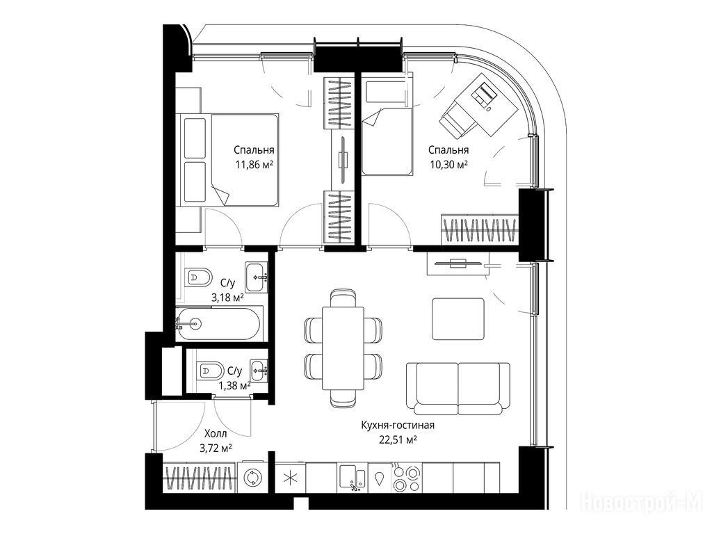
Общая площадь
52.70 м2
Жилая площадь
22.16 м2
Площадь кухни
22.51 м2
Этаж
31 / 53
Отделка
предчистовая
Грузовой лифт
есть

Расположение 2-комн. квартиры

Локация
Станция МЦД
Станция МЦК
Дом
Atlantic Ocean 1 (2 очередь)
Адрес
жилой комплекс Сити Бэй, квартал Атлантик, секция 1

Особенности

Продается двухкомнатная квартира в новостройке ЖК «Сити Бэй» по адресу Москва, СЗАО, Покровское-Стрешнево, жилой комплекс Сити Бэй, квартал Атлантик. Общая площадь квартиры - 52.7 кв. м. Тип проекта, по которому построен дом — Монолитно-кирпичный, компания-застройщик — MR Group (МР Групп), СЗ «Транспортно-пересадочный узел Лесопарковая». Стоимость квартиры — 24 908 639 руб. Способы оплаты можно уточнить у продавца. Более подробная информация по телефону.

Правовые документы

Инфоцентр новостроек
Инфоцентр новостроек
+7 (499) 705-91-41
Время работы 9:00 — 21:00
студия 25,90 м2 16 566 860
Этаж 31/59
Москва, ЖК «Сити Бэй»
Трикотажная
5 мин.
Строится
студия 26,00 м2 16 887 616
Этаж 26/59
Москва, ЖК «Сити Бэй»
Трикотажная
5 мин.
Строится
студия 27,10 м2 17 409 533
Этаж 37/59
Москва, ЖК «Сити Бэй»
Трикотажная
5 мин.
Строится
студия 28,90 м2 17 203 248
Этаж 15/59
Москва, ЖК «Сити Бэй»
Трикотажная
5 мин.
Строится
Посмотреть 8 квартир в ЖК «Сити Бэй»
1-комн. квартира 32,90 м2 18 023 489
Этаж 12/59
Москва, ЖК «Сити Бэй»
Трикотажная
5 мин.
Строится
1-комн. квартира 33,10 м2 18 621 848
Этаж 28/59
Москва, ЖК «Сити Бэй»
Трикотажная
5 мин.
Строится
1-комн. квартира 34,00 м2 19 508 571
Этаж 20/59
Москва, ЖК «Сити Бэй»
Трикотажная
5 мин.
Строится
1-комн. квартира 35,30 м2 19 313 301
Этаж 50/59
Москва, ЖК «Сити Бэй»
Трикотажная
5 мин.
Строится
Посмотреть 374 квартиры в ЖК «Сити Бэй»
2-комн. квартира 50,30 м2 22 095 065
Этаж 17/59
Москва, ЖК «Сити Бэй»
Трикотажная
5 мин.
Строится
2-комн. квартира 52,10 м2 23 926 091
Этаж 15/59
Москва, ЖК «Сити Бэй»
Трикотажная
5 мин.
Строится
2-комн. квартира 52,54 м2 23 919 122
Этаж 10/53
Москва, ЖК «Сити Бэй»
Трикотажная
5 мин.
Строится
2-комн. квартира 52,80 м2 27 000 199
Этаж 18/48
Москва, ЖК «Сити Бэй»
Трикотажная
5 мин.
Строится
Посмотреть 366 квартир в ЖК «Сити Бэй»
3-комн. квартира 73,70 м2 34 287 909
Этаж 8/20
Москва, ЖК «Сити Бэй»
Трикотажная
5 мин.
Сдан
3-комн. квартира 73,72 м2 35 118 461
Этаж 36/49
Москва, ЖК «Сити Бэй»
Трикотажная
5 мин.
Строится
3-комн. квартира 74,56 м2 32 832 578
Этаж 23/27
Москва, ЖК «Сити Бэй»
Трикотажная
5 мин.
Строится
3-комн. квартира 76,49 м2 36 385 566
Этаж 34/49
Москва, ЖК «Сити Бэй»
Трикотажная
5 мин.
Строится
Посмотреть 149 квартир в ЖК «Сити Бэй»
4-комн. квартира 100,68 м2 46 285 516
Этаж 40/49
Москва, ЖК «Сити Бэй»
Трикотажная
5 мин.
Строится
4-комн. квартира 100,89 м2 46 086 229
Этаж 30/49
Москва, ЖК «Сити Бэй»
Трикотажная
5 мин.
Строится
4-комн. квартира 103,57 м2 75 610 750
Этаж 15/15
Москва, ЖК «Сити Бэй»
Трикотажная
5 мин.
Строится
4-комн. квартира 104,60 м2 34 437 071
Этаж 6/59
Москва, ЖК «Сити Бэй»
Трикотажная
5 мин.
Строится
Посмотреть 31 квартира в ЖК «Сити Бэй»

Скидки и спецпредложения от застройщиков

ЖК «Сити Бэй» на карте

Выгодные предложения на новостройки

Отзывы о ЖК «Сити Бэй»

Самый полезный отзыв
П
04 августа 2020
Оценка:
Недавно узнала, что начался старт продаж в ЖК Сити Бэй. В принципе, отличный комплекс должен получиться, да еще со своей набережной и видом на Москву-реку. Думаю, спрос на него будет большой, тем более, что этот комплекс от МР, а на сколько мне известно, строят они качественно и в срок
Ответить
Самый новый отзыв
СЛ
06 марта
Оценка:
Достоинства
Двор, окружение
Расположение
Жилой комплекс на реке — это всегда плюс. Прогулки вдоль воды и хорошее расположение рядом с важными транспортными артериями — это идеальное место для жизни.
Ответить

Оставить отзыв

Добавьте отзыв, заполнив личные данные, или сначала войдите на сайт, тогда информация будет автоматически взята из личного профиля.
Оценка*