Представляем вашему вниманию экспертизу проекта в новом формате. Независимый эксперт рынка недвижимости Андрей Смирнов специально для портала Новострой-М изучает новостройки и делится своим мнением с вами. Первый обзор посвящен мегапроекту «Переделкино Ближнее» в Новой Москве.
Было поле – теперь микрорайон
Я прекрасно помню времена, когда первые дома «Переделкино Ближнее» только появились в продаже. Это место было буквально обычным подмосковным полем (в 2011 году Новой Москвы еще не было), открытие здесь станции метро казалось скорее городской легендой, а квартиры продавались по ценам от 4,5 млн рублей.
Ровно восемь лет назад, в августе 2018 года, рядом с ЖК открылась станция метро «Рассказовка», что придало росту цен на жилье логичное ускорение. Сейчас квартиры на стадии строительства стоят минимум 8,6 млн рублей.
Первоначально застройка велась панельными домами серии П44Т, первые дома здесь вводились в эксплуатацию в 2013–2014 годах. Чуть позднее покупателям начали предлагать квартиры в монолитных домах по индивидуальному проекту.




Стройка и по сей день ведется так называемыми фазами, или иначе говоря кварталами/очередями. Последней на данный момент является 18-я фаза, которая расположена дальше всего от метро «Рассказовка» и даже отделена от остальных корпусов «города-парка», как его величает застройщик, многополосной дорогой.
Если верить открытым источникам, первоначально предполагалось, что в проекте будет 87 корпусов. Большинство домов (74) уже введены в эксплуатацию.
Немного справочной информации о ЖК «Переделкино Ближнее»:
Транспортная доступность
Для чистоты эксперимента я решил добраться до ЖК на метро, а вернуться в центр Москвы на каршеринге. Как точку отсчета взял метро «Арбатская». Вот что получилось.
Время в пути до м. «Рассказовка» – ровно 40 минут, с удобной пересадкой на станции «Парк Победы» (просто надо перейти на другую сторону платформы). А вот дальше все зависит от того, в какой именно дом нужно прийти.
До ближайших домов комплекса вполне можно добраться пешком – 5 минут ходьбы до домов 1-й и 5-й фазы. Все, что дальше, потребует уже пересадки на автобус, самокат или велосипед, кто к чему привык. Так, до самых отдаленных корпусов (8-я фаза, строящиеся дома 11-й и 17-й фазы) – не меньше получаса ходьбы. Кажущаяся наиболее обособленной 18-я фаза оказалась на деле не такой уж недоступной – до нее я дошел за 20 минут.




Кстати, новоселам 11, 12, 16 и 13 фазы, возможно, более удобной окажется станция МЦД-4 Мичуринец: до нее около 15 минут ходьбы.
В целом, с небольшой натяжкой, можно резюмировать, что «Переделкино Ближнее» практически полностью находится в пешей доступности от метро/МЦД.
Что касается автомобильной доступности, то время за рулем до все той же станции метро «Арбатская» составило 50 минут, но здесь стоит оговориться, что я посещал ЖК в рабочий день, вне часа пик. Я выбрал наиболее прямой маршрут, через Мичуринский проспект, минуя выезд на МКАД и наиболее вероятные пробки на Кутузовском проспекте.
Общий балл транспортной доступности – 4,5.
Отдельно оговорюсь, что ситуация с парковками в ЖК «Переделкино Ближнее» критическая. Домов с подземными паркингами здесь нет. У ряда домов также нет возможности поставить шлагбаумы, чтобы оградить двор от чужих автомобилей. Межквартальные проезды и обочины заставлены машинами.
Рядом с домом 14 по ул. Бориса Пастернака организован платный наземный паркинг, но он ничтожно мал для столь огромного микрорайона. Даже в будни днем там практически не было свободных мест. Многоуровневый наземный паркинг между домами 10 и 12 уже полностью раскуплен. На вторичном рынке цена машино-места в нем – порядка 3 млн рублей.
Качество строительства и архитектурный облик
Когда мы попадаем в уже построенный микрорайон, конечно же, мы сразу внешне его оцениваем: хотелось бы тут жить?
На мой личный взгляд «Переделкино Ближнее» – вполне качественный «спальник», кому-то милы панельки, я бы выбрал скорее квартиру в монолитном доме, с панорамным балконом, а лучше всего – с видом на парк «Рассказовка» или у безымянного лесопарка. Единственное, что здесь напрягает, – довольно высокая плотность застройки и «монотонный» ритм высотных домов, особенно в кварталах ближе к метро. Дальше, в новых фазах у пруда, дома меньшей этажности (8-9- максимум 17 этажей), и такая среда воспринимается уже как более благоприятная.
Кстати, отмечу неплохой дизайн МОП с учетом класса домов (комфорт). В большинстве подъездов – сквозной выход как на улицу, так и во внутренний двор, стильная зона почтовых ящиков, все чисто и аккуратно. Подъезды и лифты в новых домах все безбарьерные.
Оценка по этому параметру – 4.
Инфраструктура
На первый взгляд, «Переделкино Ближнее» обеспечено сполна как социальными объектами, так и различными торговыми точками. Большинство из них сосредоточено в ТЦ «Сказка», что возле метро, кроме того, недавно чуть дальше от входа в подземку открылся еще один коммерческий объект, который постепенно заполняется арендаторами (первоначально там хотели разместить МФЦ).
















Но пока что МФЦ здесь нет, как нет и собственной поликлиники. В результате весь микрорайон пользуется этими объектами в соседнем Ново-Переделкине или ездит в «Солнцево-Парк». Единственное отделение банка работает все в том же ТЦ «Сказка». Хотя на территории ЖК можно найти банкоматы Сбера, ВТБ и Т-Банка. Есть и свое почтовое отделение.
В чем нет дефицита – так это супермаркеты и различные продуктовые на первых этажах, а также пункты выдачи заказов всех возможных маркетплейсов.
Также в ЖК уже работают пять детских садов и две школы, еще одна школа достраивается рядом с домами 10 фазы.
Есть возможность погулять в парке «Рассказовка» и прилегающем лесопарке, либо отправиться на прогулку в соседние Мичуринец и Переделкино. Вскоре к этим местам добавится зона отдыха у пруда.
Оценка инфраструктуры: 4.
Планировки в продаже
Сейчас от застройщика в реализации представлено свыше 800 квартир, в том числе самые «лакомые» варианты – у пруда, который обещают облагородить и сделать зоной отдыха.
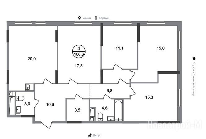
На выбор покупателя – планировки от 26-метровых студий до 108-метровых «четырешек». 1-комнатные просторные, от 38 кв. м, 2-комнатные – от 40,6 кв. м, «трешки» – от 64,8 кв. м. Благодаря компактности, вероятно, застройщик и смел предложить более или менее взвешенные цены, от 8,6 млн рублей за студию, от 10,2 млн руб. – за «однушку». Это самые ходовые варианты, которых уже не так много даже на вторичном рынке.





Среди студий можно выбрать планировку как с одним большим окном, так и с двумя узкими окнами; есть квартиры неправильной формы, но с достаточно большим санузлом (до 5,4 кв. м). Есть студии с выделенным местом под гардеробную/встроенный шкаф.
Среди 1-комнатных есть «классические» варианты, в которых спальня просторнее кухни, есть «евро» с увеличенными кухнями, с двумя или тремя окнами, с гардеробной и без. Также есть варианты с увеличенными холлами (до 7 кв. м).
Самые просторные «двушки» – угловые, с двумя санузлами, постирочной (или кладовым помещением), с большими холлами (9–10 кв. м). В наиболее компактных «двушках», конечно, санузел один, это скорее однокомнатные евроквартиры с кухней-гостиной и спальней.
Все семейные квартиры (3+) – с двумя санузлами, однако не предусмотрено мастер-спален, хотя одна из комнат соседствует с ванной в большинстве планировок. Большинство этих вариантов – распашные планировки, часть из них также с двумя гардеробными.
Зато стоимость «трешек» начинается от 15,5 млн рублей, есть и 68-метровые «двушки» за 16–17 млн, а это значит, что они вполне подходят под семейную ипотеку (с учетом соответствующего взноса в 3,5-4 млн руб. минимум).
Немаловажно, что есть выбор квартир как без ремонта, так и с разными видами отделки: от предчистовой до чистовой в двух стилях (classic и smart+).
Однако стоит иметь в виду, что все квартиры спроектированы без балконов и лоджий.
Оценка планировок: 3,5.
Отзывы жителей. Резюме
Не буду скрывать, у меня живут друзья в этом жилом комплексе, и мне нередко приходится бывать там в гостях. В целом они более чем довольны покупкой, но есть и несколько раздражающих моментов, помимо перечисленных выше проблем с парковками и отсутствия поблизости МФЦ и поликлиники.
Прежде всего, резиденты отмечают монополию местного Интернет-провайдера, сменить которого не удается даже несмотря на вступивший в силу закон. Интернет в ЖК остается крайне дорогим и при этом нестабильным.
Не во всех корпусах получается установить шлагбаум на въезде к дому, из-за чего на придомовой территории паркуются жители соседних домов, а также покупатели, которые приезжают в магазины, или посетители местных салонов красоты и других торговых точек.
Но в целом недочеты нивелируются московской пропиской, отличной экологией, насыщенной торговой инфраструктурой, близостью станции метро и МЦД.
Ближайший конкурент – ЖК «Городские истории» – подкупает расположением прямо у метро, но, на мой личный взгляд, проигрывает по всем остальным параметрам: здесь предельная плотность застройки, расположение домов вплотную к дорожной эстакаде, крохотные дворы, внешний облик фасадов на любителя. При этом цены практически такие же, как в «Переделкино Ближнее».
У меня ЖК «Переделкино Ближнее» в целом вызывает скорее позитивные эмоции, и вполне можно рекомендовать квартиру здесь к покупке.
Автор: Андрей Смирнов, специально для Новострой-М
Дата публикации 02 сентября 2025