Клубный дом OPUS появится на Дербеневской набережной рядом с одноименным бизнес-парком. Уникальная архитектура, вид на воду из большинства квартир и вместительный паркинг отличают этот проект от других элитных домов столицы. Чем ещё интересен строящийся комплекс, разбирался Новострой-М.
Примечание
В статье перечислены только факты о ЖК, собранные из открытых источников. В рубрике «Экспертиза проекта» Новострой-М решил отказаться от оценок и оценочных суждений: право делать выводы из описанных фактов о жилом комплексе мы предоставляем нашим читателям.
Кто строит?
Девелоперская группа Pioneer специализируется на строительстве жилой и коммерческой недвижимости, а также управлении проектами. Компания возводит многофункциональные комплексы на территории Москвы и Санкт-Петербурга уже 22 года. За это время было успешно введено в эксплуатацию более 2,7 млн кв. м недвижимости. Еще 1,7 млн кв. м находятся на разных стадиях проектирования и строительства.
Компания регулярно пополняет свой земельный банк новыми территориями в Московском и Петербургском регионах. По объему строительства, выручки и реализации объектов недвижимости Pioneer входит в топ-10 в московском рейтинге девелоперов.
Фокус внимания ГК «Пионер» в последние годы сосредточен на проектах в сегментах «премиум» и deluxe.
Что строят?
Клубный дом OPUS — это многофункциональный комплекс, объединяющий в себе элитный клубный дом, бизнес-центр класса А и торговые галереи. Строительство ведется в исторической части столицы, в непосредственной близости от набережной Москвы-реки.
Клубный дом представляет собой 11-этажное здание, разделенное на 6 секций. В зависимости от секции на этаже будет располагаться от 2 до 7 квартир. Согласно проектной декларации, всего в доме будет 172 квартиры, а на подземном этаже разместится паркинг на 298 автомобилей. Ввод объекта в эксплуатацию намечен на IV кв. 2025 г.
Клубный дом OPUS в цифрах:
|
№ дома |
Лоты |
Энергоэффект. |
Машино-места |
Класс |
Срок ввода |
|
1 |
172 |
А+ |
298 |
Элитный |
IV кв. 2025 |
Архитектура и дизайн
Архитектурный облик OPUS был разработан в бюро «Цимайло Ляшенко и Партнёры». Клубный дом представляет собой монолитный железобетонный каркас, проемы которого заполнят блоками. Здание имеет необычную волнообразную форму, которая повторяет изгиб реки. Внешняя фактура ступенчатая. С торца, обращенного к набережной, через этаж располагаются террасы.










Навесной вентилируемый фасад покроют матовым архитектурным бетоном. Во всех квартирах будут панорамные окна. Ограждения балконов и террас будут выполнены из закаленного стекла.
Основная задача, которую стремились реализовать архитекторы, — открыть вид на реку для большинства квартир. Геометрия и угол поворота здания позволили им это сделать. Наиболее полный обзор получат резиденты торцевых квартир со стороны набережной, но и с выступающих балконов других лотов можно будет наслаждаться видом на воду.
Первые два этажа займут коммерческие помещения и просторные лобби. Площадь общественных пространств впечатляет: лобби от 90 до 160 кв. м, колясочные — от 37 до 54 кв. м. Над интерьерами лобби трудилась дизайнер Наталья Белоногова. Вдохновенная парижскими L’Atelier Brancusi и Musée du Quai Branly, в котором собраны образцы искусства народов Африки, Азии и Океании, она придумала уникальные пространства — монохромные, спокойные, наполненные светом. Изюминкой проекта станут рукотворные авторские тотемы из натуральных материалов, а также деревянная мебель от известного мастера Дениса Милованова и светильники, созданные на 3D-принтере.
Благоустройство
Территория комплекса разделена на две зоны: для спокойного и активного времяпрепровождения. Внутренний двор отделен от городского шума и суеты двухэтажной торговой галереей. Здесь можно почитать книгу и провести время в уединении. Территория со стороны набережной обустроена для детских игр и спортивных занятий.










Ключевым приемом в ландшафтном дизайне этого жилого дома выступает геопластика: искусственно сформированные холмы, плавно перетекающие друг в друга и извилистые мощеные дорожки между ними, повторяющие речную волну.
Торговая галерея, которая будет пролегать вдоль 1-го Дербеневского переулка, представляет собой пространство с панорамным остеклением, в котором будут размещены бутики, салоны красоты, кафе и магазины.
Безопасность и технологии
В каждой секции клубного дома установлено по 3 скоростных малошумных лифта, в том числе один технический для провоза крупногабаритных предметов и строительных материалов.
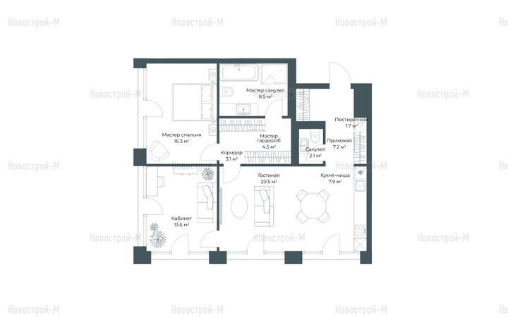
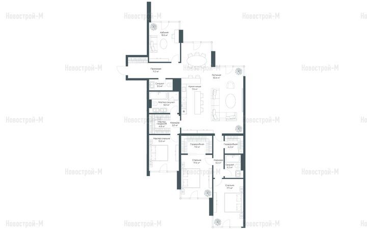
Планировки
В каждой секции разное количество квартир на этаже — от 2 до 7. Верхний этаж дома занимают просторные пентхаусы с возможностью установки камина. С торца ближе к набережной — квартиры с открытыми террасами, которые «лесенкой» спускаются к реке.





Планировки квартир в проекте эргономичные, созданные с учетом привычек и образа жизни людей, привыкших к максимальному комфорту. В квартирах есть мастер-спальни с большими гардеробными и ванными комнатами площадью до 17 кв. м, не менее 2 санузлов, удобные кухни-ниши и светлые гостиные площадью до 47 кв. м. Во многих квартирах есть балконы, причем не только в жилых комнатах, но и в ванных. Во многих квартирах окна выходят на две стороны света. Высота потолков — 3,4 м.
В проекте нет студий и однокомнатных квартир, зато есть двухкомнатные в евроформате, площадью от 55,8 кв. м до 83,2 кв. м. Трехкомнатные квартиры имеют площадь от 85,2 кв. м до 207,1 кв. м. Квартиры с тремя и четырьмя спальнями достигают 136,5–262,3 кв. м. Площадь многокомнатных квартир в диапазоне от 178,2 до 335,8 кв. м.
Все квартиры сдаются без отделки.
Где строят?
Клубный дом OPUS находится в южной части Москвы, в Даниловском районе. До центрального округа его отделяют лишь около двухсот метров: в шаговой доступности расположены Замоскворечье и Таганский район с их инфраструктурой и историческими локациями.
Комплекс строится на месте бизнес-парка «Дербеневский», подъезд к нему обеспечен со стороны одноименной набережной, с которой можно выехать на Садовое кольцо за 5 минут без учета пробок (1,5 км). На расстоянии 4 км находится ТТК, проезд к которому возможен не только по набережной, но и через Подольское шоссе, время в пути — 14 минут. Однако стоит учитывать загруженность Дербеневской набережной, а также высокую вероятность пробок у Новоспасского моста. Дорожное движение вокруг дома, от Дербеневской улицы до Дербеневской набережной, одностороннее.
В районе застройки отлично развита система общественного транспорта. Ближайшая станция метро «Павелецкая» находится в 1,2 км, дойти до нее пешком можно за 14 минут. Там же находится Павелецкий вокзал и станция аэроэкспресса до аэропорта Домодедово.
Экология
Даниловский район исторически был промышленным, здесь и сейчас функционирует часть заводов и фабрик, хотя многие из них уже реорганизованы. Главной угрозой для экологии района остаются ТЭЦ и перегруженные дороги. Крайне малая площадь зеленых насаждений и высокая плотность населения только усугубляют ситуацию. Эксперты EcoStandard оценивают обстановку этого района как «Неблагоприятную». Но стоит заметит, что клубный дом OPUS возводится ближе к центру столицы, в двухстах метрах от Замоскворечья, где экология «приемлемая» для комфортной жизни.
В шаговой доступности нет крупных парков. Ближайший — парк им. М. Горького — расположен на расстоянии 3,7 км, дойти до него пешком можно за 45 минут, доехать на машине – за 10 минут. Небольшой ландшафтный Павелецкий парк есть на Павелецкой площади, расстояние до которой чуть больше километра, время в пути пешком — 15 минут.
Инфраструктура
Вокруг строящегося клубного дома OPUS много современных бизнес-пространств, кафе, ресторанов и развлекательных заведений. В шаговой доступности находятся объекты социальной инфраструктуры Даниловского района и Замоскворечья.
Ближайшее дошкольное отделение школы № 1257 (корпус № 6) находится на Дербеневской набережной, идти до него вдоль реки 1 км, 13 минут. Другой муниципальный садик при школе № 1259 (корпус № 3) находится на расстоянии 1,7 км, около 20 минут пешком. В радиусе 2 км есть два частных детских сада: Sun School — 15 минут пешком или 2 остановки на автобусе, «Планета детства» — 24 мин пешком или 10 мин на машине.
Несколько детских садов находятся на противоположном берегу, дорога к ним пролегает через Новоспасский мост: «Маленькая страна» (при Школе № 463 имени Героя Советского Союза Д.Н. Медведева) — 20 мин пешком (1,7 км), детский сад № 2161 — 23 мин (1,9 км), дошкольный корпус школы № 498 — 17 минут (1,4 км), дошкольное отделение школы имени В. В. Маяковского — 23 мин (2 км). На машине до любого из этих садиков можно доехать за 6–7 мин без учета пробок.
Ближайшее среднее образовательное учреждение – школа № 1553 имени В. И. Вернадского, ее учебный корпус № 1 расположен на расстоянии 970 м, дойти до него можно за 12 минут. Немного дольше придется идти до школы № 627 имени генерала Д. Д. Лелюшенко, учебный корпус № 1 находится в 2 км, 25 минут пешком. За Новоспасским мостом есть школа имени В. В. Маяковского, до лицейского корпуса можно доехать за 5 мин на машине или дойти пешком за 19 минут.
В шаговой доступности несколько продуктовых минимаркетов, дойти до которых можно за 5-7 минут. Ближайшие сетевые супермаркеты: «Дикси» — 980 м, 12 минут, и «Перекрёсток» — 1,2 км, 15 мин, «Пятерочка» на Дербеневской набережной — 16 мин.
Получить медицинскую помощь или пройти обследование можно в поликлинике № 67 (филиал № 2), расположенной через дорогу от новостройки. Также взрослые пациенты могут обратиться в «Лор клинику Зайцева» — 24 мин пешком (2 км), поликлинику № 68 (филиал № 1) — 26 мин (2,1 км), или частную «Поликлинику.ру» — 17 мин (1,4 км).
Ближайшее медицинское учреждение для детей — частная клиника DocDeti — 5 мин (410 м). До муниципальных детских поликлиник № 38, филиал № 3 и № 61, филиал № 2 удобнее ехать на машине, так как расстояние до каждой более 1,5 км (не менее 20 минут пешком).
Обследоваться всей семьей можно в частной клинике «Семейный доктор». Здесь принимают детей и взрослых, есть стоматологическое и гинекологическое отделения. Расстояние до клиники 2 км, 25 мин пешком.
Ближайший спортивный зал «Какорех» находится в 6 минутах ходьбы (460 м). За 11 минут можно дойти до Evolve Gym, где есть бассейн и тренажеры. В шаговой доступности студия пилатеса, центр оздоровительного фитнеса, несколько танцевальных студий для детей и взрослых.
Безопасность
На протяжении последних 5 лет ситуация с преступностью в Даниловском районе была стабильной, а по отдельным статьям даже отмечалось сокращение числа правонарушений. Но в 2022 году, как сообщает начальник МВД в своем отчете, чаще стали происходить не только мелкие правонарушения, но и преступления с нанесением вреда здоровью граждан.
Однако стоит учитывать, что строительство OPUS ведется ближе к центру Москвы, в 200 метрах от границы с престижным Замоскворечьем. Бывшие промышленные зоны вокруг давно преобразованы в деловые бизнес-пространства и элитные жилые комплексы. Поэтому будущие жители OPUS могут чувствовать себя спокойно.
В ближайшем окружении от нашей новостройки работают сразу несколько отделений полиции:
Цены и способы покупки
Разрешение на строительство проекта было получено в сентябре 2022 года, в ноябре стартовали открытые продажи. На данный момент из 6 секций клубного дома OPUS реализация квартир ведется только в трех. Продажи стартовали в секциях 1, 2 и 3, расположенных ближе к бизнес-центру. Очевидно, что видовые лоты и пентхаусы поступят на рынок позднее. Сегодня, в сентябре 2023 года, минимальная стоимость лота в клубном доме составляет 38,1 млн руб. За эту сумму можно купить квартиру площадью 55,8 кв. м с большой гостиной и спальней. Самый дорогой вариант из имеющихся в продаже — 4-комнатная квартира площадью 233,5 кв. м с видом на реку, с окнами в ванной и в гардеробной. Ее стоимость — 229 млн руб.
Цены в клубном доме OPUS:
|
Тип жилья |
Метраж, кв. м |
Цена, руб. |
Цена за кв. м, тыс. руб. |
|
1-комнатные |
55.80 — 97.90 |
63 466 660 — 139 938 260 |
1087.3 — 1429.4 |
|
2-комнатные |
85.30 — 191.30 |
95 442 170 — 252 994 250 |
1015 — 1349.7 |
|
3-комнатные |
115.90 — 266.70 |
150 530 920 — 443 836 170 |
1128.8 — 1875.1 |
|
4-комнатные |
189.00 — 305.90 |
203 723 100 — 575 336 720 |
1077.9 — 1880.8 |
|
многокомнатные |
434.60 |
826 783 040 |
1902.4 |
Информация о стоимости части лотов отсутствует на сайте застройщика. Получить её покупатели смогут непосредственно в офисе продаж по запросу.
Квартиры в новостройке реализуются через эскроу-счета. Партнером проекта выступает Альфа-Банк. Есть возможность онлайн-покупки.
Данные об условиях кредитования действительны на момент публикации статьи. Актуальную информацию вы всегда можете найти в карточке проекта.
Конкуренты
OPUS возводится вблизи престижного Замоскворечья, где есть спрос на премиальную недвижимость, а значит у него есть и конкуренты. Ближайшие по расположению – ЖК High Life и ЖК Voxhall.
ЖК High Life на Летниковской улице также строит ГК «Пионер». Это 6 разновысотных башен от 24 до 48 этажей, подземный паркинг и благоустроенная территория. Комплекс соответствует высоким стандартам, предъявляемым к жилью премиум-сегмента: резидентов встречают просторные дизайнерские лобби с потолками высотой 5,5 метров, колясочные, общественные гостиные, ресепшн, функциональная парковочная зона с келлерами. Квартирография проекта представлена квартирами и пентхаусами площадью от 36 до 180 кв. м. Срок ввода в эксплуатацию — I квартал 2025 года.
Цены в ЖК High Life:
|
Тип жилья |
Метраж, кв. м |
Цена, руб. |
Цена за кв. м, тыс. руб. |
|
1-комнатные |
23.90 — 38.40 |
26 689 130 — 41 646 336 |
1033.9 — 1175.5 |
|
2-комнатные |
35.40 — 92.40 |
37 601 880 — 102 065 040 |
754.2 — 1245.2 |
|
3-комнатные |
70.50 — 164.40 |
62 625 150 — 212 181 290 |
715 — 1385.9 |
|
4-комнатные |
103.80 — 223.20 |
81 893 022 — 335 715 120 |
680.7 — 1574.7 |
|
многокомнатные |
138.50 — 321.40 |
203 583 920 — 363 728 380 |
1131.7 — 1469.9 |
ЖК Voxhall от Группы «Эталон» — это квартиры и апартаменты бизнес-класса в историческом центре столицы. Дома строятся в непосредственной близости от железной дороги и станции метро, что можно считать как плюсом, так и минусом локации. В проекте представлены разные форматы жилой и нежилой недвижимости: от студий до 6-комнатных квартир с возможностью свободной планировки. Есть лоты с балконами и террасами, а также с окнами на три стороны света. В проекте предусмотрена подземная парковка, собственная торговая инфраструктура и благоустроенный закрытый двор. Стоимость лотов в ЖК Voxhall — от 12,7 до 141 млн руб. Завершение строительства запланировано на 3 квартал 2025 года.
Цены в ЖК Voxhall:
|
Тип жилья |
Метраж, кв. м |
Цена, руб. |
Цена за кв. м, тыс. руб. |
| квартиры | |||
|
1-комнатные |
41.10 — 53.80 |
38 901 923 — 51 788 268 |
940.1 — 1061.5 |
|
2-комнатные |
59.20 — 79.50 |
46 909 634 — 65 874 063 |
590.1 — 1012.8 |
|
3-комнатные |
71.00 — 125.30 |
47 450 490 — 99 258 421 |
572.6 — 1070.7 |
|
4-комнатные |
86.30 — 151.50 |
60 357 419 — 166 394 930 |
699.4 — 1098.3 |
|
многокомнатные |
134.70 — 140.50 |
109 432 884 — 159 330 649 |
812.4 — 1134 |
| помещения | |||
|
студии |
22.60 — 26.20 |
16 706 262 — 28 155 846 |
730.3 — 1091.3 |
|
1-комнатные |
41.20 — 48.10 |
27 409 885 — 39 904 005 |
608.8 — 932.3 |
|
2-комнатные |
59.00 — 75.80 |
35 156 439 — 55 811 790 |
560.5 — 924.5 |
|
3-комнатные |
85.20 — 125.10 |
64 559 048 — 108 360 561 |
757.7 — 866.2 |
Резюме
Клубный дом OPUS — это элитная недвижимость в 15 минутах от Кремля. Здесь есть все необходимое, чтобы чувствовать собственное превосходство: начиная от великолепных видов на Москву-реку, заканчивая высоким уровнем сервиса.
Будущие резиденты OPUS оценят:
В числе недостатков проекта можно отметить удаленность объектов социальной инфраструктуры, а также высокую загруженность автомобильных дорог и развязок рядом с домом.
Клубный дом OPUS будет интересен, в первую очередь, тем, кто выбирает жилье для себя. Если учесть высокую стоимость недвижимости уже на старте продаж, её инвестиционная привлекательность выглядит сомнительно, однако такие объекты можно рассматривать в качестве сохранения сбережений.
Дата публикации 12 сентября 2023