Жилой комплекс «Союз» возводится в районе Ростокино (СВАО) в окружении парков и рек. Проект позиционируется как первый жилой спортивно-оздоровительный кластер: жителям будут доступны занятия 20 видами спорта. Премиальный комплекс в развитом районе рядом с природными зонами, уникальная спортивная инфраструктура — чем еще интересен флагманский проект Группы «Родина», изучил Новострой-М.
Примечание
В статье перечислены только факты о ЖК, собранные из открытых источников. В рубрике «Экспертиза проекта» Новострой-М решил отказаться от оценок и оценочных суждений: право делать выводы из описанных фактов о жилом комплексе мы предоставляем нашим читателям.
Кто строит
Девелопер проекта — Группа «Родина». Компания основана в 2014 году, ее специализация — создание инновационных жилых кварталов. Один из самых известных проектов Группы «Родина» — Russian Design District, построенный в Новой Москве. Со всеми ЖК застройщика можно ознакомиться на сайте Новострой-М.
Что строят
Кластер премиум-класса «Союз» состоит из шести домов высотой 23-24 этажа. Первые два корпуса будут сданы до конца 2024 года, еще два — в III квартале 2025 года, последние корпуса планируется ввести в I квартале 2026 года. Одновременно с домами первого этапа будет сдан подземный паркинг.
ЖК «Союз» в цифрах*
|
№ объекта |
Квартиры |
Энергоэффект. |
Машино-места |
Класс |
Срок сдачи в эксплуатацию |
|
1 |
225 |
В |
- |
премиум |
IV квартал 2024 г. |
|
2 |
225 |
В |
- |
премиум |
IV квартал 2024 г. |
|
3 |
190 |
В |
- |
премиум |
III квартал 2025 г. |
|
4 |
202 |
В |
- |
премиум |
III квартал 2025 г. |
|
5 |
216 |
В |
- |
премиум |
I квартал 2026 г. |
|
6 |
218 |
В |
- |
премиум |
I квартал 2026 г. |
|
7 |
- |
|
552 |
|
IV квартал 2024 г. |
*данные из проектной декларации
Архитектура и дизайн
Архитектурный облик домов ориентирован на природные цвета и материалы, фасады будут облицованы натуральным камнем и алюминиевыми панелями «под бронзу». Декоративные панели и стекла волнистой геометрии напоминают течение реки, а плоские ламели древесных оттенков отсылают к лесной тематике.






Придомовая территория
Жилая часть займет лишь 2 га из 7 га, на остальной территории разместится различная инфраструктура, в основном спортивная: физкультурно-оздоровительный комплекс, стадион, футбольные поля, площадки для тенниса, волейбола, баскетбола, воркаута, йоги и восточных единоборств.
Также предусмотрены японский сад, розарий, площадки для пикника, голубятня с редкими птицами, детские площадки. Появится спуск к Яузе.







Технологии
Во всех квартирах и пентхаусах предусмотрена возможность установки системы с индивидуальной фильтрацией и рекуперацией тепла. В лобби и коридорах — система фильтрации воздуха с блоками грубой и тонкой очистки и обеззараживающим комплексом.
Нежилые метры
В лобби каждого дома разместятся комнаты консьержей, лаунж-зоны, детские игровые комнаты, большие переговорные, комнаты для медитации и изолированные комнаты для занятий музыкой.
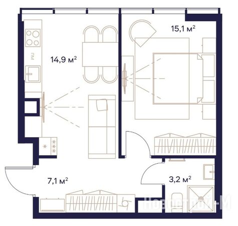
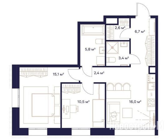
Квартиры и планировки
Корпуса ЖК «Союз» рассчитаны на 1 276 квартир. Всего запроектировано более 40 видов планировок, включая лоты с террасами и пентхаусы. Во многих квартирах есть балконы, в том числе французские, двойные и угловые. В середине декабря 2024 года в продаже есть варианты от студий до квартир с четырьмя комнатами и кухней-гостиной.
Площадь студий — от 27,4 кв. м до 39,8 кв. м. В квартирах меньшей площади есть ниши под гардероб, в студиях побольше — отдельная гардеробная. Площадь 1-комнатных квартир — от 40,3 кв. м до 55,1 кв. м. В таких квартирах есть кухни-гостиные, ниши или отдельные гардеробные, часть лотов представлена с мастер-спальнями.





Среди 2-комнатных квартир можно выбрать варианты площадью от 60,2 кв. м до 94,1 кв. м. Особенности таких лотов: кухни-гостиные, гардеробные, гостевые санузлы, увеличенные ванные, мастер-спальни.
Площадь 3-комнатных квартир — от 77,9 кв. м до 109,6 кв. м. В таких планировках есть кухни-гостиные, гостевые санузлы, гардеробные, мастер-спальни. 4-комнатных лотов в середине декабря 2024 года представлено всего шесть, их площадь — от 101,4 кв. м до 146,4 кв. м. Помимо помещений, которые перечислены выше для других планировок, в одной из квартир есть выделенная постирочная.
Где строят
ЖК «Союз» строят на Сельскохозяйственной улице в районе Ростокино на северо-востоке Москвы, рядом со стадионом «Искра», реконструкцию которого проводит Группа «Родина». Ближайшая станция метро — «Ботанический сад», до нее 980 м, причем дорога к станции идет через парк.
Станции метро, время в пути от ЖК «Союз»
• метро «Ботанический сад» — 12 минут пешком.
Недалеко от жилого комплекса есть остановки общественного транспорта, автобусы курсируют до Рижского вокзала, станции метро «Владыкино» и ж/д платформы Яуза.
Дорога на машине до ТТК в час пик займет 18 минут, также в час пик можно доехать до Садового кольца за 24 минуты.
Экология
Эксперты компании EcoStandard присвоили району Ростокино 5 баллов из 10, экологическая обстановка здесь является благоприятной.
Территорию района пересекает проспект Мира, по границе проходит МСД. Зеленые зоны представлены парком «Сад будущего», парком спорта Яуза и парком «Акведук», по соседству с районом находятся Леоновская роща, Главный ботанический сад РАН, парк Сокольники и национальный парк «Лосиный остров».
Инфраструктура
Проектом не предусмотрено строительство собственной социальной инфраструктуры. На первых этажах корпусов запроектированы нежилые помещения, в которых, вероятно, разместятся магазины, пункты выдачи заказов и другие объекты инфраструктуры. Также анонсированы ресторан, общественно-деловой центр, кабинет медицинской диагностики, магазин спортивной экипировки, музей спортивных достижений и первый в России центр биохакинга — одного из самых трендовых видов превентивной медицины.
Ближайшие детские сады — это дошкольные отделения «Зеленый мыс» и «Радужный остров» школы №1499 на улице Сельскохозяйственная, до каждого из них меньше 12 минут ходьбы. На улице Докукина находится еще одно дошкольное отделение этой школы — «Голубая бухта», до него 10 минут пешком.
Один из учебных корпусов школы №1499 расположен совсем рядом с нашей новостройкой — на улице Сельскохозяйственная, 20 корп. 1. Сейчас, согласно Яндекс.Картам, до него 500 метров или 6 минут пешком, но, возможно, в перспективе появится более короткий маршрут.
Городские детские поликлиники находятся не очень близко. Так, на улице Касаткина, 9 стр. 2 работает основное здание поликлиники №99, до него почти 2,5 км. До филиала №4 этой поликлиники на улице Комарова, 1Г — 4 км.
Та же ситуация с поликлиниками для взрослых. Судя по Яндекс.Картам, ближайшей является поликлиника №12, а точнее — ее филиал №1 на улице Бажова, 11 корп. 3, до этого здания 1,65 км. Однако на сайте поликлиники филиала по этому адресу нет, возможно, там расположен небольшой медицинский кабинет. В 2,3 км от ЖК «Союз» работает филиал №4 КДЦ №2. Кроме того, в пешей доступности от жилого комплекса есть несколько частных медцентров.
По соседству с «Союзом» работает супермаркет «Пятерочка», есть несколько продуктовых магазинов.
За занятиями спортом резидентам «Союза» не придется далеко ходить — спортивная инфраструктура в рамках проекта будет представлена в большом количестве.
Безопасность района
Ростокино — один из самых безопасных районов Москвы. Тем не менее жителям «Союза» полезно знать, что участковый пункт полиции №86 Ростокинского ОМВД находится на Сельскохозяйственной улице, 14 корп. 1 — в 590 м или 7 минутах ходьбы.
Цены и способы покупки
На старте продаж в начале июля 2022 года цены начинались от 18 млн рублей за 1-комнатную квартиру площадью немногим более 40 кв. м. В середине декабря 2024 года самый недорогой лот — 28-метровая студия за 16,1 млн рублей.
Цены в ЖК «Союз»:
|
Тип жилья |
Метраж, кв. м |
Цена, руб. |
Цена за кв. м, тыс. руб. |
|
студии |
25.00 — 39.80 |
19 031 560 — 28 192 960 |
640.1 — 780.2 |
|
1-комнатные |
40.30 — 54.50 |
27 547 580 — 66 226 085 |
573.7 — 1221 |
|
2-комнатные |
59.60 — 82.70 |
38 497 190 — 88 102 625 |
578.9 — 1215.2 |
|
3-комнатные |
77.90 — 163.00 |
53 971 100 — 212 540 100 |
582.9 — 1303.9 |
|
4-комнатные |
94.70 — 190.90 |
90 337 600 — 248 503 630 |
705.8 — 1302.1 |
Способы покупки: ипотека от 3% годовых на 3 года (далее ставка повысится, но кредит можно будет рефинансировать), в рассрочку с первым взносом 20% и 30%, trade-in.
Конкуренты
Ближайший сосед ЖК «Союз» — жилой комплекс премиум-класса «Режиссер» от ГК ФСК. Три корпуса высотой 28-45 этажей построены на улице Вильгельма Пика рядом с киностудий Горького и ВГИКом, в 12 минутах ходьбы от станции метро «Ботанический сад». В середине декабря 2024 года в продаже остались 64 квартиры с предчистовой отделкой и без отделки по цене от 22,7 млн рублей за 1-комнатный лот с отделкой white box. Цена указана с учетом скидки.
Цены в ЖК «Режиссер»:
|
Тип жилья |
Метраж, кв. м |
Цена, руб. |
Цена за кв. м, тыс. руб. |
|
2-комнатные |
65.90 |
41 926 239 |
636.2 |
|
3-комнатные |
69.40 — 83.20 |
39 977 523 — 41 632 864 |
500.4 — 576 |
|
4-комнатные |
100.10 — 135.80 |
60 623 063 — 105 910 420 |
605.6 — 779.9 |
Из строящихся проектов относительно недалеко от «Союза» расположены «Мираполис» и ЖК МИRА. Оба, как видно из названий, возводятся на проспекте Мира.
«Мираполис» находится в Ярославском районе в пешей доступности от станции МЦК «Ростокино» и нацпарка «Лосиный остров». Он состоит из четырех небоскребов бизнес-класса высотой 33-35 этажей, продажи здесь начались в ноябре 2022 года. Девелопер проекта — ГК «Основа». Проект будет оснащен собственной инфраструктурой: торговым центром, магазинами, супермаркетом, кафе, ресторанами, объектами сферы услуг, офисами и коворкингами. Стоимость лотов начинается от 8 млн рублей за студию площадью 19,9 кв. м
Цены в Квартале «Мираполис»:
|
Тип жилья |
Метраж, кв. м |
Цена, руб. |
Цена за кв. м, тыс. руб. |
|
студии |
19.90 — 47.80 |
9 446 530 — 15 654 500 |
326.5 — 515.5 |
|
1-комнатные |
35.70 — 91.70 |
12 580 000 — 29 848 350 |
325.5 — 440 |
|
2-комнатные |
37.60 — 72.70 |
13 000 000 — 25 270 520 |
325 — 428 |
|
3-комнатные |
61.70 — 109.40 |
20 965 660 — 36 009 820 |
326 — 383.9 |
|
4-комнатные |
92.00 — 140.80 |
31 004 000 — 52 940 800 |
337 — 381 |
ЖК МИRА — это совсем новый проект MR Group, продажи здесь стартовали в конце ноября. Премиальный квартал появится в Алексеевском районе недалеко от ВДНХ. Запланировано строительство трех корпусов высотой от 17 до 24 этажей на 762 квартиры, в основном это видовые многокомнатные варианты.
Цены в ЖК МИRA:
|
Тип жилья |
Метраж, кв. м |
Цена, руб. |
Цена за кв. м, тыс. руб. |
|
студии |
28.01 — 30.14 |
21 329 279 — 24 957 366 |
738.9 — 886.9 |
|
1-комнатные |
33.26 — 50.18 |
23 498 760 — 37 994 022 |
611.4 — 903.1 |
|
2-комнатные |
54.24 — 75.97 |
33 469 931 — 65 674 980 |
596 — 1041.9 |
|
3-комнатные |
75.66 — 101.82 |
49 507 463 — 85 232 160 |
595.7 — 904.8 |
|
4-комнатные |
94.30 — 135.59 |
65 625 501 — 146 152 461 |
617.1 — 1077.9 |
Все три корпуса будут сданы во II квартале 2027 года. Квартиры реализуются без отделки и с отделкой MR Base, цены — от 17,3 млн рублей за студию без отделки площадью 28,22 кв. м.
Резюме
Плюсы ЖК «Союз»:
- район с развитой инфраструктурой;
- станция метро рядом;
- близость к паркам и набережным;
- богатая спортивная инфраструктура;
- разнообразные планировки;
- надежный застройщик.
Из минусов стоит отметить отсутствие собственной социальной инфраструктуры — проектом не предусмотрено строительство детского сада и школы. Кроме того, мест в паркинге может не хватить — на почти 1,3 тыс. квартир будет всего 552 машино-места.
Дата публикации 24 декабря 2024