Жилой комплекс бизнес-класса TopHills построен в Нагорном районе (ЮАО) рядом с Коробковским садом, долиной реки Котловка и горнолыжным комплексом «Кант». Близость к центру Москвы, станция метро в пешей доступности, видовые квартиры, ключи в день покупки — чем еще интересен этот проект ГК «Инград», расскажем в нашем обзоре.
Архитектура, дизайн, благоустройство
Примечание
В статье перечислены только факты о проекте, собранные из открытых источников. В рубрике «Экспертиза проекта» Новострой-М решил отказаться от оценок и оценочных суждений: право делать выводы из описанных фактов мы предоставляем нашим читателям.
ГК «Инград» основана в 2012 году и в 2017 году стала третьей по выводу объектов в продажу в Москве и Новой Москве, а в 2019 году вошла в десятку самых надежных российских застройщиков по версии Forbes. В 2024 году компанию приобрел девелопер Sminex и продолжил работу под двумя брендами.
ЖК бизнес-класса TopHills состоит из шести башен высотой до 29 этажей, они были введены в эксплуатацию в 2023 году. Четыре башни объединены стилобатом, для автомобилей — двухуровневый подземный паркинг.
ЖК TopHills в цифрах:
Концепцию жилого комплекса разрабатывало архитектурное бюро UNK Project. Среди его проектов: жилые дома, бизнес-центры и социальные объекты.
Корпуса выполнены в традициях современной европейской архитектуры и соединены стилобатной частью. Основание башен облицовано керамогранитом теплых тонов, средние этажи — перемежающимися темными и бежевыми плитами, верхние этажи с пентхаусами — яркими вертикальными конструкциями на фоне алюминиевых элементов бронзовых оттенков.






Мотив фасадов — ритм окон, отступы в верхней части башен, декоративные вставки на стилобате — отсылает к архитектуре жилых домов Нью-Йорка 30-х годов XX века и в то же время перекликается со сталинским ампиром. Фишка проекта — вечернее фасадное освещение, которое выделяет дома в окружающей застройке.
Концепция лобби принадлежит бюро Glekel. Здесь обустроены зоны отдыха и встречи гостей, колясочные и кладовые, лапомойки и санузлы.



Во дворе-парке есть сквер с детскими и спортивными площадками, местами для отдыха и пешеходный бульвар. Для различных активностей — велосипедные и беговые дорожки, скалодром, игровая стена, каток и летний кинотеатр.




Охраняемый двор огорожен и закрыт от автомобилей. Безопасность жизни и собственности жильцов гарантирует также система «Умный дом», установленная в квартирах с отделкой.
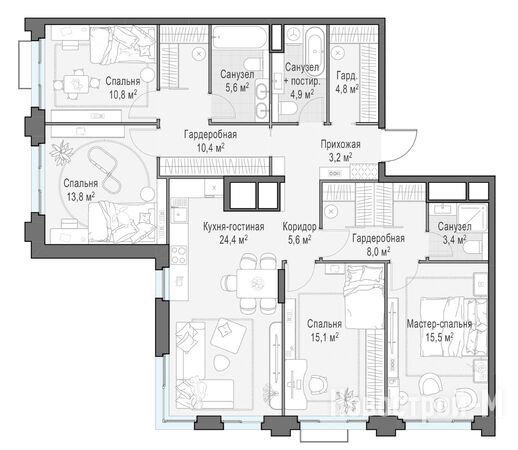
В начале июля 2025 года покупателям предложены 22 квартиры площадью от 35 до 130,9 кв. м. Особенности планировок: евроформат, наличие лоджий, мастер-спален, гардеробных, в некоторых квартирах есть террасы и постирочные. Все квартиры в продаже — без отделки.




ЖК TopHills построен в Электролитном проезде в Нагорном районе на границе с районом Котловка. Совсем рядом с новостройкой есть станция метро «Нагорная», до нее около 300 метров.
Станции метро, время в пути от ЖК TopHills:
Рядом с жилым комплексом есть автобусные остановки, общественный транспорт курсирует до Даниловского рынка, Киевского вокзала и метро «Варшавская». Дорога до ТТК на автомобиле займет около 10 минут, до центра — порядка 20 минут.
Экологическая обстановка в Нагорном районе далека от идеальной — в рейтинге компании EcoStandard району присвоено 9 баллов из 10, что соответствует удовлетворительной экологической ситуации. Основные недостатки: загруженные дороги и нехватка зелени.
Однако ЖК TopHills в этом плане повезло: он находится рядом с Коробковским садом с каскадом прудов и смотровой площадкой и речкой Котловкой. Окна многих квартир выходят на Коробковский сад и реку.
В составе ЖК TopHills работают супермаркеты «Пятерочка», «Дикси» и «ВкусВилл», барбершоп, парикмахерская, кафе, аптека, пункты выдачи заказов.
Ближайший к TopHills детский сад — дошкольное отделение школы №1450 «Олимп» в Электролитном проезде, 16 корп. 6, дойти до него можно за 6 минут. По этому же адресу находится начальное отделение этой же школы. До общеобразовательного отделения №7 «Олимпа» на Криворожской улице — 14 минут ходьбы.
В Электролитном проезде, 16 корп. 3 (ЖК «Вершинино») работает частный детский Монтессори-сад «Карандаши», до него около 10 минут пешком.
Ближайшая детская поликлиника — №69 на Нагорной улице. Пешком до нее можно дойти за 20 минут (почти 1,7 км), дорога на общественном транспорте займет примерно столько же времени, на автомобиле — 6 минут.
Поликлиника для взрослых немного ближе — до филиала №6 поликлиники №6 на улице Ремизова можно дойти пешком или доехать на автобусе за 11-12 минут, дорога на машине займет 5 минут.
Помимо магазинов, которые есть в новостройке, рядом работают сетевые супермаркеты «Пятерочка» и «ВкусВилл» и небольшие продуктовые магазинчики. Ближайший торговый центр находится около метро «Нагорная» — это небольшой ТЦ «Грай».
Чтобы увидеть объекты, нажмите на соответствующую кнопку внизу карты.
Главная точка притяжения локации — спорткомплекс «Кант», до него от нашей новостройки — 10 минут пешком. Это популярный горнолыжный склон, также здесь есть веревочный парк, скалодром, тренажерные залы и множество других возможностей для занятий спортом. В 14 минутах ходьбы от ЖК есть фитнес-клуб Bar Gym.
Безопасность района
Нагорный район не входит в число ни самых криминальных, ни самых безопасных районов Москвы. По данным МВД, в 2024 году регистрация преступлений в районе снизилась на 1,2%.
Ближайшее отделение полиции находится на улице Криворожская, в 11 минутах ходьбы от ЖК TopHills.
Продажи ЖК TopHills стартовали в конце мая 2020 года, тогда минимальная стоимость лота составляла 7,2 млн рублей. Сейчас, в начале июля 2025 года, для покупки доступны 22 готовые квартиры без отделки по цене от 20,2 млн рублей за 35-метровую «однушку» до 61,6 млн рублей за лот площадью 130,9 кв. м.
Актуальные цены в ЖК TopHills:
|
Тип жилья |
Метраж, кв. м |
Цена, руб. |
Цена за кв. м, тыс. руб. |
|
1-комнатные |
39.30 — 49.20 |
25 910 000 — 29 910 000 |
607.9 — 659.3 |
|
2-комнатные |
47.20 — 76.80 |
30 580 000 — 39 740 000 |
487.3 — 647.9 |
|
3-комнатные |
98.10 |
63 610 000 |
648.4 |
|
4-комнатные |
126.30 |
66 710 000 |
528.2 |
|
многокомнатные |
165.60 |
92 620 000 |
559.3 |
Купить квартиру можно в ипотеку или рассрочку под 22,5% годовых.
Данные об условиях кредитования действительны на момент публикации статьи. Актуальную информацию вы всегда можете найти в карточке проекта.
В Нагорном районе сейчас строится только один жилой комплекс — Twelve. Проект бизнес-класса от Tekta Group возводят в Электролитном проезде недалеко от метро «Нагорная» и комплекса «Кант». Он состоит из трех корпусов высотой 22, 28 и 34 этажа с двухуровневым подземным паркингом, в стилобатной части и на первых этажах разместятся коммерческие помещения и детский сад.
Актуальные цены в ЖК Twelve:
|
Тип жилья |
Метраж, кв. м |
Цена, руб. |
Цена за кв. м, тыс. руб. |
|
студии |
27.90 — 31.20 |
15 300 360 — 19 128 720 |
548.4 — 613.1 |
|
1-комнатные |
37.80 — 39.70 |
20 672 820 — 23 363 450 |
543 — 593.1 |
|
2-комнатные |
39.60 — 65.70 |
21 462 993 — 32 887 550 |
458.2 — 601.1 |
|
3-комнатные |
56.80 — 77.20 |
28 492 746 — 38 383 840 |
467.1 — 581.6 |
|
4-комнатные |
82.10 — 115.70 |
38 252 556 — 51 879 880 |
425 — 509.9 |
|
многокомнатные |
103.00 — 112.70 |
45 818 498 — 51 154 530 |
428.6 — 471.5 |
ЖК рассчитан на 934 квартиры — от студий до 5-комнатных. Цены — от 16,8 млн рублей. Разрешение на строительство жилого комплекса было выдано летом 2023 года, ввод в эксплуатацию намечен на II квартал 2026 года.
Резюме
Плюсы ЖК TopHills:
Среди минусов можно отметить промышленное прошлое локации: ЖК TopHills построен на территории бывшей промзоны «Верхние Котлы» — рядом с новостройкой еще есть шиномонтаж, автосервисы, производственные цеха.
Проект подойдет для собственного проживания, в том числе для семей с детьми. Но нужно учитывать, что квартир в продаже от застройщика осталось уже мало и выбор их ограничен.
Дата публикации 08 июля