ЖК «Татарская 35» – элитный жилой комплекс в ЦАО Москвы. Новостройка располагается в районе Замоскворечье, в пешей доступности от Садового кольца. В составе проекта – собственный фитнес-центр с бассейном и приватный двор-сад с фонтанами. Подробнее о плюсах и минусах ЖК – в экспертизе Новострой-М.
Примечание
В статье перечислены только факты о ЖК, собранные из открытых источников. В рубрике «Экспертиза проекта» Новострой-М решил отказаться от оценок и оценочных суждений: право делать выводы из описанных фактов о жилом комплексе мы предоставляем нашим читателям.
Кто строит?
Строительством ЖК занимается «Специализированный застройщик “Практика”», который входит в группу компаний «Донстрой». Холдинг работает на рынке около 30 лет, с тех построил более 6 млн кв. м жилья.
Девелопер находится на 13 месте в России по объему текущего строительства – почти 1,1 млн кв. м жилья (по данным рейтинга Единого ресурса застройщиков на 1 октября 2024 года). «Донстрой» специализируется на строительстве премиального жилья и жилых комплексов бизнес-класса в Москве, по этому же показателю в столице он занимает четвертое место.
Что строят?
Жилой комплекс расположен в ЦАО, в районе Замоскворечье, по адресу: ул. Большая Татарская, д.35. Компания получила разрешение на строительство в середине сентября 2024 года и уже приступила к подготовке площадки для возведения объекта.
ЖК будет состоять из трех жилых корпусов высотой от 15 до 24 этажей, в которых запроектированы 472 квартиры общей площадью 56,8 тыс. кв. м. Всего же площадь комплекса будет более 120,9 тыс. кв. м. Кроме жилья на территории планируется строительство физкультурно-оздоровительного комплекса.
ЖК «Татарская 35» в цифрах:
|
№ корпуса |
Лоты |
Энергоэффект. |
Машино-места |
Класс |
Срок ввода |
|
1 |
92 |
A++ |
658 |
Элитный |
I кв. 2028 |
|
2 |
157 |
A++ |
- |
Элитный |
I кв. 2028 |
|
3 |
223 |
A++ |
- |
Элитный |
I кв. 2028 |
Архитектура и дизайн
Архитектурную концепцию комплекса разработало бюро Apex. По задумке авторов проекта стиль элегантной современной классики поможет комплексу вписаться в историческое окружение. Фасады здания будут облицованы натуральным камнем светлых тонов. Проект станет новой архитектурной доминантой старомосковского района, считают авторы концепции.





Лобби также будут с дизайнерской отделкой и потолками до 8,5 м. Здесь расположатся ресепшен, мягкие зоны ожидания, постаматы для хранения интернет-заказов и зоны ожидания курьеров. Для сервисных служб в проекте предусмотрены отдельные лифты.
Благоустройство
Закрытый внутренний двор будет обустроен в стиле итальянского романтизма. Половину его площади (0,9 га) отведут под озеленение: высадят деревья, кустарники и разобьют лужайки. Внутреннюю территорию украсят фонтаны. Здесь разместятся галерея, зеленые кабинеты, событийная площадь, лаунж-зоны, детская и спортивная площадки.





Безопасность и технологии
Вход для посторонних на территорию комплекса закроют. За порядком будет следить охрана и система видеонаблюдения. А с помощью домофона жители смогут связаться с консьержем.
Планировки
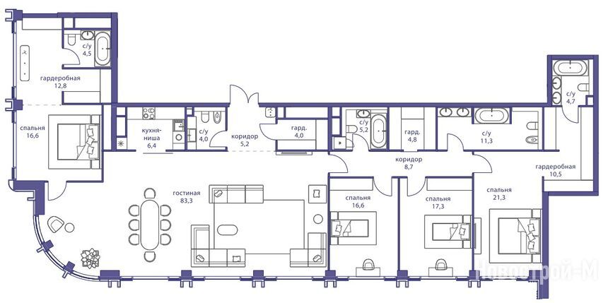
В ЖК «Татарская 35» представлены различные евро-планировки. Площадь самой компактной квартиры – 48,7 кв. м, самой просторной – 241,7 кв. м. В ней запроектированы пять спален, пять санузлов, кухня-ниша, гостиная и четыре гардеробные.
Площади квартир в имеющемся предложении (все данные актуальны на конец октября 2024 года):
Есть варианты с балконами или лоджиями (даже несколькими). Также в продаже имеется пентхаус на 24 этаже площадью 190 кв. м. В его планировке три спальни, три санузла, холл (13,3 кв. м), кабинет, кухня-гостиная (56,3 кв. м) с местом для установки камина и терраса площадью 21,3 кв. м.





В комплексе также запроектированы двухуровневые квартиры, варианты с угловым остеклением или окнами в ванной. В большинстве лотов – остекление «в пол». Часть квартир будет сдаваться с авторской отделкой «под ключ», европейскими кухнями и бытовой техникой, сантехникой ведущих марок.
Где строят?
«Татарская 35» возводится на бывших территориях московского конструкторского бюро «Компас», участок площадью 1,3 га девелопер приобрел осенью 2022 года. ЖК расположен в районе Замоскворечье, в 1 км от Садового кольца. Доехать до Красной площади на машине можно всего за 9 минут. Поскольку это центр, дороги в час пик часто бывают сильно загружены, а время в пути может ощутимо увеличиться.
Время в пути до метро:
Экология
В рейтинге EcoStandard район Замоскворечье получил 8 баллов из 10 возможных. Экологическая обстановка там оценивается как удовлетворительная.
В районе нет крупных скверов и парков, но рядом с ЖК есть небольшой Михайловский сад, добраться до него пешком можно примерно за 6 минут. За полчаса можно дойти до Парка Горького, за 22 минуты – до Зарядья.
Инфраструктура
В ЖК появится двухэтажный подземный паркинг на 658 автомобилей. Машиноместа можно будет оборудовать зарядными устройствами для электрокаров. Там же разместятся кладовые, места для хранения велосипедов и детских колясок, собственная автомойка и места для отдыха водителей.
В комплексе запланировано строительство ФОКа (физкультурно-оздоровительного комплекса). Также, согласно описанию проекта, жителям дома будет доступен трехуровневый фитнесс-центр с бассейном, тренажерным залом, сауной, хаммамом, массажным кабинетом.
Клубная инфраструктура дома включает в себя спорт-румы, детскую, репетиторскую, бьюти-пространства, деловое пространство с коворкингом, переговорной и сигарной. Также в комплексе планируется открыть рестораны и кофейни.
В шаговой доступности расположены несколько детских садов: дошкольное отделение школы №1259 (1-й Новокузнецкий переулок, 1 и еще три отделения), детский сад «В гостях у сказки» (2-й Новокузнецкий переулок, 10 стр. 2), дошкольное отделение школы №627 им. генерала Д.Д. Лелюшенко (Садовническая улица, 73 стр. 24). Дойти до них можно не больше, чем за 15 минут. Рядом также есть английский частный детский сад Happy & Bright (Садовническая улица, 57 стр. 2), семейный клуб Viki Land (Большая Татарская улица, 7 корп. 1) и центр развития и воспитания детей «Планета детства» (5-й Монетчиковский переулок, 12).
Рядом с ЖК находятся четыре школы: начальная школа №1259 (Садовническая улица, 68) и школа №627 им. генерала Д.Д. Лелюшенко (улица Бахрушина, 24 стр. 1), школа №518 (Садовническая набережная, 37 стр. 1) и школа №1799 (улица Большая Ордынка, 15). Путь пешком до самой дальней займет около 15 минут.
С супермаркетами в этой локации тоже нет никаких проблем. Если недостаточно той инфраструктуры, которая будет в самом ЖК, вокруг есть крупные сетевые магазины «Магнит», «Дикси», «Красное&Белое», «ВкусВилл» и другие. До ближайшего можно дойти менее, чем за 5 минут.
Путь до ближайшей детской поликлиники займет около 22 минут пешком или 9 минут на машине. Филиал детской поликлиника №38 находится по адресу: Большой Строченовский переулок, 23. Там же находится и Городская поликлиника №68 для взрослых пациентов.
Ближе есть несколько частных клиник: «Семейный доктор» (Озерковская набережная, 4), «Интермедцентр» (4-й Монетчиковский переулок, 1/6 стр. 3), «Q-Клиника» (улица Бахрушина, 28), СитиКлиник (Новокузнецкая улица, 36/2 стр. 1).
В непосредственной близости от ЖК нет крупных сетевых спортивных клубов, но есть несколько фитнес-студий. Например, Party fitness, расположенная по адресу Озерковский переулок, 7 стр. 1. Чуть дальше расположена премиальная студия TS Fitness – в километре от комплекса, фитнес-клуб DDX Fitness – в 9 минутах пешком.
Безопасность
В целом криминогенную обстановку в районе можно назвать нормальной. Согласно отчету начальника ОМВД по Замоскворечью, по итогам 2023 года количество преступлений на территории района снизилось на 12,8%. При этом раскрываемость выросла на 27,7%.
В шаговой доступности от комплекса расположены два участковых пункта полиции. Один по адресу: Климентовский переулок, 6, второй – Пятницкая улица, 49 стр. 1. Путь до каждого из них от комплекса займет не более 9 минут пешком.
Цены в ЖК «Татарская 35»
Согласно данным на официальном сайте застройщика, продажи в проекте уже стартовали. Сейчас для покупки доступны 89 квартир.
Самый бюджетный вариант из существующего предложения – квартира площадью 54 кв. м на втором этаже второго корпуса. Это вариант с одной спальней, просторной кухней-гостиной (21,2 кв. м) и двумя гардеробными. Продается он за 53,9 млн рублей.
Самый дорогой вариант сейчас стоит 470,6 млн рублей. Это квартира с четырьмя спальнями, кухней-нишей (6,4 кв. м), огромной гостиной (83,3 кв. м), пятью санузлами и четырьмя гардеробными. Ее площадь составляет 241,7 кв. м. Располагается она на 18 этаже второго корпуса.
|
Тип жилья |
Метраж, кв. м |
Цена, руб. |
Цена за кв. м, тыс. руб. |
|
1-комнатные |
48.30 — 58.70 |
84 161 700 — 99 691 200 |
1514 — 2064 |
|
2-комнатные |
71.30 — 132.70 |
117 741 600 — 286 502 400 |
1375 — 2588 |
|
3-комнатные |
105.80 — 137.40 |
149 072 200 — 269 319 600 |
1263.2 — 2267 |
|
4-комнатные |
131.00 — 318.60 |
227 285 000 — 915 019 200 |
1675 — 2872 |
|
многокомнатные |
181.40 — 263.60 |
284 152 212 — 763 649 200 |
1266.8 — 2897 |
Приобрести квартиры в ЖК можно в ипотеку, в том числе по субсидированной ставке 4,2%.
Данные об условиях кредитования действительны на момент публикации статьи. Актуальную информацию вы всегда можете найти в карточке проекта.
Конкуренты
Рядом с ЖК «Татарская 35» возводится еще несколько элитных проектов. На Космодамианской набережной ГК «Галс-Девелопмент» возводит клубный дом «Космо 4/22». ЖК будет состоять из двух корпусов высотой семь этажей: «Река» и «Сад». Сдать проект планируется в IV кв. 2024 года. Цены начинаются от 57,2 млн рублей за резиденцию площадью 50,2 кв. м – это квартира с одной спальней и кухней-гостиной площадью 23,9 кв. м.
Цены в ЖК «Космо 4/22»:
|
Тип жилья |
Метраж, кв. м |
Цена, руб. |
Цена за кв. м, тыс. руб. |
|
1-комнатные |
47.20 — 69.00 |
82 638 400 — 237 667 000 |
1621.7 — 3444.4 |
|
2-комнатные |
73.60 — 138.90 |
184 100 000 — 329 431 900 |
2371.7 — 2501.4 |
|
3-комнатные |
119.70 — 174.70 |
247 300 500 — 711 890 000 |
1415.6 — 5300.7 |
Еще один элитный проект от этого застройщика расположен на Шлюзовой набережной. ЖК «Монблан» состоит из шести корпусов высотой от семи до 27 этажей. Самый бюджетный вариант здесь – квартира площадью 48,9 кв. м с одной спальней и кухней-гостиной площадью 17,5 кв. м. Сдается она без отделки, а стоит – 38,2 млн рублей. Первый корпус в ЖК планируется сдать в I кв. 2028 года.
Цены в ЖК «Монблан»:
|
Тип жилья |
Метраж, кв. м |
Цена, руб. |
Цена за кв. м, тыс. руб. |
|
1-комнатные |
47.40 — 72.60 |
52 609 200 — 97 227 200 |
1025.4 — 1777 |
|
2-комнатные |
83.20 — 111.60 |
89 860 000 — 195 798 800 |
1021.1 — 2253.2 |
|
3-комнатные |
112.20 — 137.60 |
120 939 400 — 268 272 400 |
1032.7 — 2388.9 |
|
4-комнатные |
164.60 — 174.20 |
180 745 400 — 285 845 600 |
1037.6 — 1736.6 |
|
многокомнатные |
227.20 |
527 204 000 |
2320.4 |
«Дом Лаврушинский» строит по адресу Б. Толмачевский пер., 5 девелопер Sminex. Здесь появятся три монолитно-кирпичных клубных дома и шесть эксклюзивных приватных вилл с собственными патио. Сдать ЖК планируется в IV кв. 2024 года. В этом проекте цены начинаются от 175,6 млн рублей. За эти деньги можно приобрести квартиру площадью 67 кв. м. В планировке: мастер-спальня, гардеробная, гостевой санузел и кухня-гостиная площадью 29,9 кв. м.
Цены в ЖК «Лаврушинский»:
|
Тип жилья |
Метраж, кв. м |
Цена, руб. |
Цена за кв. м, тыс. руб. |
|
1-комнатные |
66.40 — 587.20 |
232 200 000 — 3 762 880 000 |
3361.4 — 6955.4 |
|
2-комнатные |
82.80 — 163.80 |
225 800 000 — 1 035 620 000 |
2296.7 — 6322.5 |
|
3-комнатные |
130.20 — 337.60 |
373 990 000 — 1 505 750 000 |
2535.5 — 6835.2 |
|
4-комнатные |
203.60 — 522.20 |
598 820 000 — 2 072 730 000 |
2599 — 7321.5 |
|
многокомнатные |
267.10 — 979.50 |
1 119 050 000 — 4 794 840 000 |
3343.4 — 7220.1 |
Hutton Development (Хаттон Девелопмент) во II кв. 2026 года планирует сдать два корпуса своего клубного дома Duo. Проект реализуется в рамках реставрации Кокоревского подворья: один из корпусов дома будет построен с нуля, второй – отреставрированное здание конца 19 века. Цены на квартиры в клубном доме начинаются от 95,6 млн рублей. Столько стоит квартира площадью 48,3 кв. м на втором этаже. В планировке: мастер-спальня, кухня-гостиная площадью 18,7 кв. м и гостевой санузел.
Цены в ЖК Duo:
|
Тип жилья |
Метраж, кв. м |
Цена, руб. |
Цена за кв. м, тыс. руб. |
|
1-комнатные |
48.00 — 118.00 |
133 802 339 — 327 719 298 |
2596.5 — 3191.2 |
|
2-комнатные |
75.00 — 148.00 |
226 800 000 — 469 244 444 |
2587.7 — 3196.6 |
|
3-комнатные |
134.00 — 217.00 |
371 757 894 — 642 954 385 |
2419.1 — 3036.8 |
|
4-комнатные |
237.00 — 240.00 |
711 756 725 — 712 200 000 |
2965.7 — 3005.1 |
|
многокомнатные |
236.00 — 239.00 |
610 409 356 — 693 100 000 |
2586.5 — 2900 |
Резюме
Плюсы ЖК «Татарская 35»:
Минусы:
Главным достоинством и одновременно недостатком ЖК «Татарская 35» является его расположение. Несколько станций метро в шаговой доступности, рядом главные городские магистрали. В то же время загруженные дороги оказывают влияние на экологию района, а пробки могут увеличить время в пути.
Комплекс расположен в развитом центральном районе с богатой инфраструктурой. Кроме того, большие возможности предлагает и сам проект – собственный фитнес-центр с бассейном, кофейни, рестораны. Высокий уровень сервиса и безопасности, а также другие бонусы элитного ЖК.
Даже самые маленькие квартиры в комплексе будут комфортны для проживания небольшой семьи. Но интересные варианты для себя найдут в ЖК не только семейные покупатели. Пентхаусы, варианты с камином и террасами и другие лоты могут быть интересны и инвесторам.
Дата публикации 29 октября 2024