Жилой квартал бизнес-класса «Среда на Лобачевского» появится в ЗАО в районе Очаково-Матвеевское. Дома войдут в состав Матвеевского кластера, организованного компанией ПИК, но будут реализованы под новым брендом «Среда». У жилого комплекса будет закрытая территория, подземный паркинг, инфраструктура клубного формата, ландшафтный парк во дворе. Обо всех особенностях проекта узнал Новострой-М.
Примечание
В статье перечислены только факты о ЖК, собранные из открытых источников. В рубрике «Экспертиза проекта» Новострой-М решил отказаться от оценок и оценочных суждений: право делать выводы из описанных фактов о жилом комплексе мы предоставляем нашим читателям.
Кто строит?
«Среда» — новый девелопер на московском рынке недвижимости. Это дочерняя структура ПИК, созданная для реализации проектов бизнес-класса. Отличительными особенностями проектов «Среды» станут выразительная архитектура, широкий выбор планировок, в том числе эксклюзивных, новый формат инфраструктуры. ЖК «Среда на Лобачевского» будет первым в линейке нового девелопера.
Что строят?
ЖК «Среда на Лобачевского» представляет собой квартал из 8 монолитных корпусов разной высоты и формата. В проекте есть как малоэтажные клубные дома, так и многоквартирные высотки.
Строительство будет осуществляться в два этапа: в рамках первой очереди построят корпуса 5.1, 5.2, 5.3, 5.4, 5.4.1 — их ввод в эксплуатацию запланирован на середину 2027 года. На первых этажах зданий разместятся лобби, общественные пространства и коммерческая инфраструктура. Для автомобилей предусмотрен подземный паркинг.
ЖК «Среда на Лобачевского» в цифрах:
|
№ дома |
Лоты |
Энергоэффект. |
Машино-места |
Класс |
Срок ввода |
|
5.1 |
83 |
А |
221 |
Бизнес |
II кв. 2027 |
|
5.2 |
83 |
А |
|
Бизнес |
II кв. 2027 |
|
5.3 |
80 |
А |
|
Бизнес |
II кв. 2027 |
|
5.4 |
257 |
А |
|
Бизнес |
II кв. 2027 |
|
5.4.1 |
29 |
А |
|
Бизнес |
II кв. 2027 |
Архитектура и дизайн
Архитектурную концепцию ЖК «Среда на Лобачевского» разработало бюро Saga. Важной задачей для архитекторов было гармонично вписать новый квартал в общий контекст района. Одним из ключевых решений стала разная этажность, которая делает архитектуру более легкой и динамичной, а также обеспечивает доступ света во двор и квартиры. Высота корпусов варьируется от 4 до 27 этажей. Для отделки фасадов будет использована плитка «под кирпич» глубокого серо-голубого оттенка.









Дома будут соединены между собой одноэтажными галереями, на крышах которых разместятся террасы. Также в проекте предусмотрены балконы, лоджии и угловое остекление. Внешние блоки кондиционеров размещаются не на фасадах, а в специальных технических помещениях.
В гранд-лобби будут организованы общественные пространства. Здесь появятся библиотека, общественная гостиная с кинотеатром. Для работы будут обустроены коворкинг и переговорные. Отдохнуть и пообщаться жители смогут в уютном лобби-баре.
Благоустройство
В закрытом внутреннем дворе будет создан многоуровневый ландшафтный парк со сложным рельефом, несколькими водоемами и ручейками, обилием зелени и цветущих растений.






Проводить время во дворе будет интересно жителям всех возрастов: дети смогут играть и изучать мир на безопасных детских площадках, взрослые смогут заниматься спортом на турниках и тренажерах или работать в уютной беседке. Также во дворе будут зоны барбекю и место для выгула домашних животных.
Безопасность и технологии
ЖК «Среда на Лобачевского» — это энергоэффективные дома класса А: за счет использования современных материалов и технологий здания лучше сохраняют тепло и позволяют экономить энергоресурсы. Большая площадь остекления обеспечивает лучшую инсоляцию и позволяет реже включать электрическое освещение.
На входе в здания предусмотрена система доступа без ключа, с помощью смартфона или по биометрии. Въезд в паркинг оснащен пропускной системой с радиометками. Также на въезде установлена мойка колес, которая способствует поддержанию чистоты в паркинге. Для электрокаров предусмотрены зарядные станции. В специальных помещениях можно хранить велосипеды, сапы, сноуборды и сезонную экипировку.
На всей территории комплекса, паркинга и двора работает wi-fi и осуществляется круглосуточное видеонаблюдение.
Для большего комфорта и экономии времени в домах и квартирах интегрированы интеллектуальные системы управления и контроля «Умный дом».
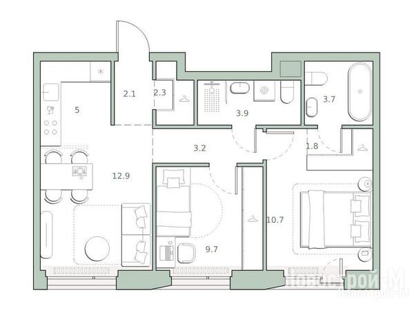
Планировки
Жилой фонд проекта представлен лотами разной площади и с разным количеством комнат. В домах первой очереди покупателям предлагаются квартиры:
На этаже располагается от 6 до 13 квартир. В презентации проекта можно увидеть четырех- и пятикомнатные квартиры, а также эксклюзивные планировки с террасами на уровне 2, 5, 14, 18 этажей, но эти лоты пока не поступили в продажу.




Во многих квартирах есть балконы и лоджии, с которых открываются виды на индустриальные районы и парки. В угловых квартирах выполнено угловое остекление, за счет чего комнаты получаются ещё более светлыми.
Во всех квартирах выполнена предчистовая отделка white box, которая включает в себя разводку коммуникаций и электричества, в том числе подготовку для установки кондиционера и подключения скоростного интернета и телевидения. Стены и пол подготовлены к финишному покрытию, благодаря чему новоселы смогут закончить ремонт за несколько недель без шума и грязи.
Где строят?
Жилой комплекс находится в районе Очаково-Матвеевское и отличается высокой доступностью для автомобилистов и пешеходов. Через эту локацию проходит несколько крупных дорог, которые обеспечивают удобную связь с соседними районами и центром столицы: Аминьевское шоссе и ул. Лобачевского, Мичуринский проспект, проспект Генерала Дорохова. Благодаря большой клеверной развязке на Аминьевском шоссе жители новостройки смогут выехать в нужную сторону.
Дорога на автомобиле до ТТК, Воробьевых гор и МГУ занимает около 15 минут, до Москва-Сити — 25 минут, до Кремля — около получаса без учета пробок. Ближайшие автобусные остановки расположены вдоль Очаковского и Аминьевского шоссе — дойти до них от ЖК можно за 7 – 10 минут.
Время в пути до станций метро и МЦД:
Экология
Экологическая ситуация в районе Очаково-Матвеевское удовлетворительная, так считают эксперты EcoStandard, они оценивают ее на 7 баллов из 10. Основное влияние пока — за промышленными предприятиями, ТЭЦ и автомобильными дорогами, однако активная реновация дает шанс на скорое улучшение.
Ожидаемая положительная динамика связана с тем, что промышленные зоны застраиваются жилыми комплексами, в состав которых будут включены и собственные парковые пространства, зеленые дворы и скверы. Например, в Матвеевском кластере появится прогулочный бульвар протяженностью 2 км, будут высажены тысячи растений, в том числе взрослых деревьев.
Вблизи от ЖК «Среда на Лобачевского» есть несколько действующих парков: Яблоневый сад — в 20 минутах ходьбы, Долина реки Очаковки — в 25 минутах, Парк Олимпийской Деревни — 35 минут пешком или 15 минут на машине, парк Событие — 13 минут на машине или одна остановка на метро, парк 50-летия Октября — 15 минут на машине или 35 минут на общественном транспорте.
Инфраструктура
В жилом комплексе предусмотрены общественные пространства для резидентов и коммерческие помещения на первых этажах, которые традиционно займут магазины, кафе и салоны красоты. Остальная инфраструктура будет за пределами квартала.
Детские сады
Ближайшие работающие детские сады относятся к школе №97 и располагаются в 10 минутах ходьбы от новостройки. Несколько частных и государственных детских садов расположены в районе ул. Большой Очаковской, но из-за необходимости обходить железнодорожные пути дорога до них занимает не менее 25 минут. Буквально через дорогу от нового ЖК строится детский сад от ПИК, здание уже стоит, в нем ведутся отделочные работы.
Школы
Школьники смогут посещать школу №97, расположенную в 10 минутах ходьбы от ЖК «Среда на Лобачевского». До школы №2025 можно дойти за 25 минут. Столько же занимает дорога до частной начальной школы «Пансион МГУ им. М.В. Ломоносова» и частной школы «Путь к успеху». Школа от ПИК строится по соседству, но срок ее сдачи был перенесен с 2024 на 2026 год.
Супермаркеты
В округе большой выбор магазинов формата «у дома», сетевых супермаркетов, аптек и пекарен. Дойти до ближайшего «Магнита» или «Пятерочки» можно за 10 минут.
Поликлиники
Расстояние до детской поликлиники №131 составляет около 2 км. Идти пешком придется не менее 25 минут, столько же времени займет поездка на автобусе, доехать на машине можно за 11 минут. Также можно обратиться в частную клинику «Росмедицина», расположенную за Аминьевским шоссе — в 20 минутах ходьбы.
Поликлиники для взрослых находятся на значительном удалении от ЖК, поэтому добираться до них придется на машине или общественном транспорте. До поликлиники №209 на ул. Веерной можно доехать на автобусе за 7 минут и еще около 15 минут потратить на дорогу до остановок, путь на машине займет 9 минут. Примерно такое же время придется потратить, чтобы добраться до поликлиники №8 на Мичуринском проспекте. До филиала поликлиники №8 на ул. Лобачевского можно доехать на метро — 1 остановка.
Фитнес-центры
Заниматься спортом жителям «Среды на Лобачевского» смогут недалеко от дома. Так, можно будет посетить студию пилатеса и фитнес-клуб Indoorfit на ул. Лобачевского (24 минуты пешком). На машине можно за 11 минут доехать до фитнес-центра сети World Class, в котором есть бассейн, сауна, тренажерный зал и групповые программы.
Безопасность
Район Очаково-Матвеевский характеризуется как достаточно безопасный. Ближайшее отделение полиции находится на Очаковском шоссе, в 450 метрах от ЖК. Ещё одно — за железной дорогой, на ул. Большой Очаковской — дойти до него можно за 20-25 минут. Столько же времени понадобится, чтобы дойти до УВД по Западному округу, расположенному на ул. Лобачевского.
Цены и способы покупки
Цены на квартиры в ЖК «Среда на Лобачевского» начинаются от 11,4 млн рублей. Приобрести двухкомнатную квартиру можно за 19,5 млн рублей. Самый дорогой из выставленных на продажу лот — трехкомнатная квартира площадью 95,7 кв. метров — обойдется в 36,2 млн рублей.
Актуальные цены в ЖК «Среда на Лобачевского»:
|
Тип жилья |
Метраж, кв. м |
Цена, руб. |
Цена за кв. м, тыс. руб. |
|
студии |
24.60 — 28.30 |
19 810 000 — 19 830 060 |
700 — 806.1 |
|
1-комнатные |
34.30 — 50.70 |
20 285 020 — 30 050 600 |
527.9 — 706.8 |
|
2-комнатные |
51.10 — 80.40 |
26 928 600 — 43 891 800 |
423.1 — 636.3 |
|
3-комнатные |
70.40 — 115.30 |
32 384 000 — 72 223 920 |
410.9 — 646.5 |
|
4-комнатные |
124.60 — 124.70 |
73 223 840 — 76 068 300 |
587.2 — 610.5 |
Приобрести недвижимость можно в ипотеку, рассрочку или за наличный расчет. Рассрочка от застройщика может быть предоставлена на 6, 12 или 15 месяцев. Первоначальный взнос 30-40%. В зависимости от выбранной программы, платежи вносятся одним или двумя траншами.
Стандартная ипотека выдается банками-партнерами на срок до 30 лет под 18% годовых. Можно воспользоваться программой государственной поддержки и взять кредит под 6%, но стоит учитывать, что здесь есть ограничение по сумме.
Также покупателям предлагается несколько вариантов субсидируемых программ: стандартная ипотека со ставкой 9,9% годовых, семейная ипотека под 3,5%.
Ограниченный пул квартир реализуется со скидкой от застройщика, выгода достигает 2 млн рублей.
Данные об условиях кредитования действительны на момент публикации статьи. Актуальную информацию вы всегда можете найти в карточке проекта.
Конкуренты
Выбор новостроек на западе Москвы очень большой, поэтому и конкурентов у ЖК «Среда на Лобачевского» немало, ближайшими являются ЖК Vangarden (ПИК) и ЖК Level Мичуринский (Level Group).
ЖК Vangarden так же, как и ЖК «Среда на Лобачевского» входит в состав Матвеевского кластера и имеет схожие с ним характеристики в плане инфраструктуры и географической доступности. Это тоже бизнес-класс с дизайнерскими лобби, современным благоустройством и общественными пространствами. Его ключевое преимущество в том, что дома уже введены в эксплуатацию, при этом цены почти такие же, как в «Среде на Лобачевского» — от 11,7 до 32,9 млн рублей за квартиры с предчистовой отделкой.
Цены в ЖК Vangarden:
|
Тип жилья |
Метраж, кв. м |
Цена, руб. |
Цена за кв. м, тыс. руб. |
Нет в продаже | |||
ЖК Level Мичуринский — масштабный жилой комплекс вдоль парка Долина реки Очаковки. Из окон квартир откроются виды на Очаковку и парк Олимпийской деревни, расположенный в 500 метрах от ЖК. Транспортную доступность комплексу обеспечивает Мичуринский проспект и ул. Лобачевского. До ближайшей станции метро «Мичуринский проспект» не более 1 км (12 минут пешком). До станции БКЛ и МЦД «Аминьевская» — 17 минут пешком. В пешей доступности школы, детские сады, Академия МВД, торговый центр «Фестиваль».
Цены в ЖК Level Мичуринский:
|
Тип жилья |
Метраж, кв. м |
Цена, руб. |
Цена за кв. м, тыс. руб. |
|
студии |
18.40 — 28.30 |
14 768 130 — 19 674 219 |
632.9 — 892.5 |
|
1-комнатные |
29.20 — 40.70 |
20 007 110 — 25 398 454 |
527.9 — 765.8 |
|
2-комнатные |
34.60 — 57.40 |
21 504 140 — 33 566 316 |
490.1 — 730.5 |
|
3-комнатные |
53.00 — 81.10 |
29 650 887 — 49 750 941 |
473.8 — 710.7 |
|
4-комнатные |
72.60 — 115.10 |
49 208 754 — 69 055 504 |
511 — 787.4 |
|
многокомнатные |
121.40 — 254.70 |
60 677 644 — 163 618 000 |
486.2 — 783.7 |
Первые дома будут сданы уже в конце 2024 года, следующие очереди будут последовательно вводиться в эксплуатацию в 2025-2027 годах. Жилой фонд представлен студиями и квартирами с 1-4 изолированными спальнями, также есть пентхаусы, площадь которых достигает 249 кв. метров. Цены на недвижимость варьируются от 9 до 140 млн рублей.
Резюме
Жилой комплекс «Среда на Лобачевского» ориентирован, в первую очередь, на семейных покупателей, которые ищут квартиру для себя. Здесь будут созданы комфортные условия для проживания с детьми: игровая комната на первом этаже, безопасный закрытый двор с детскими площадками, школа и детский сад под окнами, близкое расположение высших образовательных учреждений.
К преимуществам ЖК также можно отнести высокую географическую доступность, инфраструктуру Матвеевского кластера, предчистовую отделку и ландшафтный парк во дворе.
Из минусов жилого комплекса можно отметить возможный дефицит парковочных мест.
Дата публикации 02 октября 2024