ЖК «Родина Парк» – это проект премиум-класса в ЗАО Москвы. Он объединил в себе небоскребы, клубные дома средней этажности и таунхаусы, деловой центр и спортивный кластер. Рядом расположен пруд и природный заказник, а дорога до центра Москвы занимает не больше 15 минут. Летом застройщик объявил старт продаж квартир в первой очереди ЖК. Сколько сейчас стоит жилье в этом проекте, чем он может быть интересен покупателю – в экспертизе от Новострой-М.
Примечание
В статье перечислены только факты о ЖК, собранные из открытых источников. В рубрике «Экспертиза проекта» Новострой-М решил отказаться от оценок и оценочных суждений: право делать выводы из описанных фактов о жилом комплексе мы предоставляем нашим читателям.
Кто строит?
Строительством комплекса занимается «Специализированный застройщик “Родина Парк”». Компания входит в девелоперскую группу «Родина» – это крупный инвестиционно-строительный холдинг, который был основан в 2014 году. Застройщик специализируется на комплексном освоении территорий в пределах Москвы и Московской области.
Кроме «Родина Парк» девелопер возводит сейчас ЖК «Союз» у метро «Ботанический сад». А первым реализованным проектом застройщика стал культурно-образовательный кластер Russian Design District, который был построен в поселке Ватутинки (Новая Москва).
Что строят?
«Родина Парк» застройщик позиционирует как «семейный кластер премиум-класса». Это жилой проект с деловым центром, зоной ритейла и физкультурно-оздоровительным комплексом.





«Родина Парк» будет включать в себя сразу три формата жилья: в первую очередь строительства войдут клубный дом, состоящий из трех корпусов высотой 11, 14 и 19 этажей на 308 квартир (их строительство уже началось) и 15 таунхаусов. На втором этапе будут построены два корпуса высотой 34 и 35 этажей. Полностью ввести комплекс в эксплуатацию планируется в марте 2027 года.
ЖК «Родина Парк» в цифрах
|
№ корпуса |
Лоты |
Энергоэффект. |
Машино-места |
Класс |
Срок ввода |
|
1, 2, 3 |
308 |
А |
171 |
Премиум |
IV кв. 2026 года |
Архитектура и дизайн
Архитектурную концепцию комплекса разрабатывало бюро UNK project, которое постаралось вписать его в природное окружение. По задумке авторов плавные формы фасадов и волнистая геометрия балконов отсылают к изгибам русла реки Сетунь, которая протекает рядом с комплексом.
Фасады будут теплых натуральных цветов, в высотных корпусах появятся озелененные скай-террасы, а в таунхаусах будут благоустроены эксплуатируемые крыши.
Благоустройство
Для жителей комплекса будет создан приватный двор-парк площадью 1 га, а также общественное благоустроенное пространство площадью 0,7 га. Внутренняя территория будет разбита на девять зон: парадная, спортивная, рекреационная, зона таунхаусов, зеленые кабинеты, входные группы, центральная, общественная и детская зоны.
Детское пространство разделено на игровые зоны для разных возрастов. Здесь планируется установить горку, качели, карусель, батуты, холмы с трубой и горками, степперы, а также зону отдыха родителей.
Спортивная часть включает в себя площадку для йоги, столы для настольного тенниса и универсальную игровую площадку. Они будут отделены друг от друга дополнительным озеленением. В зоне силовых и кардиотренировок планируется установить стену для функциональных тренировок, полосу препятствий и площадку для воркаута.
Также во дворе разместится городской амфитеатр и зеленая зона коворкинга.
Безопасность и технологии
Внутреннее пространство комплекса будет закрыто от посторонних и машин. На территории появится wi-fi, что позволит работать даже в зеленой зоне. Для автомобилистов построят подземный паркинг на 171 место с охраной и автосервисом.






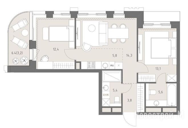
Планировки
В корпусах первой очереди запроектированы 293 квартиры евро-формата и классических планировок с количеством комнат от двух до четырех. А также восемь двухуровневых квартир площадью от 161 до 213,1 кв. м. Есть квартиры с мастер-спальнями, постирочными и гардеробными, несколькими лоджиями. Есть лоты с видом на реку и парковую часть. Жилье в комплексе сдается без отделки.



Площади квартир в имеющемся предложении (все данные актуальны на середину ноября 2024 года):
Где строят?
ЖК «Родина Парк» расположен в центре Можайского района на улице Верейской. До МКАД от комплекса на машине можно доехать за 8 минут, до аэропорта «Внуково» – за полчаса. Путь на автомобиле до Садового кольца займет 13 минут. Однако стоит учитывать, что дороги здесь бывают загружены, из-за чего время в пути в часы пик может увеличиться.
Станция метро «Давыдково» расположена в полутора километрах от ЖК, дойти до нее можно примерно за 16 минут.
Экология
Согласно данным рейтинга EcoStandard, экологическая обстановка в Можайском районе оценивается как «приемлемая». Эксперты дают ему 6 баллов из 10. Из плюсов называется большое количество водоемов. Из минусов – загруженность шоссе.
У жителей «Родина Парк» будет собственный выход к природному заказнику «Долина реки Сетунь». А в 2 км от ЖК расположен благоустроенная часть этого заказника с местами отдыха, спортивными площадками и сетью тропинок. Дойти до него можно за 20 минут. Рядом с комплексом расположен пруд Пятачок, до него время в пути – меньше 10 минут. Чуть дальше находятся Большой и Малый Манухинские пруды.
Менее 10 минут займет путь на машине до Троекуровских прудов, примерно столько же до Солдатенковского и Суворовского парков, около 15 минут – до Мещерского парка.
Инфраструктура
Ближайший муниципальный детский сад расположен чуть более чем в километре от комплекса (улица Гродненская, 7 к. 1) дойти до него можно за 12 минут. В двух километрах находится Классический пансион МГУ им. М.В. Ломоносова, путь до него пешком займет около 20 минут. Рядом также работают несколько частных детских садов, дойти до которых можно примерно за 10 минут: Rybakov Playschool (Гжатская улица, 5 к. 4), Smile Fish (Гжатская улица, 5 к. 1), kotiki school (улица Петра Алексеева, 14).
Частный детский сад на 95 мест должен открыться и в самом комплексе.
Кроме детского сада в Классическом пансионе МГУ им. М.В. Ломоносова располагается и школа. До школы «Западный комплекс непрерывного образования» (Гжатская улица, 6) можно дойти за 12 минут. Чуть дальше, в 15 минутах ходьбы, находится колледж «Западного комплекса непрерывного образования» (улица Гродненская, 5). До школы №1195 (Рябиновая улица, 8 к. 2) можно дойти за 23 минуты. Примерно столько же займет путь до Ломоносовской школы (Можайское шоссе, 31 к. 2).
В шаговой доступности от комплекса есть несколько супермаркетов федеральных сетей: «ВкусВилл», «Пятерочка», «Магнит». Есть и другие магазины. В самом ЖК также предусмотрена зона ритейла – на первых этажах домов откроются рестораны, кафе, магазины, а также службы быта.
Ближайшая взрослая поликлиника – клинико-диагностический центр №4 – расположена по адресу: Можайское шоссе, 14 стр. 4. Дорога до нее пешком займет около 21 минуты.
Филиал детской городской поликлиники №30 расположен по адресу: улица Артамонова, 6. До нее можно добраться пешком за 23 минуты, на машине – за 10.
Есть несколько частных медицинских центров, но расположены они с противоположной стороны Можайского шоссе и путь до них на машине займет около 10 минут, пешком – минут 20.
На территории комплекса застройщик планирует построить «инновационный физкультурно-оздоровительный кластер» площадью 10 тыс. кв. м с фитнес-залом, бассейном и зонами для занятий йогой. Если этого будет недостаточно, то рядом тоже есть где заняться спортом.
Ближайший фитнес-клуб находится в 700 метрах от комплекса в БЦ «Верейская Плаза III» (улица Верейская, 29 стр.134) – «С.С.С.Р.». До фитнес-клуба World Class (Аминьевское шоссе, 6) можно дойти за 17 минут, там же расположен «Европейский Гимнастический Центр».
В 4 км от комплекса – дворец спорта «Крылья Советов», доехать до которого на машине можно за 15 минут. В полутора километрах – спорткомплекс «Кунцево» со стадионом и бассейном.
Безопасность
Согласно информационно-аналитической записке к отчету начальника Отдела МВД России по Можайскому району количество зарегистрированных преступлений в 2023 году на территории района снижается. Уличных и квартирных краж, угонов стало меньше. За год не было зафиксировано ни одного разбоя, а три, совершенных ранее, раскрыли. Район не входит в список самых опасных мест Москвы и криминогенная обстановка здесь – в пределах нормы.
Ближайшие участковые пункты полиции находятся на Инициативной улице, 5 к. 1 и улице Вересаева, 7. До них можно добраться на автомобиле примерно за 8 минут, путь пешком займет около 20 минут.
Цены в ЖК «Родина Парк»:
Продажи квартир в проекте стартовали в конце июня 2024 года.
|
Тип жилья |
Метраж, кв. м |
Цена, руб. |
Цена за кв. м, тыс. руб. |
|
1-комнатные |
41.80 |
25 288 567 — 29 899 034 |
605 — 715.3 |
|
2-комнатные |
38.40 — 70.40 |
24 655 973 — 56 996 063 |
575.5 — 959.9 |
|
3-комнатные |
61.30 — 93.90 |
42 019 823 — 85 374 081 |
517.2 — 1270.4 |
|
4-комнатные |
93.70 — 143.90 |
72 311 276 — 128 185 288 |
679.9 — 1307.1 |
|
многокомнатные |
174.50 |
221 944 700 |
1271.9 |
Застройщик предлагает разные варианты покупки квартир. Беспроцентную рассрочку до 1 сентября 2026 года без удорожания, первоначальный взнос должен быть не менее 40%.
Также жилье можно купить в ипотеку: траншами, по программе от застройщика совместно с «Совкомбанком» со ставкой от 5,99% на срок до 3-х лет или воспользоваться льготной «Семейной ипотекой».
Данные об условиях кредитования действительны на момент публикации статьи. Актуальную информацию вы всегда можете найти в карточке проекта.
Конкуренты
Рядом с ЖК «Родина Парк» сейчас строятся три жилых комплекса, два из которых находятся практически через дорогу от него.
ЖК Veer («Веер») с противоположной стороны Верейской улицы возводит MR Group. Это будет мультиквартал бизнес-класса, состоящий из урбан-блоков. В первой очереди будут построены семь секций разной высоты (от 3 до 59 этажей). Цены в проекте стартуют от 12 млн рублей за студию площадью 20,6 кв. м в отделке white box. Срок сдачи – III кв. 2028 года.
Цены в ЖК Veer:
|
Тип жилья |
Метраж, кв. м |
Цена, руб. |
Цена за кв. м, тыс. руб. |
|
студии |
20.50 — 37.50 |
16 815 125 — 23 778 750 |
567.6 — 830.5 |
|
1-комнатные |
30.20 — 79.10 |
18 595 080 — 42 873 300 |
454.8 — 783 |
|
2-комнатные |
49.00 — 115.60 |
27 180 792 — 50 112 600 |
429.6 — 670.5 |
|
3-комнатные |
72.70 — 101.90 |
36 033 200 — 50 502 240 |
459 — 612 |
|
4-комнатные |
94.90 — 110.90 |
48 802 325 — 57 030 325 |
480.3 — 521.9 |
|
многокомнатные |
158.70 |
74 866 725 |
471.8 |
Рядом этот же застройщик возводит еще один проект бизнес-класса – ЖК SET («СЕТ»). Квартал будет состоять из трех урбан-блоков, каждый из которых выполнен в своей стилистической концепции. В первой очереди этого комплекса будут построены три корпуса высотой 18, 45 и 59 этажей. Сейчас цены на квартиры в ЖК начинаются от 10,7 млн рублей за студию без отделки площадью 23,3 кв. м. Срок сдачи – III кв. 2028 года.
Цены в ЖК SET:
|
Тип жилья |
Метраж, кв. м |
Цена, руб. |
Цена за кв. м, тыс. руб. |
|
студии |
22.50 — 31.90 |
17 726 249 — 22 111 050 |
685.5 — 864 |
|
1-комнатные |
30.77 — 72.44 |
19 001 244 — 32 972 877 |
455.2 — 783 |
|
2-комнатные |
49.07 — 80.90 |
26 288 249 — 47 750 400 |
451 — 720 |
|
3-комнатные |
75.18 — 132.84 |
36 890 850 — 65 941 776 |
459 — 621 |
|
4-комнатные |
97.41 — 120.70 |
46 863 951 — 69 376 320 |
463.3 — 612 |
|
многокомнатные |
102.90 |
48 280 680 — 48 543 075 |
469.2 — 471.8 |
Третий проект, строящийся неподалеку, – МФК «Верейская 41» от группы «Самолет». Этот комплекс бизнес-класса будет состоять из четырех урбан-блоков высотой от 6 до 14 этажей. Цены здесь начинаются от 11,4 млн рублей за студию без отделки площадью 22 кв. м. Судя по данным на официальном сайте застройщика, заселение планируется до 31 декабря 2025 года.
Цены в МФК «Верейская 41»:
|
Тип жилья |
Метраж, кв. м |
Цена, руб. |
Цена за кв. м, тыс. руб. |
|
студии |
26.06 — 27.96 |
18 381 906 — 20 131 955 |
664.4 — 764.9 |
|
1-комнатные |
31.88 — 55.36 |
22 002 782 — 32 663 133 |
543.5 — 796 |
|
2-комнатные |
51.05 — 98.49 |
33 387 628 — 51 389 362 |
521.8 — 685.7 |
|
3-комнатные |
62.43 — 92.86 |
35 723 382 — 56 632 416 |
499.5 — 636.6 |
|
4-комнатные |
98.82 — 125.55 |
57 711 603 — 71 121 313 |
527.2 — 584 |
Резюме
Плюсы ЖК «Родина Парк»:
Минусы ЖК «Родина Парк»:
Комплекс строится рядом с долиной реки Сетунь и одноименным природным заказником. Это несомненный плюс – возможность отдохнуть на природе, квартиры с видом на зеленую зону.
Еще одним огромным плюсом проекта является его инфраструктура. Приватный двор с разнообразием зон, магазины, кафе и прочие заведения на первых этажах домов, насыщенная спортивная инфраструктура.
Комплекс хорошо подойдет семейным покупателям. Об этом свидетельствуют и планировки квартир – в первой очереди ЖК нет студий и «однушек», зато есть таунхаусы.
В качестве инвестиций проект тоже можно рассматривать: в этой локации активно идет реновация территории (редевелопмент крупнейшей промзоны города – «Очаково») и появляется много жилых проектов. Можно смело предполагать, что цены на жилье в этом районе будут только расти.
Дата публикации 12 ноября 2024