Жилой квартал «LIFE-Кутузовский» – это комплекс бизнес-класса, который ГК «Пионер» возводит в Можайском районе Москвы, на берегу реки Сетунь. ЖК будет состоять из девяти корпусов от 12 до 23 этажей, с собственной приватной территорией и развитой внутренней инфраструктурой. Новострой-М рассказывает о сильных и слабых сторонах проекта, первую очередь которого планируют ввести в эксплуатацию уже в IV квартале этого года.
Примечание
В статье перечислены только факты о ЖК, собранные из открытых источников. В рубрике «Экспертиза проекта» Новострой-М решил отказаться от оценок и оценочных суждений: право делать выводы из описанных фактов о жилом комплексе мы предоставляем нашим читателям.
Кто строит
Группа компаний «Пионер» работает на российском рынке недвижимости уже 18 лет. Застройщик занимается не только возведением жилых и многофункциональных комплексов, но также отвечает за их управление и сервисное обслуживание.
Самые известные из уже сданных объектов от ГК «Пионер» – это ЖК «LIFE-Ботанический сад», ЖК «LIFE-Митинская», ЖК «LIFE-Волжская», апарт-отель «YE`S» (Митино). Все проекты застройщика со сроками завершения вы можете увидеть на сайте Новострой-М.
Что строят
Жилой квартал бизнес-класса «LIFE-Кутузовский» общей площадью 227,4 тыс. кв. м возводится в ЗАО Москвы, а именно в Можайском районе на улице Гжатская – когда-то здесь функционировала деревообрабатывающая фабрика. В 2017 году ГК «Пионер» приобрела этот участок и осенью того же года получила разрешение на строительство комплекса.
Посмотреть на жилой комплекс с высоты птичьего полета можно в нашем разделе «Аэротуры».
«LIFE-Кутузовский» представляет собой 9 корпусов переменной этажности – от 12 до 23 этажей. На верхних этажах комплекса расположены премиальные квартиры и пентхаусы с панорамным остеклением и зимними садами.
Строительство ЖК ведется в 2 очереди: первую застройщик планирует сдать в конце этого года, сдача второй намечена на второй квартал 2020.





Архитектура и дизайн. Внешний облик ЖК полностью соответствует заявленному классу. Панорамные окна, корпуса, отделанные клинкерной плиткой. Преобладающие цвета – бежевый, шоколадный, бирюзовый.
Созданием архитектурной концепции занималось европейское бюро ADM, в портфеле проектов которого уже не одна московская новостройка бизнес- и премиум-класса.
Придомовая территория. На территории ЖК «LIFE-Кутузовский» можно выделить два знаковых объекта – прогулочный бульвар и собственную благоустроенную набережную.
Бульвар представляет собой «главную улицу» комплекса, с кафе, ресторанами и торговыми точками. Завершаться он будет как раз на набережной, где по плану расположатся зоны для отдыха, детские и спортивные площадки.
Если говорить о комплексе в целом, то здания расположены таким образом, что образуют внутри приватное дворовое пространство.
Съемка Новострой-М от 29 июля 2019 г.
Безопасность. Территория комплекса закрыта от машин, на ней ведется круглосуточное видеонаблюдение.
Нежилые метры. Застройщик обещает обеспечить жителей комплекса всеми необходимыми услугами. На сайте ГК «Пионер» говорится о том, что первые этажи зданий первой очереди, которая в скором времени будет введена в эксплуатацию, уже проданы или сданы в аренду.
В ЖК заработает продуктовый магазин, парикмахерская, центр эстетической косметологии, небольшое офисное пространство. Также вместе с первой очередью ЖК в нем откроются детский плавательный клуб и детское кафе, магазин оптики и магазин одежды, детский сад на 150 мест.
Одновременно со второй очередью «LIFE-Кутузовский» откроются кондитерская, супермаркет, турагентство, медицинский центр, салон красоты, винотека и даже сигарный клуб.
Для автомобилей жильцов предусмотрен отапливаемый двухуровневый подземный паркинг, количество машино-мест – 1564.
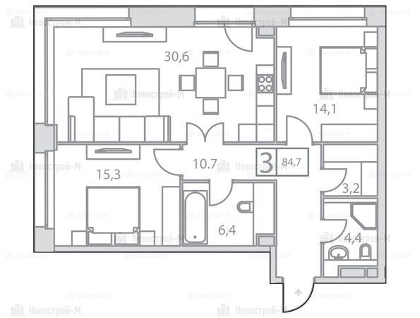
Квартиры и планировки
Покупателям в ЖК «LIFE-Кутузовский» доступны 1-,2-,3-,4- и 5-комнатные квартиры метражом от 44 до 238 кв.метров. Планировки хоть и не отличаются разнообразием, выполнены качественно – есть гардеробные, несколько санузлов, остекленные лоджии и минимум «бесполезного» пространства. Все без исключения квартиры относятся к евроформату, то есть кухня и гостиная объединены.





Квартиру можно приобрести как с отделкой, выполненной в темном или светлом стиле, так и без нее. Совершить виртуальную прогулку по квартирам ЖК «LIFE-Кутузовский» вы можете на сайте Новострой-М в разделе «Шоу-румы».
Для тех покупателей, кто нацелен на приобретение премиальных лотов – на последних этажах ЖК есть пентхаусы с собственным зимним садом и возможностью установки камина, все они сдаются без отделки.
В настоящее время в продаже от застройщика находятся: 51 однокомнатная квартира, 122 двухкомнатные, 205 трехкомнатных, 18 четырехкомнатных и 4 пятикомнатные квартиры. Все лоты с планировками, подробным описанием, видами из окон и даже инсоляцией можно посмотреть на сайте Новострой-М.
Где строят
ЖК «LIFE-Кутузовский» располагается в ЗАО Москвы, в Можайском районе. Локация понравится прежде всего автомобилистам, а если учесть, что проект относится к бизнес-классу, то владельцев автомобилей там, вероятно, будет больше, чем пешеходов.
До центра Москвы на машине можно добраться за 15 минут, до «Москва-Сити» – за 10. Путь до ТТК без пробок займет около получаса. Буквально под боком – Аминьевское и Можайское шоссе, МКАД.
Пешеходам пока придется сложнее. Ближайшая станция метро – Кунцевская, но идти до нее придется более получаса. Однако в 2021 году неподалеку от комплекса обещают открыть станцию БКЛ «Давыдково».
Кстати, к сведению автомобилистов, ситуация с пробками здесь относительно нормальная. Постоять придется только в стандартные утренние и вечерние часы пик, да и то по московским меркам совсем недолго.
Экология
По данным рейтинга от EcoStandard, Можайский район – вполне благополучная с точки зрения экологической обстановки локация: у нее 3 балла из 4 возможных.
ЖК «LIFE-Кутузовский» является частью природного заказника «Долина реки Сетунь», он буквально окружен зелеными зонами. Кроме того, в относительной близости от комплекса находится парк «Крылатские Холмы» и Филевский парк.
Однако не стоит забывать, что также в непосредственной близости от комплекса находится промзона «Очаково», которая, к счастью, отделена от территории ЖК зеленью и рекой.
Там все еще действуют несколько не самых полезных производств (таких, как, например, бетонный завод). А основная проблема этой промзоны – ТЭЦ-25, чемпион Москвы не только по размерам, но и по объему вредных выхлопов.
Инфраструктура
Можайский район хорошо развит с точки зрения наличия как торговой, так и социальной инфраструктуры. В пешей доступности от комплекса есть несколько общеобразовательных школ.
Школы
Детских садов чуть меньше, но они тоже есть. К тому же, не стоит забывать, что детский сад на 150 мест застройщик обещает открыть на территории самого комлекса.
Детские сады
С покупкой продуктов трудностей тоже не будет: в районе есть супермаркеты – как большие сетевые, так и отдельные продуктовые магазины.
Медицинские учреждения в округе в основном коммерческие, но обычные городские поликлиники для взрослых и детей тоже есть, хотя далековато: пешком до взрослой поликлиники – чуть больше 20 минут, до детской – более получаса.
Любителям активного образа жизни найти для себя новый фитнес-клуб будет довольно легко. В районе их действительно много. Как минимум до трех из них можно спокойно дойти пешком.
Безопасность
С точки зрения безопасности, Можайский район можно назвать вполне спокойным. По данным прокуратуры, ЗАО находится лишь на 4 месте по количеству совершенных преступлений в первом полугодии 2019. К тому же, потенциально опасных мест рядом с ЖК нет.
В пешей доступности от комплекса – отдел МВД России по Можайскому району г. Москвы и дежурный пункт полиции.
Цены
За 1 год средняя цена квадратного метра в ЖК «LIFE-Кутузовский» выросла на 19,027 тысяч рублей: с 263,753 до 282, 780 тысяч рублей за квадратный метр.
Цены в ЖК «LIFE-Кутузовский»
|
Тип жилья |
Метраж, кв. м |
Цена, руб. |
Цена за кв. м, тыс. руб. |
Нет в продаже | |||
Квартиры в комплексе реализуются по старым правилам (без эскроу-счетов), поэтому для собственного спокойствия проверьте наличие заключения о соответствии критериям (ЗОСК) у застройщика.
Приобрести квартиру можно в ипотеку или в рассрочку. По ипотеке наиболее выгодные условия предлагает Альфа-Банк: 8,49% годовых. Для семейных покупателей – Абсолют Банк: 5,75%.
Рассрочка: при покупке квартиры в I очереди она предоставляется на срок до 3 месяцев с условием оплаты 50% от стоимости жилья. Если речь идет о покупке квартиры во II очереди, то рассрочка предоставляется на срок до 31 мая 2020 года, также с оплатой 50% от стоимости квартиры.
Конкуренты
Основной конкурент ЖК «LIFE-Кутузовский» – это соседний жилой комплекс «КутузовGRAD II» («Кутузовград») от застройщика «Инград».
Он также относится к бизнес-классу и расположен возле природного заказника «Долина реки Сетунь». Комплекс состоит из двух 28-этажных корпусов с собственной инфраструктурой. Сдача намечена на II квартал 2021 года. Однако уже сейчас в продаже осталось менее 100 квартир от застройщика .
Что касается цен, то в ЖК «КутузовGRAD II» они в целом гораздо ниже, чем в ЖК «LIFE-Кутузовский».
Цены в ЖК «КутузовGRAD II»
|
Тип жилья |
Метраж, кв. м |
Цена, руб. |
Цена за кв. м, тыс. руб. |
|
1-комнатные |
54.60 |
30 940 000 |
566.7 |
|
2-комнатные |
57.50 — 79.20 |
31 280 000 — 43 800 000 |
423.9 — 641.2 |
|
3-комнатные |
91.50 — 125.00 |
35 350 000 — 51 490 000 |
355.7 — 469.3 |
|
4-комнатные |
125.90 — 134.00 |
45 710 000 — 52 880 000 |
363.1 — 394.6 |
Резюме
Плюсы ЖК «LIFE-Кутузовский»:
– продуманная архитектурная концепция;
– качественное благоустройство придомовой территории: собственный прогулочный бульвар, собственная набережная;
– экология: ЖК является частью природного заказника «Долина реки Сетунь».
К немногочисленным минусам проекта, да и то временным, можно отнести разве что не самое удобное расположение комплекса для тех, кто передвигается на метро: станцию БКЛ «Давыдково» построят только в 2021 году.
В остальном ЖК приятно удивляет хорошо проработанной концепцией, развитой инфраструктурой и обилием зеленых зон вокруг.
Комментирует Денис Бобков, генеральный директор аналитической и консалтинговой компании «Недвижимость-Профи»
Ещё один комплекс бизнес-класса, возводимый в Западном округе Москвы. Но, как и некоторые другие комплексы, страдающий от близости промзоны «Очаково», расположенной с наветренной стороны (с юго-запада). Частично экология компенсируется наличием природного заказника «Долина реки Сетунь» - это, пожалуй, основное место для отдыха и прогулок будущих жителей комплекса.
К плюсам комплекса можно отнести его расположение не на первой линии Можайского шоссе. Однако автомобилистам не позавидуешь – регулярные перекрытия Кутузовского проспекта для проезда кортежей чиновников давно стали притчей во языцех, и могут существенно нарушить планы на день. Со скоростным общественным транспортом тоже пока всё не очень – ближайшая станция метро «Кунцевская» находится в более чем получасовой пешей доступности, что, конечно, очень далеко. Зато в конце 2021 года запланировано открытие станции Большой кольцевой линии «Давыдково» в 15 минутах пешком.
Из достоинств комплекса отметим интересную архитектуру и благоустройство дворовой территории, прогулочного бульвара, а также наличие собственной набережной. Продумана инфраструктура комплекса, много детской инфраструктуры – детский сад, детский плавательный клуб, детское кафе. Для взрослых тоже предусмотрено практически всё – даже сигарный клуб.
Школы нет, но в пешей доступности имеется несколько вариантов.
В линейке квартир отсутствуют студии, а остальные типы квартир представлены исключительно в формате европланировок, с объединёнными кухнями-гостиными. Сейчас это популярное решение на рынке новостроек, однако приверженцам классических отдельных кухонь сюда уже путь заказан. Квартиры есть как с отделкой, так и без. Первые наверняка будут востребованы среди покупателей, которым нужно побыстрее заехать, и не вкладывать дополнительных средств на ремонт, а заложить эти расходы в ипотеку.
В феврале 2020 года средняя цена по комплексу составляет 271 тыс. руб./кв.м, за год (с февраля 2019) рост составил 15%, что существенно выше показателя по рынку новостроек Москвы. Кроме того, открытие станции «Давыдково» существенно улучшит транспортную доступность комплекса. Поэтому можно рассматривать приобретение квартиры в этом комплексе как для собственного проживания с семьёй, так и для инвестиций с целью последующей перепродажи. В то же время, покупка с целью последующей сдачи в аренду данный комплекс не очень перспективна в силу достаточно высокого класса комплекса и транспортной доступности.
Дата публикации 18 ноября 2019